黄浦核心丨豫园板块 上海城投倾力之作露香园·馥公馆(售楼处电话)首页网站-2024露香园-楼盘评测-上海房天下

嘉峪关楼市发布 2024-11-14 15:22:34
用手机看
扫描到手机,新闻随时看

扫一扫,用手机看文章
更加方便分享给朋友

露香园·馥公馆售楼处电话☎:400-833-6309【已认证】

黄浦核心丨豫园板块

上海城投倾力之作

上海「露香园·馥公馆」售楼处电话☎:400-833-6309【已认证】

在售户型图丨项目介绍丨最新房源丨周边配套丨详细解答〢

◆开发商营销中心诚挚邀请,一键预约,尊享内部独家折扣!匠心独运的精品项目,恭候您的品鉴与选择。

露香园·馥公馆开发商电话☎:400-833-6309【已认证】

露香园·馥公馆售楼处电话☎:400-833-6309【已认证】

露香园·馥公馆营销中心电话☎:400-833-6309【已认证】

✅ 本项目暂不接受临时到访,过来参观样板房请记得提前来电预约!

✅ 为您安排楼盘现场销售全程接待并讲解,给您更贴心的看房体验!

欢迎来电咨询楼盘、线上预约看房可享专属活动哦~~

➤➤➤➤VIP贵宾置业〢欢迎来电咨询〢品鉴!!

主力户型建面约110-185㎡

&三套253/315/470㎡特殊户型

均价10.8万/㎡

70年产权住宅(原保留自持房)

“样板间”开放中提前预约

露香园·馥公馆售楼处电话☎:400-833-6309【已认证】

项目基础信息

项目名称:露香园路18号露香园·馥公馆售楼处电话☎:400-833-6309【已认证】

开发商:上海露香园置业有限公司

区域:黄浦区

总套数:64套

主力户型:110-180(三梯六户)

特殊户型:253、315、470(三套)顶楼

总高:名义楼层20楼、实际楼层17楼(4、13、14没有)

01室:110的一房无阳台

02室:152的两房有阳台

03室:184的两房有阳台

04室:185的两房有阳台

05室:172的两房有阳台

06室:110的一房有阳台

装修标准:精装交付,所见即所得

产权:70年住宅(需有上海购资)

车位:1500租,60万买

物业费:8.5元/平

露香园·馥公馆售楼处电话☎:400-833-6309【已认证】

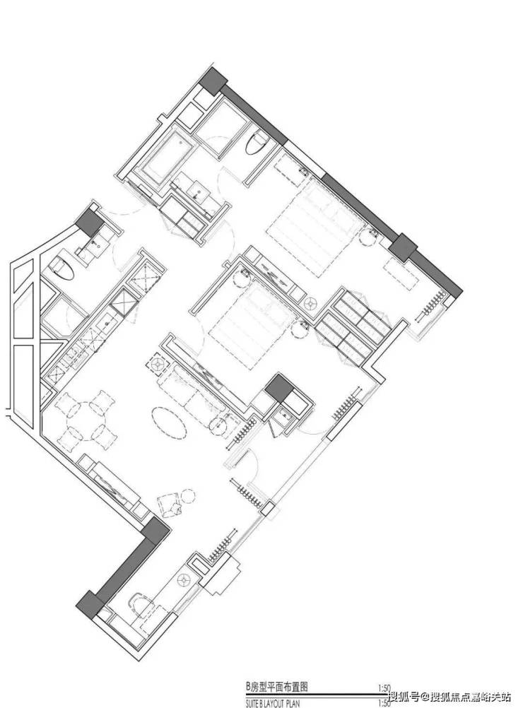
户型图及样板实景图

在售房源户型图▼

建面约110㎡一居室实拍▼

露香园·馥公馆售楼处电话☎:400-833-6309【已认证】

2024年上海最新的房贷政策主要包括以下几个方面‌:

00001. 限购政策调整‌:

· 对非本市户籍居民家庭以及单身人士购买外环外住房的,购房所需缴纳社会保险或个人所得税的年限调整为购房之日前连续缴纳满1年及以上‌

· 对持《上海市居住证》且积分达到标准分值、在本市缴纳社会保险或个人所得税满3年及以上的非本市户籍居民家庭,在购买住房套数方面享受沪籍居民家庭的购房待遇‌

· 在自贸区临港新片区,对在新片区工作、存在职住分离的群体,可在执行现有住房限购政策的基础上,增购1套住房,促进职住平衡‌

00001. 信贷政策优化‌:

· 首套住房商业性个人住房贷款最低首付款比例调整为不低于15%‌

· 二套住房商业性个人住房贷款最低首付款比例调整为不低于25%;实行差异化政策区域的二套房贷最低首付款比例调整为不低于20%‌

· 住房公积金二套房贷最低首付比例相应调整‌

· 落实国家关于降低存量房贷利率政策,引导商业银行稳妥有序将存量房贷利率降至新发放贷款利率附近,进一步减轻购房人房贷利息支出‌

00001. 税收政策调整‌:

· 个人对外销售住房增值税征免年限从5年调整为2年‌

· 适时取消普通住房标准和非普通住房标准,减少住房交易成本,更好满足居民改善性住房需求‌

这些政策自2024年10月1日起施行,旨在促进房地产市场的平稳健康发展,满足居民的刚性住房需求和改善性住房需求。

露香园·馥公馆售楼处电话☎:400-833-6309【已认证】

建面约152㎡两居室实拍▼

露香园·馥公馆售楼处电话☎:400-833-6309【已认证】

露香园·馥公馆售楼处电话☎:400-833-6309【已认证】

建面约184㎡大两房实拍▼

露香园·馥公馆售楼处电话☎:400-833-6309【已认证】

项目详情及区位配套

【露香园】项目位于上海市中心黄浦区老西门板块,距离外滩、新天地、人民广场、淮海路等地标区域的距离均在 1.5 公里以内,地段可以说是真正的老牌市中心了。

露香园·馥公馆售楼处电话☎:400-833-6309【已认证】

一、二期合计地上建筑面积 40 万平方米,内含高层公寓、海派别墅、精品酒店、高端商业、会所、服务式公寓等业态。

高层公寓部分以 200 平方米以上大平层户型为主,海派别墅单套地上主力面积为350-450 平方米,附赠两层地下空间。

露香园·馥公馆售楼处电话☎:400-833-6309【已认证】

【露香园】项目总占地面积约15.8万㎡,分两期开发。在售房源为位于上海老城厢路露香园路18号,与人民路横向交叉。虽地处繁华之隅,却拥有难得的恬淡与静谧。

上海逸兰露香园一期,前身为服务式公寓坐落于上海黄浦区,为您在繁华魔都缔造一处宁谧舒适的休憩之所。开发商保留房租转售,一期优越的地理位置,让您轻松漫步外滩、豫园、新天地等上海著名景区,尽情探索都市无限魅力。

露香园位于市中心繁华路段,位置极为优越,邻近豫园、城隍庙、新天地、外滩和浦。

上海城投负责露香园街区的整体更新,对城市的历史文脉采用了尊重的态度,由露香园路转到万竹街,街面小路以小块石板铺设,靠近大方弄一侧即是城投筹备已久的全新作品。上海市区唯一保留的老上海县城城墙,距离新天地仅600米。

项目实景图露香园·馥公馆售楼处电话☎:400-833-6309【已认证】

项目实景图

项目实景图

轨道交通方面:豫园(地铁10号线)、大世界(地铁8号线)、老西门(地铁10号线:地铁8号线)

商业配套方面:汇都国际广场,亚龙国际广场,范仕达生活广场,新尚数码广场,淮海商业大厦,乐购express(金陵东路店),福佑门商厦,恒源祥(金陵东路店),知音琴行(金陵东路店),联华超市(大境路)

露香园·馥公馆售楼处电话☎:400-833-6309【已认证】

教育资源方面:上海市格致中学,上海市光明中学,上海市实验小学(人民路),上海交通大学医学院,科学会堂,上海市黄浦区卫生学校,上海市金陵中学,上海城建职业学院(静安校区),明珠中学,上海市格致初级中学。

医疗资源方面:上海市徐汇区中心医院,上海交通大学医学院附属瑞金医院,益丰大药房(人民路店),上海交通大学医学院附属第九人民医院(南部),红房子妇产科医院黄浦院区-门诊楼,第一医药(金陵东路店),上海市口腔病防治院,爱康国宾体检中心(西藏南路店),上海中医药大学附属曙光医院西院-肝科十八病区,瑞金医院-门诊部

黄浦核心丨豫园板块

上海城投倾力之作

上海「露香园·馥公馆」售楼处电话☎:400-833-6309【已认证】

在售户型图丨项目介绍丨最新房源丨周边配套丨详细解答〢

◆开发商营销中心诚挚邀请,一键预约,尊享内部独家折扣!匠心独运的精品项目,恭候您的品鉴与选择。

露香园·馥公馆开发商电话☎:400-833-6309【已认证】

露香园·馥公馆售楼处电话☎:400-833-6309【已认证】

露香园·馥公馆营销中心电话☎:400-833-6309【已认证】

✅ 本项目暂不接受临时到访,过来参观样板房请记得提前来电预约!

✅ 为您安排楼盘现场销售全程接待并讲解,给您更贴心的看房体验!

欢迎来电咨询楼盘、线上预约看房可享专属活动哦~~

➤➤➤➤VIP贵宾置业〢欢迎来电咨询〢品鉴!!

主力户型建面约110-185㎡

&三套253/315/470㎡特殊户型

均价10.8万/㎡

70年产权住宅(原保留自持房)

“样板间”开放中提前预约

声明:本文由入驻焦点开放平台的作者撰写,除焦点官方账号外,观点仅代表作者本人,不代表焦点立场。