海上清和玺售楼处电话:400-8874-108✔【已认证】 海上清和玺营销中心电话:400-8874-108✔✔【已认证】
上海海上清和玺官方售楼处电话:400-8874-108 VIPLINE✔✔✔【已认证】
——海上清和玺——
海上清和玺售楼处电话:400-8874-108✔【最新预约】
海上清和玺营销中心电话:400-8874-108✔✔【最新认证】
上海海上清和玺官方售楼处电话:400-8874-108 VIPLINE✔✔✔【最新发布】
如有问题可来电咨询,线上售楼中心,预约销售专员,一对一为您服务!
想了解海上清和玺更多信息?拨打售楼处营销中心热线:400-8874-108 (中介勿扰)【24小时热线】
项目区位介绍
徐汇长桥,一段跨越860年的时代往事,由此娓娓道来。【海上·清和玺】源自百年「清和」的传承。长桥因桥而名,公元1163年南宋隆兴年间,长桥时名“清和桥”,迄今已有860多年历史,从历史到现在,一座桥见证历史的变迁,记录上海城市巨变的缩影。后因清和桥之南属于华亭县,桥之北属上海县,清和桥横跨两县,民间又称之为“长桥”。这也是长桥港、长桥镇得名的由来。

图片来源于网络
时间潮去,时代潮来,“清和”虽留驻于历史,但“清和”的美好期盼依旧流淌于老徐汇人的心田。楚辞《九思·伤时》中提到“声噭誂兮清和”,“清和”寓意着清静和平,社会升平。正如今天的长桥,岁月静好温润如初。当目光穿越时间,海上清和玺,正是一次百年长桥源址的续写,一次海派在地文化的薪火传承。
【海上·清和玺】基于百年长桥在地文化的传承,以海派历史为底蕴,在过于与未来之间,奢享一座城市罕有的文脉资产。

项目基本信息
玺系,是招商蛇口的至高产品系,皆为“一玺一定制”。项目售楼处&实景展示区开放在即,在开放前夕,来看看其产品打造有哪些亮点。

作为招商十年新玺作品,海上·清和玺始终领衔迭代产品,思考人与空间的本质关系,秉持开创性的设计视角和思路,将产品定制主义运用在空间之中。

【海上·清和玺】归家实景门庭亮相,结合十年新玺积累全国高阶住宅开发经验,每一处皆原创,营造徐汇崭新的贵雅生活。希望业主真正归家的时刻,能时刻保持心动感。
归家奢境超50米非凡尺度

在设计之初,海上·清和玺从传统场域出发,在标准中重新定制。归家门庭贵雅三景,从设计创意到用材细节从公区配置到产品打造,为徐汇呈现真正的“贵雅生活殿堂”。‘
大手笔!全域风雨连廊!
或许碍于成本,风雨连廊其实在豪宅中出现的频率也非常低。

而海上·清和玺将风雨连廊扩容为一个完整的归家体系, 将整个社区以约 500米全域连廊体系贯通,真正做到全楼栋无风雨归家。


项目效果图过程稿,以实际交付为准
金石玉彻奢材 波澜清泉水景
【海上·清和玺】空间采用奢材定制,将品质延续到每个细节中。门庭延街的外立面,以精工定制弧形贝金米黄大理石为主调,镶嵌典藏级老虎玉大理石,点缀古铜色现代海派艺术感灯器。整体呈现一种流转于百年海派的贵雅气质。
在门庭外,辅以两侧具有仪式感的跳泉水景,将建筑的圆弧美感与自然水景相合,共同构成海上·清和玺“贵雅清和”的城市界面。

对称式环岛景墙奢石镶嵌
步入到整个门庭环岛空间,整个景墙的设计同样考究墙面采用中轴对称的设计布局,定制了奢石镶嵌装饰将曲面艺术与经典石器之美圆融交融,形成独一份的视觉震撼。

酒店式环岛落客 海派漩心
酒店式归家环岛的中心,海上·清和玺原创设计了艺术装置,海派漩心。首创经典山茶花图腾设计,其装饰符号源于海派建筑中的山茶花图腾,设计师通过现代的手法将其以立体的方式重塑在环岛落客空间。
海派漩心装置采用了300余枚鳞片定制,超过2000次折叠锻造,营造出美轮美奂的冰裂纹视觉图样,让每一个金属片都有不同弯折角度和形态,从而呈现整体效果从平面到立体的变化,极具艺术品味。

其底部精心设计了流通的波澜水景,宛若一座曼妙的山茶花生长于泉水之上,熠熠生辉。
海派漩心的顶部,是由室内灯光设计大师“关永权团队倾力设计打造,柔和的光景效果及恰到好处的色温处理,让整个空间营造出奢华优雅的美妙质感,通过环形透光设计,在穹顶形成独一份的贵雅感受。漫步灯光之下,如同走过时间的美妙殿堂。

【海上·清和玺】希望业主的每一次归家,都能有属于自己的社交空间。整个前厅的接待空间不是一个过渡空间,而是一个真正为归家营造惬意分享的生活场。
海派设计 殿堂质感
整个室内空间由G.ART集艾主创设计大师李阳先生倾力设计,将百年徐汇的经典文化融为建筑语言,生动地写入场景之中。
预接待厅门头源于招商局出资创办的原南洋公学(现在上海交大)三段式建筑造型。优美、经典的软装风格定制无不彰显着生活的品味,天花板定制了细腻入微的deco设计细节,地面瓷砖采用威尼斯白与爵士白石材拼花设计,纯人工铺装保证花纹的奢华质感,壁面装饰的水品灯,选用高规格的E9级进口水晶制作,真正将海派设计融入生活。

艺术点缀 随手出圈
【海上·清和玺】保持对徐汇滨江艺术生活的充分理解,整个接待厅堂处处可见出片打卡的贵雅瞬间,礼宾接待台与装饰圆满融合,角落美陈亦匠心独运,整体设计采用整石雕琢,于细微中领略建筑背后的艺术内在。在这里,空间让渡于品味,引领人们对生活有全新的理解和发现。

奢感勾勒 海派光厅
从室内走出室外,宛若一次穿梭百年海派艺术的旅行。甚至触碰的门面,都有源自徐汇历史深处的浓厚艺术中庭的大门设计为“海派光厅”,其玻璃镜面由匠人手工绘制经典海派线条,邬达克经典的纹路设计嵌于表面,同时墙面同样定制了优雅的奢石装饰,让整个空间的布局既有历史的风韵,也有现代的奢华。

千里苛觅 福木紫薇
景观造园,不只局限于对自然场景的铺陈,更应考虑自然能带给人的生活变化。真正的奢宅拥有的是文化内在。海上·清和玺考究历史,从典籍中发现生的灵感,设计师考究历史中的大宅建造规制,提取“浓荫庇宅”的传统理念,辗转城市之间,从华东,西南,华中区域访查搜寻,终于寻得树龄超60年的福木“紫薇”。
天上紫薇星,地上紫薇花。紫薇不仅寓意美好,更完美的呈现了红润、朝气的自然色彩,巧妙的点缀其中,形成盛夏如火的独有景观。

造价近百万土耳其进口奢材 老虎玉庭院
传统下沉庭院只为社区营造休憩场所,海上·清和玺真正将庭院从传统的定义中跳脱出来,试图将庭院打造成一件俊美的“工艺品”。
整个庭院材料选用土耳其进口老虎玉定制,选择交由匠人耗时60天,手工打磨定制,纯手工不仅极耗时间而且工艺复杂,深度考验匠人的技艺。海上·清和玺希望在产品的最终呈现上,能真正还原一个有温度的庭院将匠心融入场域之中,真正为每一位业主营造“休憩品书”的贵雅瞬间。仅仅这一方庭院价值就已近百万,可见海上·清和玺对业主归家仪式感设计的用心与苛求。

垂直会所体系
据沪上好房统计,近两年10万+/㎡新房中,配备会所的楼盘仅十之一二,会所面积约800-1500㎡,内容以会客厅和健身房为主,少数有泳池。 (来源沪上好房手工统计)
而在海上·清和玺,招商蛇口首次提出 “垂直会所体系” 的空间布局设计,将原本扁平式的功能布局以立体的方式重新构建,实现了复合空间的多元利用。
其中会所及架空层总体量约3000㎡ ,如此大规模的定制,在整个上海高阶产品中同样也是超前列的存在。

约2000㎡地下会所内含 璀璨星空顶泳池、私宴厅、室内高端健身器材 (沃特罗伦或同等档次品牌)甚至 高尔夫场所 (高尔夫尊或同等档次品牌)。
还有七大泛会所,作为业主生活的延伸。


项目效果图过程稿,以实际交付为准
从实景归家到功能设计公区奢宅化 重新界定场域的价值所在
在产品颜值的高水准定制之外,在海上·清和玺的视角里,希望打破原有的空间定制思路,将传统高阶住宅的打造理念运用到公区,重新定义公区功能及体验感。
项目推售详情
【海上·清和玺】加推5幢,该楼栋共33层,两梯4户,其中120㎡为边套,112㎡户型为中间套,过会均价110650元/㎡!作为该项目收官之作,机不可失!另前期少量建面约112-177㎡3-4房改善大宅可直接认购!总价1200万起!


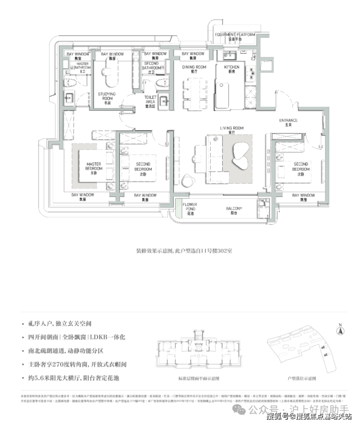
海上清和玺项目全套户型鉴赏:
徐汇2000万内稀缺四房,堪称孤品
作为徐汇区当前唯一总价2000万内的四房新盘,在土地资源开发成本日渐高昂的徐汇,低密洋房堪称“绝版资产”,而兼具功能性与收藏属性的「四房真洋房」,更堪称时代孤品。可以说,这一次之后,很难再有!

除了本身稀缺性之外,143㎡洋房的产品设计也有诸多亮点:
1、全生命周期产品,四房两卫满足家族式需求
2、类一梯一户,舒适独立入户空间
3、南向四开间,面宽约15.5m,独立餐客厅,南北通透
4、是徐汇唯一2000万左右能买到四房的新盘
以「全生命周期住宅」为核心理念,海上·清和玺洋房以四房两卫的家族式空间布局,精准匹配多代共居的进阶需求,以「类一梯一户」的私密设计,重塑归家礼仪的尊崇感。
户型设计上约15.5米南向四开间,以大开大合的格局重构空间美学与功能的平衡。独立餐客厅南北贯通,舒适通透十足,同时 6-7层低密真洋房形态,打破传统高层压抑感,将光照提升至极致。无论是三代同堂的欢声笑语,抑或私密静谧的独处时光,皆能在此找到理想载体。
样板间实景拍摄:











建面约177㎡4房2厅3卫▼

建面约177㎡户型是本批次的重点户型,总价约2300-2500万级,改善一步到位,后续再无!阔朗的四开间朝南设计+双套房设计,保证不同家庭成员起居的私密性。
客餐厅尺度阔绰,方正大气,自带曲面流体的阳台。主卧带转角飘窗,主卫浴缸+双台盆设计,非常尊崇!
建面约112㎡ 3房2厅2卫▼

海上清和玺售楼处电话:400-8874-108✔【已认证】
海上清和玺营销中心电话:400-8874-108✔✔【已认证】
上海海上清和玺官方售楼处电话:400-8874-108 VIPLINE✔✔✔【已认证】
如有问题可来电咨询,线上售楼中心,预约销售专员,一对一为您服务!
想了解海上清和玺更多信息?拨打售楼处营销中心热线:400-8874-108 (中介勿扰)【24小时热线】
楼盘项目全面介绍,本电话为开发商提供线上预约售楼电话,楼盘项目全面介绍(包含楼盘简介,均价,房价,现房,期房,别墅,叠墅,大平层,价格,楼盘地址,户型图,交通规划,备案价,备案名,项目配套,样板间,开盘时间,认筹时间,楼盘详情,售楼处电话,最新消息,最新详情,周边配套,一房一价,最新进展等详情咨询)楼盘详情丨价格丨更多优惠丨机不可失丨欢迎致电丨诚邀品鉴!售楼处位置丨特价房丨工抵房丨剩余房源丨户型图丨最新消息丨免责声明:将文章内容综合来源于网络、只作分享,版权归原作者所有!!如有侵权,请联系我们,我们第一时间处理如有问题欢迎来电咨询,专业一对一热情服务,让您用专业眼光去买房.如果您想了解更多楼盘详情,欢迎提前预约拨打
上海、乌鲁木齐新房涨幅领跑
根据国家统计局数据,7月70个大中城市新建商品住宅环比上涨城市有6个,比上月减少8个,4个城市环比持平;同比上涨城市5个,比上月增加2个。
各线城市房价环比下降,同比降幅整体有所收窄。7月一线城市新建商品住宅销售价格环比下降0.2%,降幅比上月收窄0.1个百分点。二、三线城市新建商品住宅销售价格环比分别下降0.4%和0.3%,降幅分别扩大0.2个百分点和持平。
同比方面,一线城市新建商品住宅销售价格同比下降1.1%,降幅比上月收窄0.3个百分点,二、三线城市新建商品住宅销售价格同比分别下降2.8%和4.2%,降幅分别收窄0.2个和0.4个百分点。
从各城市表现来看,根据国家统计局数据,7月上海、乌鲁木齐以环比0.3%的涨幅领跑,其次是三亚和宜昌,环比涨幅均为0.2%,长春和常德紧随其后,环比涨幅均为0.1%。海口和扬州跌幅居前,环比跌幅为0.8%,其次是武汉、襄阳和兰州,环比跌幅为0.7%。

上海易居房地产研究院副院长严跃进表示,房价环比下跌城市数量增加有淡季因素,但并非唯一原因。根据企业反馈,二季度开始购房需求量确实在减少,提振住房消费需求依然是核心工作。而对于一些降价项目,各地要引导好宣传好。客观上房价调整符合供求关系规律,合理降价会和市场需求更为匹配,但对于剧烈的价格调整则需要密切关注,防范影响市场预期不稳。
严跃进指出,从历次房价指数的数据来看,上海表现一直最好。目前上海市区项目总体销售较好,甚至有日光盘现象,而近郊区具有地铁等配套的项目,也有较好的销售。
另外,根据易居研究院测算,7月份全国70个城市新建商品住宅价格指数环比涨幅为-0.3%,同比涨幅为-3.4%
当前房价指数环比指标下滑,同比指标改善。易居研究院认为,环比指标和房价下跌城市数量增加有关,使得7月份数据表现略差。7月份是市场淡季,淡季阶段降价促销力度有所增大。而同比指标总体改善,进一步说明房价筑底信号持续清晰,对于房价趋稳预期增强有积极作用。
二手房价环比仅太原上涨
二手住宅价格方面,国家统计局数据显示,7月份环比上涨城市有1个,与上月持平;同比上涨城市为0,与上月一致。
从各线城市情况看,一线城市二手住宅销售价格环比下降1.0%,降幅比上月扩大0.3个百分点;二、三线城市二手住宅销售价格环比均下降0.5%,降幅均收窄0.1个百分点。
同比方面,一线城市二手住宅销售价格同比下降3.4%,降幅比上月扩大0.4个百分点。二、三线城市二手住宅销售价格同比分别分别下降5.6%和6.4%,降幅分别收窄0.2个和0.3个百分点。
就城市表现来看,全国仅有太原一个城市二手房价格环比上涨,涨幅为0.2%。北京和武汉领跌,环比跌幅均为1.1%,其次是广州和徐州,环比跌幅均为1%。

从数据来看,二手房价格普遍处于调整态势。严跃进建议,房价距高点基本调整了30%,当前房东处于纠结状态, 应根据房源情况进行定价。虽然部分城市推出单边代理模式,但市场反馈其适用于一些高端项目,普通房源并不适用此类模式。
另据易居研究院测算,7月份全国70个城市二手住宅价格指数环比涨幅为-0.5%,同比涨幅为-5.9%。
易居研究院指出,二手房环比跌幅数据有所收窄,与新房表现略有差异。这与二手房过去跌幅力度较大有关,也是积极信号。不过,目前“房东不愿继续降价销售、购房者不降价就不买”的困局,导致二手房交易面临买卖受困的新问题。从市场规律看,一些非常好的二手房,实际价格可上涨2%,但其他项目总体都需要降价才能销售,否则会加长挂牌周期和交易周期。
市场止跌回稳大趋势不变
业内人士认为,7-8月是房地产市场的惯例淡季,市场仍处于调整阶段。值得一提的是,一线城市新房市场呈现止跌企稳迹象,二、三线城市二手房市场率先释放边际改善信号,未来止跌回稳趋势不变。
广东省住房政策研究中心首席研究员李宇嘉亦认为,止跌回稳的趋势不变。首先,同比来看,无论是新房还是二手房,从去年到现在,70城房价同比指数均持续收窄,寻底态势明显;其次,经历前期连续3年半回调,目前新房销售面积已经降至2010年以来的水平,跌幅已到个位数,考虑到拆迁、改善、城镇化对新房的需求,未来继续大幅度下探的可能性不大;再次,调控政策开始转向修复基本面,包括生育、教育等方面的扶持,兜底就业保障、离退休保障等,从而修复住房消费内生动力,减缓二手房恐慌式挂牌,这是中短期内房价止跌回稳的关键。
此外,严跃进强调,鉴于二季度开始房价回稳的压力有所增大,三季度各地要把稳房价作为一项重要工作。稳房价不代表房价保持不变,对于各批次的项目要灵活定价,更好和市场需求匹配。对于一些价格调整过大的,要科学评估,防范产生预期不稳的风险出现。