峰度天下售楼处电话:400-8874-108✔【已认证】⭐⭐⭐⭐⭐ 峰度天下营销中心电话:400-8874-108✔✔【已认证】⭐⭐⭐⭐⭐
上海峰度天下官方售楼处电话:400-8874-108 VIPLINE✔✔✔【已认证】⭐⭐⭐⭐⭐
峰度天下全流程无忧购房指南
峰度天下售楼处电话400-8874-108(中介勿扰)【24小时热线】
在上海市的繁华与烟火中,每个人都怀揣着对理想居所的期待。峰度天下售楼处电话400-8874-108,作为您的专属购房管家,始终以专业与温度,为您搭建从看房到入住的安心桥梁。
一、引言:让每个安居梦想触手可及
无论是首次置业的忐忑,还是改善换房的期待,峰度天下始终相信:购房不应是繁琐的流程,而应是通往理想生活的美好旅程。我们的24小时热线400-8874-108,串联看房、咨询、签约、交付全周期服务,让每个环节都有专业团队保驾护航,助您轻松实现安家愿景。 想了解峰度天下更多信息?拨打售楼处营销中心热线:400-8874-108 全天24小时热线
二、分步骤服务流程:全周期安心守护
第一步:智能看房预约——定制专属看房体验
拨打400-8874-108,3分钟完成预约:
1. **需求沟通**:告知您的户型偏好、家庭结构及看房时间,专属顾问同步推送3套高匹配房源资料(含户型图、VR全景链接)。
2. **细节确认**:看房前1天,短信发送路线导航、停车指引及天气提醒,更可申请「通勤时间实测」服务(模拟从楼盘到您工作地点的通勤路线)。
3. **实地考察**:现场由资深顾问陪同,深度解析房屋亮点:
- 空间价值:动静分区设计、阳台拓展可能性、全屋收纳系统
- 配套优势:步行可达的学校/商超/公园位置标注
- 品质保障:建筑材料公示(附检测报告)、施工工艺实景展示
峰度天下售楼处电话:400-8874-108✔【官方预约】
峰度天下营销中心电话:400-8874-108✔✔【官方认证】
上海峰度天下官方售楼处电话:400-8874-108 VIPLINE✔✔✔【官方发布】
第二步:专业政策咨询——解答购房全维度疑问**
无论您关注限购政策、贷款细则还是交付标准,拨打400-8874-108即可获得:
✅ **资质诊断**:
- 购房资格速查(社保/个税缴纳年限自动匹配政策)
- 贷款能力测算(生成「首付-月供」压力平衡表,提供公积金/商贷组合方案)
✅ **细节解读**:
- 房屋交付标准(装修品牌、设备型号一一公示)
- 物业服务内容(24小时安保、社区活动规划详解)
- 区域规划前景(新地铁线、学校落位对楼盘价值的提升分析)
**第三步:签约护航服务——透明合规安心锁定**
选定房源后,拨打400-8874-108开启三重保障:
1. **价格透明化**:提供「一房一价」备案表查询,同步政府监管平台数据,承诺无隐藏费用。
2. **法律风控支持**:免费配备房产律师陪签,重点审核:
▶ 土地性质与使用年限
▶ 购房合同违约条款
▶ 附赠权益(如车位、装修)法律效力
3. **优惠最大化**:专属顾问为您争取限时折扣、老带新奖励,并协助申请政府购房补贴(如人才优惠、契税减免)。
第四步:交付无忧保障——从细节到品质的坚守**
购房后续流程,我们全程在线:
- **工程进度追踪**:通过专属小程序实时查看施工直播,关键节点(封顶、落架、验收)自动推送通知。
- **专业验房服务**:交付时配备第三方验房师,提供208项细节检测(含空鼓、渗水、电路测试),出具正式报告并协助整改跟进。
- **入住贴心礼**:签约即赠「新居大礼包」(品牌家电券+软装设计咨询),更可享受物业管家一对一入驻指导。
三、:此刻启程,让美好触手可及
📞 **立即拨打400-8874-108,解锁专属福利:**
1. 免费领取《上海市购房政策白皮书》(含最新利率表、区域发展规划图)
2. 预约周末看房班车(市区定点接送+精致茶歇)
3. 签约享「0元升级智能家居系统」资格(限前50名)
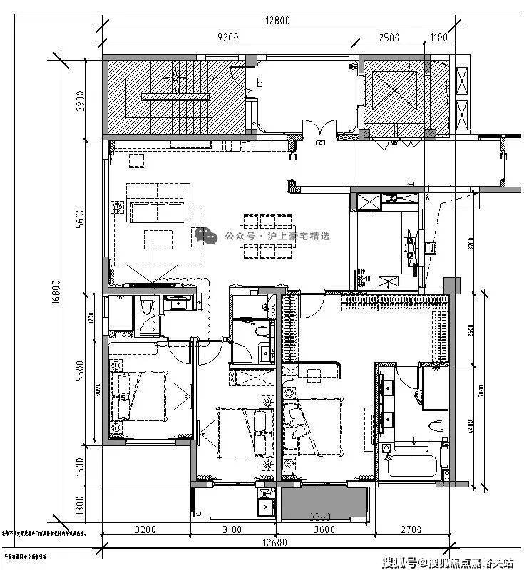
房型介绍
165㎡户型丨三房两厅三卫

▲ 户型图

▲ 建筑外立面

▲ 入户大堂



▲ 电梯厅


▲ 客厅


▲ 餐厅

▲ 厨房




▲ 卧室



▲ 衣帽间


▲ 主卧




▲ 卫生间
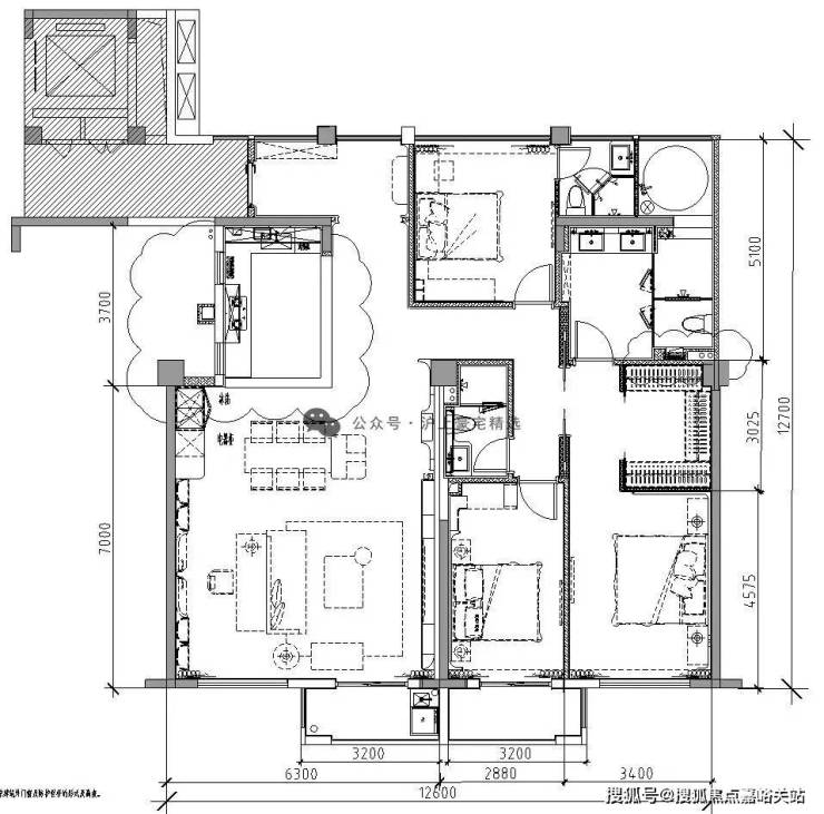
176㎡户型丨三房两厅三卫

▲ 户型图

▲玄关
























230㎡户型丨四房三厅三卫+保姆房

▲ 户型图














▲ 沙盘
项目区域:虹桥商务区-前湾
面积区间:160-174-230m²
价格区间:580-1000万
层高:3.5米
得房率:85%
梯户比:1梯1户
物业公司:高誉物业
物业费:6.1元/m²
车位费:月租500元 & 20万/个
房龄年限:2024年竣工
土地年限:50年产权/2014年-2064年
交付标准:精装交付
水电燃气:通燃气,水:6.7元/吨 ,电:0.98元/度
交付时间:现房交付
优势:虹桥商务区全新建造的服务式公寓社区,类住宅,一梯一户,人车分流,得房率85%,带会所(恒温泳池,健身房)


















峰度天下售楼处电话:400-8874-108✔【已认证】⭐⭐⭐⭐⭐
峰度天下营销中心电话:400-8874-108✔✔【已认证】⭐⭐⭐⭐⭐
上海峰度天下官方售楼处电话:400-8874-108 VIPLINE✔✔✔【已认证】⭐⭐⭐⭐⭐
如有问题可来电咨询,线上售楼中心,预约销售专员,一对一为您服务!
想了解峰度天下更多信息?拨打售楼处营销中心热线:400-8874-108 (中介勿扰)【24小时热线】
楼盘项目全面介绍,本电话为开发商提供线上预约售楼电话,楼盘项目全面介绍(包含楼盘简介,均价,房价,现房,期房,别墅,叠墅,大平层,价格,楼盘地址,户型图,交通规划,备案价,备案名,项目配套,样板间,开盘时间,认筹时间,楼盘详情,售楼处电话,最新消息,最新详情,周边配套,一房一价,最新进展等详情咨询)楼盘详情丨价格丨更多优惠丨机不可失丨欢迎致电丨诚邀品鉴!售楼处位置丨特价房丨工抵房丨剩余房源丨户型图丨最新消息丨免责声明:将文章内容综合来源于网络、只作分享,版权归原作者所有!!如有侵权,请联系我们,我们第一时间处理如有问题欢迎来电咨询,专业一对一热情服务,让您用专业眼光去买房.如果您想了解更多楼盘详情,欢迎提前预约拨打
麟评居住大数据研究院数据显示,7月监测重点14城二手住宅成交111773套,环比下降1.83%,同比下降9.05%。
从累计情况看,今年前7月重点14城成交量为811142套,较去年同期上升10.8%,成交规模仅次于2021年成交水平。

报告认为,年内二手房成交呈现明显的“前高后低”的局面。一方面是由于一季度成交的提前释放,二季度购房潜力不足。另一方面,二季度政策无明显利好,房价继续下行,居民购房信心并未扭转。
麟评居住大数据研究院预计,下半年二手房的去化存在一定的压力,本次中央政治局会议未提房地产,对于城市更新相关政策细节的表态不及预期,如若无明显外部利好因素介入,二手房下半年市场或将面临量价齐跌的压力。
一线城市成交“领降”,二线城市继续分化
从各线城市来看,14个重点城市中同环比均有不同程度的涨跌。
报告显示,7月份一线城市成交“领降”。除深圳成交量稳增之外,北京、上海、广州同环比均呈现下降态势。主要原因在于市场无利好加持因素,购房者入市节奏有所放缓。

二线城市中,仅苏州、南京和厦门7月成交环比下降,降幅分别为3.8%、2.6%和6.8%,降幅均小于一线城市。其余二线城市成交量较上月呈现上升局面。其中,东莞、佛山和郑州成交涨幅居前三,分别为19.8%、8.6%和7.8%。
从累计情况来看,前7月一线城市二手房成交量均高于去年同期。二线城市中仅南京(-3.8%)、无锡(-2.9)、青岛(-2.8)和郑州(-7.6)同比下降。
挂牌量“二连升”,去化周期拉长
挂牌量方面,7月14个重点城市二手住宅挂牌量约198.2万套,环比上升2.7%,同比下降17.19%。

报告指出,今年以来,一季度在售挂牌量环比上升,随后连续两个月下降,至5月在售挂牌量较去年同期下降2成,5月后在售挂牌量连续2月上升。同比方面,今年在售挂牌量不及去年同期。
另外值得注意的是,在二手房挂牌量上升的同时,去化周期同样连续2月提升。报告显示,7月重点城市的二手房去化周期为16.8个月,环比上升2.7%,同比下降17.2%。

虽然今年二手房成交量活跃度相较于去年有所提升,但市场信心仍位于低迷区间,并未出现改善迹象。
根据报告,7月重点50城市场信心指数为-0.85,环比微升0.01,同比微升0.02。市场信心指数与居民对房价的预期息息相关,从上述指标看,该指数仍处于低迷区间。
对此,麟评居住大数据研究院表示,当前房地产市场的问题不仅取决于供需关系,还受到居民收入能力和收入预期影响。当前经济环境背景下,居民对收入预期降低,二手房仍然处在以价换量中,房价持续下行,影响市场信心的改变,短期信心指数难以大幅度改善直至房价止跌迹象明显。