江湾鸿玺售楼处电话:400-8874-108✔【已认证】⭐⭐⭐⭐⭐ 江湾鸿玺营销中心电话:400-8874-108✔✔【已认证】⭐⭐⭐⭐⭐
上海江湾鸿玺官方售楼处电话:400-8874-108 VIPLINE✔✔✔【已认证】⭐⭐⭐⭐⭐
——江湾鸿玺——
江湾鸿玺售楼处电话:400-8874-108✔【最新预约】⭐⭐⭐⭐⭐
江湾鸿玺营销中心电话:400-8874-108✔✔【最新认证】⭐⭐⭐⭐⭐
上海江湾鸿玺官方售楼处电话:400-8874-108 VIPLINE✔✔✔【最新发布】⭐⭐⭐⭐⭐
如有问题可来电咨询,线上售楼中心,预约销售专员,一对一为您服务!
想了解江湾鸿玺更多信息?拨打售楼处营销中心热线:400-8874-108 (中介勿扰)【24小时热线】
宝山高境,3号线殷高西路站新盘「江湾鸿玺」即将入市!预计将推出套均200㎡大平层!

户型图如下:
(仅供参考,最终以实际为准)
建面约200m²4房户型

一房一价表如下:

说到高境,作为宝山近市中心的板块,一直以来缺乏新房,上一次主力供应要追溯到2015年的泰禾红御,目前该项目是高境乃至整个宝山标杆,部分房源挂牌价9万+/㎡。
回到江湾鸿玺,项目位于殷高路逸仙路路口,其实就是很多人说的高境欣苑二期,在高境欣苑中又开发了一栋楼。



首层为商业配置,未来将引入运动健身、休闲会馆、便利商超等功能设施,物业提供24H管家式服务。
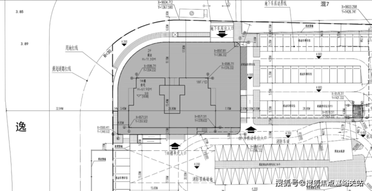
规划设计图:

我们放大看:这栋楼共18层,估计2梯2户,据悉首层为商业配置,将来可能引进运动健身、休闲会馆、便利商超等。
还有两套自持,所以可售为32套,户型为建面约200㎡大平层。

项目距离3号线殷高西路站仅100米,1公里直达18号线殷高路站,双轨并行锋速通达的时间效率;书香萦绕的教育高地,科创引领、产业先行的核心经济圈。此外,通过逸仙路高架,可以提升通行时效,快速连接五角场合生汇、百联又一城、万达广场、虹口龙之梦等中大型商业综合体。
生活配套成熟,项目西侧就是一个商场,吃喝玩乐都能满足,新业坊·源创潮流、精致元素的加持也为板块注入更多活力。
殷高西路上还有永辉、长江国际、景瑞生活广场等,生活很方便。

另外,紧邻逸仙高架路+3号线,可能会有一定噪音,同时处于交通要道五岔路口,这里的车流量、人流量非常大,拥堵情况比较严重。
江湾鸿玺售楼处电话:400-8874-108✔【已认证】⭐⭐⭐⭐⭐
江湾鸿玺营销中心电话:400-8874-108✔✔【已认证】⭐⭐⭐⭐⭐
上海江湾鸿玺官方售楼处电话:400-8874-108 VIPLINE✔✔✔【已认证】⭐⭐⭐⭐⭐
如有问题可来电咨询,线上售楼中心,预约销售专员,一对一为您服务!
想了解江湾鸿玺更多信息?拨打售楼处营销中心热线:400-8874-108 (中介勿扰)【24小时热线】
楼盘项目全面介绍,本电话为开发商提供线上预约售楼电话,楼盘项目全面介绍(包含楼盘简介,均价,房价,现房,期房,别墅,叠墅,大平层,价格,楼盘地址,户型图,交通规划,备案价,备案名,项目配套,样板间,开盘时间,认筹时间,楼盘详情,售楼处电话,最新消息,最新详情,周边配套,一房一价,最新进展等详情咨询)楼盘详情丨价格丨更多优惠丨机不可失丨欢迎致电丨诚邀品鉴!售楼处位置丨特价房丨工抵房丨剩余房源丨户型图丨最新消息丨免责声明:将文章内容综合来源于网络、只作分享,版权归原作者所有!!如有侵权,请联系我们,我们第一时间处理如有问题欢迎来电咨询,专业一对一热情服务,让您用专业眼光去买房.如果您想了解更多楼盘详情,欢迎提前预约拨打
房地产行业与国民经济诸多领域联系紧密,同时对社会、文化和技术等方面影响深远。建立与环境和谐共生的运营模式、与社会协调发展的共赢理念、与各利益相关方共同成长的公司治理结构,是房地产公司实现长期可持续发展的重要战略路径。
在此背景下,近日,由中国房地产业协会指导,上海易居房地产研究院和上海克而瑞信息技术有限公司共同发布了《2025房地产公司ESG测评研究报告》。
ESG(环境、社会、治理)作为评估企业可持续性、社会责任和道德风险的重要体系,涵盖资源消耗、人力资源管理、治理结构等多方面,其研究成果可为投资者判断房企发展潜力、房企自身实现可持续发展与提升竞争力、政府制定行业政策提供重要依据。
据了解,本次房地产公司ESG测评研究以发布或提供ESG相关报告或内容的49家典型房企为样本,遵循数据客观、方法科学、立场公正的原则,对房地产公司进行客观梳理,并在深度跟踪研究企业的基础上发布。




ESG测评分析——环境维度
ESG体系中,环境范围的主要议题包括温室气体排放管理、废弃物排放管理、自然资源利用、绿色建筑探索等。ESG强调的生态环境保护,与我国经济高质量发展的道路不谋而合,房企在环境层面的投入有助于吸引重视可持续发展的客户及投资者,提升市场竞争力。
2024年,49家典型房企ESG报告的环境信息披露质量整体有所提升。同时有更多企业制定环境管理目标并积极落实,其中34家房企设立了环境管理目标,占比为69%,较上年提升4个百分点。
49家典型房企中,19家房企环境数据覆盖指标全面,包含了温室气体排放、废弃物排放、水资源消耗、绿色建筑四个方面相关内容,占比为39%,较上年提升9个百分点;20家房企环境数据覆盖指标相对较少,占比为41%,较上年下降1个百分点。从报告的完整度和丰富度来看,披露环境信息数据的房企已基本形成信息披露意识。

在披露指标的口径方面,房企间环境数据统计范围仍存在较大差距,无法有效体现房企经营过程中的温室气体排放总量、废弃物排放量、耗水量等信息。
49家典型房企中,有39家发布温室气体排放数据,披露率为80%,较上年提升9个百分点。有27家披露了相对完善的废弃物排放量数据,披露率为55%,与上年基本持平。有33家披露了总耗水量,披露率为67%,较上年提升14个百分点。仅统计已披露环境数据的房企,2024年温室气体排放总量已经超过500万吨,废弃物排放总量超过90万吨,总耗水量超过1.56亿吨。


在环境维度方面,总体来看,目前企业缺少按标准披露数据的动力,环境数据披露率较低,虽然2024年典型房企的指标披露率较上年均有所提升,但整体数据披露率仍有提升空间。从企业层面来看,环境数据收集工作存在较大难度、绿色建筑项目开发成本相对较高,企业内生开发动力不足等问题依然突出。
监管部门对信息披露的激励机制、企业完善数据采集方法和优化绿色建筑技术体系方面,都还有很大的提升空间。
ESG测评分析——社会维度
社会维度要求企业在追求经济利益的同时,还要关注在经营过程中是否处理好与政府、合作伙伴、员工、客户、社会和公众之间的关系,是否回应利益相关方诉求和期望,从而对社会产生更为积极的影响。
通过对49家典型房企2024年ESG相关报告进行统计,发现房企对社会数据披露差异性较大,28家企业数据披露较为全面,基本涵盖了员工权益、供应链管理、产品责任、反贪污、社会责任等多方面;13家企业数据披露情况一般,细分指标覆盖率较低;8家企业数据披露情况不理想,只涉及员工权益和社区责任方面1~3个指标的情况。
从员工权益来看,在49家典型房企ESG相关报告披露的数据中,筛选出员工规模和结构、健康与安全、权益及福利、员工培训等具体指标,综合分析房企在保障员工权益方面的表现。整体而言,各项指标披露率较前两年有所提高,房企较为重视员工健康安全,能基本保障员工法定权益,但在女性就业权益、员工满意度等方面关注度降低。

在供应链管理方面,管理系统不断优化和完善,但培训覆盖率较低。有39家房企在2024年ESG相关报告中描述建立供应链管理机制,保障供应质量与安全。有23家企业明确表示向供应商开展培训,致力于提升供应链可持续性,披露率为46.9%。有30家企业表示与供应商签订了《廉政责任承诺书》,构建阳光、透明的采购环境。
在产品责任方面,产品质量管控和服务有待提高,客户满意度有所降低。有35家房企在ESG报告中描述了保护客户隐私的规章制度和措施;有11家企业披露了产品安全或健康有关的违规情况;有23家房企披露了接获关于产品及服务的投诉数目;有33家企业针对客户投诉建立投诉响应及处理机制;有26家房企披露了客户满意度调查相关数据。
在反贪污方面,持续做好廉洁风险防控,加强廉洁文化建设。有28家房企披露了2024年反贪腐相关数据披露,数量较上年有所增加;39家房企开展了多次反贪腐、反贿赂等廉洁文化宣传与培训,加强廉洁文化建设;32家企业明确了关于反贪腐防范措施、举报保护机制以及相关执行及监察方法。
在社会责任方面,典型房企公益慈善方面投入减少,"保交房"持续推进。有37家房企披露了在2024年公益慈善事业上投入的资金额度。综合来看,更多企业选择投入更多人员和时间在公益慈善活动中,或者通过捐赠物品替代直接捐款。在公益行动上,有24家企业在ESG相关报告中披露了在公益活动中投入的人数和时长。

2024年,房企响应国家政策号召,推进保障房开发和建设工作,保障性租赁住房建设和供应持续增加。49家典型房企中,有19家披露了保障性住房建设的相关数据。在"保交付、稳民生"政策导向下履行项目高质量交付责任方面,有20家房企披露了2024年项目交付的相关数据。
总的来看,受房地产行业持续下行影响,企业经营困难,不断转型调整,对社会责任相关议题重视度有所降低,虽然能基本保障利益相关方的法定权益,但在多元化雇佣、回应员工诉求、供应商管理培训和产品责任等方面仍存在较多问题。
ESG测评分析——治理维度
良好的企业治理是房企实现可持续发展的基石。从2024年49家典型房企股权结构、董事会独立性与多元化、风险防控、廉洁建设、知识产权保护、信息披露与利益相关者沟通、可持续发展建设等多方面表现来看,在相关制度建立健全和政策加持下,房企治理水平总体持续提升。
在股权结构方面,房企股权结构优化,制衡性股权结构占比持续提升。根据对49家典型房企股权结构统计,第一大股东控股比例在50%以上的集中型股权结构房企有17家,占比约34.7%,较上年下降约7.1个百分点;第一大股东控股比例介于10%~50%的制衡型股权结构房企有32家,占比约65.3%,较上年提升约8.9个百分点。

在风险防控方面,房企风控意识继续提高,大部分房企已建立相对完善的风控体系。根据49家典型房企2024年ESG相关报告,有45家房企披露了风险防控方面的信息,占比约91.8%。其中,有30家房企已建立包括风险识别、评估、防范、应对等在内的风险防控体系,并持续提升企业风险管控能力,风险防控意识很强。
在商业道德方面,房企廉洁建设和反腐工作持续推进,知识产权管理制度建设进展较慢。根据49家典型房企2024年ESG相关报告,有43家房企披露了廉洁建设和反腐工作的相关信息,占比约87.8%。但仍有超过四成房企ESG报告或企业年报中缺少对知识产权保护相关信息的披露,知识产权管理制度建设总体仍显薄弱。
总体来看,典型房企在治理维度方面,推动股权分散化、提升董事会多元性、将廉洁建设和反腐工作落到实处、加强知识产权和创新管理、增加非财务信息披露等方面,都有很大的提升空间。

一、建设绿色低碳的美丽城市,开发企业的ESG是关键环节
2025年7月召开的中央城市工作会议提出城市建设七大任务之一是着力建设绿色低碳的美丽城市。巩固生态环境治理成效,采取更有效措施解决城市空气治理、饮用水源地保护、新污染物治理等方面的问题,推动减污降碳扩绿协同增效,提升城市生物多样性。房地产与城市发展休戚相关,城市界面的变化某种程度上也是房地产市场发展的结果。房地产开发过程中,涉及大量的水资源消耗、温室气体排放、有害废弃物排放等,房地产企业环境问题的治理对于城市发展影响巨大。单个企业重视环境议题是承担社会责任的表现,是企业治理现代化的标志,房地产企业群体都重视环境议题,就会形成合力,在社会层面、城市建设层面形成正向推动,有利于实现中央确定的着力建设绿色低碳美丽城市的工作目标。
二、相关行业测评标准发布,促进房地产企业ESG工作进一步规范
2025年1月17日,由中国房地产业协会技术工作委员会、北京中房研协技术服务有限公司等单位制定的《房地产企业环境社会治理(ESG)评价标准》,经中国房地产业协会标准化管理委员会审查通过,自2025年3月1日起实施。该评价标准采用三级评级体系指标构成:一级指标3项,即“环境、社会、治理”;二级指标17项;三级指标77项,是获得评分的基础性评价指标。
该评价标准的出台,有利于促进房地产企业的ESG披露工作。2024年4月份,上海、深圳和北京三大证券交易所正式发布《上市公司可持续发展报告指引(试行)》,明确一定范围内的上市公司应当披露《可持续发展报告》,其中也包括一些重点房地产开发企业。完成报告披露是一方面,数据披露是否完备和规范是另一方面。中国房协发布的测评标准,对每一项指标的披露情况进行打分,意味着数据披露越详尽,数据表现越好的房地产开发企业,测评得分越高,评级也就越高。无论是投资者还是购房者,能够通过对房企ESG测评结果的发布,获得客观的投资参考信息,从而做出相应决策。同时也会促进房地产企业ESG披露工作进一步规范。
三、不同企业披露数据口径差异需要统一
在披露指标的口径方面,虽然A股和港股去年都发布了规范“指引”,但上市房企信息披露口径不统一的问题依然存在。无论是温室气体排放,能源消耗情况还是废弃物排放情况,普遍存在披露口径不统一,数据单位不统一的问题。建议相关部门继续完善ESG报告相关披露规则,并加大执行落地的力度。行业协会发布的ESG测评标准,也在一定程度上鼓励和引导企业发布相对统一的指标数据,以便增加数据的可比性,参考性。
四、典型房企社会责任方面需要进一步提升
受房地产行业持续下行影响,企业经营困难,不断转型调整,对社会责任相关议题重视度有所降低。员工雇佣方面,典型房企在职员工数量连续几年下降,而女性员工占比的下降相对更多。供应链管理方面,由于法律意识淡薄,劳资纠纷引发的停工、群访、延期交付等现象对社会稳定造成影响。产品交付方面,部分知名企业也出现了房屋渗水漏水、纸皮房门、楼板开裂,墙体鼓包、装修材料低劣等严重质量问题,这与当前国家大力倡导的建设“好房子”政策导向不合拍。
五、典型房企整体治理水平提高,个别领域的问题短期难解决
2024年,49家典型房企在董事会独立性与多元化、风险防控、廉洁建设、知识产权保护、信息披露与利益相关者沟通、可持续发展建设等多方面的治理水平总体持续提升。
综合看,以典型房企为代表的开发企业群体在治理维度还存在若干问题。董事会独立性与多元化水平有待提升,尤其是发挥独立董事在独立决策和监督作用,制衡大股东权力保护中小股东权益等方面,受客观因素影响,其制度设计与实际效果还存在较大差距,且短期内难以改善。廉政建设和反腐败工作流于形式、缺乏有效监督;仍有超过40%的房企没有将知识产权保护纳入企业ESG管理重要内容,知识产权保护机制缺失严重,既有保护企业内部自有知识产权不被侵权的要求,也有避免陷入外部知识产权使用纠纷甚至涉诉的要求。