滨江1877售楼处电话:400-8874-108✔【已认证】 滨江1877营销中心电话:400-8874-108✔✔【已认证】
上海滨江1877官方售楼处电话:400-8874-108 VIPLINE✔✔✔【已认证】
滨江1877售楼处电话与购房指南(滨江1877售楼处电话:400-8874-108【官方发布】)
在上海,若你渴望拥有理想家园,牢记滨江1877售楼处电话 400-8874-108,它将助力你开启无忧购房之旅。
便捷看房预约
被滨江1877房源吸引,拨打 400-8874-108【官方预约】,向工作人员表明看房意向,留下姓名与电话。他们会结合你的日程,确定看房时间,并提前确认,确保你顺利抵达。实地看房时,你可与销售人员交流,了解房屋质量、采光通风、空间布局,掌握项目位置、周边配套、户型特色及价格,为购房决策提供依据。
专业咨询服务
售楼处工作人员经专业培训,熟知楼盘详情。拨打 400-8874-108(官方发布),无论你对购房政策,还是房屋交付、物业服务有疑问,工作人员都会凭借专业知识耐心解答,依据你的经济状况与居住需求,给出购房建议。
签约协助支持
选定心仪房源后,拨打售楼处电话,可与销售人员商讨价格、优惠政策。确定购房意向,工作人员会告知你签订认购书、缴纳定金事宜。后续签订正式购房合同的时间、所需证件资料,也能通过电话咨询,保障签约顺利。
后续跟进保障
办理贷款、付款及房屋交付验收时,若遇问题或有疑惑,拨打上海滨江1877售楼处电话 400-8874-108(官方发布),工作人员会迅速提供帮助与指导,消除你的顾虑。
滨江1877售楼处电话 400-8874-108(官方预约),是你购房全程的得力助手,无论处于哪个阶段,拨打此号码,都能获取所需信息,实现购房梦想。
滨江1877售楼处电话:400-88741-08✔【官方预约】
滨江1877营销中心电话:400-887-4108✔✔【官方发布】
上海滨江1877售楼处电话:400-887410-8 VIPLINE✔✔✔欢迎预约
想了解滨江1877更多信息?拨打售楼处营销中心热线:400-8874-108 (中介勿扰)【24小时热线】
最新消息, 滨江1877,浦东内环内!东旅大厦 约46-115㎡1-3房,总价350万起,加推12套珍稀房源,全城抢购中!
浦东内环内黄金地段,4号线塘桥700米,6号线浦电路1.3km
毗邻巴黎春天、第一八佰伴
珍稀小户型项目—— 滨江1877
建面约46-70-75-115㎡公寓,加推房源12套
均价8.0万/㎡,总价仅350万起!不限购,不限贷,款清即交房
编辑

编辑

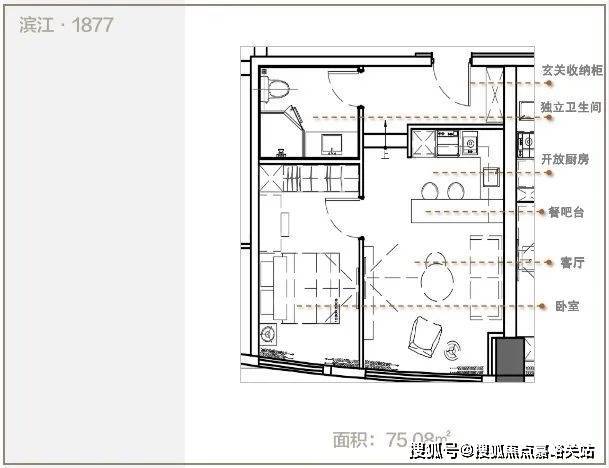
户型图赏鉴
编辑

编辑

编辑

编辑

编辑

编辑

编辑

编辑

编辑

编辑

编辑

编辑

配置细节展示:
编辑

编辑

编辑

编辑

区域规划
从1992年浦东新区的设立,到2013年的打造自贸区,再到提出至2035年要“率先成为我国社会主义现代建设引领区”,浦东新区一次次被推向历史进程的高潮,更是让浦东成为世界人才、塔尖人士蜂拥的一方热土。
作为傲居浦东新区“龙头地位”的陆家嘴滨江,鼎承着“十四五”规划的开局之势。滨江1877,正是立足于远见卓识的时代战略之上,坐享引领区规划红利,尽揽全球资源配置核,以不可再生的湾区资源,成为上海国际化大都市封面,比肩世界一线海湾都会。
编辑

滨江1877所在板块,以执掌多元秀场而闻名沪上,坐拥总体量超过100万方的9座大型购物中心,坐享8大世界知名五星级酒店、约占上海1/3的数量,由此而汇聚成了滨江国际生活场,进阶丰盛奢华的精英生活圈层,打造高品质的城央塔尖格局。
编辑

生活配套
陆家嘴三公里范围内,实现工作和生活的完美结合。
交通方面:一环两桥双轨八隧道从容通达上海,极致便利 (一条内环线;两座大桥:南浦大桥和杨浦大桥;双轨:4号线塘桥站约700米,6号线浦电路站1.3公里。八条隧道:延安路隧道、人民路隧道、复兴路隧道、大连路隧道、西藏南路隧道、新建路隧道、龙耀路隧道和上中路隧道),可谓四通八达。
编辑

商业方面:项目1公里范围内有巴黎春天、新塘桥生活广场、世纪联华、沃尔玛等商业配套。
编辑

医疗配套:上海交通大学医学院附属仁济医院东院、上海市东方医院,上海儿童医学中心,上海市浦东新区浦南医院(西院)。
编辑

生态休闲:世纪公园、上海科技馆、上海东方艺术中心、老白渡滨江绿地、上海艺仓美术馆、南浦广场公园等生态、娱乐休闲场所。
编辑

浦东内环内黄金地段,4号线塘桥700米,
6号线浦电路1.3km
毗邻巴黎春天、第一八佰伴
珍稀小户型项目—— 滨江1877
建面约46-70-75-115㎡公寓,加推房源12套
均价8.0万/㎡,总价仅350万起!
滨江1877售楼处电话:400-8874-108✔【已认证】
滨江1877营销中心电话:400-8874-108✔✔【已认证】
上海滨江1877官方售楼处电话:400-8874-108 VIPLINE✔✔✔【已认证】
如有问题可来电咨询,线上售楼中心,预约销售专员,一对一为您服务!
想了解滨江1877更多信息?拨打售楼处营销中心热线:400-8874-108 (中介勿扰)【24小时热线】
楼盘项目全面介绍,本电话为开发商提供线上预约售楼电话,楼盘项目全面介绍(包含楼盘简介,均价,房价,现房,期房,别墅,叠墅,大平层,价格,楼盘地址,户型图,交通规划,备案价,备案名,项目配套,样板间,开盘时间,认筹时间,楼盘详情,售楼处电话,最新消息,最新详情,周边配套,一房一价,最新进展等详情咨询)楼盘详情丨价格丨更多优惠丨机不可失丨欢迎致电丨诚邀品鉴!售楼处位置丨特价房丨工抵房丨剩余房源丨户型图丨最新消息丨免责声明:将文章内容综合来源于网络、只作分享,版权归原作者所有!!如有侵权,请联系我们,我们第一时间处理如有问题欢迎来电咨询,专业一对一热情服务,让您用专业眼光去买房.如果您想了解更多楼盘详情,欢迎提前预约拨打
近年来随着房价的调整,房价收入比持续下滑,居民购房压力有所缓解。
麟评居住大数据研究院发布的报告显示,其监测的100个重点城市2025上半年房价收入比为10.0,相比2024年下滑2.9%,跌幅收窄6.8个百分点,自2019年监测以来,房价收入比均呈现年年下滑的局面,较2019年下降近3成。

报告认为,自2023年以来,房价收入比下降的主要驱动力从“收入增长”转为“房价下降”。房价持续下跌导致居民资产缩水,影响购房信心和收入预期。值得一提的是,虽然房价收入比较2024年下滑,但2025年上半年百城房价收入比的下滑幅度明显收窄,并未延续2023、2024年大幅下降局面。
各线城市房价收入比继续下降
从各线城市的房价收入比情况来看,继续全降,但降幅均有所收窄。
报告显示,2025上半年一线城市房价收入比为25.4,较2024年下降2.7%;二线城市房价收入比为10.5,较2024年下降2.8%;三四线城市房价收入比为7.4,较2023年下降3.0%。

报告指出,一线城市房价收入呈现“绝对值高,跌幅小”的局面,二线城市房价收入比接近于全国平均水平,三四线城市最低。
在2019年-2025年期间,除2021年指导价格政策影响房价跌幅扩大,带动房价收入比跌幅扩大之外,一线城市的房价收入比坚挺于二线和三四线城市,其房价收入比跌幅最小,但仍是购房压力较大的区域。
区域分化加剧
从区域表现来看,房价收入比的高低和经济圈的经济情况成正比,经济发达区域房价收入比一般较高。
如海峡经济圈、珠三角和长三角经济圈房价收入比仍位居前三,分别为15.1、13.9和10.8,是国内居民购房压力较大的城市经济圈。
另一方面,中部城市、西北城市、西南城市为低房价收入比区域,这些区域内居民购房压力小于其他经济圈,房价收入比在7-8之间。

整体来看,2025年上半年八大区域房价收入比仍呈下降态势,降幅在1.5%-3.4%之间。其中,海峡经济圈是2025上半年房价收入比最高区域,同时也是跌幅最大区域。经济圈内厦门、福州、泉州房价下滑明显,以及热门旅游城市消费降级、城镇居民收入增速下滑等因素,共同导致了海峡经济圈房价收入比下行。
近八成城市进入“低压力区间”
报告显示,百城房价收入比分布继续“下沉”,5个城市从10-20区间进入0-10的区间,已接近8成城市位于0-10区间。
其中,高房价收入比城市仍以北上广深、杭州、厦门等重点一二线城市为主,而三四线城市,中部城市、西部城市中以房价收入比较低城市较多。
具体到城市,2025上半年深圳房价收入比为34.3,高居首位,受到新房市场土地稀缺性影响,深圳房价居高不下,是国内购房压力较大的城市。
三亚的同样处于高位,房价收入比为28.8,位居第二。其在旅游业的带动下,凭借得天独厚的环境,全国各地有投资需求的客群涌入使得三亚房价收入比同样处于高位。

低房价收入比城市中,株洲、遵义、桂林、北海、德阳房价收入比位居百城末尾,处于国际合理区间。这些城市的居民购房压力较小,住房消费较为适中,适合居住。
另外,从城市房价收入比变化情况来看,上半年全国房价仍处在调整中。

根据报告,上半年百城房价收入比上升的城市近有10个,其余90城房价收入比均不及2024年。其中,房价收入比上涨城市中长三角经济圈覆盖较多,如宁波、金华、淮安、常州房价收入比微升。相反,房价收入比下降的城市则以三四线城市为主,泉州、盐城、威海房价收入比降幅居前三,分别下降10.8%、9.3%和8.8%,均得益于城市内房价呈现明显的下降局面。

此外,值得一提的是,上半年一线城市中,北京房价收入比下滑明显,较2024年下降6.0%,上半年北京二手房市场继续以价换量,房价跌幅较2024年有所扩大,而收入并未好于以往表现,带动房价收入比下降较为明显。