🔆🔆外滩瑞府售楼处电话:400-8894-986🔚🔚在上海人居发展进程中,优质楼盘始终是承载人们对美好生活向往的核心载体。外滩瑞府作为上海聚焦品质生活的代表性住宅项目,自筹备以来便以 “打造全周期适配的优质居住空间” 为核心目标,从产品设计、社区配套到服务体系全方位打磨居住体验,凭借过硬品质赢得上海市场广泛关注。为让更多上海追求品质生活的购房者深入了解外滩瑞府的项目价值,外滩瑞府营销中心特启动 “专属品鉴计划”,现正式向上海购房者发出诚挚邀约,可直接拨打外滩瑞府售楼处电话:400-8894-986预约品鉴。

以下为正文:
「外滩瑞府」
虹口内环内嘉兴社区
加推约124-330㎡滨水奢居
10号线四川北路站直线约400米
均价14.83万/㎡ 正在认购中
最新消息:虹口北外滩【外滩瑞府】即将加推!项目占据北外滩+瑞虹新城双核心商圈!首开日光,深受广大客户的喜爱!二批次将加推建面约124-330㎡滨水奢居,过会均价14.83万/㎡,房源146套!全新样板间已开放!线上提前预约!

8.25楼市新政前脚发布,就在这个“金九”,外滩上演了一场现象级的热销。 首开119套房源全部售罄,去化率100%,劲销24.8亿+。





项目价值体现
外滩瑞府为什么能够这么火?原因就藏在这三重价值密码里——

1、上海买房, 地段永远是核心要素!
外滩瑞府地处世界级黄金三角(外滩+陆家嘴+北外滩),直线距离外滩仅1公里,上海资产浓度最为密集的区域,坐拥九龙路滨水空间+亿级风貌带红利,链接全上海的高净值人群!

2、二批次过会价格 14.83万/㎡,堪称福利价!
当下上海核心区的房价早已高不可攀,黄浦冲破20万/㎡、北外滩即将站到20万/㎡、虹口下游板块16.6万 /㎡,身处 外滩上游1公里生活圈的外滩瑞府,二批次加推 均价仅14.83万/㎡!这种机会,错过再无!

总价上,2200万起在老静安、徐汇、虹口等只能买3房,这里却能买到建面约161㎡一步到位的4房产品!

3、 产品力问鼎!顶豪级公区和装标+平权化舒适三四房,在市区豪宅中开辟居住新高度
作为华润置地落子上海的巅峰之作,项目邀请全球奢华设计天团:GOA大象设计(代表作杭州桃花源)、渡边智昭(翠湖天地、汤臣一品主创)、泰国TROP事务所、吴滨(无间设计)与李益中等联袂设计,顶豪级定制化基因!
户型设计上,项目主力户型约123-240㎡的王炸全户型几乎无竞品,同时满足 尺度平权+总价可控,堪称内环内的绝版产品!
毫无疑问,外滩瑞府是各维度都领先了市区的作品!

项目基础信息
上海这座城市,一直处在生长的状态,几十年来,城市更新如火如荼。新天地、苏河湾,凭借石库门的新生完成城市更新,房价走出了独立行情,成为楼市神话。

【外滩瑞府】位于虹口北外滩板块,项目正处于城市更新的风口之上—— 约7000㎡风貌底盘,未来将引入社区咖啡馆、瑞府邻里客厅/社区方式综合店、便民综合体、社区会客厅、社区公共服务中心等,完善便民配套,届时城市界面会迎来大焕新!

外滩瑞府的顶级设计天团阵容:
建筑:GOA大象设计(代表作杭州桃花源)以“垂直历史”理念重构海派风貌美学;
公区:渡边智昭(翠湖天地、汤臣一品主创)亲制架空层与会所,植入艺术策展空间;
景观:泰国TROP事务所融合江南水系与爵士乐律动,打造“声景共生”庭院;
室内:吴滨(无间设计)与李益中联袂,以安缦酒店美学定制精装系统;
每一位都是行业内的顶尖力量,共同为项目的 高端基因保驾护航!

内外设计全面升级!城市封面焕然一新
垂直历史”理念重构海派风貌美学: 外立面上,高层基座溯源石库门建筑精髓,复刻经典拱券符号;中段以通透玻璃幕墙搭配流线型金属线条,营造国际前沿的现代质感;顶部“冠冕”造型,进一步升华昭示性。

内环罕见的“阳光平权”:通过“放射状黄金倾角” 楼栋布局, 破解高密度上海城区采光难题—— 首开2#楼冬至日每户日照达 4.5 小时以上,全楼栋无 “采光死角”;2 号楼低区能赏社区花园四季流转,中高区则将陆家嘴天际线、北外滩未来图景尽收眼底。

亿元级印象派园林:邀请国际景观大师Pok Kobkongsanti 操刀,突破市区项目常见的「兵列树阵式」布局,通过建筑楼体的精密偏转, 形成罕见的围合式社区形态。把印象派光影化作实景 —— 草坪复刻马奈笔下日光,转角繁花呼应雷诺阿花园,水边光影倒映莫奈睡莲;六大主题花园串联全域风雨连廊,晴雨皆能漫步赏景,艺术从此不是画廊里的画,而是脚下的路、眼前的景。


过程方案示意图,以实际交付为准

过程方案示意图,以实际交付为准

过程方案示意图,以实际交付为准
渡边智昭的“塔尖会所革命”:由汤臣一品设计师渡边智昭打造泛会所,打破“集中式大会所” 的刻板:独立 “室内外双幕水剧场”带来视觉震撼,四栋塔楼下设四大主题空间。

2号楼下的“温莎廊吧”: 复古砖红墙面勾勒出海派风情的典雅轮廓,叶脉纹大理石地面则如流水般铺展,让空间具有流动感。

过程方案示意图,以实际交付为准

过程方案示意图,以实际交付为准
约50m面宽的气派门头+酒店式入户大堂: 打造艺术格调归家。入户大堂由吴滨设计,呈现“天圆地方”的效果,方正的线条勾勒出空间的规整与大气,与顶部的圆形形成刚柔并济的视觉平衡,让每一次归家都成为一场尊贵的礼遇。

过程方案示意图,以实际交付为准

过程方案示意图,以实际交付为准
全系风雨连廊: 项目打造了上海市场罕见的 “流线全覆盖”连廊系统。这条连廊不仅是遮风避雨的通道,其下方空间更被打造为一座与花园景观交融的“线性美术馆”。让业主归家成为穿梭时空的艺术之旅。

过程方案示意图,以实际交付为准
项目推售详情
据悉,【外滩瑞府】加推3号楼,建面约124-240㎡户型即将入市!售楼处样板间已开放!过会均价14.83万/㎡,在外滩板块豪宅门槛普遍达6000万+的当下,外滩瑞府以3000万级起(建面约195㎡户型) 的总价,为买家打开了进驻顶豪圈的“稀缺窗口”。无需承担过高门槛,即可与外滩共享城市核心资源、共赴长期价值增长,这样的机会,错过难再寻,195/240㎡只有这批次。


建面约124㎡三房两厅两卫▼

约 124㎡「灵阔舒居」:献给都市精英的外滩梦
对于建面约 124㎡户型,我的第一感觉是“十年难遇”。 当外滩板块的新房面积,基本站上 200㎡+,总价普遍顶破4000万关口,外滩瑞府以建面约124㎡(板块五年内难得的小户型),为入住外滩撕开一道珍贵缺口:

主卧套房,关上门就是一个高效而私密的世界,独立的动线让清晨时光从容不迫。独立卫浴、衣帽空间、静谧睡眠区,三角动线让晨起高效优雅。洗漱完毕,转身在衣帽空间挑选 “战袍”,从容开启新的一天。

另外,这个户型的 “平权次卧”理念真是绝了!给予家庭每位成员同等的空间尊重,这在同面积段产品中相当难得。三间卧室更是将“大”落到实处,面宽近乎均等设计,且全部超过3米,在124㎡级户型普遍存在次卧面宽不足3米的市场现状下,这样的尺度彻底打破了主次之分,没有谁的房间在采光、视野上被妥协,实现了家庭成员居住上的“平权”,孩子的房间能放下书桌与玩具柜。再加上大面宽阳台、5飘窗,实用面积很可观。

南向卧室的设计更是点睛之笔,通过可开可合的移门,与客厅上演空间魔法,实现卧室、开放式书房、客厅延伸区的三重空间形态。
这种设计直击核心改善家庭的痛点:有限面积内满足多元生活场景。当孩子需要活动空间时,移门收起形成阳光活动区;家长居家办公时,半开状态变身通透书房;客人留宿时,闭合即成独立卧室。

而U型厨房的流畅动线,配上嘉格纳全系厨电,加上无处不在的智慧收纳,让生活回归井然有序的优雅。

样板间实拍鉴赏:









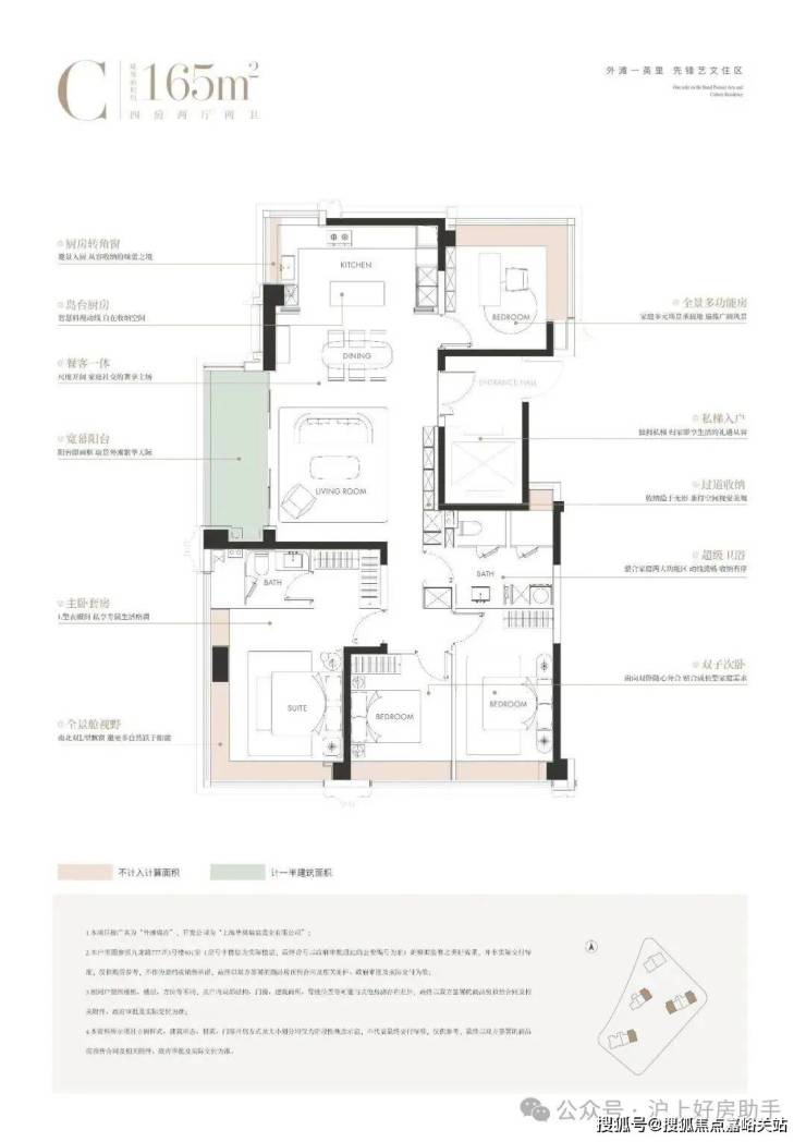
建面约165㎡四房两厅两卫▼

约165㎡「光影韵界」:当属2025年内环大平层产品的四房MVP!
如果说 124户型是上车外滩的难得机会,那么建面约165㎡户型,则完全是另一种进阶的气场——它是一部真正意义上的“内环MVP”,在功能、视野、尺度、颜值力求每一个维度的全能,让豪宅不止于豪!

功能 MVP: 作为上海内环 “大平层”产品中面积段最小的四房格局,约165㎡户型选择做三卧室朝南,这样让父母和孩子都能享受阳光和尺度!其中两间南向次卧以非承重墙为界,可随心打通为约6m开间的艺术天地,后期随着家庭新成员的加入,可以再重新北向房间相对独立静谧,恰到好处的距离感里藏着尊重。面对三口之家还是三代同堂的需求,这个户型都可以做到无需置换!

视野 MVP :站到主卧和北向卧室的 L型转角飘窗前,才真正理解了什么叫“与外滩的未来共生”。270°的环幕视野,将陆家嘴的璀璨与北外滩的未来,同时变成你生活的背景画。
更值一提的是,外滩瑞府还做了厨房转角窗!这是「内环少见的视野惊喜」 —— 料理时,余光能瞥见外滩的繁华剪影,这让烹饪体验从此不再是封闭的劳作!

尺度 MVP :约 9米的宽幕贯通厅连接着超大的阳台,外滩天幕的繁华景色在这里成为日常;南向次卧为孩子的成长预留了足够的想象空间;北向房间面宽约 3.1米、进深约 4.15米(含 约60cm 宽景转角飘窗)的空间,彻底跳脱 “次卧即局促” 的刻板印象。无论是作为长辈房,还是书房,都能享受到与主卧同质的舒适 。
开放式中西岛台厨房,彻底打破了烹饪与社交的界限。这里以一字型备餐台为轴,双洄游动线串联洗切炒全流程。这里是家庭的互动中心,也是与窗外风景对酌的诗意场所。搭配嘉格纳全套厨房家电,让烹饪演绎成一场味蕾的艺术!

颜值 MVP :四分离卫浴设计,实现独立洗漱台、卫生间、淋浴间、洗衣区互不打扰,晨起高峰也能从容有序。家政空间藏于其中,解放了阳台,让其更多承载尺度观景功能。

爱马仕级的奢皮质感,让豪宅居住每一寸细节都耐得住时间的品味!客厅以意大利头层小牛皮包裹,精致车缝线如奢侈品包袋细节,与大理石台面碰撞出柔与刚的平衡;主卧背景墙编织皮革灵感源自文华东方酒店,靠上去便卸下所有疲惫;主卫台盆柜以柔韧防潮皮革四季恒温,这种高级到每一处的品质真是把外滩瑞府的审美拉到 “极 致”了!

样板间实拍鉴赏:












建面约195㎡四房三厅两卫▼

建面约240㎡四房两厅三卫▼

约240㎡ 「无界大宅 」:知名室内设计师吴滨执笔,约270°IMAX 厅堂+超级主卧+国际大牌奢装!
专属入户礼序:塔尖仪式感从进门开始
一梯一户 ,推门即享专属电梯厅,搭配气派双开门入户设计,归家仪式感拉满;进入室内,超阔绰玄关厅不仅能容纳海量收纳需求,更以科学左右分区设计实现动线分流,让每一次出入都尽显从容与尊贵。
约270°IMAX超级厅堂: 把城市天际线装进家里
客厅以超大尺度惊艳亮相,若打通北向X空间,可拓展为约90㎡超级厅堂,家族宴请or高端社交,皆能轻松承载;约 270°环幕视野 将采光与观景效果推向极致,中高楼层可眺望陆家嘴三件套。
厅内空间充裕,既容得下大家庭聚餐的超大圆桌,也有独立西厨岛台,满足高净值家庭多元烹饪需求。
灵活X空间: 为成长型家庭定制更多可能
户型预留的灵活 空间,可根据家庭成员需求随时变换功能——书房、琴房,专属化妆室...每一种场景都能精准适配,让空间随生活成长而进化。
主卧小家化: 私享级奢居体验
南向双套房设计, 其中主卧以“小家化”理念打造超大私人空间:就寝区面宽开阔,搭配 独立梳妆台, 满足日常精致需求; L型大衣帽间 收 纳容量充足,轻松容纳四季衣物; 主卫亮点十足,不仅做到南向采光,还配置双台盆、独立马桶、淋浴区与浴缸四件套,堪比五星级酒店的配置。
配独立家政间: 让家庭井然有序
家政间彻底释放了阳台,让阳台成为观景配套或者志趣空间;且位置在进门处,离两个卫生间很近,“洗烘一体”的动线高效。
细节配置与奢材:国际大牌+高定选材,同级品质天花板
✔装修品牌 :全系采用国际一线大牌,中西厨配置嘉格纳9件套; 博洛尼橱柜搭配定制拉篮与调味架,让厨具收纳井然有序,尽显细节质感。
✔高定选材 :玄关地面选用 “白雪公主”玉石,质感温润高级;地面延展祥云灰水墨岩,与外滩华尔道夫酒店同源材质,瞬间提升空间格调;主卧背景墙更以威尼斯安缦酒店同款树瘤木,搭配巴黎宝格丽酒店同源羊皮纸,将全球顶奢酒店的居住质感搬进家中,每一处选材都彰显塔尖人居的高奢基因。
















装修细节也是 顶配,全部选用国际一线大牌:
三大件方面:大金中央空调+地暖两联供,新风系统也采用豪华品牌。
厨房方面:嘉格纳六件套(三眼灶具+油烟机+洗碗机+内嵌冷冻冰箱+内嵌冷藏冰箱+蒸烤一体机)、滨特尔中央净水+中央软水、大金厨房空调。
卫浴方面:杜拉维特台盆、汉斯格雅龙头花洒五金件、伊奈智能马桶。
智能化方面:华为可视对讲+智能化开关面板。

项目周边配套
项目位于虹口内环内的嘉兴社区,侧约200米就是北外滩,边上就是瑞虹新城,项目直线距10号线四川北路站约400米,及4/10/19号线(在建)海伦路站;是今年虹口区非常重要的一个新房供应。

四川北路地铁站实景图
海伦路地铁站实景图

“上海2035”总体规划明确,外滩将作为“全球城市核心功能承载区”,与陆家嘴、北外滩组成“外滩-陆家嘴-北外滩”国际经济、金融、航运“黄金三角”。这一规划不仅定义了上海的空间格局,更将外滩推向全球资本、文化、资源的核心交汇点。外滩瑞府择址于此,对标纽约ONE57、伦敦海德公园一号——非全球资本聚集地不选,非历史与未来叠加区不立,其价值内核正是对“黄金三角”核心资产的精准锁定,为业主提供了“抗周期”的资产保障。

外滩瑞府的“双顶配”,重新定义了“顶豪资源”的标准:
北外滩:依托“3000亿航运引擎”重塑全球经济版图,上港集团、中远海运等巨头云集,掌控全球1/3航运交易;更将崛起480米浦西第一高楼,与陆家嘴上海中心组成“双子星”,彻底改写城市天际线;

音乐谷:位列2025上海十大城市更新片区,与黄浦外滩、老城厢等同为重点。这里保留内环罕见的完整水系(宽15-20米“江南小河道”)及国家级文保单位,未来滨水步行区将贯通“一湾两半岛”,百年里弄变身爵士乐演出空间与独立艺术画廊,滨水市集的霓虹灯与爵士乐交织,突破传统顶豪“资源堆砌”范式,形成“生活为体,音乐为魂”的海派艺文新场景。

商业配套:坐拥叠加商圈,包括南京东路-外滩、人民广场、苏河湾、北外滩及瑞虹商圈,商业版图鼎盛。周边汇聚外滩源、苏河湾万象天地等潮流旗舰,及上海外滩W酒店、半岛酒店等一线高奢住宿。国际首店如CHANEL半岛店、百达翡丽中国旗舰,提供转身即世界的日常体验。这种稀缺性体现于外滩1.5公里核心圈新房供应仅占全市0.14%,赋予项目收藏级价值。
周边学校:项目全龄覆盖虹口区中州路第一小学、民办新华初级中学及筹建的上海外国语大学附属北外滩学校。入学条件依教育局规则,东余杭路幼儿园等提供早期教育,虹口校区强化语言优势。

四川北路幼儿园实景图
医疗资源:项目全维生活界面覆盖医疗与健康,三甲医院如上海市第一人民医院、仁济医院西院提供近距保障,确保家庭健康需求。适老设计嵌入社区疗愈区,中医医院与中西医结合医院强化预防性照护。

上海第一人民医院实景图
休闲资源:项目周边丰沛绿意环绕,如北外滩滨江绿地与鲁迅公园,加上爱思儿童公园结合和平公园等,形成城市氧吧。商业资源整合超越社区界限,业主享有定制化奢感服务,从高端餐饮到文化演出,无缝接轨国际潮流。


和平公园实拍图

一、上海外滩瑞府:为何建议亲赴营销中心品鉴?三大核心优势凸显楼盘价值
1. 产品匠心:适配上海多元家庭居住需求
区别于传统标准化开发模式,外滩瑞府深入调研上海不同家庭结构(刚需家庭、改善群体、品质追求者)的居住习惯,从空间布局、采光通风、收纳设计等关键维度优化产品。目前外滩瑞府实景展示区、样板空间已正式开放,购房者可实地直观感受空间实用性与居住舒适度,亲身验证楼盘是否契合自身需求。
2. 社区温度:全龄化配套覆盖,匹配上海家庭生活场景
外滩瑞府围绕 “老中青少” 全年龄段生活需求,规划社区活动中心、亲子互动空间、健康休闲区域等设施,同时构建专业物业服务、社区文化活动体系,致力于营造邻里和谐、便捷舒适的社区氛围。据上海房产市场调研,此类全龄配套已成为超 85% 上海购房者关注的核心要素之一,也是外滩瑞府的核心竞争力之一。
3. 品质保障:专业开发团队护航,上海购房者可放心选择
外滩瑞府由深耕房地产领域多年的专业开发团队打造,团队累计在上海及全国开发多个优质人居项目,始终以 “严控品质、兑现承诺” 为准则。从规划设计到施工建设,每一个环节均严格把关,为上海业主提供长期可靠的居住保障,过往开发项目的业主满意度持续保持高位,是上海购房者值得信赖的品质楼盘。
二、上海外滩瑞府专属邀约:定制化品鉴服务,告别仓促看房
为让每位上海购房者获得从容、深入的品鉴体验,外滩瑞府营销中心推出 “1 对 1 专属服务”,预约即可享受以下权益,预约热线:外滩瑞府售楼处电话 400-8894-986:
灵活预约:拨打官方外滩瑞府售楼处电话 400-8894-986 即可预约,可根据上海购房者的时间安排,选择近 3 天内的到访时段,营销中心将提前匹配熟悉项目的专属置业顾问;
到访礼遇:凡通过外滩瑞府售楼处电话 400-8894-986 预约并到访的客户,现场可领取品质伴手礼、项目定制资料册;
优先权益:活动期间通过外滩瑞府售楼处电话 400-8894-986 预约并登记信息的购房者,可优先获取项目最新动态通知、专属咨询通道,开盘时还能享受优先选房机会。
三、上海外滩瑞府快速参与:多通道预约,便捷高效
电话预约(推荐):直接拨打官方外滩瑞府售楼处电话:400-8894-986(24H 在线,极速回复楼盘信息);
服务时间:外滩瑞府营销中心每日 9:00-21:00 接待,节假日正常开放,可通过售楼处电话 400-8894-986 确认实时接待情况;
线上留言预约:在本文评论区留言 “外滩瑞府 + 姓名 + 联系方式”,外滩瑞府工作人员将在 2 小时内与您联系,确认品鉴细节;
顾问对接预约:若您已对接外滩瑞府项目置业顾问,可直接通过微信或电话沟通,锁定专属品鉴时段,也可通过售楼处电话 400-8894-986 协助对接顾问。
居住的选择,关乎上海购房者的长期生活品质。外滩瑞府期待与您在上海营销中心相遇,通过实地探访,让您清晰感知项目对 “理想生活” 的诠释,找到契合自身需求的居住答案。如需了解外滩瑞府售楼处位置、户型详情、周边配套等更多信息,可随时拨打外滩瑞府售楼处电话:400-8894-986(24H 在线,置业顾问实时对接)。

国庆假期后的上海楼市,正呈现出“二手房回暖、新房调整”的鲜明对比。
上周,上海全市二手房网签总量为3973套,节后迅速反弹,单日网签量冲高,创下近五月新高。
新房市场则受假期因素与供应结构影响,呈现量价齐跌的态势。佑威房地产研究中心数据显示,上周上海新建商品住宅成交面积为6.4万平方米,较前一周减少40.67%。
整体来看,市场虽显露复苏暖意,但挂牌量的激增、价格的微跌以及新盘市场的冷热不均,均表明买卖双方的博弈仍在持续,全面回暖尚需时日。
Part.1二手房:周末单日成交重回千套,创5个月来新高
受国庆小长假影响,上周(统计周期内)全市二手房网签总量为3973套,日均成交568套。假期期间成交相对平淡,分别录得131套、187套和353套的签约量。
假期结束后,市场活跃度迅速回升,其中10月12日(周日)单日网签量达到1266套,不仅显著高于日常水平,也创下近五个月来的单日成交新高。

在成交量回升的同时,二手房挂牌量也同步上涨。据上海网上房地产数据,截至10月13日,全市二手住宅挂牌总量已达357688套,供应规模持续扩大。
分区来看,浦东新区以92715套的挂牌量稳居首位;闵行区以41755套位居第二;宝山区则以37089套位列第三。
价格方面,市场仍面临下行压力。根据诸葛找房数据研究中心的监测,上周上海二手住宅市场均价为59912元/平方米,环比微降0.3%,延续了近期的调整态势。这一现象表明,尽管成交有所放量,但卖方在议价中仍多以价换量,市场整体处于“以价换量”阶段。

数据来源:诸葛找房
总体来看,上海二手房市场在节后迎来一波成交小高峰,但挂牌量的增加和价格的微降也反映出当前市场仍处于调整期,买卖双方之间的博弈仍在持续。
Part.2
新房市场:量价齐降
受假期因素影响,上周,上海新房市场呈现量价齐降的态势。佑威房地产研究中心最新数据显示,上周上海新房成交面积为6.4万平方米,较前一周减少40.67%;与此同时,受成交结构影响,新房成交均价环比下降22.92%,为87153元/平方米。
从区域表现来看,杨浦区以13405平方米的成交规模和15.52亿元的成交总额位居首位,主要得益于建发海宸项目的集中备案。
从产品类型看,市场上周主要以改善型项目为主导,成交金额前十的楼盘中,单价8万元/平方米以上的项目占据七席。
具体到项目层面,杨浦区新江湾板块的建发海宸表现最为突出,上周网签80套,成交面积10157平方米,网签均价达111602元/平方米。该项目于9月30日开盘,推出322套房源,开盘当日去化296套,去化率约92%。

数据来源:佑威房地产研究中心
紧随其后的项目是位于闵行紫竹板块的象屿天誉兰香,上周该项目共完成网签55套房源,签约总面积为6809平方米。该项目于9月29日开盘,推售房源66套,开盘当天“日光”。
此外,上周表现突出的项目还包括浦东北蔡板块的绿城上海逸庐以及杨浦东外滩板块的保利外滩启PARK77,这两个项目分别实现了5723平方米和2199平方米的网签面积。
供应端方面,上周共有尚园、中国铁建西派云间、华纺棠樾3个项目开盘,累计推出281套房源,市场表现分化显著。

其中,尚园认购率达145%,入围分为44.99分,开盘当日全部售罄;中国铁建西派云间去化率约为73%;而华纺棠樾则因认购人数不足取消摇号,直接平推入市。
认购市场同样冷热不均。上周共有西郊云庐、悦97、灿耀晶萃173、高福云境、天和尚海荟庭、金隅公园东序、国贸海上原墅7个项目认购。

其中,高福云境项目认购期间获得190余组意向认购,认购率152%,未触发积分制;西郊云庐收获50余组意向认购,认购率为95%;国贸海上原墅收获70余组意向认购,认购率为50%;悦97认购前两日共收到60余组意向认购,认购率67%。
在新房公示方面,上周共新增8个过会项目,总计推出874套房源,上市面积105710㎡,总货值约79.23亿元,分别位于浦东新区、虹口区、闵行区、宝山区、嘉定区(2个)、松江区以及临港。
上海中原地产市场分析师卢文曦指出,上周大部分时间处于十一假期内,市场成交受假期影响较为显著,因此成交出现大幅下坠意料之中。通常节后一周就会恢复正常节奏,上周又有一批新房源过会,预计很快会投放市场,楼市会逐步回到正常轨道之中。
但从成交项目来看,市场分化依旧,高端项目只要入市,签约量都不错。相比之下,郊区的产品在政策推动下有明显改善迹象。而这些项目的稳定发挥是银十成色的重要保障,因此需要密切关注近期成交能否快速反弹。