联仲都悦汇首页网站-联仲都悦汇售楼处电话-联仲都悦汇楼盘详情-交房时间-地址-最新房价户型图-小区环境-楼盘详情-交房时间-周边配套-售楼处电话
扫描到手机,新闻随时看
扫一扫,用手机看文章
更加方便分享给朋友



【开发商】:上海联仲置业有限公司
【物业】:上海仲量联行物业管理公司
【容积率】:1.0
【绿化率】:35%
【车位比】:1:2.1
【物业费】:8元/㎡/月
【本次开盘】:14套
【物业类型】:商业联排别墅
【交付标准】:毛坯
【拿地时间】:2014年8月
【交房时间】:2023年6月
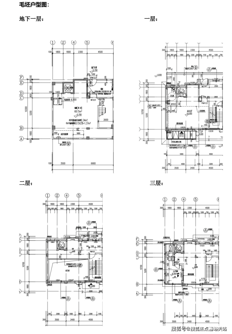
在售户型:建面约310-410平米,地上三层地下一层
(地上:一层层高3.6米/二层层高3.4米/三层层高3.4米/地下层高5.4米)
总价:约1400-1800万️
单价:约5万/平米
小区整体商业:10万方(在建)南北双花园90-300平
水电:商水&商电,电1.3元/度,水6元/吨
产权车位:约30万左右




【联仲·都悦汇】位于闵行马桥旗忠别墅区,旗忠别墅区是上海老牌的富人区,与松江佘山、浦东东郊齐称为沪上三大国际别墅区。上海仅存少量的容积率0.18以下超低密度居住用地中,大多数在马桥旗忠别墅区。
板块以低容积率、生态自然环境和高端国际品牌配置,2010年被列为上海第二批大型居住社区之一。总建面约33万方城市综合体联仲都悦汇位于旗忠板块正核心,紧临网球中心,超10万方市政绿化所环绕。
【联仲都悦汇】同样是低密度别墅区里的一员,背靠绿城玫瑰园,容积率低至1.0。项目贯穿了3条自然水系,分为ABCD四个地块,其中ABC为商住办综合地块,自带商业办公。
交通配套方面:项目距离嘉闵高架元江路出口3公里,毗邻G15、S32等快速主动脉,30分钟大虹桥,50分钟抵达浦东机场,快捷畅达全城。
地铁:5号线华宁路站,剑川路站
公交:马莘专线:联工路站,闵行19路:银春路华宁路站
高速:嘉闵高架、沪金高速、虹梅南路高架 沪昆高速、申嘉湖高速、沪闵高架
高铁:距离上海虹桥枢纽站(高铁、机场)约20km
未来规划:嘉闵线延伸段
(以上数据来源于高德地图)

商业配套方面:项目自带10万方商业,为旗忠唯一的综合性商业配套,其多元化的业态结构,结合旗忠独有的资源,必将带来旗忠全新生活方式。
生态资源方面:项目周边有马桥森林公园、旗忠高尔夫球场、旗忠网球中心、韩湘水博园、养云安缦酒店等。
教育资源方面:周边有复旦万科实验学校,德威英国国际学校、斯代文森国际高中、上海美高学校。幼儿园:元祥幼儿园、富杰幼儿园启英幼儿园,大学:上海交通大学、华东师范大学




联仲都悦汇售楼处电话:4 00-8874-108✔【已认证】⭐⭐⭐⭐⭐
联仲都悦汇营销中心电话:400-88 74-108✔✔【已认证】⭐⭐⭐⭐⭐
上海联仲都悦汇官方售楼处电话:400-8874-10 8 VIPLINE✔✔✔【已认证】⭐⭐⭐⭐⭐
如有问题可来电咨询,线上售楼中心,预约销售专员,一对一为您服务!
想了解联仲都悦汇更多信息?拨打售楼处营销中心热线:400-8874-108 (中介勿扰)【24小时热线】
楼盘项目全面介绍,本电话为开发商提供线上预约售楼电话,楼盘项目全面介绍(包含楼盘简介,均价,房价,现房,期房,别墅,叠墅,大平层,价格,楼盘地址,户型图,交通规划,备案价,备案名,项目配套,样板间,开盘时间,认筹时间,楼盘详情,售楼处电话,最新消息,最新详情,周边配套,一房一价,最新进展等详情咨询)楼盘详情丨价格丨更多优惠丨机不可失丨欢迎致电丨诚邀品鉴!售楼处位置丨特价房丨工抵房丨剩余房源丨户型图丨最新消息丨免责声明:将文章内容综合来源于网络、只作分享,版权归原作者所有!!如有侵权,请联系我们,我们第一时间处理如有问题欢迎来电咨询,专业一对一热情服务,让您用专业眼光去买房.如果您想了解更多楼盘详情,欢迎提前预约拨打
麟评居住大数据研究院数据显示,9月份其监测的重点14城二手住宅成交108617套,环比上涨5%,同比上涨13.12%。整体来看,2025年前9月重点14城成交量为1023207套,较去年同期上升9.4%,并创下自2020年以来的新高。

报告认为,年内二手房成交量呈现“先升后降企稳”的局面。具体为前两月成交季节性低位运行,三四月份需求加速释放,成交量达到高峰;5月呈现明显下滑,后续逐月成交量基本维持在10万套的水平;9月交易活跃度有所回升,同比重回涨势,且单月成交量创2022年以来同期新高。从环比方面来看,涨幅较为温和,短期处于稳增长状态。预计接下来受国庆假期影响,10月成交量或将有所下降。
政策加持下,京沪深成交量普涨
具体到城市,除京沪深以及成都、无锡、郑州6个城市成交量环比上升,其他城市均较上月有所下降。

8月份以来,北京、上海和深圳采用“分区域梯度放松”的限购策略,这些政策使得二手房的购房门槛降低,释放了更多的购房需求。同时,信贷支持同步加码,促进了北京、上海和深圳的二手房成交,三个城市的成交量环比分别上涨17.2%、9.3%和5.2%。
与之不同的是,一线城市仅广州9月成交未上升。其受台风天气和新房促销分流的影响,短期市场存在一定的修复预期。
二线城市中则除郑州、成都和无锡成交上升之外,其他城市均有所下滑。其中,厦门(-16.9%)跌幅最大,其次为佛山(-4.9%)和杭州(-4.7%),环比跌幅均超过4%。
报告表示,9月二手房市场回暖分化,多数城市市场仍处于深度调整期,成交持续承压,可能还需依赖经济环境的好转。
二手房去化压力仍存
挂牌量方面,9月监测的14个重点城市二手住宅挂牌量约202万套,环比上升1.1%,同比下降13.06%。

报告指出,在售挂牌量自5月以来连续4个月上升,近两月涨势相对温和。与去年同期对比,今年在售挂牌量较去年下降约13%。
另一方面,除挂牌量上升外,去化周期也有所提升。报告显示,9月份重点城市的二手房去化周期为17.7个月,环比上升6.4%,同比下降14.1%。

市场信心仍显低迷
值得注意的是,二手房成交量活跃度有所提升,但市场信心指数继续位于低迷区间。
报告显示,9月份重点50城市场信心指数为-0.85,环比持平,同比微降0.02。市场信心指数已经连续两年位于市场低迷区间,短期仍难走出低迷区间。
对此,麟评居住大数据研究院表示,尽管9月二手房市场的交易活跃度有所提升,但在高挂牌量背景下,价格持续面临一定下行压力,短期信心指数或难以大幅度改善。单靠现有政策很难让市场快速“止跌回稳”,可能需要更有力度的政策,或者更长时间的调整,才能慢慢重建市场信心。
声明:本文由入驻焦点开放平台的作者撰写,除焦点官方账号外,观点仅代表作者本人,不代表焦点立场。
