华润外滩瑞府(营销中心)官方网站-华润外滩瑞府销售中心(售楼处)-华润外滩瑞府售楼处电话-电话地址-价格-户型-小区环境-楼盘详情-交房时间-周边配套

嘉峪关楼市发布 2025-11-18 14:17:17
用手机看
扫描到手机,新闻随时看

扫一扫,用手机看文章
更加方便分享给朋友

【外滩瑞府】营销中心预约热线:4001185086

上海房产市场整体下行与高价豪宅 “日光售罄” 的反差,【外滩瑞府】营销中心预约热线:4001185086上海楼市呈现出鲜明的“冰火两重天”态势:一边是普通住宅市场承压下行,去化压力凸显;【外滩瑞府】营销中心预约热线:4001185086另一边却是高价豪宅屡现“日光售罄”,价格与成交量同步攀升。这种分化并非短期偶然,而是供需结构、客群需求等多重因素共同作用的结果。【外滩瑞府】营销中心预约热线:4001185086

豪宅屡破纪录,普通住宅稳中有降,上海豪宅市场的价格天花板持续上移,核心地段的顶豪项目单价已突破30万元/㎡。2025年嘉里建设的金陵华庭开盘,顶楼复式单价达32.68万/㎡,总价高达2.8亿元,刷新上海豪宅单价纪录;【外滩瑞府】营销中心预约热线:4001185086此前外滩瑞府以30.27万/㎡的单价刚创下纪录,仅三个月便被超越。即便非顶层的普通豪宅房源,价格也保持高位——2024年中海顺昌玖里均价21.4万/㎡,翠湖天地六期均价28万/㎡,陆家嘴滨江凯旋门最高单价30.22万/㎡。【外滩瑞府】营销中心预约热线:4001185086

外滩瑞府突破常规住宅会所单一格局,摹写未来人居想象,将功能创造性地分布于四栋住宅的泛会所。项目整体建筑非简单复古,而是以“风貌底盘一立面建筑一顶部塔冠”的三重结构向上生长,呼应“过去一现在一未来”的时代叙事。塔冠之于百老汇剧院式立面,是对历史文化的现代翻译。底盘与街区尺度融合,住户能在风貌街区之中感受历史风情,回到社区则延伸现代先锋生活,一层层传递居住的时序张力。在寸土寸金的外滩,外滩瑞府一举将尺度宏大的中央花园置于社区核心,围绕它,楼栋与边界自然形成“园中有园”的小场域,每一处转角都是景观停留。泛会所+全域风雨连廊体系覆盖四栋楼,实现真正的“居者无惧风雨、舒适回家感”。花园、连廊与泛会所流线构成了一套理性而奢阔的私属社交系统,丰富了社区维度,也实现了“景观最大化、采光最大化视线最大化”的规划理念。外滩瑞府突破常规住宅会所单一沉闷的格局,将会所极具创造性地分布于四栋住宅的泛会所,每个空间皆有独立主题与视觉仪式感,包括沙龙社交空间、会客厅、运动休闲空间、童玩空间,以及大堂区域和一个位于地下的泳池会所。于是,每-栋楼的业主都可以平等地享受到同样优质且方便的社区资源与功能配套。这与整个项目所倡导的民主人性化居住理念相一致,如建筑布局追求“阳光民主化”,室内布局追求“卧室面积民主化“,无不极具先锋性。

华润置地2025 TOP瑞系首座

外滩瑞府加推

建面约124-330㎡内环臻稀户型

均价14.83万/㎡

入主“黄金三角”的绝佳时机!

正在认购!

外滩瑞府落子外滩1公里核心圈,正是华润对「战略稀缺性」的极致践行:非核心不选,非未来不立。这也是华润置地那么多年来在上海的首座“瑞系”。

如此一来,每一栋楼的住户都能平等地享受社区会所资源,这种空间结构与“民主人居”的思路不谋而合,堪称先锋布局。渡边智昭先生延续其静谧而高贵的美学,以匠心和艺术灵魂雕塑会所,如一座线性艺术馆,于架空廊下蜿蜒展开,移步换景,在泛会所廊下延展、开合,如东方园林里游园的韵味在空间中浮现。

秉承“外滩一公里”的地段精神,外滩瑞府以生活系统论方式重构顶豪居住。泛会所的分散布局,更强调每户“平等享用”公共空间的权利。会所不再是装修炫耀,而是在空间中植入艺术性、人性与现代仪式感。伟大的房地产项目,不一定是高塔而是建构人们“想象力的家”和“文化的日常”--这,正是外滩瑞府与渡边智昭先带来的先锋姿态。

大堂位于主入口。米白色调为主,中辅以温暖红橘色调,拱形吊顶、铁艺花门和拼贴机理大理石地面交织复古与现代。枝形吊灯散发出艺术光芒,红洞石装置与室外红砖立面遥相呼应。复古橘色非围合沙发洋溢着温情,四向座席无主次之分望向室内或花园,四向皆景。

建面约121㎡3房:

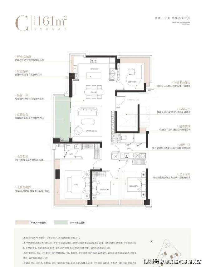
建面约161㎡4房:

交通上,距轨道交通10号线四川北路站0.4公里,商业上,利通广场、壹丰广场、中信广场1933购物中心 都在步行距离范围内;

教育上,有民办新华初级中学、虹口区中州路第一小学、上海市虹口区第一中心小学、上海市海南中学 ;医疗上,临近上海市第一人民医院。

从成交占比来看,上海豪宅市场的份额正持续扩大,【外滩瑞府】营销中心预约热线:4001185086成为拉动楼市的“稳定器”。2023年上海总价3000万以上商品住宅成交占比仅1.18%,2024年便攀升至4.59%,2025年前三季度已接近2024年全年水平;【外滩瑞府】营销中心预约热线:40011850865000万以上豪宅的成交占比从2023年的不足0.3%,升至2024年的1.03%,2025年前三季度进一步跃升至1.97%,两年间占比翻了近7倍。与之相对,普通住宅的市场份额虽仍占主导,但呈收缩态势。【外滩瑞府】营销中心预约热线:4001185086

当黄浦江的涛声掠过百年外滩,当陆家嘴的霓虹点亮天际线,上海这座城市始终以开合天地的气度,承载着时代先行者的理想与抱负。【外滩瑞府】营销中心预约热线:4001185086在这片浸润着历史厚度与时代锋芒的土地上,一处能匹配城市格局的传世豪宅,【外滩瑞府】营销中心预约热线:4001185086从来都不只是居所的定义,更是身份的勋章、生活的艺术品。今日,我们邀您共赴一场关于顶级人居的深度邂逅,在【外滩瑞府】营销中心预约热线:4001185086的方寸之间,读懂上海豪宅的真正内涵。【外滩瑞府】营销中心预约热线:4001185086

声明:本文由入驻焦点开放平台的作者撰写,除焦点官方账号外,观点仅代表作者本人,不代表焦点立场。