作为上海品质人居代表,尚湾林语以 “全周期优质居住空间” 为核心,从产品、配套到服务全方位打磨,实景展示区与样板间已开放,诚邀上海购房者亲赴品鉴!

「尚湾林语」
闵行主城5号线旁
建面约81-149㎡2-4房
约180万方城市更新国企钜作
约82%超高得房率 精装修交付
均价59327元/㎡ 正在认购中
售楼处线上火热预约

尚湾林语一房一价表▼

项目基础信息
开发商上海地产星侨置业有限公司
物业费
3.98元/月/㎡
拿地时间
2022年9月
物业公司
上海闵房物业有限公司
房屋产权
70年
得房率
80%-82%
交房时间
26年3月31日
交付标准
精装/部分毛坯
车位配比
1:1.2 面积
100-149㎡ 均价约6.2万
户型
两房两厅两卫 / 四房两厅三卫
总价550-950万 水电费民水民电 单层层高3 - 3.1m
楼层层高9/14/15/16层
项目地块信息
2022年9月23日,上海地产星侨置业有限公司以底价552183万元竞得闵行区颛桥镇生态隔带G9颛桥中心村段10-03、19-01、19-05、20-01地块(“城中村”改造项目-中心村),楼板价29760元/㎡, 房地联动价为62000元/㎡!

地块位置图
项目已于2022年6月9日,四建集团中标闵行区颛桥镇生态间隔带G9颛桥中心村段10-03、19-01、19-05、20-01地块(城中村改造项目-中心村)住宅项目(除桩基)工程。
项目位处上海主城闵行颛桥板块,毗邻世界级科创湾区—— 大零号湾。本案作为上海市重点城中村综合改造项目之一,将成为上海城中村改造样板。

效果图
预计商品住宅及市政配套项目于2025年底前基本施工完成,包括公建配套、公共绿地的整个工程将预计在2026年底前打造完成。

效果图
目前,四幅住宅地块方案设计已完成公示。首期4幅住宅地块将打造成依水而居的住宅场景,形成现代简约的人文社区。


效果图
项目东至20-02地块,南至银春路,西至新源路,北至10-01地块,整体位于银春路的北侧,距离5号线剑川路站步行距离1.2公里左右!
根据大小不同的地块组成,由32幢住宅、18幢社区配套公建及4个地下汽车库组成。合计住宅套数下限约1767套,需配建5%以上的保障性住房,全装修比例50%,要求中小套户型不得低于总住宅建筑面积的80%!

10-03地块:
拟建2栋15F高层住宅、2栋16F高层住宅、以及若干配套用房。

规划示意图
19-01地块:拟建7栋16F高层住宅、3栋9F高层住宅、1栋14F高层住宅、1栋10F高住宅以及若干配套用房。

规划示意图
19-05地块:拟建7栋16F高层住宅、3栋9F高层住宅、1栋14F高层住宅、1栋10F高层住宅以及若干配套用房。
20-01地块:拟建6栋16F高层住宅、2栋14F高层住宅、3栋10F高层住宅、1栋9F高层住宅以及若干配套用房。

规划示意图
据了解,项目首批次推出项目19-01地块, 主力户型为建面约100/101㎡精装三房,少量建面约149㎡四房。
项目推售详情
【尚湾林语】项目的容积率仅为1.6-1.8,打造了低密度的全小高层住宅,这样的设计确保了足够的楼间距,即满足了采光,也开阔了视野。

效果示意图,仅供参考
【尚湾林语】整体为9-14层的滨水小高层,大大提升了得房率。据了解,项目得房率达到了 约79-81.5%左右,甚至超过了市面上部分洋房产品。

效果示意图,仅供参考
项目内部拥有罕见的生态资源景观,低容积率+宽楼间距,结合约15万方天然水域,每一户都拥有开阔的景观视野。


项目首开楼栋栋距更达 约38米,采光优异,且所有楼栋几乎实现三面甚至四面景观环绕。

示意图 实际以交付为准
【尚湾林语】户型面积段为建面约81-149㎡的2-4房,其中精装三房的主力总价仅约500-600万级,可直接认购。本次加推132套房源, 均价59327元/㎡!正在认购中!

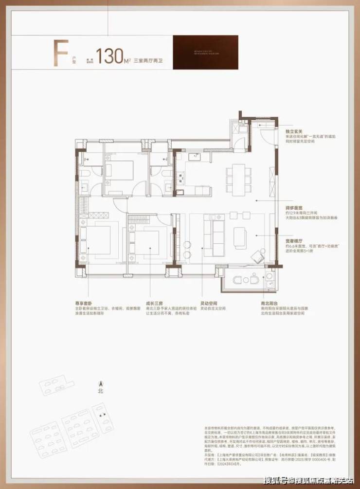
项目全套户型图▼






































项目还拥有媲美市中心10万+楼盘的装修标准!
装修上采用的均是国内外一线品牌,对标市中心10万+豪宅的质感。
卫浴使用了唯宝、高仪品牌;
厨具是西门子的,中央空调是日立的,还配备威能地暖及热水器;
特别是唯宝、高仪,市中心高端住宅才有的配置如今“5”字头就能拥有。











项目样板间实景图 实际以交付为准
项目区位配套
【尚湾林语】位于上海主城闵行颛桥板块,紧邻大零号湾腹地,轨交5号线剑川路站地铁口,1公里咫尺龙湖天街等繁华商业,坐享成熟交通、商业、教育、医疗、生态配套。
据了解,同样的区域平行五公里,在售一手项目,基本一致品质,尚湾林语价格比其他项目单价低近10000,性价比十足!
【立体交通】5号线剑川路、15号线;嘉闵线(预计2027年开通)、虹梅路高架
【繁华商业】龙湖天街、颛桥万达、龙湖星悦荟、满天星生活广场;另外本项目规划约21.5万方开放式商办街区

区位示意图
约180万方自然城市融合体是上海地产集团以前瞻眼光, 打造的4.0城市范本。集都心自然秘境、开放摩登商办、花园生态办公、菁英人才公寓、活力文体中心、高质人文教育、未来理想水岸、全生命周期住宅为一体。

示意图,实际以交付为准
规划体量约21.5万方开放式商办街区,相当于1个龙湖天街在门口。同时1公里内龙湖天街,相当于未来一公里生活圈有2个龙湖天街。整个开放式商办街区体量相当于3个美罗城、4个恒隆广场!未来购物、美食、娱乐、休闲等,下楼即达。

示意图 来源于网络
花园生态办公和菁英人才公寓相生共融,将共同构成南上海原生态花园型商务区。未来下楼,就是办公场,完美平衡工作与生活的距离。
约3万方活力文体中心,涵盖运动场馆、文教场馆等,可满足全年龄段运动、娱乐、休闲、亲子等需求,未来可能会有小型运动赛事、读书分享会等,就像一个业主私人的泛会所!
要知道现在市场其他项目基本都没什么会所,有的也很难运营,但尚湾林语活力文体中心是由政府合力打造,未来将不止服务业主,更服务周边高知高智人群!

示意图 来源于网络
教育资源方面:包含约 3.44 万高质人文教育,涵盖幼、初、高中。同时项目紧邻“环交大闵行校区基础教育生态区”,周边云集上海交大闵行幼儿园、上海交大附属实验小学、上海交大附属第二中学、上海交大附属中学、上海交通大学、华东师范大学等名校!

示意图 来源于网络
更重要的是!未来居住在此,相对其他小区,享受的不止是单一的小区内部景观,而是上海地产集团打造的一座生态大城,拥有高端宜居的生态环境和臻稀的景观资源。

示意图
生态资源方面:目前,生态农业用地正在加速兑现中,比如:项目南面将会打造四季花海国际生态示范区,未来每个季节都会种植不同植物供观赏,并将成为上海网红打卡点。据悉,第一阶段打造的醉美向日葵花海等,预计11月开放展览。毫不夸张地说,未来在此享受的是国际一线自然城市生活体验!

示意图 来源于网络
三大核心价值,值得实地探访
产品匠心:适配刚需、改善等多元家庭,空间布局、采光收纳均经优化,实景体验更直观;
全龄配套:覆盖老中青少的社区活动中心、亲子空间、健康区域,搭配专业物业与社群服务;
品质保障:资深开发团队操盘,多城优质项目背书,业主满意度居高,居住更放心。
专属品鉴权益,预约即享
拨打售楼处电话 400-8894-986 预约,解锁三大福利:
・灵活约时段:3 天内任选到访时间,匹配专属置业顾问;
・到访有好礼:品质伴手礼 + 定制资料册免费领;
・优先权益:优先获取项目动态、专属咨询,开盘享优先选房。
三、多通道便捷预约
电话预约(推荐):400-8894-986(24H 在线,极速响应);
营销中心接待时间:9:00-21:00(节假日不休,电话可确认实时情况);
线上留言:评论区留 “尚湾林语 + 姓名 + 联系方式”,2 小时内专人对接;
顾问对接:已联系置业顾问可直接锁定时段,或致电 400-8894-986 协助对接。
居住选择关乎长远生活品质,尚湾林语邀您实地解锁理想生活!户型、周边配套等更多详情,随时拨打售楼处电话 400-8894-986 咨询(24H 置业顾问在线对接)。

湖南女生(@夜夜小唔)就在不久前买下了一套一楼的复式房,和很多看起来精致的小复式不同,她选择了不装修直接住进去,整间屋子都保留着混凝土水泥的外观质感。

屋内只置办了必要的家具,看起来简简单单,满足日常生活所需。
话不多说,一起来看看吧~
【入户区域放大餐桌】

进门后有一个小小的玄关过渡区,一进门,最先看到的就是一张大号的长餐桌,这里目前当作一个临时置物的站立吧台,旁边甚至没有放凳子,平日里就当个偶尔放杯具碗碟的置物台,家里有家人朋友来的时候,再放一圈凳子,就能围坐用餐,丝毫不觉拥挤。

而从这里,也可以一览家中餐厅、客厅和头顶隔层空间的水泥毛坯风格,因为是复式,看起来还有种开扬宽敞的感觉。
虽说没有刷墙贴瓷砖,但却也刷了地固和墙固,日常生活可以避免起灰的问题,实际上还是挺干净的。
【竖厅横向布置】

说起来,其实家里算是一个竖厅的格局,但为了空间感考虑,她却采用了横厅的布置方式。
在餐桌前面放沙发和茶几,你别说,这黑色的沙发和茶几相互搭配,和家里的水泥风装修还真是格外搭配。

距离更远的窗户下方直接放支架电视,因为是一楼,窗外还有个小小的草坪院落,坐在沙发上望着窗外绿意盎然,仿佛屋内的毛坯房风格也不那么冰冷无趣了。
除了沙发前面的地毯外,左右两侧还有隔板架和单人椅,平时招待客人也坐得下。

最为点睛之笔的,当然是这两层高的大窗户了,虽说是间小型复式房,但客厅却并未去做隔层,而是保留了纵向高度,让阳光和自然风尽可能多地进入室内,让这间水泥毛坯房显得亮堂了许多,空间感也强了许多。
【楼梯间旁是小书房】

一楼的楼梯间旁边是小书房,书房对面则是卫生间,我们放在最后说。
先说这楼梯间的布置,旋转向上的楼梯不算宽也不拥挤,直接在原有混凝土的基础上加上金属栏杆,打造出这种工业风的楼梯间。

楼梯间处的小房间是个书房,平日里,她会在这办公、看书、玩游戏,房间内放上了一张小书桌和一张单人床,周末时熬夜太晚干脆就在这儿睡了,遮光窗帘也能在睡懒觉时避免光线扰人,算是家里功能最其备的一间屋子。
【复式隔层上有两间卧室】

走上楼,发现这里压根就没有做装修,只是在隔层平台上加了一盏灯,当成一个临时活动空间,做做瑜伽,放张凳子看看书,甚至是在这烤串都没问题,周围的毛坯墙面也同样是简单刷墙固地固,保留这种光秃秃、灰溜溜的样子。

主卧室窄且长,目前只在这里放一张双人床,当作晚上休息睡眠的地方。
这里地面倒是简单铺了木纹砖,晚上开灯后显得温馨一些;哦对,进门处还有一组金属衣架,布置简单的同时收纳能力强,日后需要重新做橱柜的话也方便拆卸更换。

次卧室的布置和面积都与主卧室接近,但因为目前处于半闲置状态,既没有放床架,也没有做衣柜,仅单纯在地上放一张床垫,当作家人朋友来临时留宿时的睡床,不占地儿也不碍事儿,以后买了床架,还可以直接用上这张床垫。
【其他区域的细节布置】

再说说家里其他空间的布置。
卫生间都刷了1米8高的防水,但电线和水管都没有埋藏而是明装,热水器也选了小小的一个,足够日常洗漱使用。
有趣的是,地面铺了瓷砖且架高做了蹲便器,因为砖和马桶都便宜,以后拆改更换倒是也不心疼。

家里的很多处地方,还养着大株小株的绿植,也同样是为了减轻毛坯房内的冰冷单调感,不得不说,绿植真的是室内软装的绝佳搭配,让这空间内显得生机勃勃。
【文末总结】

总之,这位湖南姑娘的复式毛坯房装修,在我看来还是挺舒服的,不仅该有的家具家电都有,同时还真带着点儿工业风的美感,若换做是你的话,你会愿意住进这样一个小家里生活吗?