招商中旅观境售楼处电话:400-9975-759【预约看房热线】招商中旅观境官方售楼处电话:4009975759【售楼处电话/地址】招商中旅观境售楼处电话:400-9975-759【开发商认证】
招商中旅观境售楼处电话☎:400-9975-759【售楼处预约热线】(一对一热情服务)
如有问题欢迎来电咨询,预约来电尊享购房优惠,可预约案场内部销售人员,专业一对一热情服务,让您用专业眼光去买房。
在愈发繁忙的时代,人们越来越渴望一处安放心灵的栖息地,也更加理性地思考人居对于生活的价值和意义。
在北上海全新精奢主义作品中,我们看到了【招商中旅观境】在打造产品中的全新思考,艺术、丰盈、悦己、松弛的精奢生活在此盎然绽放。
招商中旅观境售楼处电话:400-9975-759
「招商中旅·观境」
宝山顾村 7号线TOD地铁盘
加推建面约89~128㎡3-4房
均价48773元/㎡ 正在认购中
前期少量建面约100-144㎡在售
均价50713元/㎡ 总价约433万起
同内环豪宅 同级别的精装标准
超配酒廊,泳池,健身的星级会所
下沉庭院 架空层、酒店式入口
样板房提前线上预约

项目一房一价表▼

北上海时代正中心
畅享大城繁盛
作为北上海标杆,其地段当然是TOP级。
整个招商中旅观境占据整个北境核芯位置,也就是新顾城地处北上海产城融合带和 TOD 发展轴的交汇处,作为上海北部产城相融合、配套高标准、宜居多元化的大型居住社区,必然承接宝山产业升级转型和创新发展的海量人才和居住需求,未来潜力无限。

项目整个步行范围内,享受总体量约25万方的招商花园城X+约14万方的龙湖宝山天街,真正的转身即繁华。

作为 TOD 项目,招商中旅观境紧邻 7 号线,4站抵达中环南大、快速链接长风、静安寺、长宁古北、上海南站、紫竹高新区等多个城市节点;宝嘉线(规划中),互通嘉闵线(在建),13站通达大虹桥。
同时,近享菊盛公园、顾城公园等自然生态资源;华山医院宝山园区安心医疗;相邻民办华曜实验学校、厚仁小学、菊泉学校、乐之中学优质教育配套。(教育设施与社区间的招生对应关系由当地政府教育主管部门确定)居住在此,优渥资源环伺,活力十足的大城生活徐徐展开。

对标市区豪宅产品力
重塑理想生活
当然,除了繁盛的配套和便捷的交通,购房者关心就是产品本身。
流体美学:以设计艺术品的态度来建造房子
这一次招商中旅观境可以说是率先在审美艺术上接轨国际前沿。颠覆传统住宅立面的平铺直叙,汲取海上豪华游艇的设计灵感,打造极具标识性的鎏金塔冠建筑。在颜值即正义的时代,这样的产品连路过也要多看一眼。

同时,将轻法雅奢的圆润线条贯彻于大门雨棚、入户门头之间,赋予建筑艺术灵动之意,重塑大城人居美学。

镜面美学:不仅美观还很实用
整个建筑立面,被大面积的镜面玻璃覆盖,于外赋予建筑如同钻石一般的光感,于内极大地拓宽了室内的视野,让自然光线无拘无束地洒入每一个空间。

招商中旅观境售楼处电话:400-9975-759
漂浮美学:更懂年轻人的喜好
近年来,人们对逃离城市喧嚣的渴望、对回归自然偷闲度日的越发向往,项目与当代年轻人的生活痛点出发,整体采用海岛度假式风格的漂浮设计理念,无论是社区门庭悬浮的水晶礼盒,还是无边际的漂浮会所,都给人以极具松弛感的生活美学。

无边际奢享体系 悦享高定丰盈生活
作为引领北上海进入下一个人居纪元的全新产品,项目从门庭,园林,再到高定会所、臻奢选材,都是北上海独特的存在!

四重归家礼遇 每次归家都是 Check in
什么是真正的酒店式归家,我们按照动线,来感受一下。
从步入社区大门开始,约70米超大尺度门庭、奢华酒店般的港湾式落客,就将仪式感便顶格拉满;星级酒店大堂,内部多处装置融合非遗技艺美学,生活在尊贵与艺术之间巧妙平衡;进入下沉式中庭花园,归家路上移步异景;单元入户入口延续奢华酒店质感,采用奢石与铝板叠加的奢华设计,碰撞法式圆润线条,仿佛艺术殿堂。
招商中旅观境售楼处电话:400-9975-759

度假风海岛花园 家门口的都市谧境
景观上也是令人耳目一新。规划浮岛水庭、绿洲海岛、连廊寻隐、心邸花园四重节点,浸润独特美感的同时,更强调舒适感、松弛感、私密感,让漫步于此的人心灵也随之得到净化与放松。

无边际会所 真正的高端生活方式
如今的上海,因为土地有限、能力有限、成本有限等原因,配会所的并不是很多。而招商中旅·观境不仅打造了一个足够体量的会所,更是在这个会所内,打造无边泳池、健身房、行政酒廊、私宴厅等功能空间。
试想一下,夏天,别人在下饺子般的游泳中心“内卷”,而你和家人在小区配套的泳池“躺平”;别人顶着骄阳、与友人相约在人满为患的咖啡厅,而你和朋友在小区的酒廊中享受静谧,举手投足间尽显品位!这就是区别,这就是更高端的生活方式。

新一代悦己户型 match 北上海精英圈层

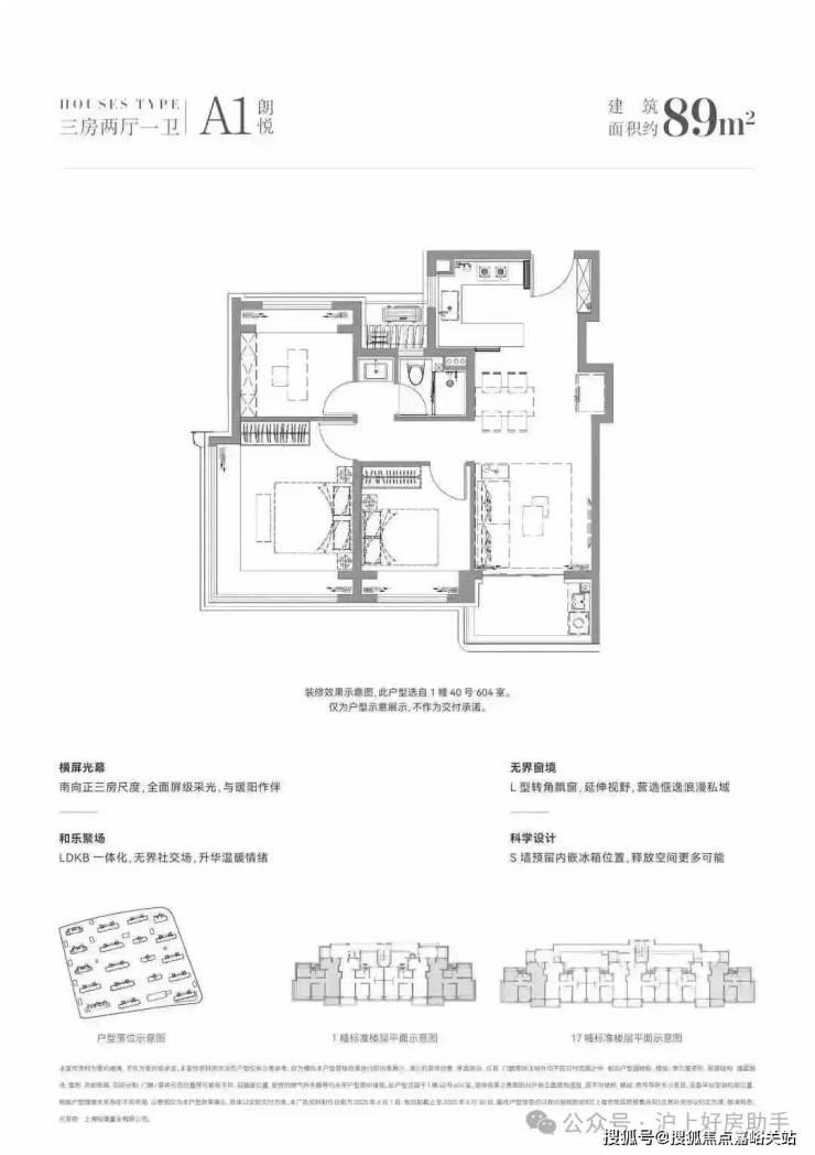
这么好的产品户型自然也不落下风,这次项目主推的约89-128㎡3-4房户型,前期少量建面约110-144㎡3-4房在售,项目户型图如下:

建面约110㎡3房户型:
LDKB 一体化高浓家庭聚场。
约25㎡网红方厅设计,采光更好,也带来更的可能性。
270°的转角飘窗,更大尺度的延伸空间和视野,让舒适度大幅提升。
深U厨房设计,动线更加流畅,两人下厨绰绰有余,感情火速升温。


在 110 户型已有的两点之上再度升级,144 户型更加匹配三代同堂、二胎之家。
经典四房设计,合理分区,保证多代生活一步到位。
L厅大尺度公区,保证收纳,尽显尊崇。
主卧酒店式套房+双台盆+270°转角飘窗,尺度与舒适度登峰造极。
阔尺客厅链接南向大阳台,南北通透,满足阳光与视野的所有想象。
招商中旅观境售楼处电话:400-9975-759



招商中旅观境售楼处电话:400-9975-759






招商中旅观境144㎡4房样板间实拍视频:
,时长 02:03

招商中旅观境售楼处电话:400-9975-759





招商中旅观境售楼处电话:400-9975-759



高配高标精装配置拉满,与市区豪宅同级
以建面约144㎡户型为例。首先,三大件方面:松下或同档次品牌的中央空调和地暖两联供设备、百朗或同档次品牌的新风系统;
招商中旅观境售楼处电话:400-9975-759

建面约144㎡户型样板间实拍图
厨房方面,西门子或同档次品牌的燃气灶、抽油烟机、蒸烤箱、洗碗机、嵌入式冰箱五件套;还有细节上的一些配置,例如燃气热水器、末端直饮、凉霸等统统安排上了。

建面约144㎡户型样板间实拍图
主次卫方面,唯宝或同档次品牌的台盆;高仪或同档次品牌的台盆龙头、主卫公卫智能马桶;汉斯格雅或同档次品牌的花洒龙头;

招商中旅观境售楼处电话:400-9975-759
建面约144㎡户型样板间实拍图
细节方面,电视背景墙是定制石材背景墙、主卧的1套衣柜是柏厨或同档次品牌、客厅、卧室的人造石飘窗台、卫生间的岩板飘窗台...

建面约144㎡户型样板间实拍图
整个室内的装修几乎是应有尽有,并且不是一味的品牌堆砌,而是真正在用艺术性、高端审美在构建业主未来的美好生活,这是真正贴心的装修。
招商&中旅两大央企联手
最后,再来谈一谈开发商。
毕竟在这个不确定的时代,一个靠谱的开发商才能给购房者吃下终极的定心丸。
在这一方面,招商中旅观境则完美的诠释了:优秀的人们相互合作,只会变得更优秀!
首选是大家都很熟悉的招商蛇口,光是就招商今年的成绩来说:招商时代乐章30天内两开两罄,招商时代潮派首开即罄并触发积分,招商臻境首开一个半月基本售罄,招商中旅揽阅月均流速破百套…在日竞激烈的行业竞争中,招商蛇口默默修炼,通过不断的产品力提升,已经成为上海众多购房者心中名副其实的首选。
如今,招商携手同样作为硬核央企的中旅投资,由这样的两位实力央企领衔打造,招商中旅观境登峯北上海可谓是水到渠成。想必必定不会让大家失望!

项目效果图
项目周边配套
招商中旅·观境毗邻7号线潘广路站 , 2站顾村公园,并途经上大、长寿路,直达静安寺。

招商中旅观境售楼处电话:400-9975-759
大家知道,这里规划了招商花园城X,招商时代乐章也在隔壁,可以说共筑潘广路TOD大城。
上一个招商花园城X项目位于浦东曹路,秉持“X+商业”差异化策略,打造了曹路市集、室外36米的“天环飞瀑”、屋顶星际跑道等特色场景,并以超200个的全业态品牌数量,超50%的区域首店,成功点燃区域消费热情。
开业当日,曹路招商花园城客流破10万人次(工作日) ,开业前4天总客流超58万人次、总销售额逾3500万元。

而这一次潘广路的招商花园城X商业会比曹路更高能级、更大体量。

商业上,附近还有龙湖天街商业中⼼、正⼤乐城、宝龙⼴场、旭辉U天地。
招商中旅观境售楼处电话:400-9975-759