中海·云邸玖章(中海·云邸玖章售楼处) -销售中心 - 环境 - 户型 - 价格 - 地址 - 楼盘详情 - 配套 - 电话 - 交房时间 - 配套 - 电话 - 交房时间

嘉峪关楼市发布 2025-11-22 14:46:06
用手机看
扫描到手机,新闻随时看

扫一扫,用手机看文章
更加方便分享给朋友

中海.云邸玖里售楼处电话:400-8894-986VIPLINE24小时热线即刻预约快人一步

中海.云邸玖里售楼处电话:400-8894-986VIPLINE24小时热线即刻预约快人一步一园:更享上海风貌别墅所罕见的生态资源,对望百年波阳公园,香樟如盖、四季有花,占地面积近1万平,绿化面积近6000平,推窗即揽浓荫秘境,步行约900米即达黄浦江岸,实现“江园双景”的极致占有。中海.云邸玖里售楼处电话:400-8894-986VIPLINE24小时热线即刻预约快人一步

中海.云邸玖里售楼处电话:400-8894-986VIPLINE24小时热线即刻预约快人一步 一庭院:在寸土寸金的上海一江一河,拥有一片可奔跑、可小憩的真草坪庭院,可以说是难得的奢侈。中海.云邸玖里售楼处电话:400-8894-986VIPLINE24小时热线即刻预约快人一步走进云邸玖里私人庭院,真正体会到什么叫“生活在风景里”。约百平转角庭院,尺度开阔,以围合的格局营造出被自然环抱的私属花园视野。一眼望去,绿意舒展,天空是顶,土地是基。在这方自己的天地里,生活才真正心有所属,一步衔接自然。中海.云邸玖里售楼处电话:400-8894-986VIPLINE24小时热线即刻预约快人一步

中海.云邸玖里售楼处电话:400-8894-986VIPLINE24小时热线即刻预约快人一步 再塑传承,用极致匠心复刻海派传世风骨:中海这几年的项目都是上海绝对的稀缺豪宅。恒昌玖里、顺昌玖里拥有着三“最”头衔,是上海最早的一批风貌产品,同时也是最快清盘的,并且至今依然保持上海风貌别墅最高价。

中海.云邸玖里售楼处电话:400-8894-986VIPLINE24小时热线即刻预约快人一步

这样套均上亿的豪宅客户经验,也让中海真正的懂得高净值圈层的需要,这是极少开发商能够拥有的开发经验。

中海.云邸玖里售楼处电话:400-8894-986VIPLINE24小时热线即刻预约快人一步

云邸玖里作为玖系全新续作,延续“以当代匠心致敬城市文脉”的核心理念,将海派建筑的形与神刻入每一寸肌理。

中海.云邸玖里售楼处电话:400-8894-986VIPLINE24小时热线即刻预约快人一步建筑外立面的营造,依旧秉承不畏工繁,不惧料贵的考究与匠心,尽显沉稳厚重;屋顶采用老上海经典马赛瓦,疏水性强、历久弥新,复刻城市“第五立面”的诗意天际线。中海.云邸玖里售楼处电话:400-8894-986VIPLINE24小时热线即刻预约快人一步

中海.云邸玖里售楼处电话:400-8894-986VIPLINE24小时热线即刻预约快人一步

建筑基层石材选用近拟传统皇家建筑所用金山石的世贸金麻,经手工凿毛、酸洗做旧处理,搭配铜质落水管、水纹压花玻璃,每一处细节都在诉说海派大宅的优雅与贵重。中海.云邸玖里售楼处电话:400-8894-986VIPLINE24小时热线即刻预约快人一步

中海.云邸玖里售楼处电话:400-8894-986VIPLINE24小时热线即刻预约快人一步从单块重逾3吨整石雕刻的门楣石箍,到手工锻打的铜质门栓、天然奢石门把手;从“暧昧色”红砖的千万种排列组合,到异形砖5%成品率下的执着坚持——中海再一次以艺术家的偏执,打造8件属于杨浦滨江的孤品,让建筑成为跨越百年的城市对话。中海.云邸玖里售楼处电话:400-8894-986VIPLINE24小时热线即刻预约快人一步

中海.云邸玖里售楼处电话:400-8894-986VIPLINE24小时热线即刻预约快人一步 只此百平花园风貌别墅,8席孤品重新定义时代生活:在寸土寸金的杨浦滨江,云邸玖里以“仅8席”的稀缺体量,打造全市唯一的一处全双拼风貌别墅,彻底告别联排的拥挤与遮挡,270度采光,每户皆为边套,真正实现“一户一天地”的尊崇体验。中海.云邸玖里售楼处电话:400-8894-986VIPLINE24小时热线即刻预约快人一步

中海.云邸玖里售楼处电话:400-8894-986VIPLINE24小时热线即刻预约快人一步

最新消息!杨浦滨江中海云邸玖里有8套风貌别墅将推!产品为建面约249-318㎡风貌别墅,地上3层+地下两层+花园。单价约16~18万/㎡,总价4000万+;售楼处线上火热预约中!

中海.云邸玖里售楼处电话:400-8894-986VIPLINE24小时热线即刻预约快人一步

中海.云邸玖里售楼处电话:400-8894-986VIPLINE24小时热线即刻预约快人一步产品尺度的颠覆,让生活无需妥协:庭院上,每户享有 约超100㎡转角私家庭院,超270°环景视野,搭配超百米楼间距,二排也达约8-10米,阳光自由穿行,隐私绝对保障;318㎡户型南向花园面宽达约12.5米,在城央摆下草坪野餐、庭院派对毫不局促。

中海.云邸玖里售楼处电话:400-8894-986VIPLINE24小时热线即刻预约快人一步

空间上,采用全上海唯一纯钢结构,无梁无柱设计让空间自由定制—— 约3.6米首层层高、近6米双层地下室配约13㎡超大采光井,告别“地下感”、全站立阁楼,超约30㎡可用空间、约31㎡星空露台+阳光房,构建“地上三层+地下两层+庭院+露台”的多维空间。中海.云邸玖里售楼处电话:400-8894-986VIPLINE24小时热线即刻预约快人一步

中海.云邸玖里售楼处电话:400-8894-986VIPLINE24小时热线即刻预约快人一步

中海.云邸玖里售楼处电话:400-8894-986VIPLINE24小时热线即刻预约快人一步布局上,首层南向全开放,与庭院无缝衔接,打造“家庭欢聚场”;二层为孩子专属成长空间,中海.云邸玖里售楼处电话:400-8894-986VIPLINE24小时热线即刻预约快人一步可灵活切换双套房+共享书房或三代同堂布局;三层整层为主人私享领地,环形动线衣帽间、四件套主卫、星空露台,犒赏极致私密;地下室可改造为影音室、酒窖、藏品展厅,满足多元兴趣需求。中海.云邸玖里售楼处电话:400-8894-986VIPLINE24小时热线即刻预约快人一步

中海.云邸玖里售楼处电话:400-8894-986VIPLINE24小时热线即刻预约快人一步

全市稀缺超约100m²包围式沉浸花园。

纯钢结构建筑,使用面积超出想象空间。

中海.云邸玖里售楼处电话:400-8894-986VIPLINE24小时热线即刻预约快人一步

中海.云邸玖里售楼处电话:400-8894-986VIPLINE24小时热线即刻预约快人一步

中海.云邸玖里售楼处电话:400-8894-986VIPLINE24小时热线即刻预约快人一步

中海.云邸玖里售楼处电话:400-8894-986VIPLINE24小时热线即刻预约快人一步

中海.云邸玖里售楼处电话:400-8894-986VIPLINE24小时热线即刻预约快人一步

中海.云邸玖里售楼处电话:400-8894-986VIPLINE24小时热线即刻预约快人一步

部分样板间展示如下:

中海.云邸玖里售楼处电话:400-8894-986VIPLINE24小时热线即刻预约快人一步

中海.云邸玖里售楼处电话:400-8894-986VIPLINE24小时热线即刻预约快人一步

从不可复制的核心资源,到穿越时光的匠心风骨,再到颠覆想象的产品尺度,中海云邸玖里的每一处都在诠释“水岸生活稀世孤品”的价值。仅8席,注定只为少数时代藏家所有。中海.云邸玖里售楼处电话:400-8894-986VIPLINE24小时热线即刻预约快人一步

中海.云邸玖里售楼处电话:400-8894-986VIPLINE24小时热线即刻预约快人一步

地段:纵享国际滨水生活,坐拥世纪规划红利!

黄浦江沿岸被定位世界会客厅,住在这样的地方享受的必然是人人欣羡的国际滨水生活!中海.云邸玖里售楼处电话:400-8894-986VIPLINE24小时热线即刻预约快人一步

通勤方面,中海·云邸玖里距离地铁12号线隆昌路站直线约500米,步行可达。进站后4站北外滩,中海.云邸玖里售楼处电话:400-8894-986VIPLINE24小时热线即刻预约快人一步 7站陆家嘴,8站人广,快速链接城心CBD。另外,项目所在板块还规划有能串联大浦东的24号线,出入口就在合生汇商业附近(以政府官宣规划为准)。

中海.云邸玖里售楼处电话:400-8894-986VIPLINE24小时热线即刻预约快人一步

项目与国际时尚中心、合生滨江超极合生汇(在建)都是步行可达的距离,未来尽享地标级商业氛围。

中海.云邸玖里售楼处电话:400-8894-986VIPLINE24小时热线即刻预约快人一步

同时杨浦滨江有公共绿地约48.46公顷,滨江跑道、步道、骑行道现已全线贯通,使此地成为集合品牌策展、网红打卡、运动休闲等功能于一体的文创休闲带。

中海.云邸玖里售楼处电话:400-8894-986VIPLINE24小时热线即刻预约快人一步

中海.云邸玖里售楼处电话:400-8894-986VIPLINE24小时热线即刻预约快人一步

更重要的是,除了居住上的无懈可击,杨浦的科创规划也迎来兑现!

中海.云邸玖里售楼处电话:400-8894-986VIPLINE24小时热线即刻预约快人一步

据悉,杨浦滨江中交滨江广场已竣工。中节能、美团预计2025年竣工。字节跳动、哔哩哔哩、中海.云邸玖里售楼处电话:400-8894-986VIPLINE24小时热线即刻预约快人一步 滨江创智中心则预计于2026年竣工。伴随着产业竣工和人口导入,杨浦滨江在2027年将迎来全面繁荣,届时云邸玖章同步交付,时间点踩的刚刚好!

中海.云邸玖里售楼处电话:400-8894-986VIPLINE24小时热线即刻预约快人一步

中海.云邸玖里售楼处电话:400-8894-986VIPLINE24小时热线即刻预约快人一步

中海.云邸玖里售楼处电话:400-8894-986VIPLINE24小时热线即刻预约快人一步

除了此前规划的兑现,最近杨浦大事件频发,新增利好层出不穷:

· 4月以长阳创谷为核心的类脑智能未来产业集聚区启动建设。

· 5月超宽禁带半导体未来产业集聚区、硅光未来产业集聚区、脑机接口未来产业集聚区先后开建中海.云邸玖里售楼处电话:400-8894-986VIPLINE24小时热线即刻预约快人一步

· 7月上海市第41批跨国公司地区总部和研发中心颁证暨外商投资集中签约仪式在市政府举行。中海.云邸玖里售楼处电话:400-8894-986VIPLINE24小时热线即刻预约快人一步

· 7月中旬杨浦区创智天地6号楼的“V聚场”正式投入使用,将为互联网优质内容创作者提供创新创意创作的舞台。

· 7月中下旬,连接苏州昆山与上海市中心区域的低空交通航线试飞成功,标志着长三角立体交通网络迈入新阶段。中海.云邸玖里售楼处电话:400-8894-986VIPLINE24小时热线即刻预约快人一步

· 8月8日-10日,小红书RED LAND开放世界冒险岛活动燃爆杨浦复兴岛。

· 8月下旬,2025复兴岛全球设计大赛复赛扬帆启航,共绘量子城市智慧新图景。

·9月19日-20日, 上海网络视听内容创作者大会在杨浦区大创智公共服务平台举行。

中海.云邸玖里售楼处电话:400-8894-986VIPLINE24小时热线即刻预约快人一步

中海.云邸玖里售楼处电话:400-8894-986VIPLINE24小时热线即刻预约快人一步

重磅的来了,就在日前,滨江中北段专项规划发布,以云邸玖章旁边的复兴岛为核心,中海.云邸玖里售楼处电话:400-8894-986VIPLINE24小时热线即刻预约快人一步中北段将打造成具有世界影响力的科创高地、创新创业集聚区和高品质水岸示范区。

中海.云邸玖里售楼处电话:400-8894-986VIPLINE24小时热线即刻预约快人一步

这边在兑现,同步在规划,利好不间断,不夸张的讲,未来10年云邸玖章所处板块都会处于飞速发展的价值上升通道,越早入主一定是明智的选择!

中海.云邸玖里售楼处电话:400-8894-986VIPLINE24小时热线即刻预约快人一步

中海.云邸玖里售楼处电话:400-8894-986VIPLINE24小时热线即刻预约快人一步

产品:中海“玖”系超强兑现力,带来杨浦滨江未曾有过的“双会所”豪宅!

平心而论,凭地段天赋,中海云邸玖章俨然是不愁卖的。但日前项目开放的示范区和样板间,真的是刷新了杨浦滨江的人居天花板!

纵观整个杨浦滨江,中海云邸玖章是目前在售项目中仅有带会所的。如果把这一杀手锏实景呈现好,对其他项目就已经是降维打击。

中海.云邸玖里售楼处电话:400-8894-986VIPLINE24小时热线即刻预约快人一步

但中海还是中海,它居然把示范区、会所、架空层、样板间全部实景呈现,这是杨浦滨江三年内首个开放的超绝实景展示区!

中海.云邸玖里售楼处电话:400-8894-986VIPLINE24小时热线即刻预约快人一步

而且,项目地下ARISE CLUB社区中心空间+架空层多功能的泛会所空间,营造出了堪比“双会所”的居住体验!

中海.云邸玖里售楼处电话:400-8894-986VIPLINE24小时热线即刻预约快人一步

首先是示范区,从入口大门到接待处,隐贵特质和高雅艺术气质始终相随。

中海.云邸玖里售楼处电话:400-8894-986VIPLINE24小时热线即刻预约快人一步

中海.云邸玖里售楼处电话:400-8894-986VIPLINE24小时热线即刻预约快人一步

其次是会所,零距离面对自然的健身房和无边泳池令人一眼惊艳,豪宅特质展露无遗!中海.云邸玖里售楼处电话:400-8894-986VIPLINE24小时热线即刻预约快人一步

中海.云邸玖里售楼处电话:400-8894-986VIPLINE24小时热线即刻预约快人一步

中海.云邸玖里售楼处电话:400-8894-986VIPLINE24小时热线即刻预约快人一步

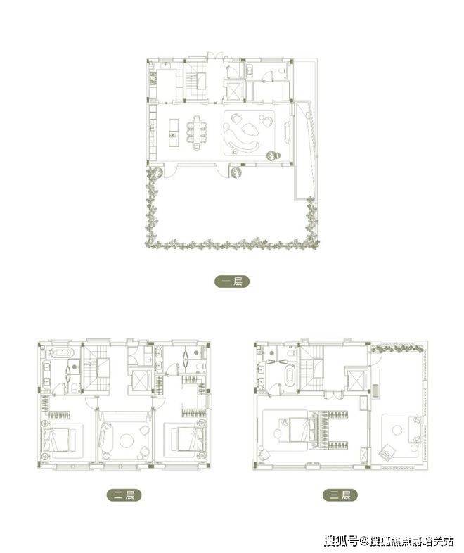
杨浦滨江中海云邸玖里建面约249-318㎡风貌别墅;总价约4000万+!

建筑面积约318平方米户型图

继顺昌玖里、恒昌玖里

中海·云邸玖里再造杨浦滨江封面作品

中海.云邸玖里售楼处电话:400-8894-986VIPLINE24小时热线即刻预约快人一步

中海继新天地顺昌玖里创下约409亿销售神话,也是全上海第一个清盘的风貌别墅后,中海.云邸玖里售楼处电话:400-8894-986VIPLINE24小时热线即刻预约快人一步在杨浦滨江核心商务区落下全新风貌别墅力作「云邸玖里」Arise Villa ,在一江一河打造的与新天地顺昌玖里、恒昌玖里一脉相承的稀缺风貌产品,为上海高净值家庭献上仅8席的传世藏品。

中海.云邸玖里售楼处电话:400-8894-986VIPLINE24小时热线即刻预约快人一步

一江一园一庭院地段与自然资源的稀缺性

中海.云邸玖里售楼处电话:400-8894-986VIPLINE24小时热线即刻预约快人一步真正的顶豪,从来都是对城市核心资源的极致占有,云邸玖里位于杨浦滨江核心商务区。中海.云邸玖里售楼处电话:400-8894-986VIPLINE24小时热线即刻预约快人一步想象一下,未来坐拥超百平的私人庭院,抬头望南向是百年波阳公园,走出宅门步行距离即可到达无比开阔的世界级黄浦江岸,是在整个上海都极其稀缺的存在。

中海.云邸玖里售楼处电话:400-8894-986VIPLINE24小时热线即刻预约快人一步

一江:中海·云邸玖里与百万方科创水岸地标群落为邻。一路之隔即是约43万方超极合生汇,中海.云邸玖里售楼处电话:400-8894-986VIPLINE24小时热线即刻预约快人一步米其林餐厅等潮流业态一站式配齐;步行可达美团上海总部“黑珍珠创意美食带”与B站开放式新世代产业园,约14万方潮流商业+沉浸式演艺中心,承包高阶消费与年轻活力。

中海.云邸玖里售楼处电话:400-8894-986VIPLINE24小时热线即刻预约快人一步

中海.云邸玖里售楼处电话:400-8894-986VIPLINE24小时热线即刻预约快人一步

一园:更享上海风貌别墅所罕见的生态资源,对望百年波阳公园,香樟如盖、四季有花,占地面积近1万平,中海.云邸玖里售楼处电话:400-8894-986VIPLINE24小时热线即刻预约快人一步绿化面积近6000平,推窗即揽浓荫秘境,步行约900米即达黄浦江岸,实现“江园双景”的极致占有。

中海.云邸玖里售楼处电话:400-8894-986VIPLINE24小时热线即刻预约快人一步

中海.云邸玖里售楼处电话:400-8894-986VIPLINE24小时热线即刻预约快人一步

一庭院:在寸土寸金的上海一江一河,拥有一片可奔跑、可小憩的真草坪庭院,可以说是难得的奢侈。走进云邸玖里私人庭院,真正体会到什么叫“生活在风景里”。约百平转角庭院,中海.云邸玖里售楼处电话:400-8894-986VIPLINE24小时热线即刻预约快人一步尺度开阔,以围合的格局营造出被自然环抱的私属花园视野。一眼望去,绿意舒展,天空是顶,土地是基。在这方自己的天地里,生活才真正心有所属,一步衔接自然。

中海.云邸玖里售楼处电话:400-8894-986VIPLINE24小时热线即刻预约快人一步

中海.云邸玖里售楼处电话:400-8894-986VIPLINE24小时热线即刻预约快人一步

再塑传承,用极致匠心复刻海派传世风骨

中海.云邸玖里售楼处电话:400-8894-986VIPLINE24小时热线即刻预约快人一步

中海这几年的项目都是上海绝对的稀缺豪宅。恒昌玖里、顺昌玖里拥有着三“最”头衔,中海.云邸玖里售楼处电话:400-8894-986VIPLINE24小时热线即刻预约快人一步是上海最早的一批风貌产品,同时也是最快清盘的,并且至今依然保持上海风貌别墅最高价。

中海.云邸玖里售楼处电话:400-8894-986VIPLINE24小时热线即刻预约快人一步

这样套均上亿的豪宅客户经验,也让中海真正的懂得高净值圈层的需要,这是极少开发商能够拥有的开发经验。

中海.云邸玖里售楼处电话:400-8894-986VIPLINE24小时热线即刻预约快人一步

云邸玖里作为玖系全新续作,延续“以当代匠心致敬城市文脉”的核心理念,将海派建筑的形与神刻入每一寸肌理。

中海.云邸玖里售楼处电话:400-8894-986VIPLINE24小时热线即刻预约快人一步

中海.云邸玖里售楼处电话:400-8894-986VIPLINE24小时热线即刻预约快人一步

建筑外立面的营造,依旧秉承不畏工繁,不惧料贵的考究与匠心,尽显沉稳厚重;屋顶采用老上海经典马赛瓦中海.云邸玖里售楼处电话:400-8894-986VIPLINE24小时热线即刻预约快人一步疏水性强、历久弥新,复刻城市“第五立面”的诗意天际线。

中海.云邸玖里售楼处电话:400-8894-986VIPLINE24小时热线即刻预约快人一步

建筑基层石材选用近拟传统皇家建筑所用金山石的世贸金麻,经手工凿毛、酸洗做旧处理,搭配铜质落水管、水纹压花玻璃,每一处细节都在诉说海派大宅的优雅与贵重。

中海.云邸玖里售楼处电话:400-8894-986VIPLINE24小时热线即刻预约快人一步

中海.云邸玖里售楼处电话:400-8894-986VIPLINE24小时热线即刻预约快人一步

从单块重逾3吨整石雕刻的门楣石箍,到手工锻打的铜质门栓、天然奢石门把手;从“暧昧色”中海.云邸玖里售楼处电话:400-8894-986VIPLINE24小时热线即刻预约快人一步红砖的千万种排列组合,到异形砖5%成品率下的执着坚持——中海再一次以艺术家的偏执,打造8件属于杨浦滨江的孤品,让建筑成为跨越百年的城市对话。

中海.云邸玖里售楼处电话:400-8894-986VIPLINE24小时热线即刻预约快人一步

中海.云邸玖里售楼处电话:400-8894-986VIPLINE24小时热线即刻预约快人一步

只此百平花园风貌别墅,8席孤品重新定义时代生活

在寸土寸金的杨浦滨江,云邸玖里以“仅8席”的稀缺体量,打造全市唯一的一处全双拼风貌别墅,中海.云邸玖里售楼处电话:400-8894-986VIPLINE24小时热线即刻预约快人一步彻底告别联排的拥挤与遮挡,270度采光,每户皆为边套,真正实现“一户一天地”的尊崇体验。

中海.云邸玖里售楼处电话:400-8894-986VIPLINE24小时热线即刻预约快人一步

中海.云邸玖里售楼处电话:400-8894-986VIPLINE24小时热线即刻预约快人一步

产品尺度的颠覆,让生活无需妥协:庭院上,每户享有约超100㎡转角私家庭院,超270°环景视野,搭配超百米楼间距,二排也达约8-10米,阳光自由穿行,隐私绝对保障;中海.云邸玖里售楼处电话:400-8894-986VIPLINE24小时热线即刻预约快人一步318㎡户型南向花园面宽达约12.5米,在城央摆下草坪野餐、庭院派对毫不局促。

中海.云邸玖里售楼处电话:400-8894-986VIPLINE24小时热线即刻预约快人一步

空间上,采用全上海唯一纯钢结构,无梁无柱设计让空间自由定制——3.6米首层层高、近6米双层地下室配约13㎡超大采光井,告别“地下感”、全站立阁楼,超约30㎡可用空间、中海.云邸玖里售楼处电话:400-8894-986VIPLINE24小时热线即刻预约快人一步约31㎡星空露台+阳光房,构建“地上三层+地下两层+庭院+露台”的多维空间。

中海.云邸玖里售楼处电话:400-8894-986VIPLINE24小时热线即刻预约快人一步

中海.云邸玖里售楼处电话:400-8894-986VIPLINE24小时热线即刻预约快人一步

布局上,首层南向全开放,与庭院无缝衔接,打造“家庭欢聚场”;二层为孩子专属成长空间,中海.云邸玖里售楼处电话:400-8894-986VIPLINE24小时热线即刻预约快人一步可灵活切换双套房+共享书房或三代同堂布局;三层整层为主人私享领地,环形动线衣帽间、四件套主卫、星空露台,犒赏极致私密;地下室可改造为影音室、酒窖、藏品展厅,满足多元兴趣需求。

中海.云邸玖里售楼处电话:400-8894-986VIPLINE24小时热线即刻预约快人一步

中海.云邸玖里售楼处电话:400-8894-986VIPLINE24小时热线即刻预约快人一步

中海.云邸玖里售楼处电话:400-8894-986VIPLINE24小时热线即刻预约快人一步

中海.云邸玖里售楼处电话:400-8894-986VIPLINE24小时热线即刻预约快人一步

从不可复制的核心资源,到穿越时光的匠心风骨,再到颠覆想象的产品尺度,中海云邸玖里的每一处都在诠释“水岸生活稀世孤品”的价值。仅8席,注定只为少数时代藏家所有。

中海.云邸玖里售楼处电话:400-8894-986VIPLINE24小时热线即刻预约快人一步

总结

在上海的一江一河范围内,拥有约五百平的室内空间,享有超百平的私家花园,走出院门变能享受百年绿荫公园,步行距离即可到达开阔的滨江岸线,能够拥有这样的生活,好像已经胜过所有。中海.云邸玖里售楼处电话:400-8894-986VIPLINE24小时热线即刻预约快人一步

PART 01

央行公布!最新房贷利率!

今天,央行公布最新LPR:1年期LPR为3.0%,5年期以上LPR为3.5%,没有降息,LPR已保持6个月未变。

目前,南京首套房贷利率维持在3%,也就是LPR-50BP;二套房贷利率维持在3.3%,也就是LPR-20BP,均为历史最低水平。

自9月美联储降息以来,已经连续3个月LPR保持不变,这着实有点出乎人意料。

今年,美联储已降息两次,联邦基金利率已下降了50个基点。

第一次是在9月17日,美联储宣布将联邦基金利率目标区间下调25个基点,至4.00%-4.25%之间。

第二次是在10月30日,美联储再次下调25个基点,至3.75%-4.00%之间。

不少专业人士普遍预计美联储今年会降息三次,分别在9月、10月和12月,每次25个基点。

对于国内来说,以往美联储降息后也会伴随着国内LPR的下调,货币政策有了更宽松的空间。

此前两次美联储降息,国内并未跟进,这给了12月降息的空间。

那么,今年LPR还有下降的可能吗?

政策层面与市场端的"宽松信号"已十分明确,为后面降息奠定基础。

三季度发改委发布的《国务院关于今年以来国民经济和社会发展计划执行情况的报告》中,明确提出"落实落细适度宽松的货币政策",要求"采取有力措施巩固房地产市场止跌回稳态势"。

11月11日,央行再发话:实施好适度宽松的货币政策。

也有民生银行首经团队分析,尽管三季度货币政策执行报告保持了宽松倾向,但考虑到当前经济回升向好的基础仍需加力巩固、‘十五五’开局之年迈好步的诉求,以及‘十五五’规划建议稿释放的‘实施更加积极的宏观政策’信号,更大力度的货币政策宽松仍有空间,时点可能后移,‘双降’或于2026年第一季度落地。

据统计,2020年以来,人民银行已累计降准12次;累计下调政策利率9次,带动1年期和5年期以上贷款市场报价利率分别下降115个和130个基点。

其中,2024年至今南京房贷利率有4次下降节点。

2024年2月20日,中国人民银行授权全国银行间同业拆借中心公布,1年期LPR为3.45%,维持不变;5年期以上LPR为3.95%,较前值下行25个基点。

2024年7月22日,央行发布最新一期LPR,1年期LPR为3.35%,5年期以上LPR为3.85%,均下调10个基点,是一次全面降息。

2024年10月21日,央行发布最新LPR,1年期LPR为3.1%,5年期以上LPR为3.6%,均下调25个基点!是2024年最大幅度降息!

2025年5月20日,央行发布最新一期LPR,1年期LPR为3.0%,5年期以上LPR为3.5%,均下调10个基点,是一次全面降息。

未来货币政策将保持"适度宽松"总基调,但操作上会更精准。

PART 02

“烫金”好地!南部新城、河西又曝新宅地

南部新城黄金宅地启动推介,即将推出片区内首幅“小而美”的低密宅地——汇秀路以南、神机营路以东地块,容积率1.8,预计起拍楼面地价25417元/㎡,起始总价8.51亿元。

从地块强排方案示意来看,汇秀路以南、神机营路以东地块拟建设2栋6F多层洋房、2栋5 1低密叠拼、3栋17F高层,产品有着十分显著的差异化特色。其中,低密住宅全部沿东侧规划公共配套用地排布,视野更为开阔通透。

地块北侧为象屿G42,南侧为保利文华,东侧隔规划用地为刚刚交付的云尚紫薇,人居氛围十分成熟。与即将首开的丹锦园(容积率2.4)和正在建设中的嘉佰道(容积率1.2)、象屿G42(容积率1.6),可形成产品差异化显著的多元供应体系。据透露,该地块将于近期挂牌公告,值得期待!

此外,据南京市规划和自然资源局最新公示显示,河西中台湾名品城(MCe030-19-09/MCe030-19-08)两幅宅地启动全要素条件申报,这意味着期待已久的河西中台湾名品城超级地块很可能马上就要挂牌出让。

燕山路以西、楠溪江西街以南(MCe030-19-08)地块,用地面积2.25公顷,容积率≤2.4,建筑密度≤25%,建筑高度≤80米。

乐山路以东、楠溪江西街以南(MCe030-19-09)地块,用地性质为二类居住用地,用地面积2.77公顷,容积率≤2.4,建筑密度≤25%,建筑高度≤80米。

这两幅地块正式挂牌时容积率下调有可能会下调(具体信息以官方公布为准),两幅地块周边邻近仁恒江湾城、华新城等楼盘,靠近地铁2号线、10号线元通站,周边有华采天地、河西中央公园等配套,地段优越。

声明:本文由入驻焦点开放平台的作者撰写,除焦点官方账号外,观点仅代表作者本人,不代表焦点立场。