招商中旅观境看房预约流程
第一时间拨打招商中旅观境售楼处电话:400-8894-986VIP热线
承蒙您对 [ 招商中旅观境] 的持续关注,我们深知每一份瞩目背后,都是对理想生活的审慎期待。作为 [ 上海] 人居领域的创新实践者,[ 招商中旅观境] 始终以 “ 定制化生活场景营造” 为核心,在空间设计与社区运营中融入对生活本质的思考,这份坚持,期待与您当面共鉴。

近期,项目 [ 核心亮点,如:景观主轴实景呈现 / 定制化户型样板间开放] 已正式启幕。不同于传统社区的标准化配置,这里的 [ 特色 1,如:全天候共享会客厅] 与 [ 特色 2,如:分层式主题园林],均基于对千余组家庭生活习惯的调研优化而成,旨在让空间真正服务于生活。
以下为正文:
在愈发繁忙的时代,人们越来越渴望一处安放心灵的栖息地,也更加理性地思考人居对于生活的价值和意义。
在北上海全新精奢主义作品中,我们看到了【招商中旅观境】在打造产品中的全新思考,艺术、丰盈、悦己、松弛的精奢生活在此盎然绽放。
自带约25万方花园城X,也是北上海最大的单体商业综合体,融合潮玩、时尚、文旅、游娱、运动、会展、生态等多元业态,预计引入20+主次力店,350+战略品牌,下楼即享繁盛日常。

宝山顾村,7号线地铁盘,招商蛇口&中旅投资潘广路站项目——【招商中旅观境】三期开盘热卖中!
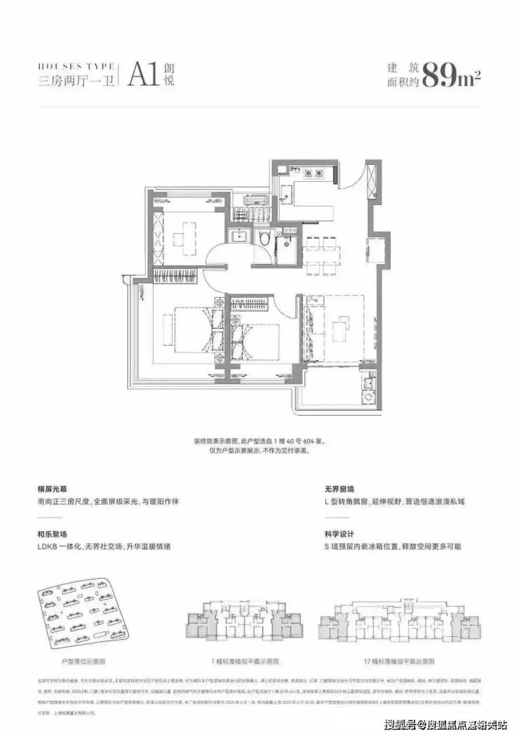
加推89-110㎡3房、共计142套
89㎡户型首次推出
过会均价47466元/㎡,比前期便宜3000,总价347万起
前期少量建面约110-144m²3-4房
装修标准2500元/m²
过会均价50713元/m²,总价433万起!


户型图赏鉴




样板间实探
先来看建面约110㎡3房2卫
入户门是是非常有质感的 铸铝门,带 电子猫眼智能门锁;进门后是一个 独立玄关,木纹玄关背景墙,右侧是通顶的悬浮玄关柜,内置鞋柜精灵和抽拉鞋架。


这个户型的一大亮点就是这个客厅, 约5.5米面宽的阳台,约25㎡的方厅,充满了可变性。

传统住宅设计中,每个房间的连接处都会有或深或浅的过道空间,造成空间浪费。
招商中旅·观境的解决方案是 “零无效空间”。通过整合餐客厨等公共区域厅,将原来南北厅中间的走廊空间融合到使用空间中,减少过道的面积,避免碎片化的空间带来的冗余浪费。大面宽,短进深,餐厅与客厅横向相连,每一平方米都物尽其用,把客厅升级为家庭互动主场。
约5.5m面宽的阳台,可以变成第二家庭厅、品茗室、阳光瑜伽室、生活后花园,自由打造的私享空间,延伸出生活的宽度。

再来看下厨房配置。 U型厨房,预留了大约1米宽的双开门冰箱位置,厨电采用 方太四件套——烟机、灶具、蒸烤一体机、洗碗机。其中洗碗机,轻扣门板可自动开门的新款!

厨房移门是类似于水波纹的三移门,不占空间,上轨道设计,更易于日常清扫。

双卫配置,其中一个做了干湿分离,科勒台盆+双智能马桶+高仪花洒,除雾镜柜均内置了牙刷消毒器、预留吹风机插座。主卫镜柜还有美妆冰箱,收纳空间相当充足。



样板间3房做的是边套,今年非常流行的L型转角大飘窗也安排上了,采光视野更佳。

再来看下建面 约144㎡4房,部分装标是有所升级的。
入户门升级为了子母门,更显大户人家气质。

厨房是带岛台交付的U型厨房, 厨具品牌为西门子四件套,另外还有双开门冰箱,线性凉霸、科勒单槽。


橱柜转角处的拉篮做了“轻松抽”,业主不必特别伸手探进去拿东西,非常省力。

客厅电视机背景墙采用了波浪状的岩板背景墙,比较独特。

主卧卫生间采用唯宝双人台盆,客卫高仪花洒+龙头+智能马桶。

三间卧室朝南,北次卧借助飘窗空间,也可以做成儿童房。




招商中旅·观境,样板间刚刚开放,上述装标还未完全,可以作为参考,具体以实际交付为准。
土拍回顾及规划
7月9日,2024年上海第三批次土拍, 招商联合中旅拿下宝山区顾村7号线潘广路站TOD综合体项目,该项目由3幅地块组成。
01、【0303-02地块】为普通商品房用地,用地面积约39769㎡,容积率2.2,限高60米。据规设计方案显示,拟建 12栋17-18F高层住宅,2栋区配套,无保障住宅,共计规划901户。

02、【0309-04地块】为普通商品房用地,用地面积约29337㎡,容积率2.3,限高60米,含商业建筑面积5100㎡;根据设计方案显示, 拟建8栋17-18F高层住宅、1栋17F保障住宅以及3栋1-3F商业,共计规划645户。

03、【0304-06地块】为商业用地,用地面积约60299㎡,容积率2.9,限高80米,含文化建筑面积10000㎡!
整个地块中商业占比53%,约17.48万㎡,住宅占比47%,约15.49万㎡。
效果图 仅供参考

如此大体量的TOD综合体,依托7号线潘广路站优渥的轨道交通,注定成为激活北上海生活、经济活力的巨大引擎, 招商蛇口也正以其多元业务领域的厚积薄发,为宝山打造一座前所未有的全新升级版地标作品。
招商蛇口宝山潘广路TOD综合体落的落地,毫无疑问将成为激活顾村乃至整个北上海的活力按钮,以丰盛、多元、复合的生活形态成为区域生活的原点,让城市的生活想象再一次被招商蛇口所焕新, 一个崭新的生活大城正跃然眼前。

就项目本身而言,传递出比较强的美学。
01、流体美学:游艇曲线,鎏金塔冠!
项目效果图,仅供参考,以实际交付为准

微弧阳台,环幕之境:
项目效果图,仅供参考,以实际交付为准

轻法雅奢的圆润线条,比如入户门头:
项目效果图,仅供参考,以实际交付为准

02、镜面美学:大窗墙比,打造宽屏立面!
项目效果图,仅供参考,以实际交付为准

社区上,项目享 四重酒店式归家,
第一重:约70米超大尺度酒店感门庭,打造酒店般的港湾式落客。
第二重:酒店式礼品大堂,以星级酒店审美融合非遗技艺,每次回家宛如入住酒店的check in。
第三重:浮岛水庭,下沉式中庭花园,以水境、浮岛、密林,构建都市中的谧境。
第四重:入户单元门头延续奢华酒店的美学质感。
项目效果图,仅供参考,以实际交付为准

还 配备无边际会所,含酒廊、泳池、健身、瑜伽、私宴、棋牌、高尔夫等功能空间。



生活配套
交通方面:距离7号线潘广路站约300米,2站换乘15号线。无缝直达普陀长风、静安寺、长宁古北、上海南站、徐汇滨江以及紫竹高新等多个市区核芯板块。
商业方面:自有大体量商办综合体,7号线上盖的龙湖天街、未来还有印象城环伺。
效果图

教育方面:华二宝山实验学校,宝山世界外国语学院、上海世外云尚欧莱幼儿园,另外,根据板块规划显示,在项目周边有规划一幅幼儿园、一幅小学以及一幅初中用地(新盘不承诺学区对口)

医疗方面:地铁两站就是三甲医院复旦大学附属华山医院宝山院区。

生态方面,顾村公园也是本市较大的郊野公园,相当于三个世纪公园大小。更是上海环城生态规划系统上的重要组成部分,是上海绿色生态核心之一。

为确保您获得从容的品鉴体验,我们为您预留了 专属接待通道,可通过以下方式预约:
招商中旅观境售楼处VIPLINE:400-8894-986(24小时在线拨通后一对一讲解项目信息)
招商中旅观境售楼处专线: 400-8894-986
(工作日 9:00-21:00 / 周末及节假日 9:00-22:00 专人接听)
联系您的专属置业顾问
· 到访当日,您将优先了解 [ 招商中旅观境] 的 独家规划理念,并可参与 [ 限量活动,如:设计师一对一户型解析]。现场更备有 [ 定制礼遇],致敬您的信任。
· 理想居所的选择,从来值得细细考量。我们期待在 [招商中旅观境] 售楼中心,与您展开一场关于生活本真的深度对话。

近日,广州某开发商宣布保价购房,承诺8月至10月期间购买指定房源,保证到年底不降价。如果降价,可以申请按对应差价的同等价值补偿(最高为20万元物业费)。消息周三上了全国热搜。就算你不是做房地产的,也一样能够看出这是营销策略,为的是楼盘促销。而你也可能依稀感觉这类手法好像之前见过。

图片源于网络
值得关注的大致有以下几个点:
“保价”销售这的确是楼盘的促销策略,之前也有开发商用过,但效果不怎么好,口碑也不怎么好。因为过去多数承诺不降价的楼盘,最终都变相降价了。有部分有补偿,有部分没有补偿,有补偿的也不见得前期买房的业主满意。
因为房子定价参考要素很多,而且每套房子价格都不同。同一条路上,不同小区不同档次;同一个小区,不同楼栋不同环境;同一个楼栋,不同朝向不同景观;同一个朝向,不同楼层不同视野。核心问题是,你永远无法证明你的那套房子是否降价,或者到底降了多少,所以索赔没有明确标准,最终只能有一个模糊的范围,最终还是由开发商说了算。
这次和之前最大的不同是,“保价”时间较短,8月至10月期间购买,“保价”到年底,满打满算也就4至5个月时间。开发商并没有说永远不降价,所以这个策略具有一定的可操作性,也相对容易获得购房者的信任。另外,这个促销政策其实也隐含了一个楼市目前的困局,就是部分有购房需求的客户不敢买房,怕今天买了,明天马上降价。
其实目前大家都明白,房价涨价是市场行为,能不能判断未来的趋势主要还是考验自己的眼光,没有包赚不赔的买卖。但商家经常性的阶段降价促销,又会让之前购买但错过优惠的客户懊恼不已。所以这次开发商的“保价”行为,并不是对房价长期涨跌趋势和购房者的一种对赌行为,而是承诺客户在一段时期内,能够获得最优惠的购房折扣。所以这次的“保价”和过往类似的营销政策有较大差别。
至于效果好不好,仍需要观察。毕竟楼市自4月份开始就出现了明显的降温,这是中美贸易冲突之后,对经济下行的担忧在楼市方面的投射。各大开发商虽有各自的策略应对市场下行,但却无法改变市场大势。