联仲都悦汇售楼处电话:400-8874-108✔【已认证】 联仲都悦汇营销中心电话:400-8874-108✔✔【已认证】
上海联仲都悦汇官方售楼处电话:400-8874-108 VIPLINE✔✔✔【已认证】
——联仲都悦汇——
联仲都悦汇售楼处电话:400-8874-108✔【最新预约】
联仲都悦汇营销中心电话:400-8874-108✔✔【最新认证】
上海联仲都悦汇官方售楼处电话:400-8874-108 VIPLINE✔✔✔【最新发布】
如有问题可来电咨询,线上售楼中心,预约销售专员,一对一为您服务!
想了解联仲都悦汇更多信息?拨打售楼处营销中心热线:400-8874-108 (中介勿扰)【24小时热线】
最新消息,送100w装修!闵行·商墅 联仲·都悦汇 约310-411㎡法式商墅!总价约1420万~1800
闵行·旗忠别墅富人区
【联仲·都悦汇】
建面310~411㎡商业联排别墅
法式干挂 地上三层 地下一层
带南北双花园90-300㎡
总价约:1420-1800万
实景现房 不限购 通燃气
01.项目基本信息
【开发商】:上海联仲置业有限公司
【物业】:上海仲量联行物业管理公司
【容积率】:1.0
【绿化率】:35%
【车位比】:1:2.1
【物业费】:8元/㎡/月
【本次开盘】:14套
【物业类型】:商业联排别墅
【交付标准】:毛坯
【拿地时间】:2014年8月
【交房时间】:2023年6月

在售户型:建面约310-410平米,地上三层地下一层
(地上:一层层高3.6米/二层层高3.4米/三层层高3.4米/地下层高5.4米)
总价:约1400-1800万️
单价:约5万/平米
小区整体商业:10万方(在建)南北双花园90-300平
水电:商水&商电,电1.3元/度,水6元/吨
产权车位:约30万左右

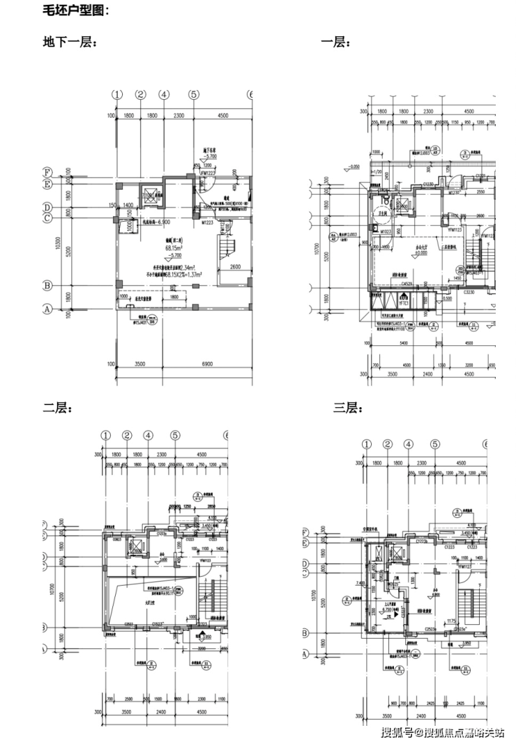
02.户型图及样板间照户
(特殊说明:户型朝向-上南下北)
约10.4米大面宽,面积达到55平
送电梯,北进门,南花园,超大地下室
客厅7米落地窗,采光明亮,尽显大气
约310平户型图▼

约378~420平户型图▼

约407~441平户型图▼

样板间效果图如下:










03.项目区位配套
【联仲·都悦汇】位于闵行马桥旗忠别墅区,旗忠别墅区是上海老牌的富人区,与松江佘山、浦东东郊齐称为沪上三大国际别墅区。上海仅存少量的容积率0.18以下超低密度居住用地中,大多数在马桥旗忠别墅区。

板块以低容积率、生态自然环境和高端国际品牌配置,2010年被列为上海第二批大型居住社区之一。总建面约33万方城市综合体联仲都悦汇位于旗忠板块正核心,紧临网球中心,超10万方市政绿化所环绕。

【联仲都悦汇】同样是低密度别墅区里的一员,背靠绿城玫瑰园,容积率低至1.0。项目贯穿了3条自然水系,分为ABCD四个地块,其中ABC为商住办综合地块,自带商业办公。

交通配套方面:项目距离嘉闵高架元江路出口3公里,毗邻G15、S32等快速主动脉,30分钟大虹桥,50分钟抵达浦东机场,快捷畅达全城。

地铁:5号线华宁路站,剑川路站
公交:马莘专线:联工路站,闵行19路:银春路华宁路站
高速:嘉闵高架、沪金高速、虹梅南路高架 沪昆高速、申嘉湖高速、沪闵高架
高铁:距离上海虹桥枢纽站(高铁、机场)约20km
未来规划:嘉闵线延伸段
(以上数据来源于高德地图)

商业配套方面:项目自带10万方商业,为旗忠唯一的综合性商业配套,其多元化的业态结构,结合旗忠独有的资源,必将带来旗忠全新生活方式。



生态资源方面:项目周边有马桥森林公园、旗忠高尔夫球场、旗忠网球中心、韩湘水博园、养云安缦酒店等。

教育资源方面:周边有复旦万科实验学校,德威英国国际学校、斯代文森国际高中、上海美高学校。幼儿园:元祥幼儿园、富杰幼儿园启英幼儿园,大学:上海交通大学、华东师范大学




闵行·旗忠别墅富人区
【联仲·都悦汇】
建面310~411㎡商业联排别墅
法式干挂 地上三层 地下一层
带南北双花园90-300㎡
总价约:1420-1800万
实景现房 不限购 通燃气
联仲都悦汇售楼处电话:400-8874-108✔【已认证】
联仲都悦汇营销中心电话:400-8874-108✔✔【已认证】
上海联仲都悦汇官方售楼处电话:400-8874-108 VIPLINE✔✔✔【已认证】
如有问题可来电咨询,线上售楼中心,预约销售专员,一对一为您服务!
想了解联仲都悦汇更多信息?拨打售楼处营销中心热线:400-8874-108 (中介勿扰)【24小时热线】
楼盘项目全面介绍,本电话为开发商提供线上预约售楼电话,楼盘项目全面介绍(包含楼盘简介,均价,房价,现房,期房,别墅,叠墅,大平层,价格,楼盘地址,户型图,交通规划,备案价,备案名,项目配套,样板间,开盘时间,认筹时间,楼盘详情,售楼处电话,最新消息,最新详情,周边配套,一房一价,最新进展等详情咨询)楼盘详情丨价格丨更多优惠丨机不可失丨欢迎致电丨诚邀品鉴!售楼处位置丨特价房丨工抵房丨剩余房源丨户型图丨最新消息丨免责声明:将文章内容综合来源于网络、只作分享,版权归原作者所有!!如有侵权,请联系我们,我们第一时间处理如有问题欢迎来电咨询,专业一对一热情服务,让您用专业眼光去买房.如果您想了解更多楼盘详情,欢迎提前预约拨打
住房租赁市场租金水平连续下滑,市场仍处于低温态势。
麟评居住大数据研究院近日发布的报告显示,2025年5月全国40个大中城市租金挂牌均价为34.37元/㎡/月,环比下跌0.32%,连续9个月下降;同比下跌1.14%,连续19个月下滑。整体来看,前5月全国40个大中城市租金挂牌均价为34.54元/㎡/月,较2024年租金水平下降1.12%。

报告指出,受就业环境、收入预期下降等因素影响,居民住房消费能力下降。另一方面,随着保障性租赁住房供应的增加,对市场化的租赁市场有一定冲击。
对此,麟评居住大数据研究院认为,随着应届毕业生入市,5、6月租赁活跃度有望增加,但由于应届毕业生的消费能力较弱,租金仍具备下行压力,租金跌幅有望收窄。
一线城市租金相对坚挺
从等级城市来看,一线城市韧性较强,二线城市压力显著,三线城市跌幅最大。
报告显示,5月份一线城市平均租金为84.58元/平方米/月,环比下跌0.16%,同比上涨0.54%。二线城市平均租金为30.18元/平方米/月,环比下跌0.36%,同比下跌1.82%。三四线城市平均租金为24.60元/平方米/月,环比下降0.45%,同比下跌1.22%。

报告指出,一线城市受今年经济环境及人口流动放缓影响,租金自3月以来环比连续3月下降。值得一提的是,北京表现较为突出,5月份租金环比上涨0.95%,同比上涨1.54%。
二线城市租金跌幅时间较长,环比连续下跌8个月,同比连续下跌19个月。其中,武汉和成都租金同比跌幅较大,分别下降12.06%和7.2%。而三四线城市5月份租金跌幅略大于一二线城市,但从同比走势来看,自2023年9月,三四线租金表现好于二线城市。
威海北京重庆位居涨幅前三
具体到城市,5月份40个大中城市租金仍延续“跌多涨少”局势,有8城租金均价环比上涨,3城环比持平,29个城市租金环比下跌。
报告显示,租金环比上涨的城市中,威海(1.12%)、北京(0.95%)和重庆(0.43%)位居涨幅前三。其中,威海受今年旅游热度上升,租金整体呈上升局面;北京由于临近毕业季,受到强产业配套支持,业主对租金预期有所提升。

此外,环比跌幅TOP10城市中,有6个城市跌幅超1%,具体为洛阳(-2.82%)、武汉(-2.04%)、成都(-1.98%)、佛山(-1.58%)、广州(-1.20%)和青岛(-1.13%)。