天潼里售楼处电话:400-8874-108✔【已认证】 天潼里营销中心电话:400-8874-108✔✔【已认证】
上海天潼里官方售楼处电话:400-8874-108 VIPLINE✔✔✔【已认证】
——天潼里——
天潼里售楼处电话:400-8874-108✔【最新预约】
天潼里营销中心电话:400-8874-108✔✔【最新认证】
上海天潼里官方售楼处电话:400-8874-108 VIPLINE✔✔✔【最新发布】
如有问题可来电咨询,线上售楼中心,预约销售专员,一对一为您服务!
想了解天潼里更多信息?拨打售楼处营销中心热线:400-8874-108 (中介勿扰)【24小时热线】
「天潼198」
北外滩核心钻石地段
包含高层、多层、叠墅、合院别墅
建面约320-641㎡风貌大平层
总价约:5100万~1.3亿
约850-1200㎡风貌合院别墅(天潼里)
总价约1.5亿-2亿+(验资看房)
样板房提前一天预约

最新消息!虹口北外滩核芯段【天潼里】将推出平层、洋房、叠墅、合院产品,共计124户,预计2027年交付!作为外滩正核板块唯一在售新房——苏州河黄浦江原点,项目距外白渡桥约200米,步行约5分钟至外滩万国建筑群;与陆家嘴三件套隔江对望,坐享丰盈配套!据悉,项目推出约320-641㎡洋房大平层,总价约5400万起!另外还有约850-1200㎡风貌合院别墅,总价1.5亿起!项目目前正在认购中!样板间线上提前预约!

天潼198设计效果图
洋房面积段约230-400m²,物业费每月21-22元/m²
小高层面积段约200-570m²,物业费每月20元/m²
风貌里弄住宅面积约110-890m²,物业费每月26元/m²
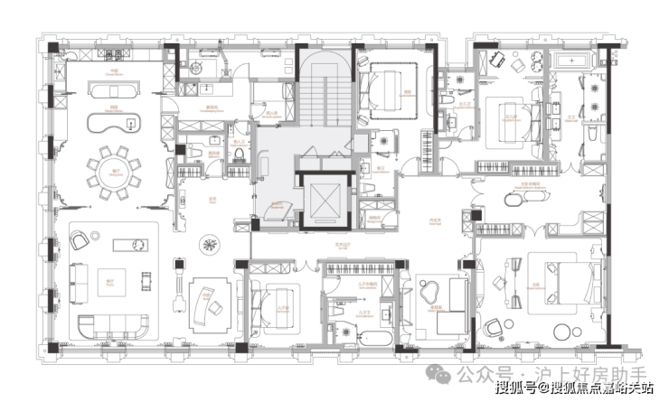
最新户型图独家首发:
建面408㎡大平层 南向面宽26.8米,得房率89%



奢阔尺度 · 四开间朝南
南北通透,四开间朝南,LDK一体厅连双南向阳台,采光视野俱佳。
尊贵私域 · 动静分区
双南向套房,主卧配衣帽间与双台盆卫浴。玄关宽境,家政独立,动线清晰。
双厨配置 · 中西皆宜
北向中西双厨,动线顺畅,备餐待客从容。
四室六卫 · 主客分明
四房六卫,双公卫设计,私密与接待兼顾。
两梯一户 · 尊崇归家
专梯入户,分刷卡系统,归家私密安全。


四房三厅 · 南北通透
全景开间,通风采光极佳;独立电梯入户,动线清晰,私密有序。
主卧套房 · 私享阳台
宽阔主卧配衣帽间、五件套卫浴及南向阳台,私域舒适。
横厅一体 · 极佳视野
东向横厅连西厨、餐厅、客厅,面宽大,视野开阔。


五房三厅 · 多代宜居
南北通透,五开间布局,三套房保障私密共处。
双电梯入户 · 安静私密
专梯直达,动线清晰,归家更尊崇。
主卧套房 · 生活办公兼顾
配书房、衣帽间与五件套卫浴,动静分明。
全景客厅 · 南北通透
大面宽+L型窗采光通风佳,北侧露台拓展生活。
中心庭院 · 光景入室
引自然光入内,日常更有温度。
独立家政 · 动线合理
收纳、清洁、备餐分区明确,高效实用。


奢阔五室 · 中轴对称
南北通透,五开间朝南,中轴格局,270°环幕采光尽揽风景。
双梯入户 · 私密尊崇
双梯分流,十字玄关,礼序归家。
三厅分区 · 动线清晰
客餐分厅连庭院,中西双厨+独立家政,生活有序。
主卧套房 · 功能齐全
带书房、衣帽间、五件套卫浴,独立静享。
双庭多卫 · 实用有度
南向客厅灵动分区,双采光庭院引光入室,多卫设计便捷舒适。






天潼198

在“white box”的理念框架中,重新审视比例、色系与质感,以“living essentials(生活的必需)”为基础,拓宽功能的多样性、美感的丰富性,让审美滋养生活。

玄关是空间过渡的前站,是外部世界与私人领域之间的节奏转换地。通过材质、肌理、色调的搭配组合,构建具有电影质感的归家场景。作为空间的重要组成部分,艺术品恰如其分地妆点其中,让主人的风雅志趣一眼可见。

天潼198(公寓)展示样板间实景图
玄关具有变化性与功能多重性,壁纸融合中西方色彩和纹样,除了更衣功能,更摆放了古董书写桌,以手写文字传递信息,传递慢节奏生活方式,丰富空间的装饰和功能,目光所及视角变得丰富。

天潼198(公寓)展示样板间实景图
硬装上以木饰面和米色石材做结合,物料原始肌理感,表达经历时间后的沧桑痕迹。大理石地面镶嵌精致金属条,保留材质的原始感,木饰面配柔和灯光,调和出安宁澄澈的归家氛围。

天潼198(公寓)展示样板间实景图
黄铜门锁系统,是门厅中无法掠过的视觉焦点,它极具质感,与空间的美学特征统一。Design333特别请了Von Morris创始人Eric Morris一同探讨样板间与整个项目所需要的门把手设计,经过了对饰面、手感、形制的多轮讨论与打样,研发出了一款天潼198项目限定的门把手。

天潼198(公寓)展示样板间实景图
悬挂的画作《Balancing Thoughts》来自艺术家Jean Kenna,丰富的色彩传递着空间的情绪,也奠定了整体基调。

天潼198(公寓)展示样板间实景图
画作两侧的艺术玻璃移门,是专业匠师手工雕刻多次的成果,随着光线角度、明暗的变化,绽放出迥异的美。

新湖天潼198(公寓)展示样板间实景图
常被忽略的踢脚线,在设计师的妙笔下绽放新生。石材+斜面的设计组合,赋予了踢脚线别样的建筑美感。

天潼198(公寓)展示样板间实景图

客厅,是一处留白的空间,一整面洞石墙面为客厅带来了主题性。米白的洞石是20世纪现代主义大师常用的材质,在这里和不同年代的家具与艺术品构成了纯粹和谐的对比。


天潼198(公寓)展示样板间实景图
客厅,也是一处流动的空间,通过“自由灵活的组合”营造不拘束的社交空间,家具摆放,连而不挡,分而不隔。满目吸睛的艺术品,错落布置的家具,丰富着空间的视觉层次。

天潼198(公寓)展示样板间实景图
主要位置的多功能大长桌,可以做书桌,聚餐冷餐摆台,也可以做艺术品展示桌,让艺术与空间交融相生。同时,大长桌也起到了模糊走廊与客厅空间的作用,无形中放大空间的层次感,增添了空间的功能性。


天潼198(公寓)展示样板间实景图
正式的大沙发区域,灵活散座区域,家具注重收藏种类多样性,中式圈椅,西式小沙发,灵活移动,根据需求可聚可散。手工编织的复古羊毛波斯地毯,用植物和矿物天然染料来进行染色,拥有了抗衡时间侵蚀的美,更增加了收藏的丰富性,是高品味的体现。


天潼198(公寓)展示样板间实景图
融合焕新的高柜摆放于洞石墙前,哑光与纹路丰富的米白洞石衬托出了高光黑色烤漆的深邃与沉静。而嵌入柜面的中式楠木挂屏无疑是点睛之笔,采用朱红鎏金工艺对人物和图案进行着色,展现了传统与现代完美融合的可能性。

天潼198(公寓)展示样板间实景图
客厅另一端,是连接房内与外景的介质空间,在这里主人和客人可以享受美酒雪茄。看似独立的空间,实际延伸了客厅的功能,也延伸了窗外景观到室内的视线。

设计师于此放置了一张来自20世纪30年代的Art Deco 扶手椅,并通过法国品牌Métaphores的提花面料,重构椅面的色彩与质感,顺应着上海滩的复古风潮,让古典家具以崭新的容貌重回生活。

天潼198(公寓)展示样板间实景图
倚窗而望,既有新上海的繁华城景,又有旧上海的古典砖墙,万千景致化作一席流动的生活背景画。

与三五好友谈论艺术思潮的太太、研究行业前沿咨询的先生、探索世界奥秘的孩子,每个家庭成员都是空间的主人,都能创造心仪的场景与氛围。

天潼198(公寓)展示样板间实景图

以餐厅为载体,重构“人与空间”的关系,让人和各项功能产生“亲密接触”,让人主宰空间,成为空间主角。

天潼198(公寓)展示样板间实景图
光线,是空间的灵魂。为了雕琢一间光感餐厅,设计师特别选用亮面漆吊顶与整面白色高光烤漆墙板增加光反射,为空间勾勒金灿质感的轮廓。即便在阴天,依旧能在餐厅里感受到近似午后阳光的温暖气息。

天潼198(公寓)展示样板间实景图
餐桌上盛放的热带花卉与橘色亚麻帆布面壁纸,一同传递出热烈的情感,一幅展现自然风光的画作《The Old Walnut Tree B》丰富了空间的色调,在贵雅的氛围中妆点质朴与原始的美。

天潼198(公寓)展示样板间实景图

卧室去繁就简,以沉静温暖的配色和材质,营造和平宁静的氛围。一幅山水花园刺绣屏风点缀其中,予人舒适松弛之感。可移动家具组合,既独立又彼此链接,便于情感交换。

天潼198(公寓)展示样板间实景图
空间布局以满足日常需求为主导,休憩、梳妆、阅读,各功能区划分清晰,同时增加了与户外景观的联动,引景入室,内外呼应。


天潼198(公寓)展示样板间实景图
秩序,是主卫浴空间布局的重点。两个独立台盆相对而立,分属男女主人,营造出从容自如的使用体验。大面积运用黑白撞色大理石,让空间的秩序美与材质的自然美融合,颇具观赏韵味。

天潼198(公寓)展示样板间实景图
整体延续了卧室的摩登情调,灯光氛围流畅而明亮,一整面展示柜的植入,突破了卫浴空间的功能桎梏,兼顾实用性与美学表达。

天潼198(公寓)展示样板间实景图
一抹亮色,从素雅的卫浴空间跳脱而出。来自白宫御用品牌Kallista(卡莉斯塔)的龙头套装,专为天潼198项目定制复古陶瓷红,华丽而传统的色泽,呼应着项目的红砖风貌。

天潼198(公寓)展示样板间实景图
步入式衣帽间隐于卫浴内部,创造出一体化体验,金属质感的柜体材质,与卫浴石材形成对比,增加了视觉的丰富性。

天潼198(公寓)展示样板间实景图

设计团队对厨房的处理,为我们打开了审视空间关系的另一种视角。
厨房采用洄游式立体布局,一半是“工作厨房”,隐于内部的中式厨房,有效避免油烟外泄,无论烹炸煎烤,空间之外清新依旧。

天潼198(公寓)展示样板间实景图
另一半是“社交厨房”,显于外部的西式厨房,与餐厅保持良好的视线关系,烹饪西餐的同时可与亲友无碍交流互动,分享乐趣。安置一组玻璃柜,便于展示主人的藏品餐具,让厨房也成为艺术的浸润之地。

天潼198(公寓)展示样板间实景图
一中一西,一隐一显,空间递进,意趣翻倍,生活方式的探索之旅也由此展开。

天潼198(公寓)展示样板间实景图

书房色调沉稳大气,精心设计的柔和灯光突显书香气韵,吸引人们长久驻足,于宁静的氛围中品味知识的力量。


天潼198(公寓)展示样板间实景图
多功能书架彰显着设计的巧思,形成有如博物馆般的展示方式,即可放置日常读物,亦可展示珍本藏书。同时,利用屏风做隔断,与圆桌结合形成私密空间。


天潼198(公寓)展示样板间实景图
可坐可卧的软塌,让书房升级为舒适安逸的精神领地。一杯咖啡,一本好书,一张黑胶,消磨一段悠闲的午后时光。

天潼198(公寓)展示样板间实景图
320㎡美学样板间(公寓),以美为关键词,链接人与空间,通过疏密有度的体验,为人们保留了一份畅想未来的惬意。随着阅历增长、生活积累,稳定的审美体系逐渐成形,人们会愈发期待如“white box”一般的生活场域,以此唤醒与内在的对话,实现美的表达。
·
天潼198(公寓)展示样板间实景图
此外,天潼198还打造了27席藏品级合院产品,一栋一境,围合天地,珍藏无尽风雅。

天潼198合院设计细节示意
目前,合院样板房正积极筹备中,致力于淬炼上海百年历史记忆,重构契合当代生活方式的顶级居住空间,诠释“孤品”私宅的价值所在。


天潼198合院效果图


天潼198合院效果图


天潼198效果图

小高层效果

四层叠拼效果|天潼路吴淞路口

四层叠拼效果|天潼路沿街立面

七层叠拼效果|吴淞路武昌路
合院效果 |支弄透视

合院效果 |支弄透视


合院效果 |支弄透视

合院效果 |支弄透视



新湖·天潼198位于北外滩核心区,在星荟中心东侧,豪景苑南侧。设计方案公示,住宅部分由洋房与叠加组成,规划有8幢4层里弄住宅(叠墅产品),1幢7层洋房,1幢9层小高层,还有底商和酒店。首开约209-641㎡洋房住宅59套,总价3400万-1.3亿左右!合院别墅20套左右 地上四层 地下两层 花园100平左右 地上面积520-800 地下面积300-500平 总价1.8亿-2.6亿左右!看房需提前一天预约!需要验资!户型图现场鉴赏!

新湖天潼198地块是豪景出让给新湖,并由商业属性改为住宅,对面就是外滩豪景苑。根据公示的项目规划设计方案显示,项目规划有8幢4层里弄住宅,1幢7层洋房,1幢9层小高层,还有底商和酒店。

新湖·天潼198就是虹口区北外滩街道HK231-01地块,位于乍浦路天潼路,距上海外白渡桥200多米,具体位置是东至吴淞路,南至天潼路,西至乍浦路,北至武昌路。
虹口区北外滩街道HK231-01地块建设用地范围:东至吴淞路,南至天潼路,西至乍浦路,北至武昌路;
规划用地性质:二类住宅组团用地、商业服务业用地建筑工程
性质:住宅;商业;
用地面积:18950.6㎡
总建筑面积:113000㎡

项目目前正在建设中,新湖将保留项目所在区域的地标和文化标志建筑,包括西本愿寺、景林庐等文保建筑,目前项目售楼处开放中。
附现场实拍图:


周边实景如下:




新湖·天潼198位于 北外滩核心区,在星荟中心东侧,豪景苑南侧。设计方案公示,住宅部分由洋房与叠加组成,规划有8幢4层里弄住宅(叠墅产品),1幢7层洋房,1幢9层小高层,还有底商和酒店。


如位置图所示,新湖·外滩元和豪景苑位置邻近,几乎享受同样的周边配套。
交通方面:附近有地铁2号线、10号线和12号线,出行十分便捷。
教育方面:1公里左右,有7所幼儿园、5所小学、5所中学,教育资源丰富,文化氛围浓厚。

医疗方面:3公里左右,有7所三甲医院,为住户的健康生活保驾护航。

生活方面:2公里左右,有9座公园,完全可以满足老人的社交及娱乐需要。

该项目还可以步行至外滩,享受外滩的夜晚美景和顶级配套。

上海时尚新地标——外滩源,可以说是在项目门口。圆明园路上的真光大楼、兰心大楼、青年协会大楼等14幢历史保护建筑,都是人文底蕴深厚且不可复制的!

在保留原始风貌的前提下,外滩源将融入时尚现代元素,打造成多功能的高雅文化与时尚生活的中心。

当然,最值得关注的还是北外滩的政策规划。
2020年2月20日公示了关于《虹口区北外滩街道控制详细规划修编(公示参与草案)》。
规划要将北外滩建设具有全球资源配置能力和国际竞争力的顶级中央活动区!

根据规划,北外滩地区是黄浦江世界级滨水区的重要组成部分,将对标伦敦、纽约、东京等全球城市经验,综合区位条件及资源禀赋,建设成为:
1、与外滩和陆家嘴错位联动,居职相融、孵化创新思维的新时代顶级中央活动区;
2、汇聚现代化国际大都市核心发展要素的世界级会客厅闪亮的一幅画卷;
3、全球超大城市精细化管理的典型示范区!

重点来看产业。
北外滩沿线的甲级写字楼现状大约是200万㎡;3年内再建成100万㎡,规划中预计增添200万㎡,总计相当于约500万㎡甲级写字楼,或将提供约50万个高收入岗位,对住宅价值的拉动作用不言而喻!
而该项目不仅处于北外滩核心位置,更是就在480米地标商办的旁边!


天潼里售楼处电话:400-8874-108✔【已认证】
天潼里营销中心电话:400-8874-108✔✔【已认证】
上海天潼里官方售楼处电话:400-8874-108 VIPLINE✔✔✔【已认证】
如有问题可来电咨询,线上售楼中心,预约销售专员,一对一为您服务!
想了解天潼里更多信息?拨打售楼处营销中心热线:400-8874-108 (中介勿扰)【24小时热线】
楼盘项目全面介绍,本电话为开发商提供线上预约售楼电话,楼盘项目全面介绍(包含楼盘简介,均价,房价,现房,期房,别墅,叠墅,大平层,价格,楼盘地址,户型图,交通规划,备案价,备案名,项目配套,样板间,开盘时间,认筹时间,楼盘详情,售楼处电话,最新消息,最新详情,周边配套,一房一价,最新进展等详情咨询)楼盘详情丨价格丨更多优惠丨机不可失丨欢迎致电丨诚邀品鉴!售楼处位置丨特价房丨工抵房丨剩余房源丨户型图丨最新消息丨免责声明:将文章内容综合来源于网络、只作分享,版权归原作者所有!!如有侵权,请联系我们,我们第一时间处理如有问题欢迎来电咨询,专业一对一热情服务,让您用专业眼光去买房.如果您想了解更多楼盘详情,欢迎提前预约拨打
住房租赁市场租金水平连续下滑,市场仍处于低温态势。
麟评居住大数据研究院近日发布的报告显示,2025年5月全国40个大中城市租金挂牌均价为34.37元/㎡/月,环比下跌0.32%,连续9个月下降;同比下跌1.14%,连续19个月下滑。整体来看,前5月全国40个大中城市租金挂牌均价为34.54元/㎡/月,较2024年租金水平下降1.12%。

报告指出,受就业环境、收入预期下降等因素影响,居民住房消费能力下降。另一方面,随着保障性租赁住房供应的增加,对市场化的租赁市场有一定冲击。
对此,麟评居住大数据研究院认为,随着应届毕业生入市,5、6月租赁活跃度有望增加,但由于应届毕业生的消费能力较弱,租金仍具备下行压力,租金跌幅有望收窄。
一线城市租金相对坚挺
从等级城市来看,一线城市韧性较强,二线城市压力显著,三线城市跌幅最大。
报告显示,5月份一线城市平均租金为84.58元/平方米/月,环比下跌0.16%,同比上涨0.54%。二线城市平均租金为30.18元/平方米/月,环比下跌0.36%,同比下跌1.82%。三四线城市平均租金为24.60元/平方米/月,环比下降0.45%,同比下跌1.22%。

报告指出,一线城市受今年经济环境及人口流动放缓影响,租金自3月以来环比连续3月下降。值得一提的是,北京表现较为突出,5月份租金环比上涨0.95%,同比上涨1.54%。
二线城市租金跌幅时间较长,环比连续下跌8个月,同比连续下跌19个月。其中,武汉和成都租金同比跌幅较大,分别下降12.06%和7.2%。而三四线城市5月份租金跌幅略大于一二线城市,但从同比走势来看,自2023年9月,三四线租金表现好于二线城市。
威海北京重庆位居涨幅前三
具体到城市,5月份40个大中城市租金仍延续“跌多涨少”局势,有8城租金均价环比上涨,3城环比持平,29个城市租金环比下跌。
报告显示,租金环比上涨的城市中,威海(1.12%)、北京(0.95%)和重庆(0.43%)位居涨幅前三。其中,威海受今年旅游热度上升,租金整体呈上升局面;北京由于临近毕业季,受到强产业配套支持,业主对租金预期有所提升。

此外,环比跌幅TOP10城市中,有6个城市跌幅超1%,具体为洛阳(-2.82%)、武汉(-2.04%)、成都(-1.98%)、佛山(-1.58%)、广州(-1.20%)和青岛(-1.13%)。