首开热销!新江湾城1.55低容墅区【建发海宸】 二期建面约125/161/190/210㎡户型即将入市!新江湾正芯,生态公园畔
海派东方,宸启新江湾 高定海派东方灯塔力作
建发海宸
一期均价约11.07万 少量房源在售
二期加推建面约125/161/190/210㎡户型
火爆认购中
建发海宸售楼处电话:400-9975-759

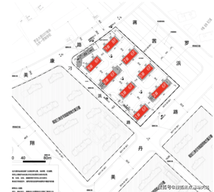
首开楼栋包括1、2、3、11、12、21、22、23号楼,预计推出105㎡、125㎡、161㎡三种户型产品!
105平户型预计总价1050-1200万
125平三面宽户型预计总价1200-1450万
125平四开间户型预计总价1300-1500万
161平户型预计总价1700万-2000万

二批次在售楼栋:
二批次一房一价表:

建发海宸售楼处电话:400-9975-759
01、基本信息
2025年6月,建发房产摘得上海市杨浦区新江湾社区G1-06地块,也就是现在的建发海宸,项目展厅已公开,将推出小高层、洋房和叠加产品,预计9月份首批次入市!
建发海宸位于新江湾正芯,西临江湾城路,南接殷高东路,北贴在建的交大附中杨浦实验学校(在建),东面则是水系,地理位置得天独厚。
项目本身总占地约10.29万方,容积率仅约1.55,门口就是湿地公园,当之无愧的江湾芯低密大盘。
对于偏爱自然逸居的购房者而言,建发海宸的出现可谓重大利好,毕竟,在寸土寸金的上海,能同时坐拥“湿地公园+主城副中心+名校资源+低密规划”等全维高配的除了新江湾建发海宸,几乎再无二处!

G1-06地块容积率约1.55,限高约40米,土地面积10.29万㎡,建筑面积约15.95万㎡,出让总价高达86.5亿元, 折合楼板价约5.42万/㎡,住宅套数下限为1156套,体量磅礴。
建发海宸售楼处电话:400-9975-759

两条轴线在滨河水岸交汇,形成了全上海罕见的“超级景观通廊”。对于偏爱自然逸居的购房者而言,无疑具备致命的吸引力!

建发「宸系」中式作品,铝板与玻璃幕墙外立面,配园林景观。约1150套房源高低配,限高40米,含小高层、洋房、叠墅产品,满足刚需与改善需求。
上善若水,海纳百川,是上海的精神也是建发·海宸的造物哲学,建发·海宸将海派文景化为日常风景复现「沪城八景」意象,浓萃「上海名园」精华。
以水为引,起承转合,以海天华堂、华亭烟雨、凤亭问泉,清涟夜月、黄浦秋涛等景观组团,悠然铺陈东方院落式归家礼序。

并依托约1.5公里的滨水长廊,将约11.4公顷生态湿地融为业主的后花园,借景河道,构筑多元生活剧场,穿过外滩晨钟、闲渡蒹葭、溪川雪霁,恍如在穿越时空的海派画卷中悠然漫步。

只此青绿的「玉玲珑」,复刻上海豫园镇园奇石的灵韵风骨,优雅缠绕的「紫藤架」,演绎衡山公园的紫藤之恋,绿桐树环抱的「碧梧轩」,邂逅秋霞圃的林下会客场景等,这是上海心底私藏的韵味与魅力。

上海的浪漫,繁花占一半,建发·海宸取意繁花似锦 巧思,汲取玉兰灵韵缔造尊贵与浪漫并存,恢宏与繁华共融的建筑。
「玉兰门庭」摩登飘逸,环抱式落客前场,大师定制非遗掐丝珐琅门钹,流转温润光华,敬呈归家尊崇礼序,自此启幕生活的华贵序章。

建发海宸售楼处电话:400-9975-759
「繁花立面」 金属曲面层叠交织,将玉兰冠顶绽放的瞬间淬炼为永恒,承袭海派建筑的经典秩序,以曲面柱廊、阵列式柱廊撑起恢弘天幕,尽显庄严气度。


萃取东方色谱精粹,建发·海宸甄选丝箔流金、东方雅铜,青釉奢蓝,以当代笔触晕染立面,令传统色彩在空间生长为永恒的诗意, 「入户门头」形取和平饭店经典拱门,配以碧绿色天然石材门套、彩玻花窗,重现百年外滩门廊的尊崇仪式。

所谓“无会所,不豪宅”,高阶会所是圈层进阶的社交场,更是分享志趣和品味的绝佳之处。
但建发海宸手笔也太大了,项目为业主配置了约4200㎡摩登会所与约1370㎡泛会所空间,整体面积超5500㎡,比起市面上总价四五千万起步的顶豪还要丰富!




建发海宸售楼处电话:400-9975-759

02、推售信息
项目二批次房源预计10月开盘 ,除了前期卖爆的建面约125/161㎡4房,二批次还会加推建面约189/210㎡的滨水低密洋房,妥妥的塔尖级改善产品,2000万级客户可以重点关注!

项目户型如下:







建发海宸巧妙利用空间拓展、功能分配、动线设置、超能收纳等实现了好厨房的“1步法则”,将操作步骤调配到舒适距离,让男女主人爱上下厨。
U型厨房带有约1.3㎡飘窗,约8㎡使用面积较常规厨房提升23%,可容纳2-3人下厨;约5.6米台面长度,约65公分台面宽度,较常规厨房提升13%,另设骊住原装进口多功能加大尺寸单槽,几乎在1步的距离内,即可实现“取/存→清洗→切配→烹饪→装盘”的流畅动线,减少往返走动。
厨房是家庭收纳的重中之重,物品繁杂、使用高频,极易陷入混乱。科学规划收纳空间,不仅能大幅提升利用率,更能让烹饪过程高效流畅。
建发海宸打造了超容量橱柜,以更丰富的立体收纳空间,让空间化繁为简、化整为零,配齐吊柜拉篮、双侧台面调料柜、餐具与厨具收纳等,确保做菜时随手能拿到想要的调料,真正做到藏纳有道,拿放有序。

而客餐厅的收纳亮点在于将实用功能与生活美学融合,让收纳成为生活的一部分,每一件物品都有专属位置,在有序中流露出烟火气。
双边收纳矩阵,大件小件皆可存放,满足家庭不同的收纳需求;客厅一侧通顶高柜设计,高尔夫球杆、羽毛球球拍、鱼竿等多尺寸大件轻松容纳,累计可收纳200双鞋子;餐厅一侧的多功能餐边柜,集吧台、展示柜、收纳柜三合一功能为一体,同时,侧面也配备侧拉零食柜、储物柜,进一步提升家庭精细化收纳,饮料、酒水、零食、行李箱等可轻松规整,精细化分区,让家井井有条。
建发海宸售楼处电话:400-9975-759


主卫上演1㎡魔法收纳,多种功能分区,营造清爽视感,不同尺寸的物品都有专属空间。
创新配备女神柜,分层分区分类收纳化妆品;通顶双面镜镜柜,有序安放洗护用品;左侧镜柜贴心设计美妆冰箱,低温保存,为美锁鲜,护肤、化妆更舒爽;台盆柜,大幅提升收纳空间,可储藏洗漱用品;扫地机也有专属预留空间,便捷归位。

精装不仅是交付标准,更是对美学生活的深刻诠释。钢木复合门,古铜拉丝铝板精雕,精湛技艺宛若天工,静雅华美;全屋坚持选用天然大理石铺设,白雪公主岩板背景墙,约0.9*1.8米云雾白通铺地砖,呈现风格统一的整体艺术美;顶面圆弧吊顶,镶嵌精奢金属线条,丰盈空间感,也流淌设计感;卫生间倒角设计,斜坡线条流畅,无门槛避免磕碰之余,也可允许扫地机通过,兼顾美观和功能。

建发海宸深谙客户的高端品味,特别甄选全球住宅与建筑领先者——骊住、德国百年卫浴名牌——杜拉维特、德国电器巨头——博世、《财富》世界500强——霍尼韦尔、德国高端厨卫奢牌——汉斯格雅、瑞士百年厨具品牌——弗兰卡、全球领先的智能终端提供商——华为等一线名牌,精心雕琢生活品质。
懂空间、懂收纳、懂精装,更懂客户所思所想所需,让建面约125㎡全能户型成为陪伴家庭成长的一生之宅。全维度造宅哲思,贯穿样板间的每个角落,更贯彻进所有户型设计中,满足不同家庭的居住理想,建面约105-250㎡小高层、洋房、叠墅面市在即,也为您全面解密其中的设计之道!

03、版块信息
新江湾城的供应稀缺性堪称上海楼市特例。自2005年以来板块仅出让11宗土地,最近一次公开供地停留在2019年,由此形成的断供效应直接推升市场热度:2020年至今仅世纪江湾、上海院子、中企云萃江湾等少数新盘入市,其中中企云萃江湾两次开盘触发63.9分与74.6分的高积分,世纪江湾尾盘认购率更达330%。
这一现象的核心在于板块价值的不可替代性:60%绿化覆盖率构筑都市绿洲,复旦系等顶尖教育资源解决后顾之忧,早期大平层、别墅奠定的低密豪宅基因,使二手房价格展现惊人韧性——世纪江湾小户型曾成交近20万/㎡,上海院子洋房现价仍维持12-13万/㎡。尽管存在"商业不足"等争议,但在1500万预算内,兼具优质教育、低密环境与成熟界面的新江湾城,仍是难以复制的价值高地。

建发海宸位于新江湾城板块,西侧邻安徒生童话乐园,东侧临河景观带,周边新江湾城公园等环绕,低密规划(容积率1.55)稀缺,打造生态宜居地。

产业也是新江湾的优势,杨浦2035规划擘画,江湾与五角场重点发展大创智创新发展示范区,聚集了约70个众创平台及孵化器和抖音、B站、叠纸等约4500家名企,这座东方硅谷聚拢的高净值人群,就是新江湾房价坚挺的强力基石。
建发海宸售楼处电话:400-9975-759

【1】交通方面:
新江湾城是一个以自驾和公交都还可以的板块。
自驾方面:
新江湾城的公路布局是典型的三横三纵,
驱车10分钟左右便可达内环、中环和逸仙高架路,直达市区各个地方,
总体来说是非常便利的。
公共交通方面:
区域内分布10号线的四个站点,如图所示:

10号线是一条能级较高的地铁线路,贯穿了南京东路、新天地、淮海路等城市核心区域以及衡复风貌区、古北、新江湾城等高端居住板块,并通向虹桥机场和火车站,是一条名副其实的贵族线路。
途径徐汇、静安、黄浦、长宁、虹口,沿线多个换乘站,可换多条轨道交通线路。
并且现在十号线的北延长段也已全线通车。
这条延长线始于新江湾城,将穿过黄浦江,连接浦东高桥板块,
对于新江湾人民的公交出行,又添一份方便。

目前,从新江湾城驱车出发,
到五角场成熟商圈约4公里左右,到市中心约10公里,
对于家里有车,经常自驾出门的家庭,还是非常便利的。
如果出行通勤主要依赖公共交通,可以多多考量地铁沿线的楼盘。

【2】商业配套方面:
板块内的商业配套比较一般,只有一个悠方购物中心,品牌为中低档,与豪宅业主身价不符。
到目前为止,新江湾城还没有一个拿得出手的大型综合性商业配套,
社区居民购物、消费、娱乐更多会选择驱车前往东边的中原,或者南边的五角场板块。
未来,侨福集团将在湾谷科技园的对面建设上海第一个侨福芳草地,将大幅疏导新江湾城居民的消费需求。

【3】教育方面:
杨浦区是教育强区,素有”徐一杨二“之称,优质的教育资源无疑是新江湾城最吸引人的地方。内有复旦附小、复旦二附中、上音实验等优质公立初中。
片区内大部分小区对口的上音实验学校是杨浦区最好的优质的九年一贯制学校,教学质量和氛围都是无可置疑的。在“公民同招、民办摇号”的新政下,更凸显九年一贯制学区的价值。
而且,新江湾城的业主个个都是坐拥千万以上身家的家庭,拥有优质的素质,生源极好,上音实验依旧在加速度的上升前进。
复旦科技园小学对口的也是上音实验的初中部。有很多幼儿园都是师范园,甚至是一级师范园都有。

对于一些选择民办的家庭,居住在新江湾城,孩子上下学都是非常便利。
一些德国、法国的国际院校也已经建造完成,于2019年投入使用了。
除此之外,复旦大学、同济大学的校区都在附近,整个板块的文化气息都是比较浓厚的。
【4】医疗方面:
新江湾城虽没有医疗设施,但前往板块东南侧的中原板块,顶尖的综合三甲医院长海医院很方便,在十分钟左右的车程。
另外,三甲专科的上海市肺科医院在五角场
建发海宸售楼处电话:400-9975-759
上海楼市动态:上海官宣第九批次土拍;保利置业爱国路项目、建发美兰湖项目规划公示;金陵华庭、中信泰富外滩道、翡雲悦府、中海云邸玖章、尚园、上江南贤庐过会。
【土地】
1.上海官宣第九批次土拍!11月24日开槌
上海市土地市场网发布第九批次涉宅用地出让公告,共推出9宗地块,计划于11月24日组织现场交易。

这批地块覆盖杨浦(2 宗)、宝山(2 宗)、嘉定、奉贤、青浦(2 宗)及浦东等区域,总出让面积约 28.9 公顷,总建筑面积达 55.26 万平方米。
中铁建与象屿陆续在官网披露多宗住宅用地招标计划:象屿锁定浦东川沙PDP0-0706单元C05A-18地块;
中铁建则同步布局杨浦定海社区K8-03地块与宝山共康板块N120702单元B2-08双轨交地块。
【规划、产品】
1.保利置业爱国路项目规划公示
据官网显示,杨浦区定海路街道152街坊D1-7地块商品住宅项目建设工程规划设计方案公示。
据显示,杨浦定海社区D1-7地块拟建14-26层小高层&高层住宅。
2#楼为26层高层,3#楼为16层小高层,5#楼为14层小高层,6#楼为16层小高层,7#楼为26层高层;另有一栋保障性租赁住房。
全部楼栋底层局部架空,6#和7#楼一层、二层设置社区卫生服务点、物业配套等。
社区内部有下沉式庭院、景观架构等。

在10月举行的上海第八批次土拍中,杨浦定海社区D1-7地块,4家参与竞争,经过43轮竞价,溢价率达到了14.69%;
最终由保利置业以总价261620万拿下,成交楼板价69958元/平。
2.建发美兰湖项目规划设计方案已正式公示
项目涵盖4幅地块,容积率介于1.2-1.6之间,限高40-60米,将打造31栋4-17F住宅产品,整体规划为“洋房/小高层叠墅”的组合形态。

其中0216-03地块内,还配置了一块十二班幼儿园规划用地。
东侧两宗地块容积率为1.2,紧邻美兰西湖公园,生态优势得天独厚;西侧两宗地块容积率1.5-1.6,密度略高但仍处于舒适区间。
该项目由建发以底价竞得,起拍总价约23.23亿元,楼板价约21300元/㎡;扣除公租房面积后,实质楼板价约22421元/㎡。
【过会、网签】
1.上海近期将入市新房项目官宣,共6个新盘

据网上房地产公示,本次上市6个商品住房项目,共约7.66万平方米,合计393套。
主要分布浦东、黄浦、杨浦、闵行、奉贤 5个区域。
(1)前期去化99%,金陵华庭三期T2楼王已过会、均价20.6万/m²
金陵华庭三期T2楼王已过会!推出39套建面约370㎡收官大平层以及一套建面约730㎡顶层复式,过会均价20.6万/m²,相比上一批次涨价1000元/㎡。
最后批次加推的是T2西边户,建面约370㎡大平层&730㎡顶复,项目从视野、户型设计和装标各个维度,都足以匹配外滩顶豪的站位。
(2)120㎡一梯一户,中信泰富外滩道首开121套房源、均价13.85万/㎡
中信泰富外滩道待认购,首推121套约119-192㎡3-4房,已过会均价
13.85万/㎡。
项目首推地块,主力面积段为约190㎡以及120㎡两档,5号楼楼王则为约220㎡顶豪,以及少量约100㎡产品。户型之优越,几乎可以说是上海新建商品房品质的一次“断代式的飞跃”。
(3)娄山杰掌舵,翡雲悦府六批次官宣涨价9500元
翡雲悦府六批次产品位于一期社区内,建面约175-220㎡的叠墅产品,18#22#2幢共16套,已过会。
位于二期三批次7#8#建面约113㎡高层房源,已过会。均价11.37万元/㎡,相比上一批次涨价9500元/㎡。

二期的地块位于上园的南侧,同样有地下消防通道与九年一贯制学校相连,整体南向面宽比较大。从小区出入口步行到地铁站大概800多米的距离,属于地铁房的范畴。
(4)涨价6000元/㎡,中海云邸玖章压轴32套房源过会
中海·云邸玖章压轴楼王32套约148㎡4房已过会,均价12.6万/㎡,往期少量约104-148㎡3-4房,均价12万/m²,涨价6000元/㎡,总价1150万起。

在2024年四季度的土地出让中,中海分别拿下杨浦滨江三幅地块,三个地块相距不远,预计很快就会入市!
(4)一批次22天去化64%,尚园二批次再推36套别墅
全新别墅尚园二批次待认购!,36席建面约172-179㎡精装,过会均价61450元/m²。
项目一批次于10月12日,推出44套房源,截止到11月3日,已售28套,去化64%。

(4)前期去化75%,上江南贤庐三期涨价5255元/㎡
奉贤新城上江南贤庐三期已过会,即将认购,推出建面约162-280㎡三房四房,约4.49万/㎡,相比上一批次涨价5255元/㎡。
项目前期共推出220套房源,截止到11月3日,已售164套,去化75%。
