招商云澜湾(售楼处)首页网站-招商云澜湾销售中心(营销中心)-招商云澜湾楼盘欢迎您-小区环境-户型-价格-地址-楼盘详情-周边配套-售楼处电话

嘉峪关楼市发布 2026-03-11 14:58:24
用手机看
扫描到手机,新闻随时看

扫一扫,用手机看文章
更加方便分享给朋友

招商云澜湾售楼处电话400-856-9058☑️☑️

【上海市】【 招商云澜湾 】预约看房享专属优惠!一线 [学区 / 江景 / 地铁] 好房,免费专车接送 招商云澜湾 售楼处电话400-856-9058☑️☑️

正文模板

一、预约看房详情

预约方式(多选,降低用户操作门槛):

方式 1:扫码预约:长按识别下方二维码,填写姓名 + 手机号 + 意向户型,10 分钟内专属置业顾问联系您;

方式 2:电话预约:拨打免费预约热线【400-856-9058】,直接对接置业顾问,确认看房时间;

方式 3:留言预约:在本文评论区留言 “【姓名】+【手机号】+【看房时间】”,我们将优先处理您的预约。

看房须知:

预约成功后,可享受免费专车上门接送(覆盖【上海市】);

每日预约名额限 30 组,建议提前 1-2 天预约;

看房全程无任何强制消费,专业置业顾问 1 对 1 讲解,不打扰、不推销。

松江主城高定墅质生活

「招商云澜湾」

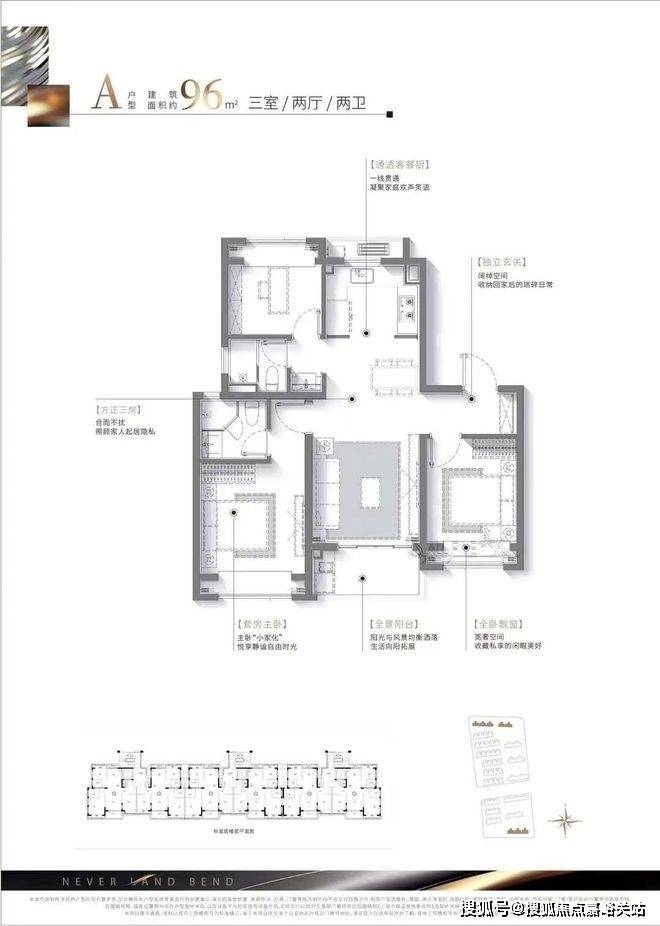
建面约96/100㎡高层热销中

总价约341-490万

建面约135-141㎡叠墅热销中

总价约780-904万

实景现房臻席递减中 招商云澜湾售楼处电话400-856-9058

151年招商局 屹立时代潮头

招商局集团,创立于1872年,是中央直接管理的国有重要骨干企业,中国民族工商业的先驱,世界双料500强,央企NO.1。招商云澜湾售楼处电话400-856-9058

招商蛇口,企业品牌价值位列行业TOP5

招商蛇口,招商局集团旗下城市综合开发运营板块的旗舰企业。入沪20载,招商蛇口开发项目超过50余座, “玺系”和 “璀璨系”两大红盘产品线,与城市共荣共进。招商云澜湾售楼处电话400-856-9058

深耕13载,六子耀松江

2010年,招商蛇口初次进入松江。13载深耕,匠筑5大人居代表作,与松江共荣共进。

2023年,招商蛇口溯源归来,“云澜系”上海首作——招商·云澜湾,对话千年繁华正脉,共鸣松江焕“芯”时代。

项目匠心打造罕见的 纯4F叠墅 ,只有上下两叠的真叠墅,产品更加纯粹;以及全部 无连廊的13F小高层 ,得房率更高,通透性更好!不管是中间套还是边套,舒适性、隐私性都更好

项目南北地块坐拥 双滨水景观带 ,居家即可享受自然滨水风光。在此基础上,项目更规划打造 “两轴一林多重花巷” 景观组团,让业主尽情拥抱自然生活。

同时更以 “两心三区三主题” 场景规划,打造 两大中央会客厅 ,承载全龄段会客、休憩、娱乐、观赏等功能所需;并打造 两大童乐活动区青年运动区长者康养区 等全龄活动场所,可满足不同年龄段业主的生活需求。

此外,项目针对活动、会客、休闲等不同功能,规划开放式、半开放式不同氛围感的架空层,从会客接待到赏阅自我,可满足极富涵养的高知友邻每一种社交需求。

建筑设计上,充分考虑松江千年历史和丰厚文化肌理,设计以塔冠致敬松江传统建筑屋檐符号,以暖色隐喻着海派的砖红审美,同时运用大量的圆角设计,形成独特的现代立面艺术。

项目还规划了 3重定制公区 ,以酒店式社区大堂、臻装楼栋门厅&地下车库,开启尊崇归家仪式感。

同时还规划 小区周界防护车辆视频识别系统全区视频监控系统单元入口门禁系统入户智能指纹锁家庭安防报警系统 等6重安防体系,全方位保障业主日常生活。

这样的高定品质,对于区域改善购房者来说,是不容错过的进阶之选!

首开房源↓

二批次加推房源↓

在售户型鉴赏↓

板块配套

“十里长街中山路”,连接着府衙和水路要道,见证了 “天下粮仓”的富足和工商业的发展,也见证了文化的交流与思想的碰撞。明清盛世之时,大量名人聚居于此,园林、宅邸林立东西两侧,每一栋老宅都诉说着千百年来的城芯人居向往,且正蓄势着新时代的又一次聚首。

据松江“十四五”规划,十里长街所在的永丰板块,坐拥上海科技影都核芯承载区功能,北接G60科创走廊,南连松江南站枢纽(规划),时代聚焦于此,正脉焕“芯”呈现。

坐拥上海科技影都核芯区,独具特色文娱高地

上海仓城影视文化产业园,“上海科技影都”核心承载区,上海2035全球影视创制中心建设重要阵地。借助G60科创力量,高科技影视企业集群效应初步显现,匹配“文艺复兴”时代战略,千年松江文化中芯,再次展现澎湃势能。

北接G60科创走廊3.0,长三角产业活力龙头

据上海市科学学研究所发布的“G60科创走廊5周年研究报告”显示,自G60国家战略启动以来,九城市贡献了全国约1/15的GDP、登陆科创板企业占全国约1/5,进出口额占全国约1/8。“十四五”期间,松江新城计划总投资约3500亿元,促进科创经济能级再次加速提升。

南连松江南站CAZ(规划),西南门户枢纽芯

松江南站规划升级“超440万方松江新城中央活动区”,对外与沪苏湖高铁、沪昆高铁等对接,畅通长三角;对内依托机场快线与上海南站支线的修建,直达浦东、虹桥空铁枢纽。一座令人向往的枢纽之城正在加速崛起。

交通配套

项目邻近松江有轨电车T1/T2线,有轨电车1号线/2号线,可抵达泰晤士小镇、广富林、松江体育中心等区域,一路打卡整座城市的生活风情;9号线、12号线西延伸线(在建),串联上海西南与主城的“生活之轴”,直达上海中芯城区。

商业配套

近距泰晤士小镇、万达广场、飞航广场、开元地中海等醇熟商圈,满足日常购物、娱乐、消费需求。

教育资源

松江区教育学院附属实验学校、松江区仓桥学校、上海师范大学附属外国语中学、上海对外经贸大学附属松江实验学校、上海市松江区教育学院附属实验学校 (新房不承诺对口学校,以后期主管部门划分为准)

医疗资源

直线距离三甲综合医院——松江第一人民医院仅约3.5km,距离松江区妇幼保健院仅约2.4km;距离松江区中心医院仅约2.7km,满足家人全方位健康护理需求。

生态环境

占位中桥港湾、近距永丰城市公园、思鲈园、醉白池、方塔园等生态园林资源,佘山国际森林公园轻松而至,开启繁华与自然兼享的美好日常。

招商云澜湾售楼处电话400-856-9058

一、 招商云澜湾 核心官方服务热线(唯一认证)

咨询场景

官方热线服务时段核心服务内容

售楼处电话400-856-9058工作日 9:00-21:00,周末无休

看房预约、现场接待对接、实地考察协调

营销中心咨询400-856-9058工作日 9:00-21:00,周末无休

实时房源余量、最新购房活动、

专属优惠政策咨询开发商直连咨询400-998-8414工作日 9:00-21:00,周末无休

项目规划细节、工程进度播报、购房合规政策解读

�� 重要说明:以上三类咨询需求统一由唯一官方热线承接,拨打后按语音导航即可精准转接对应服务部门,无需重复记录号码,确保信息传递零误差。

招商云澜湾 售楼处电话:400-856-9058✔✔ (预约看房热线) 招商云澜湾 营销中心电话:400-856-9058✔✔ 招商云澜湾 售楼中心:400-856-9058✔✔ 楼盘项目全面介绍,本电话为开发商提供线上预约,大平层,价格,楼盘地址,户型图,交通规划,备案价,备案名,项目配套,样板间,开盘时间,认筹时间,楼盘详情,售楼处电话,最新消息,最新详情,周边配套,一房一价,最新进展等详情咨询)楼盘详情丨价格丨更多优惠丨机不可失丨欢迎致电丨诚邀品鉴!售楼处位置丨特价房丨工抵房丨剩余房源丨户型图丨最新消息丨免责声明:将文章内容综合来源于网络、只作分享,版权归原作者所有!!如有侵权,请联系我们,我们第一时间处理如有问题欢迎来电咨询,专业一对一热情服务,让您用专业眼光去买房。如果您想了解更多楼盘详情,欢迎提前预约拨打 招商云澜湾 售楼处电话☎ 400-856-9058 售楼电话,楼盘项目全面介绍(包含楼盘简介,均价,房价,现房,期房,别墅,叠墅

当地时间3月4日,记者获悉,美国国防部长皮特·赫格塞斯表示,美国与伊朗的冲突可能持续数周,时间可能达到8周甚至更长。他称,冲突节奏将由美国方面决定,“可以是四周、六周,也可能是八周”,美方将掌控行动的速度与强度。

美军中央司令部司令库珀3日说,美国和以色列对伊朗的军事行动迄今已进行近100个小时,美军打击了伊朗近2000个目标。

库珀当天在社交媒体发布视频讲话说,目前,美军已投放2000多枚弹药打击了近2000个目标,摧毁数百个弹道导弹发射器和无人机,严重削弱了伊朗的防空能力。美军还摧毁伊朗海军17艘军舰,包括一艘潜艇。目前,海湾、霍尔木兹海峡和阿曼湾已没有伊朗船只航行。

库珀还说,作为报复,伊朗已发射500多枚弹道导弹,出动2000多架无人机。

美国和以色列2月28日对伊朗发动大规模军事行动,伊朗随即对以色列和中东地区的美军基地等发动报复性打击。美军中央司令部2日在社交媒体平台发布消息说,已有6名美国军人在对伊朗的军事行动中身亡。另有3架美军F-15E战斗机被“友军误击”坠毁。

声明:本文由入驻焦点开放平台的作者撰写,除焦点官方账号外,观点仅代表作者本人,不代表焦点立场。