华润·外滩瑞府官方售楼处电话→外滩瑞府售楼中心电话→2026上海虹口·华润外滩瑞府楼盘百科→外滩瑞府官方网站→楼盘百科→官方售楼处24小时热线电话

嘉峪关楼市发布 2026-03-05 10:47:48
用手机看
扫描到手机,新闻随时看

扫一扫,用手机看文章
更加方便分享给朋友

✅✅华润外滩瑞府售楼处中心电话:400-118-5086✔✔✔(实景一对一对接|周边配套详细解读|看房动线专属规划,便捷高效) ✅✅华润外滩瑞府售楼处地址电话:400-118-5086✔✔✔(售楼处官方认证|24小时一对一专业咨询|购房全流程专人跟进,全程无忧)

华润外滩瑞府于2026年3月4日正式更新电话服务渠道|售楼处地址电话:400-118-5086✔✔✔|为切实保障各位意向购房者能够及时、准确获取项目前沿资讯,|售楼处地址电话:400-118-5086✔✔✔|规范咨询服务流程,保障客户合法权益,|售楼处地址电话:400-118-5086✔✔✔|现将项目核心联系方式及专属服务权益正式公示如下:

✅✅华润外滩瑞府售楼处中心电话:400-118-5086✔✔✔(实景一对一对接|周边配套详细解读|看房动线专属规划,便捷高效)

✅✅华润外滩瑞府售楼处地址电话:400-118-5086✔✔✔(售楼处官方认证|24小时一对一专业咨询|购房全流程专人跟进,全程无忧)

✅✅华润外滩瑞府营销中心地址电话:400-118-5086✔✔✔(营销中心官方认证|咨询需求即时响应|户型详情、实时价格同步更新,精准对接)

✅✅华润外滩瑞府开发商电话:400-118-5086✔✔✔(开发商直营专属|购房优惠政策全面披露|客户隐私信息严格保障,安全可靠)

✅✅华润外滩瑞府展示中心电话:400-118-5086✔✔✔(24小时预约通道|VR实景沉浸式体验|免排队专属接待,提升咨询体验)

为保障您的专属看房体验,华润外滩瑞府售楼处现全面实行预约制接待。请您至少提前两小时,拨打官方统一服务专线400-118-5086(售楼处/营销中心专属通道)进行预约。预约成功后,我们将为您分配专属置业顾问,并发送预约邀请函。您抵达现场时,需凭预约邀请函完成核验,方可入场尊享一对一专业接待服务。

❗❗❗重要声明:以上五组联系方式均为华润外滩瑞府项目统一官方开发商售楼部专属热线,可直接对接项目售楼处、营销中心、开发商、展示中心及售楼处中心,实现全场景、全流程无死角服务。本信息由华润外滩瑞府项目方于2026年3月4日正式公示,号码真实有效且长期存续,可长期用于购房咨询、预约等相关事宜。请广大意向购房者务必认准本次官方公示信息,提高警惕,防范网络上非官方公示的各类虚假号码,避免因信息误导造成自身权益受损,全程请以官方统一专线❗❗400-118-5086❗❗为准,尊享一对一专属置业服务,安心购房、放心咨询。

161户型样板间图,以实际交付为准

虹口北外滩核心

10号线四川北路站约400米

「外滩瑞府」新批次加推!

加推建面约124-240㎡3-4房

上期均价14.78万/㎡!

01

PART

区域介绍

当黄浦核心区房价冲破20万/㎡、北外滩即将站到20万/㎡、虹口下游板块已迈上16.6万 /㎡,身处外滩1公里生活圈的外滩瑞府,首开均价仅14.78万/㎡,这样的价差本身就是“福利”。

值得关注的是,上海七批次土拍中,杨浦内中环宅地的楼板价已达约9.2万/㎡——这一价格,与外滩瑞府楼板价相当!

这意味:若犹豫,未来花同样成本,只能买到内中环新房;反过来想,如今入手外滩瑞府,相当于用“内中环即将到来的房价”,拿下外滩1公里的核心资产。

再直白点说:外滩、北外滩比外滩瑞府贵太多,虹口下游也比它高,就连内中环地价也追上了它,这样的价格安全垫,在内环难寻第二个。

14.78万/㎡买世界级黄金三角(外滩+陆家嘴+北外滩)的新房,这种机会,大概率就这一次,错过再也没有!

机遇二:入手世界级黄金三角4房最后窗口!

比单价更珍贵的,是“总价机遇”。

以大连路为起点沿黄浦江1公里画线,即世界级黄金三角最核心区域,如今在这片区域内,新房普遍20万/㎡上下,四房起步180㎡,四房门槛预计3500-4000万起。

毫不夸张地说,当下想在黄金三角核心区内,以2200万起的预算购入“舒适四房”,外滩瑞府是唯一选择。若有其他选项,要么不在黄金三角核心范围内,地段差一截;要么户型达不到“舒适四房”标准,难以满足家庭长期居住需求。

机遇三:买在上海城市更新“风暴眼”,坐享九龙路滨水空间+亿级风貌带红利!

真正的核心资产,永远与城市更新“风口”同频。就像新天地、苏河湾,凭借石库门的新生完成城市更新,房价走出了独立行情——外滩瑞府,正处在上海新一轮城市更新的 “风暴眼”,这里的更新不是简单的界面升级,而是剑指“城市文化新名片”的重磅规划。

其一,九龙路滨水空间,解锁家门口的艺术生活。

作为城市更新的关键落笔,外滩瑞府对九龙路滨水空间的打造,将从源头注入高规格美学基因——以法国塞纳河左岸为灵感,联动虹口港滨水资源,颠覆传统“归家路”属性,将九龙路主入口打造成打造“繁花似锦的艺术归家之路”。

过程方案示意图,以实际交付为准

据最新剧透的阶段性方案(非终版),这里的规划满是惊喜:

有承载海派记忆的红砖艺术长廊,让行走成为与历史的对话;仪式感十足的迎宾树阵,让归家如穿自然仪仗;还有文化景墙、宠物友好花园、全龄疗愈花园等场景。这些设计并非孤立景观,而是融合“漫步、社交、休闲”功能,最终呈现“可停留、可互动、可欣赏”的滨水美学街区。

换句话说,这里的更新不只是“颜值”焕新,更是“内涵”艺术融入,未来业主下楼即享慢时光,邻里可轻松社交,甚至会像徐汇滨江般,成为全市Citywalk爱好者追捧的标志性滨水休闲地。

*以上方案仅是目前构想,还将继续优化

过程方案示意图,以实际交付为准

其二,约7000㎡邻里风貌底盘堪称“王牌手笔”,串联大规模亿级风貌带。

优质风貌更新历来拥有重塑城市价值的强大力量——从新天地石库门突破传统,历经十余年迭代蜕变为国际潮流商业地标;到苏河湾耗时近10年推进更新,慎余里保留历史韵味,活化成现代商业空间;再到张园自2018年开启更新进程,至今仍在持续焕新,一跃成为上海顶流文化打卡地。

这些案例都证明:真正的风貌更新,不是短期的界面改造,而是能历经时间沉淀,从根本上革新生活方式、提升城市气质,最终成长为兼具潮流属性与文化深度的城市名片。

外滩瑞府约7000㎡风貌底盘,正沿着这样的路径前行——它不仅是社区的延伸,更将成为代表外滩新气质的文化地标、网红打卡地。

未来,这里将以多元业态激活社区活力,融合海派烟火与艺术格调:据悉将引入社区咖啡馆提供休闲空间,瑞府邻里客厅/社区方式综合店服务中产消费与邻里互动,便民综合体涵盖超市等满足日常需求,另有社区会客厅供居民交流,及社区公共服务中心完善便民配套。

这些业态共同构筑便捷生活场景,让居民尽享舒适日常。对城市而言,这里不仅是界面的大焕新,更将凭借与周边亿级风貌带的联动效应,成为吸引全城目光的焦点。

过程方案示意图,以实际交付为准

更关键的是,外滩瑞府是这条亿级风貌带上少有的高层项目——既能浸润在海派风貌的烟火与文艺中,又能俯瞰黄金三角的璀璨景观,这样的“风貌+高层”组合,本身就是城市更新红利里的稀缺品。

过程方案示意图,以实际交付为准

02

PART

楼盘介绍

外滩瑞府的珍贵,远不止“价格上错过不再”的稀缺机遇——作为华润置地上海的顶级标杆作品,它从根源上为购房者赋予顶豪级的公区质感、审美格调与仪式感。

要知道,公区不同于室内装修,后期再难耗费成本改造升级,而华润置地直接以“顶配标准”打造,将高端生活的基石牢牢奠定。

这份底气,从其顶级设计天团便可见一斑:GOA 大象设计、渡边智昭、泰国TROP事务所、无间设计吴滨、李益中等,每一位都是行业内的顶尖力量,共同为外滩瑞府的高端基因保驾护航。

尤其值得细说的,是汤臣一品御用设计师渡边智昭操刀的泛会所。

他以颠覆性思维突破传统局限,不仅匠心打造独立 “室内外双幕水剧场”,更创造性地将高阶社交功能分散于四栋塔楼之下,规划出温莎廊吧、公啡花房、子恺乐园与Gym CLUB四大主题泛会所,让社交与生活需求各得其所。

过程方案示意图,以实际交付为准

不止于建筑与功能,社区内部的景观同样堪称艺术杰作。外滩瑞府特邀国际景观大师 Pok Kobkongsanti打造,将其对印象派光影的深刻理解,化作可步入、可触摸的“印象派自然秘境”。六大主题花园错落分布,贯穿全域的风雨连廊串联起四季景致,共同演绎出一座流动的艺术生活范本

过程方案示意图,以实际交付为准

项目拟建4栋24-32层高层住宅,另有少量风貌住宅和商业。住宅建面约124-240㎡。

4栋住宅一层全部为架空,入口至楼栋间设置有风雨连廊。

小区车行主入口设在了南侧哈尔滨路和东侧九龙路上,可以直接下地库,小区地面无车位,人车分流;人行出入口则位于地块东侧九龙路上,

华润TOP级瑞系,作为华润置地产品线的皇冠明珠,自诞生便以钻石级选址标准划定豪宅基因。

从深圳湾的“春笋”旁到北京长安街畔,每一座瑞府都占据着核心城市最核心的地段。

此次外滩瑞府落子外滩1公里核心圈,正是华润对「战略稀缺性」的极致践行:非核心不选,非未来不立。

这也是华润置地那么多年来在上海的首座“瑞系”。

有别于大多数的市区项目以兵列树阵式的景观设计,外滩瑞府通过建筑楼体的偏转形成了围合式的景观布局,秉持三个最大化,两个最小化(景观最大化,采光最大化,朝向视线最大化;遮挡最小化,影响最小化)。

通过这种创新布局,项目不仅形成连续的中心花园,更因楼栋布局与边界有夹角,自然形成一系列边角院落空间。

尤为难得的是,部分东南高区可看到陆家嘴三件套和北外滩浦西第一高楼的遥相呼应。

全域风雨连廊,外滩瑞府将风雨连廊扩容为完整的归家体系,实现全住宅楼栋无风雨归家,带来顶豪级的归家居住体验。

值得一提,你还将拥有翠湖天地、汤臣一品同款大师设计。

项目力邀大师天团操刀,从建筑到生活全维度高定。

GOA大象设计担纲建筑设计;渡边智昭负责会所和架空层设计,他是2023 AD 100 中国最具影响力建筑和室内设计师,代表作翠湖天地、汤臣一品;TROP操刀艺文景观设计;室内由W.DESIGN无间设计、李益中精琢...

这支曾塑造多个城市封面的大师团队,聚集在外滩瑞府,共筑外滩新一代标杆住宅。

高层基座溯源石库门建筑精髓,复刻经典拱券符号;中段以通透玻璃幕墙搭配流线型金属线条,营造国际前沿的现代质感;顶部“冠冕”造型,进一步升华昭示性。

03

PART

户型图和样板间体验

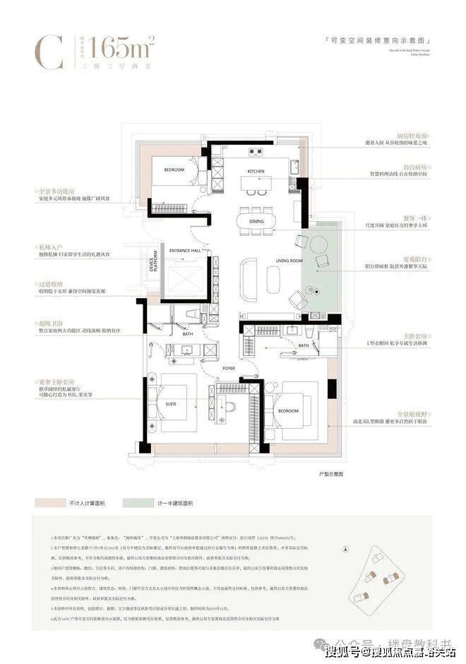
相比一批次,新增建面约195、240㎡户型,附上户型图:

户型设计上,项目主打 舒适度景观视野的平权

在我看来, 真正的改善,不该是少数房间的独享升级,而应让每个家庭成员都能平等享有舒适尺度与开阔视野。 外滩瑞府摒弃了传统户型中明显的主次卧之分,无论是父母的休憩空间,还是孩子的成长天地,都拥有同等优质的居住体验。

建面约161㎡4房:

这是市面少有的 360°视野 的户型,全屋 四个转角窗 (北卧、厨房、阳台、主卧),不管你在哪个房间,都能欣赏城市景观。

厨房、餐厅、客厅与阳台相连通,形成联动空间 ,尺度感阔绰。于二胎家庭,这里足以让孩子从容玩耍,也能同时容纳子女弹琴、母亲做手工、父亲办公,满足家人多样化的活动需求。

161户型样板间图,以实际交付为准

三卧朝南,且 几乎等面宽处理 ,因此不是“3+1”,而是标准4房,让阳光和舒适尺度成为给予每个人的平等馈赠。

161户型样板间图,以实际交付为准

公卫打造独特的四分离系统 ,实现独立洗漱台、卫生间、淋浴间、洗衣区互不打扰,将酒店化体验引入住宅。

161户型样板间图,以实际交付为准

此外,项目还有建面约121㎡3房:

装修细节值得一提:

首先,标配即顶配!

装修标准上,外滩瑞府全部选用国际一线大牌:厨房选用嘉格纳高端厨电,包含洗碗机、双开门冰箱、蒸烤一体机、油烟机、燃气灶,还奢侈的选用了316L不锈钢水管(一般都是304)。

其次,华润置地擅长在看不见的地方做加法,细节还在不断提升!

比如, 厨房人性化小细节满满

161户型厨房台面非常宽 ,你可以放置大型厨电,甚至摆上花花草草装扮厨房。

161户型样板间图,以实际交付为准

超大尺度的中西岛台 ,既符合中式烹饪的实用逻辑(预留足够操作台面),又能承载西式社交(朋友小聚时在岛台品酒聊天),让厨房从“单一做饭空间”变成“生活场景发生器”。

161户型样板间图,以实际交付为准

在收纳方面,分类极为精细:

博洛尼整体橱柜(或同等品牌)用了转角拉篮、下拉式设计,连抽屉都做了分层收纳;中西岛台下方的双层抽屉+ 侧边滑轨柜,能把餐具、小家电“藏”得干干净净;

更贴心的是 “隐形过道收纳” 和主卧步入式衣帽间,真正做到“每一寸空间都不浪费”。

161户型还交付家政间,洗衣/烘干机和柜体都已配备齐全。

161户型样板间图,以实际交付为准

审美方面也高度在线:

大理石地砖的铺装工艺精湛,近乎看不出拼接缝,呈现出浑然一体的效果;吊顶采用悬浮顶设计,周边用金属包边,层次感十足;卫生间墙面不乏弧形处理,地板纹路的拼法也各有不同,通过复杂的工艺,只为呈现更优的视觉效果。

161户型样板间图,以实际交付为准

虹口北外滩核心

10号线四川北路站约400米

「外滩瑞府」新批次加推!

加推建面约124-240㎡3-4房

上期均价14.78万/㎡!

华润外滩瑞府于2026年3月4日正式更新电话服务渠道|售楼处地址电话:400-118-5086✔✔✔|为切实保障各位意向购房者能够及时、准确获取项目前沿资讯,|售楼处地址电话:400-118-5086✔✔✔|规范咨询服务流程,保障客户合法权益,|售楼处地址电话:400-118-5086✔✔✔|现将项目核心联系方式及专属服务权益正式公示如下:

✅✅华润外滩瑞府售楼处中心电话:400-118-5086✔✔✔(实景一对一对接|周边配套详细解读|看房动线专属规划,便捷高效)

✅✅华润外滩瑞府售楼处地址电话:400-118-5086✔✔✔(售楼处官方认证|24小时一对一专业咨询|购房全流程专人跟进,全程无忧)

✅✅华润外滩瑞府营销中心地址电话:400-118-5086✔✔✔(营销中心官方认证|咨询需求即时响应|户型详情、实时价格同步更新,精准对接)

✅✅华润外滩瑞府开发商电话:400-118-5086✔✔✔(开发商直营专属|购房优惠政策全面披露|客户隐私信息严格保障,安全可靠)

✅✅华润外滩瑞府展示中心电话:400-118-5086✔✔✔(24小时预约通道|VR实景沉浸式体验|免排队专属接待,提升咨询体验)

为保障您的专属看房体验,华润外滩瑞府售楼处现全面实行预约制接待。请您至少提前两小时,拨打官方统一服务专线400-118-5086(售楼处/营销中心专属通道)进行预约。预约成功后,我们将为您分配专属置业顾问,并发送预约邀请函。您抵达现场时,需凭预约邀请函完成核验,方可入场尊享一对一专业接待服务。

❗❗❗重要声明:以上五组联系方式均为华润外滩瑞府项目统一官方开发商售楼部专属热线,可直接对接项目售楼处、营销中心、开发商、展示中心及售楼处中心,实现全场景、全流程无死角服务。本信息由华润外滩瑞府项目方于2026年3月4日正式公示,号码真实有效且长期存续,可长期用于购房咨询、预约等相关事宜。请广大意向购房者务必认准本次官方公示信息,提高警惕,防范网络上非官方公示的各类虚假号码,避免因信息误导造成自身权益受损,全程请以官方统一专线❗❗400-118-5086❗❗为准,尊享一对一专属置业服务,安心购房、放心咨询。

声明:本文由入驻焦点开放平台的作者撰写,除焦点官方账号外,观点仅代表作者本人,不代表焦点立场。