所有伟大的城市板块,都经历着从地理存在到文明符号的升华。
而当散点式的地王与明星楼盘不断雕刻局部价格天花板时,其背后实则遵循着一套更为实际且统一的价值叙事—— 稀缺性。中粮北外滩壹号售楼处电话:400-8894-986VIP极速热线✅️✅️
顺着稀缺性这一罗盘,我们便能清晰地洞察,真正的价值灯塔始终锚定于那片不可再生的核心资源: 滨江住宅 !
而上海人又恰恰对滨江住宅的要求近乎极致,既要占位城市重要规划点,又要有超出一般豪宅调性的品质,所以滨江住宅一直都是贵奢的代表。 中粮北外滩壹号售楼处电话:400-8894-986VIP极速热线✅️✅️

中粮北外滩壹号售楼处电话:400-8894-986VIP极速热线✅️✅️
在上海一线滨江板块地图中,陆家嘴,黄浦滨江、徐汇滨江等地新房单价都已突破 19万/㎡ 。今年6批次,北外滩地块也紧随其上,溢价率46.3%,预计售价约 19万/㎡ 左右,成为今年最炙手可热的滨江板块之一。
凭心而论,北外滩新房单价卖到19万我一点也不奇怪。
答案显而易见:北外滩一直都是时代的佼佼者,它既是百年前海纳百川的港口,又是今日的世界会客厅,还是上海的未来发展引擎。 中粮北外滩壹号售楼处电话:400-8894-986VIP极速热线✅️✅️
所以,当人们以为北外滩新房售价即将冲向19万/㎡、未来买入北外滩将付出巨大经济代价时,一个巨大的历史性机遇, 【中粮北外滩壹号】 出现了! 中粮北外滩壹号售楼处电话:400-8894-986VIP极速热线✅️✅️
均价14.38万,总价约3000万起,这个价格无疑是北外滩错过再无的抄底机遇!

中粮北外滩壹号售楼处电话:400-8894-986VIP极速热线✅️✅️
中粮大悦城上海第五座壹号系,“世界S湾壹号作品”——【中粮·北外滩壹号】12月11日开启认购!
推售建面约185-228㎡天际大平层
过会均价143868元/m²,总价约2188万
最低单价11.75万起!
顶层地段+顶层社区+稀缺天际大平层价值,仅90席,错过再无!
项目以9成的认购率结束大筹认购,现在小筹启动,计划于12月21日开盘
前168名认购成功转定即赠价值80万产权车位1个
中粮北外滩壹号售楼处电话:400-8894-986VIP极速热线✅️✅️

中粮北外滩壹号售楼处电话:400-8894-986VIP极速热线✅️✅️

中粮北外滩壹号售楼处电话:400-8894-986VIP极速热线✅️✅️
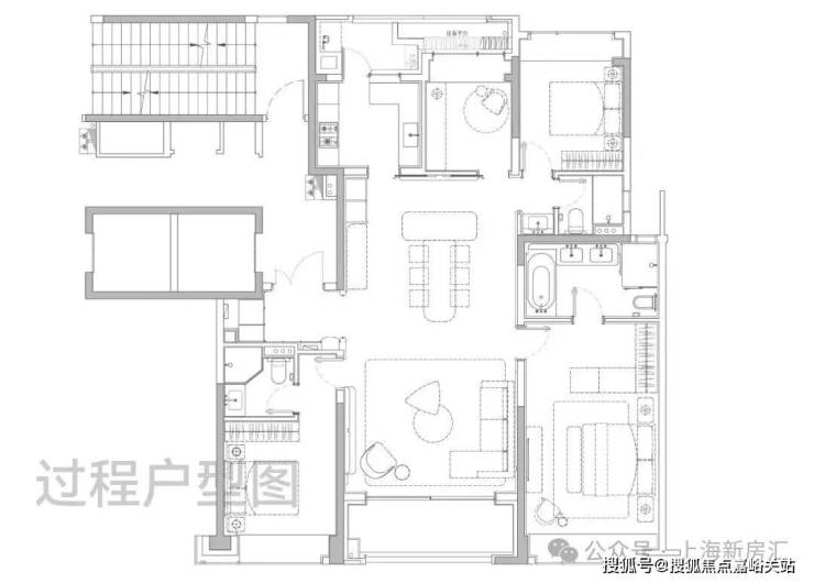
户型图赏鉴
185㎡四房奢阔大宅

中粮北外滩壹号售楼处电话:400-8894-986VIP极速热线✅️✅️
准1梯1户设计 ,私享电梯厅独立入户,经典 飞机户型,三开间朝南,南北通透, 动静分区,通风采光俱佳。
独立玄关 做足私密性和仪式感; LDKB一体化设计 的客餐厅面积达到约55㎡,方正大气。
主卧套房尺度豪奢,可供业主配置步入式衣帽间,卫生间做到 双台盆+大浴缸+独立淋浴 的顶配,尊崇感十足!
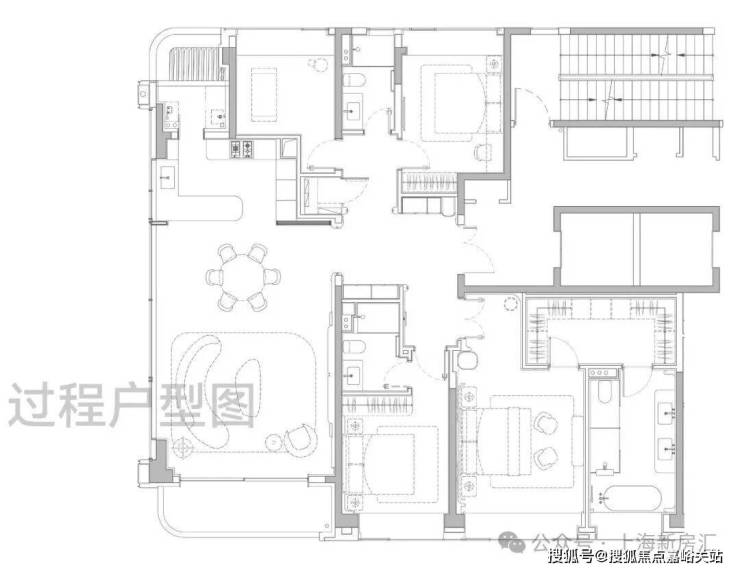
228㎡四房天际大宅

中粮北外滩壹号售楼处电话:400-8894-986VIP极速热线✅️✅️
准1梯1户设计, 私享电梯厅独立入户,户型尺度进一步升级,当今顶豪新盘中极为稀缺的四开间朝南。
边厅面积超过50 ㎡,给一家人提供了阔绰的交流空间; 约270°环幕景观设计 ,带来极好的采光,并且高区可以直面陆家嘴城市天际线+黄浦江景观,视野相当震撼!中粮北外滩壹号售楼处电话:400-8894-986VIP极速热线✅️✅️
主卧大套房设计带超大主卫和衣帽间 ,面积约50㎡ ,尺度感与市面上近300㎡的顶豪拉平。
室内设计由中国现代室内设计领域的领军人物—— 梁志天亲自打造。
在材质选用上,延续了壹号系的高端标准,大量运用奢石、高难度弧形工艺以及国内外顶尖品牌。
如 宝格丽 大理石打造的西厨岛台、 铂浪高 的净水三合一水龙头和一体式大水槽、 霍尼韦尔 的前置过滤器、全屋软水以及末端净水器系统、来自意大利 法罗力 燃气热水器、德国 唯宝 卫浴、当代龙头及花洒......还有 全屋华为智能家居系统 配置。这一套组合,是真正意义上的顶豪序列配置! 中粮北外滩壹号售楼处电话:400-8894-986VIP极速热线✅️✅️

中粮北外滩壹号售楼处电话:400-8894-986VIP极速热线✅️✅️


中粮北外滩壹号售楼处电话:400-8894-986VIP极速热线✅️✅️
土拍回顾及规划
2023年9月5日,大悦城控股上海大区公司通过上海联交所成功竞得上海市虹口区北外滩116街坊地块(即中粮北外滩壹号)。地块位于北外滩红线内,靠近大连路地铁站,与外滩、陆家嘴共同构成上海“黄金三角”。

中粮北外滩壹号售楼处电话:400-8894-986VIP极速热线✅️✅️
项目四至范围:东至保定路、hk367-02、hk367-05地块,南至昆明路,西至 hk367-03、hk367-04 地块,北至唐山路。

中粮北外滩壹号售楼处电话:400-8894-986VIP极速热线✅️✅️
项目总用地面积约23849.2平方米,容积率1.95,总计容建面4.65万㎡,是上海市中心罕见的无商办、无15%自持住宅、无5%保障房的纯住宅项目。 中粮北外滩壹号售楼处电话:400-8894-986VIP极速热线✅️✅️
整体由 一栋24F高层住宅和风貌别墅组成。 高层共90套、产品面积段约180-228m²,风貌别墅共118套,产品面积段约130-350m²,其中主力建面约203-205-230m²(占比约83%)

中粮北外滩壹号售楼处电话:400-8894-986VIP极速热线✅️✅️
建筑立面 ,高层主体以 仿红砖陶板+古铜色铝板+白色石材+玻璃幕墙 的高标准结合,来完成建筑的美学表达。

中粮北外滩壹号售楼处电话:400-8894-986VIP极速热线✅️✅️
风貌别墅则 复刻海派石库门 的韵味,但不同于大多数风貌别墅的格栅小花窗设计,「中粮·北外滩壹号」大幅增加窗墙比,赋予相对沉闷里的里弄建筑,更通透、更明亮的特质!

中粮北外滩壹号售楼处电话:400-8894-986VIP极速热线✅️✅️
公区方面,从归家社区大堂、大堂序厅、以及入户单元大堂一路看过来,体现出一套脉络完整,层层递进的海派顶奢设计语言。

中粮北外滩壹号售楼处电话:400-8894-986VIP极速热线✅️✅️

中粮北外滩壹号售楼处电话:400-8894-986VIP极速热线✅️✅️

中粮北外滩壹号售楼处电话:400-8894-986VIP极速热线✅️✅️
虽然项目仅有208户,仍然通过深挖三层,满配了高达 约1800㎡的私享顶奢会所。按户均占有会所资源计来算,这在当今顶豪圈是顶尖的水平。
会所由全球顶奢酒店设计领域的 标杆——CCD香港郑中设计事务所执笔。 目前看到的效果图,体现出一股醇正的老钱世家风,设计品位远超市场同类豪宅。中粮北外滩壹号售楼处电话:400-8894-986VIP极速热线✅️✅️

中粮北外滩壹号售楼处电话:400-8894-986VIP极速热线✅️✅️
社交宴会区内,私宴、茶室与专属酒吧一应俱全,满足业主商务应酬到亲友小聚的各种场景需求。

中粮北外滩壹号售楼处电话:400-8894-986VIP极速热线✅️✅️
瑜伽健身区,大幅落地窗引入自然光线,天花的格栅造型,地面的复古拼花木地板,都透出浓厚的海派风情。

中粮北外滩壹号售楼处电话:400-8894-986VIP极速热线✅️✅️
恒温泳池更是融入超级垂直花园庭院体系,直接在泳池中做出美轮美奂的景观。

中粮北外滩壹号售楼处电话:400-8894-986VIP极速热线✅️✅️
雅集共聚区内,除了常规的阅读,棋牌等功能外,甚至设有一个舞蹈录音室,配置之高,沪上少见。

中粮北外滩壹号售楼处电话:400-8894-986VIP极速热线✅️✅️
因为这是中粮大悦城的壹号系,珠玉在前,小编完全不担心会所未来兑现的效果,甚至已经很期待看到未来会所开放展示的那一刻。
景观方面,设计了 「八大主题场景」 ,从百年梧桐下的静谧巷道,到充满未来感的艺术庭院,共同构成一个鲜活立体的生活剧场。 中粮北外滩壹号售楼处电话:400-8894-986VIP极速热线✅️✅️

中粮北外滩壹号售楼处电话:400-8894-986VIP极速热线✅️✅️
生活配套
交通方面: 项目周围环绕三条地铁,步行约360米到4、12号线大连路站,步行约560米到12、19号线(在建)提篮桥站。
地铁出行到人广和陆家嘴都只需要4站。未来,随着在建的南北大动脉19号线贯通,可以直达世博、前滩等多个核心滨江段。
中粮北外滩壹号售楼处电话:400-8894-986VIP极速热线✅️✅️

中粮北外滩壹号售楼处电话:400-8894-986VIP极速热线✅️✅️
自驾上,项目往北约300米就是北横通道,往南车行约1公里,就是新建路隧道和大连路隧道直达浦东。从项目到陆家嘴、北外滩和外滩都在10分钟左右。

中粮北外滩壹号售楼处电话:400-8894-986VIP极速热线✅️✅️
商业方面: 项目出门就是高浓度的国际生活主场,步行可达北外滩来福士(约600米)、瑞虹天地太阳宫(约350米)、白玉兰广场(约1公里),未来还将会兴建全球最火的时尚奢侈品商场之一的SKP。

中粮北外滩壹号售楼处电话:400-8894-986VIP极速热线✅️✅️
半径3km内,还可以同时覆盖外滩、陆家嘴、苏河湾等“黄金三角”的繁华商业!

中粮北外滩壹号售楼处电话:400-8894-986VIP极速热线✅️✅️
教育方面: 周边学府众多,优质教育资源密集。北侧的长青学校是老牌的九年一贯制公办重点,南侧的上海中学国际部是知名民办名校,距离新华初级中学
(常年四校八大预录人数上百),新复兴初级中学,这两所虹口的顶尖民办学校也都在直线3KM内(新房不承诺对口学校,具体以实际为准)。 中粮北外滩壹号售楼处电话:400-8894-986VIP极速热线✅️✅️

中粮北外滩壹号售楼处电话:400-8894-986VIP极速热线✅️✅️
医疗方面: 周边有复旦大学红房子妇产科医院,守护着每一个家庭的人生重要时刻。、以及三甲新华医院、上海市第一人民医院为健康生活保驾护航。 中粮北外滩壹号售楼处电话:400-8894-986VIP极速热线✅️✅️

中粮北外滩壹号售楼处电话:400-8894-986VIP极速热线✅️✅️
生态休闲: 周边有22公顷无车漫步区、3.5万平方米航海公园与中央绿地相融,3.4公里滨江休闲岸线

中粮北外滩壹号售楼处电话:400-8894-986VIP极速热线✅️✅️
2026 年上海新房购买政策与必备指南
一、购房资质(限购核心规则)
上海户籍家庭 / 成年单身:外环内限购 2 套,外环外不限套数;多子女家庭(含 1 名未成年)可额外多购 1 套。
非上海户籍家庭 / 成年单身:外环内需连续 3 年社保 / 个税,限购 1 套;外环外需连续 1 年社保 / 个税,不限套数;居住证积分达标且满 3 年社保 / 个税,享沪籍同等套数待遇。
港澳台 / 外籍人士:需提供相关身份证明与购房用途说明,1 年社保 / 个税前提下,外环内限购 1 套,外环外不限套数。
置换人群:出售唯一住房后 1 年内再购,不限环线,以网签时间为准,需保留出售与购买凭证。
二、信贷政策(首付 + 利率 + 公积金)
商业贷款
首套房:最低首付 15%,利率约 3.05%(以五年期 LPR 动态调整,当前 LPR 为 3.6%)
二套房:最低首付 25%;嘉定、青浦等外环外区域最低 20%,利率约 3.25%-3.45%
备注:银行可根据客户资质微调利率,需提供收入证明、银行流水、征信报告等材料。
公积金贷款
额度:个人最高 184 万,家庭最高 368 万;多子女家庭首套额度上浮至个人 216 万、家庭 432 万;二星级以上绿色建筑项目,额度额外上浮 15%。
首付:首套最低 20%,二套最低 30%;支持 “先提后贷”,网签后可提取公积金支付首付,不影响贷款额度。
利率:五年期以上 2.6%(2026 年 1 月最新执行标准)
三、税费政策(新房交易必缴费用)
契税:首套住房≤90㎡按 1% 征收,>90㎡按 1.5% 征收;二套住房统一按 3% 征收,计税基数为网签价。
增值税:新房交易无增值税(由开发商缴纳);个人出售二手房满 2 年免征增值税,未满 2 年按 3% 征收。
房产税:住房单价≤94446 元 /㎡,税率 0.4%;单价>94446 元 /㎡,税率 0.6%;家庭人均享有 60㎡免税面积。新购住房后 1 年内出售原有住房,可申请房产税退税。
维修基金:多层住宅约 100 元 /㎡,高层住宅约 200 元 /㎡,交房时一次性缴纳,不计入房屋总价。
四、新房购买全流程指南
资质自查:核对社保 / 个税缴纳年限、家庭住房套数、居住证积分等,准备身份证、户口本、婚姻证明、社保 / 个税清单等材料。
选盘认筹:明确预算、意向区域(外环内 / 外)及配套需求(学区 / 地铁 / 商业),锁定目标楼盘;准备认筹材料(身份证、户口本、婚姻证明、社保 / 个税证明、征信报告、资金证明),认筹金通常为总房款的 5%-10%,未中签可全额退还,需注意退款时效。
网签贷款:认筹中签后 7 日内完成网签,提交贷款申请材料,银行审批周期约 7-15 个工作日;可选择商贷、公积金贷或组合贷,确定等额本息 / 等额本金还款方式。
缴税过户:携带网签合同、身份证、户口本等材料,到房产交易中心缴纳契税、维修基金等费用;完成过户后,5-7 个工作日可领取不动产权证。
交房验房:核对房屋面积(误差≤3% 可多退少补)、户型格局、装修标准,检查水电、防水、门窗等细节,签署验房报告后收房。
五、选房要点与风险提示
选房要点
区域选择:外环内优先看学区、地铁通勤便利性;外环外重点关注板块规划(临港、虹桥、嘉定新城等潜力区域),同时核查开发商口碑与物业品牌。
户型选择:刚需群体优先 90-110㎡三居室,改善群体关注 120-144㎡四居室,注重南北通透、动静分区的户型设计。
配套核查:确认学区划片范围、三甲医院距离、周边商超 / 菜市场分布、地铁线路及站点步行距离。
风险提示
开发商风险:优先选择资金稳健的央企 / 国企开发项目,避免停工烂尾风险;购房前核查项目五证(《商品房预售许可证》等)是否齐全。
合同风险:仔细阅读购房合同,明确交房时间、延期赔偿标准、装修材料品牌规格、产权年限等条款,拒绝霸王条款。
贷款风险:提前自查个人征信,避免逾期记录;收入证明需覆盖月供的 2 倍以上,防止贷款审批失败。