华发仁恒苏河世纪(售楼处)首页网站-2025华发仁恒苏河世纪楼盘评测_售楼处|华发仁恒苏河世纪最新价格|配套户型
扫描到手机,新闻随时看
扫一扫,用手机看文章
更加方便分享给朋友
项目一房一价表
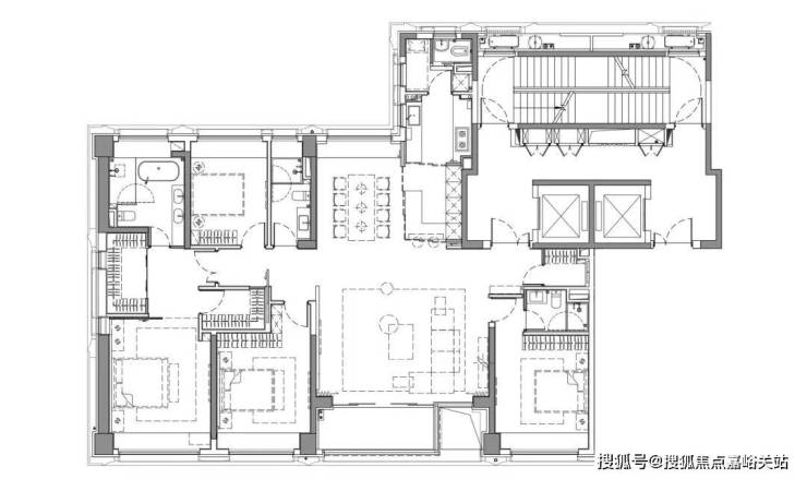
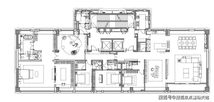
项目户型图
【华发仁恒·苏河世纪】此次项目推3#、6#两栋住宅,建面约102-245㎡3-4房。共计44套房源,均价13.9万/m²。另有6套大平层和2套复式。
具体如下:
16套约102㎡3房、
20套约245㎡4房、
6套约498㎡大平层、
2套约480㎡复式。


2020年10月,华发、仁恒联合体以总价421080万元竞得静安区天目社区C070102单元38-01、39-01地块,成交楼面价52833.79元/㎡,该地块是商住办性质。
位置示意图
38-01地块要求5%保障房、100%全装修、80%以上中小套。规划建设6栋住宅,共288套住宅,预计明年入市。其中1#9F,2、4、5#26F,3#19F,6#8F。
华发仁恒·苏河世纪售楼处电话:400-8874-108✔华发仁恒·苏河世纪营销中心电话:400-8874-108✔✔上海华发仁恒·苏河世纪售楼处电话:400-8874-108 VIPLINE✔✔✔
项目基本参数
区位板块:静安区苏河湾
建筑面积:住宅部分约4.2万方,商业、文化及办公部分约3.6万方。
绿化率:35%
容积率:3.0
住宅产品:3幢26层公寓、1幢19层公寓、1幢8层公寓
总户数:348套
车位配比:478个
主力户型:建筑面积约99㎡-240㎡高层
交付标准:精装
【华发仁恒·苏河世纪】共6栋住宅,首开300套房源,以105-107㎡左右户型为主。推出三栋住宅,均价13.3万/㎡,入围分68.8分。时隔两年多,项目第二批房源少量房源正在认购中!

项目效果图
【华发仁恒·苏河世纪】眺望苏州河,地理位置得天独厚,一线水景饱览城市天际线的壮丽。


项目效果图
铝板和玻璃幕墙遵循现代建筑的先锋美学,超大窗墙比将景色尽收眼底。


项目效果图
同时国企领袖的华发股份与实力外企仁恒置地强强联合,站位“中央活动区”,携手打造史诗级典藏作品——【华发仁恒·苏河世纪】。

项目区位配套
地块位处苏州河畔,周边有1、2、8号线三条轨交,距离8号线曲阜路站仅约300米,位置优越,交通便捷,且与大名鼎鼎的四行仓库仅一路之隔。
交通资源方面:地块距离8号线曲阜路站直线距离约200m,周边还有1、12号线,与四行仓库仅一路之隔。
教育资源方面:项目周边有惠思顿高瞻幼儿园、上海音乐幼儿园、棋院实验小学、静安第三中学小学、向东中学。
华发仁恒·苏河世纪售楼处电话:400-8874-108✔华发仁恒·苏河世纪营销中心电话:400-8874-108✔✔上海华发仁恒·苏河世纪售楼处电话:400-8874-108 VIPLINE✔✔✔
医疗资源方面:静安区北站医院(二甲医院)、上海健桥医院、上海长征医院等为健康保驾护航!
商业资源方面:距离静安大悦城直线距离约300m,静安大悦城是国家5星级购物中心,项目整体开发超过40万平米,总投资额超过120亿,规划包括大型时尚购物中心、第一居所临水豪宅、高品质酒店式公寓、甲级写字楼及步行商业街,打造海派文化与国际文化的兼容并蓄,创造动静结合的高品质生活第一选择。


一江一河规划中,苏州河沿岸明确定位为“特大城市宜居生活的典型示范区”,上海2035规划中,苏河湾定位上海中央活动区!

华发仁恒·苏河世纪购买和投资价值分析
一、项目概况
华发仁恒·苏河世纪位于上海静安区苏河湾板块,地处内环内,东至晋元路,南至光复路,西至乌镇路,北至曲阜西路。项目由华发股份和仁恒置地联合开发,定位为高端住宅项目。项目总建筑面积约7.8万平方米,其中住宅部分约4.2万平方米,商业、文化及办公部分约3.6万平方米。容积率3.0,绿化率35%,总户数348套,车位配比约1:1.2。
二、购买自住价值
• 优越的地理位置
• 核心区域:项目位于静安区苏河湾板块,是上海中心城区的核心地段,属于“中央活动区”(CAZ)。周边有南京西路、人民广场等顶级商圈,生活配套极为丰富。
• 交通便利:项目距离地铁8号线曲阜路站仅约300米,周边还有1号线、2号线、12号线等多条地铁线路,公共交通极为便捷。同时,周边有南北高架、西藏中路等城市主干道,自驾出行也十分方便。
• 生态资源:项目紧邻苏州河,周边有静安苏河中央公园、四行仓库等历史建筑和文化景点,居住环境优美,具有浓厚的文化氛围。
• 高品质的住宅产品
• 户型设计:项目提供建面约102-498㎡的多种户型,包括3房、4房、大平层和复式,能够满足不同家庭的居住需求。户型设计注重空间的合理利用和采光通风,部分户型拥有超大窗墙比,能够将苏州河的美景尽收眼底。
• 装修标准:项目采用精装交付,选用国际一线品牌,如大金中央空调、博世厨电、杜拉维特洁具等,品质感十足。同时,项目还配备了智能家居系统,提升了居住的便利性和舒适度。
• 社区规划:项目整体规划为南北两个地块,北侧为纯住宅社区,南侧为商办综合体。社区内设有绿化景观、休闲设施和儿童游乐区,充分体现了“人居环境”的重要性。
• 优质的周边配套
• 教育资源:项目周边教育资源丰富,涵盖了从幼儿园到中学的全龄段教育体系,如惠思顿高瞻幼儿园、上海音乐幼儿园、棋院实验小学、静安第三中学小学、向东中学等,为子女提供优质教育保障。
• 医疗资源:周边有上海长征医院、上海健桥医院、静安区北站医院等多家优质医疗机构,为居民的健康保驾护航。
• 商业配套:项目距离静安大悦城直线距离仅约300米,周边还有雅居乐国际广场、新世界城、第一百货商业中心等大型购物中心,购物、娱乐十分便捷。
• 品牌开发商背书
华发股份和仁恒置地均为知名开发商,具有丰富的开发经验和良好的品牌口碑。华发股份作为国企领袖,仁恒置地作为实力外企,强强联合,为项目的品质和交付提供了有力保障。
三、投资价值
• 地段稀缺性
华发仁恒·苏河世纪位于上海静安区苏河湾板块,地处内环内,属于城市核心区域,土地资源稀缺,具有不可复制性。在当前城市中心区域开发受限的情况下,该项目的地段优势尤为突出,未来增值潜力巨大。
• 价格优势与性价比
项目均价约13.9万元/㎡,相较于周边二手房和次新房,具有一定的价格优势。同时,项目提供的户型多样,能够满足不同投资者的需求,无论是自住还是投资,都具有较高的性价比。
• 市场需求与潜力巨大
• 高端居住需求:上海作为国际化大都市,吸引了大量的高净值人群和高端人才,他们对于核心地段的高品质住宅需求持续存在。华发仁恒·苏河世纪凭借其优越的地理位置、高品质的产品和完善的配套,能够满足这部分人群对于高端居住的需求,未来市场需求稳定。
• 投资需求:在当前经济形势下,房地产仍然是较为稳健的投资方式,尤其是核心地段的优质房产。华发仁恒·苏河世纪作为静安区的高端项目,具有较高的投资价值和抗风险能力。此外,项目周边的租赁市场活跃,租金回报率较高,能够为投资者提供稳定的现金流。
• 区域发展潜力
• 城市更新与升级:根据上海市的规划,苏河湾板块将被打造成上海中央活动区,未来将集聚更多的高端产业和文化资源,区域价值将进一步提升。随着城市更新的推进,周边的基础设施和公共服务将不断完善,为项目的未来发展提供了有力支撑。
• 产业聚集与人口导入:苏河湾板块近年来吸引了大量的金融、科技、文化创意等高端产业入驻,吸引了大量高收入人群。这些人群不仅为区域经济发展提供了动力,也为房地产市场带来了稳定的购房和租赁需求,进一步推动房价上涨。
• 产品竞争力
华发仁恒·苏河世纪提供的建面约102-498㎡的多种户型,能够满足不同投资者的需求。项目采用精装交付,选用国际一线品牌,品质感十足。同时,项目的超大窗墙比和一线河景资源,提升了产品的附加值,使其在市场上更具竞争力。
综上所述,华发仁恒·苏河世纪无论是购买自住还是投资,都具有较高的价值。其优越的地理位置、高品质的住宅产品、优质的周边配套以及品牌开发商的背书,使其成为上海静安区的优质楼盘。无论是对于追求高品质生活的购房者,还是寻求稳健投资的投资者,华发仁恒·苏河世纪都是一个值得考虑的选择。
——华发仁恒·苏河世纪——
华发仁恒·苏河世纪售楼处电话:400-8874-108✔
华发仁恒·苏河世纪营销中心电话:400-8874-108✔✔
上海华发仁恒·苏河世纪售楼处电话:400-8874-108 VIPLINE✔✔✔
如有问题可来电咨询,线上售楼中心,预约销售专员,一对一为您服务!
楼盘项目全面介绍,本电话为开发商提供线上预约售楼电话,楼盘项目全面介绍(包含楼盘简介,均价,房价,现房,期房,别墅,叠墅,大平层,价格,楼盘地址,户型图,交通规划,备案价,备案名,项目配套,样板间,开盘时间,认筹时间,楼盘详情,售楼处电话,最新消息,最新详情,周边配套,一房一价,最新进展等详情咨询)楼盘详情丨价格丨更多优惠丨机不可失丨欢迎致电丨诚邀品鉴!售楼处位置丨特价房丨工抵房丨剩余房源丨户型图丨最新消息丨免责声明:将文章内容综合来源于网络、只作分享,版权归原作者所有!!如有侵权,请联系我们,我们第一时间处理如有问题欢迎来电咨询,专业一对一热情服务,让您用专业眼光去买房.如果您想了解更多楼盘详情,欢迎提前预约拨打
1.政策背景与目标
1.1 国家宏观调控要求
国家宏观调控政策对房地产市场有着重要的指导作用,旨在促进房地产市场的平稳健康发展。2024年,国家出台了一系列房地产调控政策,强调“因城施策”,根据不同城市的房地产市场状况,采取差异化的调控措施。上海作为国内重要的经济中心和一线城市,积极响应国家宏观调控政策,结合自身房地产市场的特点,制定了相应的房地产新政。这些政策的出台,旨在落实国家宏观调控要求,推动房地产市场从“有没有”向“好不好”转变,更好地满足居民的刚性和改善性住房需求,促进房地产市场的平稳健康发展。
1.2 上海房地产市场现状
2024年,上海房地产市场在政策支持下,经历了从低迷到逐步回暖的过程。根据上海市统计局的数据,2024年上海房地产开发投资比上年增长2.8%,但商品房施工面积下降4.5%,其中住宅施工面积下降5.2%;商品房新开工面积下降8.5%,其中住宅新开工面积下降11.4%;商品房竣工面积下降19.1%,其中住宅竣工面积下降29.5%;商品房销售面积下降8.5%,其中住宅销售面积下降6.9%。这些数据表明,上海房地产市场在2024年整体呈现一定的下行压力,但随着政策的调整和市场的逐步适应,市场信心有所回升。
从市场表现来看,新房市场供应减少,成交689万平方米,同比下降24%。二手房市场则在四季度929新政和税费政策的推动下,成交显著回暖,市场信心回升。土地市场方面,2024年上海土地市场热度低迷,全年含宅土地成交规模收缩6成,但从七批次起供应质素上升,热度有所回升。整体来看,上海房地产市场在2024年呈现出一定的分化态势,新房市场面临供应减少和成交下滑的双重压力,而二手房市场则在政策利好下逐步回暖,土地市场则在供应结构调整和市场预期改善的双重作用下,热度有所回升。
在这种市场背景下,上海房地产新政的出台,旨在通过优化税收政策、调整限购政策、降低交易成本等措施,进一步促进房地产市场的平稳健康发展。这些政策的实施,不仅有助于缓解市场下行压力,稳定市场预期,还为居民的合理住房需求提供了更多的支持和保障,推动房地产市场向高质量发展阶段迈进。
:[上海新政官宣后,买房到底能省多少钱?解读来了!新旧政策对照表]()#2.限购政策调整
2.1 非沪籍居民购房条件放宽
2024年9月29日上海出台的房地产新政中,对非沪籍居民购房条件进行了显著放宽。此前,非沪籍居民在沪购房需连续缴纳社保或个税满3年,而此次调整将这一年限缩短至1年。这一政策调整主要针对外环外住房的购买,降低了非沪籍居民的购房门槛,有助于吸引更多人才来沪定居和创业。
从市场数据来看,非沪籍人群在上海新房市场中占有重要地位。自“沪九条”施行以来,购房者中超20%为非沪籍人群,其中60%以上购买的是外环外的新房。此次政策调整,将进一步激发非沪籍居民的购房需求,促进外环外房地产市场的活跃度,推动区域经济的发展。
2.2 持居住证群体购房待遇提升
此次新政还提升了持《上海市居住证》且积分达到标准分值群体的购房待遇。具体而言,持有《上海市居住证》且积分达到120分、在本市缴纳社保或个税满3年的非沪籍居民家庭,在购买住房套数方面,将享受与沪籍居民家庭相同的购房待遇。这意味着,符合条件的非沪籍家庭在购房时不再受到额外限制,能够更自由地选择住房,满足其刚性和改善性住房需求。
根据上海市居住证积分管理办法,达到标准分值的持证人可享受子女教育、社会保险等公共服务待遇。此次购房待遇的提升,进一步增强了居住证的含金量,吸引更多人才在上海长期发展,为城市注入新的活力。
2.3 临港新片区差异化政策
在自贸区临港新片区,上海实施了更加差异化的购房政策。对于在临港工作、存在职住分离的群体,在执行现有住房限购政策的基础上,可在新片区增购1套住房。这一政策旨在促进临港新片区的职住平衡,降低通勤成本,推动产城融合发展。
临港新片区作为上海的重要战略区域,承担着吸引人才、推动产业升级的重要任务。此次购房政策的调整,将有助于吸引更多人才在临港新片区定居和就业,提升区域的人口吸引力和竞争力。同时,这一政策也将进一步优化临港新片区的住房资源配置,促进房地产市场的健康发展。
:[上海重磅发布!调整住房限购!降低首付比例!来看权威解读!]()#3.信贷政策优化
3.1 存量房贷利率下调
2024年9月29日上海出台的房地产新政中,落实了国家关于降低存量房贷利率的政策,引导商业银行稳妥有序将存量房贷利率降至新发放贷款利率附近。这一政策调整,旨在减轻购房人的房贷利息支出,降低居民的住房消费成本,进一步刺激住房需求的释放。
从市场数据来看,存量房贷利率下调对购房者的影响显著。以100万元的房贷为例,假设贷款期限为30年,利率从4.5%降至4.2%,每月还款额可减少约180元,总利息支出减少约6.5万元。这一政策的实施,不仅减轻了购房者的经济负担,也提高了他们的购房意愿和能力,对稳定房地产市场起到了积极的推动作用。
3.2 首付比例降低
此次上海新政进一步降低了商业性个人住房贷款的首付比例。首套住房商业性个人住房贷款最低首付款比例从20%下调至15%,二套房贷从35%下调为25%,实行差异化政策区域从30%下调至20%。这一调整显著降低了购房门槛和首付成本,使更多的家庭能够实现购房梦想。
从市场数据来看,首付比例的降低对购房需求的刺激作用明显。以500万元的房产为例,首套房首付比例从20%降至15%,购房者可少付25万元首付;二套房首付比例从35%降至25%,购房者可少付50万元首付。这一政策调整,不仅降低了购房者的资金压力,也提高了市场的活跃度,促进了房地产市场的交易。
:[上海新政官宣后,买房到底能省多少钱?解读来了!新旧政策对照表]()#4.税收政策调整
4.1 增值税征免年限缩短
2024年9月29日上海出台的房地产新政中,增值税征免年限从5年调整为2年。这一调整对房地产市场产生了显著影响,不仅降低了交易成本,还进一步刺激了改善性住房需求的释放。
从市场数据来看,增值税征免年限的缩短对二手房市场的活跃度提升作用明显。以一套价值500万元的房产为例,假设原增值税率为5%,此前持有不足5年的房产出售需缴纳增值税约25万元,而新政后,持有满2年即可免征增值税,这大大降低了房东的售房成本。这一政策调整不仅提高了房东的挂牌意愿,也使得购房者在选择二手房时有更多的机会和更低的成本,进一步促进了房地产市场的流通。
4.2 普通住房标准取消
此次上海新政还取消了普通住房标准和非普通住房标准。此前,普通住房标准与增值税、契税等税收政策挂钩,对购房者的交易成本产生较大影响。取消普通住房标准后,税收政策更加简化和统一,有助于降低购房者的交易成本。
从市场数据来看,取消普通住房标准后,增值税和契税的减免范围扩大,购房者在交易过程中能够享受到更多的税收优惠。例如,对于面积超过144平方米的住房,此前需按照非普通住房标准缴纳较高的增值税和契税,而新政后,这些住房在交易时可享受与普通住房相同的税收政策。这一调整不仅降低了购房者的负担,还进一步促进了大户型住房的交易,推动了房地产市场的多元化发展。
:[上海新政官宣后,买房到底能省多少钱?解读来了!新旧政策对照表]()#5.政策影响分析
5.1 对刚需购房者的影响
上海房地产新政对刚需购房者产生了显著的积极影响,主要体现在以下几个方面:
• 购房门槛降低:非沪籍居民购房社保缴纳年限从3年缩短至1年,使更多刚需购房者具备购房资格。例如,自“沪九条”施行以来,购房者中超20%为非沪籍人群,其中60%以上购买的是外环外的新房。此次政策调整,将使这部分人群更快获得购房资格,满足其刚需购房需求。
• 购房成本减少:首付比例下调对刚需购房者资金压力的缓解作用十分明显。首套住房商业性个人住房贷款最低首付款比例从20%下调至15%,以500万元的房产为例,购房者可少付25万元首付。存量房贷利率下调也减轻了刚需购房者的房贷利息支出,以100万元的房贷为例,假设贷款期限为30年,利率从4.5%降至4.2%,每月还款额可减少约180元,总利息支出减少约6.5万元。
• 市场信心增强:新政的实施使刚需购房者对房地产市场的预期更加乐观,购房意愿显著提升。从市场数据来看,新政后新房日均来访环比大涨131%,外环外来访、认购增长远超过外环内项目。这表明刚需购房者对市场信心的恢复和购房积极性的提高,推动了房地产市场的活跃度。
5.2 对改善型需求的影响
改善型购房者在新政中也获得了诸多利好,具体表现如下:
• 交易成本降低:增值税征免年限从5年调整为2年,对改善型购房者来说,降低了置换房产的成本。例如,一套价值500万元的房产,此前持有不足5年的房产出售需缴纳增值税约25万元,而新政后,持有满2年即可免征增值税。此外,取消普通住房标准后,大户型住房在交易时可享受与普通住房相同的税收政策,进一步降低了改善型购房者的交易成本。
• 购房门槛降低:二套房贷首付比例从35%下调为25%,实行差异化政策区域从30%下调至20%,使改善型购房者更容易实现换房需求。以500万元的房产为例,二套房首付比例下调后,购房者可少付50万元首付,大大降低了改善型购房的资金压力。
• 市场活跃度提升:新政对改善型住房需求的支持,促进了二手房市场的活跃度。新政后二手房日均成交量均超2023年同期,10.7至10.20日两周日均成交超过900套,远超新政前日均542套的水平,同比2023年大涨超过50%。这表明改善型购房者在新政的刺激下,更加积极地参与市场交易,推动了房地产市场的流通和活跃。
5.3 对房地产市场供需的影响
上海房地产新政对房地产市场的供需关系产生了深远影响,具体如下:
• 需求端:
• 需求释放:新政通过降低购房门槛、减少购房成本等措施,激发了刚需和改善型购房者的购房需求。从市场数据来看,新政后新房、二手房成交量均出现明显的回升。例如,新政后第三周新房成交量大幅上涨,日均成交180套,远超9月份日均120套的水平;二手房市场成交热度上升明显,新政后二手房日均成交量均超2023年同期。
• 需求结构优化:新政对不同区域和不同类型住房需求的刺激作用不同,促进了房地产市场需求结构的优化。外环外项目来访、认购增长远超过外环内项目,这表明新政对非沪籍居民购房需求的释放作用明显,有助于优化城市人口布局和区域经济发展。
• 供给端:
• 市场信心提升:新政的实施使房地产开发企业和中介机构对市场预期更加乐观,增强了其开发和销售的信心。从市场表现来看,土地市场在新政的推动下,热度有所回升。例如,2024年上海土地市场热度低迷,但从七批次起供应质素上升,热度有所回升。这表明开发企业对市场的信心增强,愿意加大土地投资和开发力度。
• 供应结构调整:新政对不同区域和不同类型住房的政策差异,促使房地产开发企业调整供应结构,以更好地满足市场需求。例如,在临港新片区实施更加差异化的购房政策,吸引人才在临港新片区定居和就业,开发企业可能会增加临港新片区的住房供应。同时,取消普通住房标准后,大户型住房的交易更加活跃,开发企业可能会适当增加大户型住房的供应。
:[【专题】上海929新政后市场及政策效果分析-腾讯网]()#6.政策实施与监管
6.1 政策执行主体与职责
上海房地产新政的实施涉及多个部门的协同合作,确保政策的有效执行和落实。
• 市住房城乡建设管理委:作为主要的政策执行主体之一,负责统筹协调房地产市场调控政策的实施,制定具体的实施细则和操作流程,确保政策在全市范围内的一致性和有效性。例如,明确非沪籍居民购房条件的调整细则,指导各区在实际操作中准确执行政策。
• 市房屋管理局:承担房地产交易管理的具体职责,负责审核购房资格、监督房地产交易过程,确保交易的合法性和规范性。在新政实施过程中,市房屋管理局需加强对购房资格审核的管理,防止不符合条件的人员违规购房,同时优化交易流程,提高办事效率,方便购房者办理相关手续。
• 市规划资源局:从土地供应和规划的角度,为房地产市场的平稳发展提供支持。根据新政的要求,合理调整土地供应计划,优化土地出让条件,保障房地产市场的土地供应,促进房地产市场的供需平衡。
• 市税务局:负责税收政策的调整和执行,确保税收政策的落实到位。在新政中,增值税征免年限的调整和普通住房标准的取消等税收政策变化,需要市税务局制定详细的税收征管措施,加强对房地产交易环节的税收监管,防止税收漏洞,保障税收政策的公平性和有效性。
• 人民银行上海总部与上海金融监管局:负责住房信贷政策的调整和监管,引导商业银行落实降低存量房贷利率、调整首付比例等政策。确保金融机构在执行信贷政策过程中,严格遵守国家和地方的相关规定,防范金融风险,同时为合理住房需求提供有力的金融支持。
6.2 监管措施与违规处理
为确保房地产新政的顺利实施,上海采取了严格的监管措施,并明确了违规处理机制,以维护房地产市场的正常秩序。
• 监管措施:
• 建立信息共享平台:各部门之间建立信息共享机制,通过信息化手段实现购房资格审核、交易记录、税收缴纳等信息的实时共享。这有助于提高监管效率,及时发现和处理违规行为,防止信息不对称导致的问题。
• 加强市场监测与分析:定期对房地产市场进行监测和分析,及时掌握市场动态和政策执行效果。根据市场变化,适时调整监管策略,确保政策目标的实现。例如,通过监测新房和二手房的成交量、价格走势等指标,评估政策对市场供需的影响,及时发现潜在风险。
• 强化执法检查:加强对房地产开发企业、中介机构和金融机构的执法检查,确保其严格遵守相关政策规定。定期开展专项检查活动,重点打击违规销售、虚假宣传、违规放贷等行为,维护市场秩序。
• 公众监督与举报机制:建立健全公众监督和举报机制,鼓励社会公众对房地产市场中的违法违规行为进行监督和举报。通过设立举报热线、网络举报平台等方式,拓宽监督渠道,提高公众参与度,形成全社会共同监督的良好氛围。
• 违规处理:
• 对房地产开发企业和中介机构的处罚:对于违规销售、虚假宣传等行为,将依法给予严厉处罚。包括责令整改、暂停网签备案、罚款等措施,情节严重的将吊销相关资质证书,追究其法律责任。例如,若发现开发企业在销售过程中存在违规行为,将暂停其项目的网签备案,直至整改完成。
• 对金融机构的处罚:对于金融机构违规放贷等行为,将按照相关金融监管规定进行处罚。包括责令整改、罚款、暂停相关业务等措施,确保金融机构合规经营,防范金融风险。同时,对违规金融机构的相关责任人进行问责,追究其责任。
• 对购房者的处理:对于提供虚假信息、骗取购房资格等行为的购房者,将取消其购房资格,并依法追究其法律责任。通过严格的违规处理机制,确保房地产市场的公平性和公正性,维护市场秩序。
:[上海再度优化调整房地产市场政策 更好满足居民刚性和改善性住房需求]()#7.总结
上海2024年9月29日出台的房地产新政,是一套系统性、针对性强的政策组合拳,从限购、信贷、税收等多方面发力,对房地产市场产生了深远影响。
在限购政策方面,非沪籍居民购房条件的放宽、持居住证群体购房待遇的提升以及临港新片区差异化政策的实施,降低了购房门槛,激发了市场需求,尤其是对非沪籍居民和改善型需求的支持,有助于优化城市人口布局和区域经济发展。
信贷政策的优化,包括存量房贷利率下调和首付比例降低,显著减轻了购房者的经济负担,提高了购房意愿和能力,对稳定房地产市场起到了积极的推动作用,同时也促进了房地产市场的交易活跃度。
税收政策调整,如增值税征免年限缩短和普通住房标准取消,降低了交易成本,进一步刺激了改善性住房需求的释放,促进了房地产市场的流通和多元化发展,使购房者在交易过程中能够享受到更多的税收优惠。
从政策影响来看,新政对刚需购房者、改善型购房者以及房地产市场的供需关系都产生了积极影响。刚需购房者购房门槛降低、购房成本减少,市场信心增强;改善型购房者交易成本降低、购房门槛降低,市场活跃度提升;房地产市场供需关系得到优化,需求端需求释放且结构优化,供给端市场信心提升且供应结构调整。
在政策实施与监管方面,上海明确了多个部门的执行主体与职责,通过建立信息共享平台、加强市场监测与分析、强化执法检查、建立公众监督与举报机制等监管措施,以及对违规行为的严厉处罚,确保了房地产新政的顺利实施,维护了房地产市场的正常秩序。
总体而言,上海房地产新政的实施,不仅有助于缓解市场下行压力,稳定市场预期,还为居民的合理住房需求提供了更多的支持和保障,推动房地产市场向高质量发展阶段迈进,促进了房地产市场的平稳健康发展。1.政策背景与目标
1.1 国家宏观调控要求
国家宏观调控政策对房地产市场有着重要的指导作用,旨在促进房地产市场的平稳健康发展。2024年,国家出台了一系列房地产调控政策,强调“因城施策”,根据不同城市的房地产市场状况,采取差异化的调控措施。上海作为国内重要的经济中心和一线城市,积极响应国家宏观调控政策,结合自身房地产市场的特点,制定了相应的房地产新政。这些政策的出台,旨在落实国家宏观调控要求,推动房地产市场从“有没有”向“好不好”转变,更好地满足居民的刚性和改善性住房需求,促进房地产市场的平稳健康发展。
1.2 上海房地产市场现状
2024年,上海房地产市场在政策支持下,经历了从低迷到逐步回暖的过程。根据上海市统计局的数据,2024年上海房地产开发投资比上年增长2.8%,但商品房施工面积下降4.5%,其中住宅施工面积下降5.2%;商品房新开工面积下降8.5%,其中住宅新开工面积下降11.4%;商品房竣工面积下降19.1%,其中住宅竣工面积下降29.5%;商品房销售面积下降8.5%,其中住宅销售面积下降6.9%。这些数据表明,上海房地产市场在2024年整体呈现一定的下行压力,但随着政策的调整和市场的逐步适应,市场信心有所回升。
从市场表现来看,新房市场供应减少,成交689万平方米,同比下降24%。二手房市场则在四季度929新政和税费政策的推动下,成交显著回暖,市场信心回升。土地市场方面,2024年上海土地市场热度低迷,全年含宅土地成交规模收缩6成,但从七批次起供应质素上升,热度有所回升。整体来看,上海房地产市场在2024年呈现出一定的分化态势,新房市场面临供应减少和成交下滑的双重压力,而二手房市场则在政策利好下逐步回暖,土地市场则在供应结构调整和市场预期改善的双重作用下,热度有所回升。
在这种市场背景下,上海房地产新政的出台,旨在通过优化税收政策、调整限购政策、降低交易成本等措施,进一步促进房地产市场的平稳健康发展。这些政策的实施,不仅有助于缓解市场下行压力,稳定市场预期,还为居民的合理住房需求提供了更多的支持和保障,推动房地产市场向高质量发展阶段迈进。
:[上海新政官宣后,买房到底能省多少钱?解读来了!新旧政策对照表]()#2.限购政策调整
2.1 非沪籍居民购房条件放宽
2024年9月29日上海出台的房地产新政中,对非沪籍居民购房条件进行了显著放宽。此前,非沪籍居民在沪购房需连续缴纳社保或个税满3年,而此次调整将这一年限缩短至1年。这一政策调整主要针对外环外住房的购买,降低了非沪籍居民的购房门槛,有助于吸引更多人才来沪定居和创业。
从市场数据来看,非沪籍人群在上海新房市场中占有重要地位。自“沪九条”施行以来,购房者中超20%为非沪籍人群,其中60%以上购买的是外环外的新房。此次政策调整,将进一步激发非沪籍居民的购房需求,促进外环外房地产市场的活跃度,推动区域经济的发展。
2.2 持居住证群体购房待遇提升
此次新政还提升了持《上海市居住证》且积分达到标准分值群体的购房待遇。具体而言,持有《上海市居住证》且积分达到120分、在本市缴纳社保或个税满3年的非沪籍居民家庭,在购买住房套数方面,将享受与沪籍居民家庭相同的购房待遇。这意味着,符合条件的非沪籍家庭在购房时不再受到额外限制,能够更自由地选择住房,满足其刚性和改善性住房需求。
根据上海市居住证积分管理办法,达到标准分值的持证人可享受子女教育、社会保险等公共服务待遇。此次购房待遇的提升,进一步增强了居住证的含金量,吸引更多人才在上海长期发展,为城市注入新的活力。
2.3 临港新片区差异化政策
在自贸区临港新片区,上海实施了更加差异化的购房政策。对于在临港工作、存在职住分离的群体,在执行现有住房限购政策的基础上,可在新片区增购1套住房。这一政策旨在促进临港新片区的职住平衡,降低通勤成本,推动产城融合发展。
临港新片区作为上海的重要战略区域,承担着吸引人才、推动产业升级的重要任务。此次购房政策的调整,将有助于吸引更多人才在临港新片区定居和就业,提升区域的人口吸引力和竞争力。同时,这一政策也将进一步优化临港新片区的住房资源配置,促进房地产市场的健康发展。
:[上海重磅发布!调整住房限购!降低首付比例!来看权威解读!]()#3.信贷政策优化
3.1 存量房贷利率下调
2024年9月29日上海出台的房地产新政中,落实了国家关于降低存量房贷利率的政策,引导商业银行稳妥有序将存量房贷利率降至新发放贷款利率附近。这一政策调整,旨在减轻购房人的房贷利息支出,降低居民的住房消费成本,进一步刺激住房需求的释放。
从市场数据来看,存量房贷利率下调对购房者的影响显著。以100万元的房贷为例,假设贷款期限为30年,利率从4.5%降至4.2%,每月还款额可减少约180元,总利息支出减少约6.5万元。这一政策的实施,不仅减轻了购房者的经济负担,也提高了他们的购房意愿和能力,对稳定房地产市场起到了积极的推动作用。
3.2 首付比例降低
此次上海新政进一步降低了商业性个人住房贷款的首付比例。首套住房商业性个人住房贷款最低首付款比例从20%下调至15%,二套房贷从35%下调为25%,实行差异化政策区域从30%下调至20%。这一调整显著降低了购房门槛和首付成本,使更多的家庭能够实现购房梦想。
从市场数据来看,首付比例的降低对购房需求的刺激作用明显。以500万元的房产为例,首套房首付比例从20%降至15%,购房者可少付25万元首付;二套房首付比例从35%降至25%,购房者可少付50万元首付。这一政策调整,不仅降低了购房者的资金压力,也提高了市场的活跃度,促进了房地产市场的交易。
:[上海新政官宣后,买房到底能省多少钱?解读来了!新旧政策对照表]()#4.税收政策调整
4.1 增值税征免年限缩短
2024年9月29日上海出台的房地产新政中,增值税征免年限从5年调整为2年。这一调整对房地产市场产生了显著影响,不仅降低了交易成本,还进一步刺激了改善性住房需求的释放。
从市场数据来看,增值税征免年限的缩短对二手房市场的活跃度提升作用明显。以一套价值500万元的房产为例,假设原增值税率为5%,此前持有不足5年的房产出售需缴纳增值税约25万元,而新政后,持有满2年即可免征增值税,这大大降低了房东的售房成本。这一政策调整不仅提高了房东的挂牌意愿,也使得购房者在选择二手房时有更多的机会和更低的成本,进一步促进了房地产市场的流通。
4.2 普通住房标准取消
此次上海新政还取消了普通住房标准和非普通住房标准。此前,普通住房标准与增值税、契税等税收政策挂钩,对购房者的交易成本产生较大影响。取消普通住房标准后,税收政策更加简化和统一,有助于降低购房者的交易成本。
从市场数据来看,取消普通住房标准后,增值税和契税的减免范围扩大,购房者在交易过程中能够享受到更多的税收优惠。例如,对于面积超过144平方米的住房,此前需按照非普通住房标准缴纳较高的增值税和契税,而新政后,这些住房在交易时可享受与普通住房相同的税收政策。这一调整不仅降低了购房者的负担,还进一步促进了大户型住房的交易,推动了房地产市场的多元化发展。
:[上海新政官宣后,买房到底能省多少钱?解读来了!新旧政策对照表]()#5.政策影响分析
5.1 对刚需购房者的影响
上海房地产新政对刚需购房者产生了显著的积极影响,主要体现在以下几个方面:
• 购房门槛降低:非沪籍居民购房社保缴纳年限从3年缩短至1年,使更多刚需购房者具备购房资格。例如,自“沪九条”施行以来,购房者中超20%为非沪籍人群,其中60%以上购买的是外环外的新房。此次政策调整,将使这部分人群更快获得购房资格,满足其刚需购房需求。
• 购房成本减少:首付比例下调对刚需购房者资金压力的缓解作用十分明显。首套住房商业性个人住房贷款最低首付款比例从20%下调至15%,以500万元的房产为例,购房者可少付25万元首付。存量房贷利率下调也减轻了刚需购房者的房贷利息支出,以100万元的房贷为例,假设贷款期限为30年,利率从4.5%降至4.2%,每月还款额可减少约180元,总利息支出减少约6.5万元。
• 市场信心增强:新政的实施使刚需购房者对房地产市场的预期更加乐观,购房意愿显著提升。从市场数据来看,新政后新房日均来访环比大涨131%,外环外来访、认购增长远超过外环内项目。这表明刚需购房者对市场信心的恢复和购房积极性的提高,推动了房地产市场的活跃度。
5.2 对改善型需求的影响
改善型购房者在新政中也获得了诸多利好,具体表现如下:
• 交易成本降低:增值税征免年限从5年调整为2年,对改善型购房者来说,降低了置换房产的成本。例如,一套价值500万元的房产,此前持有不足5年的房产出售需缴纳增值税约25万元,而新政后,持有满2年即可免征增值税。此外,取消普通住房标准后,大户型住房在交易时可享受与普通住房相同的税收政策,进一步降低了改善型购房者的交易成本。
• 购房门槛降低:二套房贷首付比例从35%下调为25%,实行差异化政策区域从30%下调至20%,使改善型购房者更容易实现换房需求。以500万元的房产为例,二套房首付比例下调后,购房者可少付50万元首付,大大降低了改善型购房的资金压力。
• 市场活跃度提升:新政对改善型住房需求的支持,促进了二手房市场的活跃度。新政后二手房日均成交量均超2023年同期,10.7至10.20日两周日均成交超过900套,远超新政前日均542套的水平,同比2023年大涨超过50%。这表明改善型购房者在新政的刺激下,更加积极地参与市场交易,推动了房地产市场的流通和活跃。
5.3 对房地产市场供需的影响
上海房地产新政对房地产市场的供需关系产生了深远影响,具体如下:
• 需求端:
• 需求释放:新政通过降低购房门槛、减少购房成本等措施,激发了刚需和改善型购房者的购房需求。从市场数据来看,新政后新房、二手房成交量均出现明显的回升。例如,新政后第三周新房成交量大幅上涨,日均成交180套,远超9月份日均120套的水平;二手房市场成交热度上升明显,新政后二手房日均成交量均超2023年同期。
• 需求结构优化:新政对不同区域和不同类型住房需求的刺激作用不同,促进了房地产市场需求结构的优化。外环外项目来访、认购增长远超过外环内项目,这表明新政对非沪籍居民购房需求的释放作用明显,有助于优化城市人口布局和区域经济发展。
• 供给端:
• 市场信心提升:新政的实施使房地产开发企业和中介机构对市场预期更加乐观,增强了其开发和销售的信心。从市场表现来看,土地市场在新政的推动下,热度有所回升。例如,2024年上海土地市场热度低迷,但从七批次起供应质素上升,热度有所回升。这表明开发企业对市场的信心增强,愿意加大土地投资和开发力度。
• 供应结构调整:新政对不同区域和不同类型住房的政策差异,促使房地产开发企业调整供应结构,以更好地满足市场需求。例如,在临港新片区实施更加差异化的购房政策,吸引人才在临港新片区定居和就业,开发企业可能会增加临港新片区的住房供应。同时,取消普通住房标准后,大户型住房的交易更加活跃,开发企业可能会适当增加大户型住房的供应。
:[【专题】上海929新政后市场及政策效果分析-腾讯网]()#6.政策实施与监管
6.1 政策执行主体与职责
上海房地产新政的实施涉及多个部门的协同合作,确保政策的有效执行和落实。
• 市住房城乡建设管理委:作为主要的政策执行主体之一,负责统筹协调房地产市场调控政策的实施,制定具体的实施细则和操作流程,确保政策在全市范围内的一致性和有效性。例如,明确非沪籍居民购房条件的调整细则,指导各区在实际操作中准确执行政策。
• 市房屋管理局:承担房地产交易管理的具体职责,负责审核购房资格、监督房地产交易过程,确保交易的合法性和规范性。在新政实施过程中,市房屋管理局需加强对购房资格审核的管理,防止不符合条件的人员违规购房,同时优化交易流程,提高办事效率,方便购房者办理相关手续。
• 市规划资源局:从土地供应和规划的角度,为房地产市场的平稳发展提供支持。根据新政的要求,合理调整土地供应计划,优化土地出让条件,保障房地产市场的土地供应,促进房地产市场的供需平衡。
• 市税务局:负责税收政策的调整和执行,确保税收政策的落实到位。在新政中,增值税征免年限的调整和普通住房标准的取消等税收政策变化,需要市税务局制定详细的税收征管措施,加强对房地产交易环节的税收监管,防止税收漏洞,保障税收政策的公平性和有效性。
• 人民银行上海总部与上海金融监管局:负责住房信贷政策的调整和监管,引导商业银行落实降低存量房贷利率、调整首付比例等政策。确保金融机构在执行信贷政策过程中,严格遵守国家和地方的相关规定,防范金融风险,同时为合理住房需求提供有力的金融支持。
6.2 监管措施与违规处理
为确保房地产新政的顺利实施,上海采取了严格的监管措施,并明确了违规处理机制,以维护房地产市场的正常秩序。
• 监管措施:
• 建立信息共享平台:各部门之间建立信息共享机制,通过信息化手段实现购房资格审核、交易记录、税收缴纳等信息的实时共享。这有助于提高监管效率,及时发现和处理违规行为,防止信息不对称导致的问题。
• 加强市场监测与分析:定期对房地产市场进行监测和分析,及时掌握市场动态和政策执行效果。根据市场变化,适时调整监管策略,确保政策目标的实现。例如,通过监测新房和二手房的成交量、价格走势等指标,评估政策对市场供需的影响,及时发现潜在风险。
• 强化执法检查:加强对房地产开发企业、中介机构和金融机构的执法检查,确保其严格遵守相关政策规定。定期开展专项检查活动,重点打击违规销售、虚假宣传、违规放贷等行为,维护市场秩序。
• 公众监督与举报机制:建立健全公众监督和举报机制,鼓励社会公众对房地产市场中的违法违规行为进行监督和举报。通过设立举报热线、网络举报平台等方式,拓宽监督渠道,提高公众参与度,形成全社会共同监督的良好氛围。
• 违规处理:
• 对房地产开发企业和中介机构的处罚:对于违规销售、虚假宣传等行为,将依法给予严厉处罚。包括责令整改、暂停网签备案、罚款等措施,情节严重的将吊销相关资质证书,追究其法律责任。例如,若发现开发企业在销售过程中存在违规行为,将暂停其项目的网签备案,直至整改完成。
• 对金融机构的处罚:对于金融机构违规放贷等行为,将按照相关金融监管规定进行处罚。包括责令整改、罚款、暂停相关业务等措施,确保金融机构合规经营,防范金融风险。同时,对违规金融机构的相关责任人进行问责,追究其责任。
• 对购房者的处理:对于提供虚假信息、骗取购房资格等行为的购房者,将取消其购房资格,并依法追究其法律责任。通过严格的违规处理机制,确保房地产市场的公平性和公正性,维护市场秩序。
:[上海再度优化调整房地产市场政策 更好满足居民刚性和改善性住房需求]()#7.总结
上海2024年9月29日出台的房地产新政,是一套系统性、针对性强的政策组合拳,从限购、信贷、税收等多方面发力,对房地产市场产生了深远影响。
在限购政策方面,非沪籍居民购房条件的放宽、持居住证群体购房待遇的提升以及临港新片区差异化政策的实施,降低了购房门槛,激发了市场需求,尤其是对非沪籍居民和改善型需求的支持,有助于优化城市人口布局和区域经济发展。
信贷政策的优化,包括存量房贷利率下调和首付比例降低,显著减轻了购房者的经济负担,提高了购房意愿和能力,对稳定房地产市场起到了积极的推动作用,同时也促进了房地产市场的交易活跃度。
税收政策调整,如增值税征免年限缩短和普通住房标准取消,降低了交易成本,进一步刺激了改善性住房需求的释放,促进了房地产市场的流通和多元化发展,使购房者在交易过程中能够享受到更多的税收优惠。
从政策影响来看,新政对刚需购房者、改善型购房者以及房地产市场的供需关系都产生了积极影响。刚需购房者购房门槛降低、购房成本减少,市场信心增强;改善型购房者交易成本降低、购房门槛降低,市场活跃度提升;房地产市场供需关系得到优化,需求端需求释放且结构优化,供给端市场信心提升且供应结构调整。
在政策实施与监管方面,上海明确了多个部门的执行主体与职责,通过建立信息共享平台、加强市场监测与分析、强化执法检查、建立公众监督与举报机制等监管措施,以及对违规行为的严厉处罚,确保了房地产新政的顺利实施,维护了房地产市场的正常秩序。
总体而言,上海房地产新政的实施,不仅有助于缓解市场下行压力,稳定市场预期,还为居民的合理住房需求提供了更多的支持和保障,推动房地产市场向高质量发展阶段迈进,促进了房地产市场的平稳健康发展。
声明:本文由入驻焦点开放平台的作者撰写,除焦点官方账号外,观点仅代表作者本人,不代表焦点立场。
