越秀苏河和樾府-越秀苏河和樾府首页网站|越秀苏河和樾府欢迎您|楼盘详情/价格
扫描到手机,新闻随时看
扫一扫,用手机看文章
更加方便分享给朋友
下周开启接待!中环旁 一线苏河·半马苏河艺境·低密原石著作!越秀苏河·和樾府售楼处电话:400-8678-334☎产品信息全新披露!推99-188㎡3-4房!
上海普陀「越秀苏河·和樾府」
售楼处电话:400-8678-334【预约热线】☎
✅温馨提示:目前仅接待预约客户,为了节省您的宝贵时间,看房请拨打400电话与销售提前预约,避免空跑✅
 
 
 
 
 
 
 
 
项目信息
2023年上海四批次土拍中,越秀苏河·和樾府售楼处电话:400-8678-334☎热门地块无疑是普陀区北新泾产业园区W061001单元pt0259a街坊pt0259a-09地块,共计11家房企参与由越秀竞得,成交价约47.85亿,溢价率10%,楼板价66210元/㎡,房地联动价为102000元/㎡!
地块详情:
 
和樾府TOP系标准 黄金地段
TOP系核心选址标准:城市级生态资源配套与城市核心地段兼具的中心板块。
越秀苏河·和樾府售楼处电话:400-8678-334☎一块土地满足这两项要求,必定是城市顶尖的居住资源。本案立足城市核心资源,一线苏河,奢享百万方公园环抱。
公园绿岛
 
越秀苏河·和樾府售楼处电话:400-8678-334☎一半公园,一半城。本案不仅享受超百万方公园环抱,其内部还打造了约9500m²核心景观轴,营造高品质绿色社区。高定会所
 
 
越秀苏河·和樾府售楼处电话:400-8678-334☎本案配置含恒温泳池、私人健身房、儿童活动空间等功能场域的约1300m²私享会所,打造社交公共活动空间。本案为12-13层的纯低密社区(2023年上海土拍市场仅供应3幅低于容积率2.0的地块)约5000元/㎡装标,100%全屋精装,精甄国际一线前沿品牌。
 
四重原石配置:外立面、地库车行道、人行路、围墙需铺设石材,四重原石营造,延续了外滩百年建筑的永固质感。
 
项目效果图:
 
越秀苏河·和樾府售楼处电话:400-8678-334☎越秀普陀中环项目将推出520套可售房源,其中建面约99㎡户型占比约30%,建面约127㎡户型占比约40%,建面约143㎡和188㎡户型各占约15%;
 
 
完整户型图如下:(过程稿仅供参考,最终以实际为准)
 
 
 
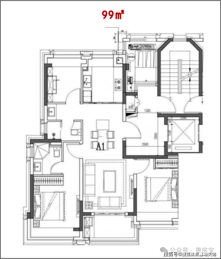
越秀苏河·和樾府售楼处电话:400-8678-334☎项目99㎡边户户型:
该户型为飞机户型,南北通透,三面宽朝南,采光通风良好。电梯配置双侧贯通门,相当于独享前室空间,私密性较高。
户型亮点:客餐厨一体化空间,动线流畅;双卧朝南,主卧套配置齐全,外加转角飘窗,视野光照较好;全飘窗设计带来更多使用空间。
缺点是,无独立玄关,餐厅处在交通空间,略小且无自然采光,南次卧采光稍差。
 
 
越秀苏河·和樾府售楼处电话:400-8678-334☎项目99㎡中间户户型:
该户型为飞机户型,南北通透,三面宽朝南,采光通风良好。电梯配置双侧贯通门,相当于独享前室空间,私密性较高。
户型亮点:客餐厨一体化空间,动线流畅;双卧朝南,主卧套配置齐全;全飘窗设计带来更多使用空间。
缺点是,缺乏独立玄关,餐厅无采光,和边户相比缺少转角飘窗,主卫窗户开在凹槽处,南次卧采光略差。
 
 
越秀苏河·和樾府售楼处电话:400-8678-334☎项目127㎡边户户型:
该户型为飞机户型,南北通透,三面宽朝南,采光通风良好。电梯配置双侧贯通门,相当于独享前室空间,私密性较高。独立玄关入户,LDK大空间配置,双卫全明。
户型亮点:主卧套配置齐全,外加转角飘窗,视野光照较好;两间次卧面积较舒适,全飘窗设计带来更多使用空间。
缺点是,南次卧由于阳台凸出较多产生自遮挡,导致采光较暗,餐厅无自然采光。
 
 
越秀苏河·和樾府售楼处电话:400-8678-334☎项目127㎡中间户户型:
该户型为飞机户型,南北通透,三面宽朝南,采光通风良好。电梯配置双侧贯通门,相当于独享前室空间,私密性较高。独立玄关入户,LDK大空间配置,双卫全明。
户型亮点:主卧套配置齐全,两间次卧面积较舒适,全飘窗设计带来更多使用空间。
缺点是,南次卧由于阳台凸出较多产生自遮挡,导致采光较暗,餐厅无自然采光;和边户相比主卧缺少转角飘窗,主卫窗户开在凹槽处。
 
 
越秀苏河·和樾府售楼处电话:400-8678-334☎项目143㎡边户户型:
该户型为飞机户型,南北通透,四面宽朝南,采光通风俱佳。电梯配置双侧贯通门,相当于独享前室空间,私密性较高。独立玄关入户,开阔LDK空间配置,中西厨齐备,双卫全明,体现社交休闲属性。
户型亮点:主卧套配置齐全,拥有步入式衣帽间和独立卫生间,外加转角飘窗,视野光照较好;三间次卧面积较舒适,其中一间南次卧为套房形式,满足全龄段居住需求;全飘窗设计带来更多使用空间。
缺点是,交通空间略有浪费,南次卧的卫生间为暗卫且无淋浴功能。
 
 
越秀苏河·和樾府售楼处电话:400-8678-334☎项目143㎡中间户户型:
该户型为飞机户型,南北通透,四面宽朝南,采光通风俱佳。电梯配置双侧贯通门,相当于独享前室空间,私密性较高。独立玄关入户,开阔LDK空间配置,中西厨齐备,双卫全明,体现社交休闲属性。
户型亮点:主卧套配置齐全,拥有步入式衣帽间和独立卫生间;三间次卧面积较舒适,其中一间南次卧为套房形式,满足全龄段居住需求;全飘窗设计带来更多使用空间。
缺点是,交通空间略有浪费,南次卧的卫生间为暗卫且无淋浴功能。和边户相比主卧缺少转角飘窗,拼接户的卧室采光不如边户。
 
 
越秀苏河·和樾府售楼处电话:400-8678-334☎项目188㎡边户户型:
该户型南北通透,四面宽朝南,边厅设计,采光通风俱佳。电梯配置双侧贯通门,相当于独享前室空间,私密性较高。独立玄关入户,过道拥有整墙收纳空间,采光和视野最好的区域给到客餐厨空间,餐厅全明预留岛台位,南侧大面宽观景阳台设置,加强社交休闲属性。
户型亮点:边厅配备超大观景飘窗带来绝佳的空间体验感;主卧为豪华套配置,拥有步入式衣帽间和四件套独立卫生间;南次卧为套房形式,书房尺度舒适可兼做客房使用,满足全龄段居住需求;全飘窗设计带来更多使用空间。
缺点是,厨房设在动线尽头,阳台兼做洗晒空间,主仆动线略有交叉,但整体瑕不掩瑜。
 
 
越秀苏河·和樾府售楼处电话:400-8678-334☎项目188㎡中间户户型:
该户型为飞机户型,南北通透,四面宽朝南,采光通风较好。电梯配置双侧贯通门,相当于独享前室空间,私密性较高。独立玄关入户,横厅配置外加全明餐厅,中西厨齐备,双卫全明,南侧大面宽观景阳台,加强社交属性。
户型亮点:客厅自带书房办公区,面宽略大于边套户型;主卧为豪华套配置,拥有步入式衣帽间和四件套独立卫生间;其中一间南次卧也为套房形式,满足全龄段居住需求;全飘窗设计带来更多使用空间。
缺点是,主卧和次卧内凹,导致采光可能不如边套户型。
装标方面,厨房采用Miele或者Gaggenau,冰箱也基本确定为Gaggenau。
板块信息
全球宜居水岸生活的典范示范区
越秀苏河·和樾府售楼处电话:400-8678-334☎面向2035全球卓越城市,上海致力于将“一江一河”打造成具有全球影响力的世界级滨水区,其中,苏州河定位为全球宜居水岸生活的典范示范,总投资约400亿。世界级城市都有自己的母亲河,如果用一条河代表上海,那一定是苏州河。
 
国际水岸生活主场,苏河臻稀资源带 河景带 一线苏河
本案立于苏河源点板块,苏州河沿岸稀缺的可开发区域,旨在营造世界级滨水区典范人居生活。生态带 中央公园
 
百万方公园环抱,本案毗邻的半马苏河公园,是苏州河沿线面积最大、腹地最深的滨水生态空间。
半马苏河一期(在建中,约9万方)
 
半马苏河二期(约4万方)
半马苏河一号公园+二号公园+三号公园+云岭公园(共约35万方)
长风公园(约36万方)
苏河源公园(在建中,约21万方)
临空音乐公园(约10万方)
圈层带 滨河住区
本案约4公里内高端居住区林立,包括半马苏河生态住区、西郊别墅区、古北国际社区。生活带 便捷配套
 
 
交通
中环路(直线距离约600m)
北横通道(直线距离约1400m)
13号线真北路地铁站(直线距离约1300m)
2号线北新泾地铁站(直线距离约1000m)
 
教育
上河湾幼儿园(直线距离约200m)
长风二幼(上河湾分园,直线距离约320m)
曹杨实验小学(直线距离约3000m)
长征中心小学(直线距离约1500m)
上海市新普陀小学(直线距离约2400m)
华师大二附中普陀校区(项目北侧,建设中)
(期房具体入学信息以教育局公布为准,开发商不做承诺)
医疗
上海市儿童医院泸定路分院(直线距离约1600m)
普陀区妇幼保健院(直线距离约1500km)
上海市同仁医院(直线距离约1400km)
上海和睦家长宁院区(直线距离约2000m)
商业带 鼎萃商圈118广场(直线距离约1100m)
 
近铁城市广场(直线距离约1400m)
长宁ArtPark大融城(直线距离约1200m)
百联西郊购物中心(直线距离约1800m)
长风大悦城(直线距离约2500m)
百联中环购物广场(直线距离约2500m)
上海荟聚(直线距离约2000m)
 
综合来看,该项目区位优势比较明显,中外环间,可快速直达市区、虹桥商务区等和核心板块;项目的开发建设也做出了比较明确的细节化要求,预计会有一个非常不错的社区品质,但项目缺点是距离地铁站较远,在价格上也没有很明显的优势;关于不确定的华二,目前只能说先保持关注,待项目销售阶段,看是否会有进一步的消息,如果未来有机会对口,将会是一大利好!
下周开启接待!中环旁 一线苏河·半马苏河艺境·低密原石著作!越秀苏河·和樾府售楼处电话:400-8678-334☎ 产品信息全新披露!推99-188㎡3-4房!
上海普陀「越秀苏河·和樾府」
售楼处电话:400-8678-334【预约热线】☎
✅温馨提示:目前仅接待预约客户,为了节省您的宝贵时间,看房请拨打400电话与销售提前预约,避免空跑✅
声明:本文由入驻焦点开放平台的作者撰写,除焦点官方账号外,观点仅代表作者本人,不代表焦点立场。
 
  
  
 
 
  
  
  
   
   
   
   
  