华发仁恒苏河世纪(售楼处) 首页 - 仁恒苏河世纪销售中心 - 环境 - 户型 - 价格 - 地址 - 楼盘详情 - 配套 - 电话 - 交房时间 - 配套 - 电话 - 楼盘欢迎您
扫描到手机,新闻随时看
扫一扫,用手机看文章
更加方便分享给朋友



静安·苏河湾👉华发仁恒·苏河世纪
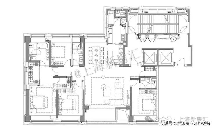
户型:(精装修)498㎡平层4房/480㎡顶复4房
均价:14.1万-15.3万/㎡
总价:7038万-7365万
体量:6套(4套平层/2套顶复)
交付时间:现房 (客户需验资验资3000万)

项目地处静安区苏河湾板块,曲阜西路与晋元路交汇处,南接苏州河,东邻爱国主义教育基地四行仓库。项目属于内环内核心区域,与南京东路及人广商圈直线距离约900米,8/12号线曲阜路地铁站距项目直线距离仅约200米,一公里内汇聚城市生活精萃。


项目占地约2.8万方,集品质住宅、精品商业、文化办公为一体的高端综合体,整体分为南北两个地块,北侧为纯住宅社区,南侧为商办综合体。



推 广 名:苏河世纪;备案名:晋元华庭
区位板块:静安区苏河湾
开 发 商:华发+仁恒集团
占地面积:2.8万方
主力户型:建筑面积约245㎡-480㎡高层作品
目前在售:480㎡(复式)-498㎡(大平层)
在售总价:7038万-7365万 直接定
建筑面积:住宅部分约4.2万方,商业、文化及办公部分约3.6万方。
住宅产品:3号楼,1幢19层公寓
保 障 房:1幢9层公寓
总 户 数:392套
交付标准:精装
绿 地 率:35%
容 积 率:3.0
车位配比:约1:1.2
物 业 费:12.8元/平米(保障房物业一样)
开 发 商:上海晋镧房地产开发有限公司



1993年,仁恒置地进驻上海,31年来共情国际上海,用土地与建筑成就了一系列具有仁恒特色的精装国际社区营造体系,在业内已成为高品质的象征,以六代匠心产品系持续领跑国内的高端地产市场。

建筑立面
现代建筑的先锋美学,局部以铝板和玻璃幕墙打造IMAX级别天幕,彰显高端现代简约风,超大窗墙比赋予建筑独特的城市气质,实现空间视野与采光的心仪之选。
静安内环核心 远瞻烫金热土
项目地处静安苏河湾核心区位,南侧即为苏州河,属于上海中心板块,新静安“一轴三带”战略中的重要一环,更有国家级战略规划加持。资料来源于:《苏州河沿岸地区建设规划(2018—2035)》


苏州河畔CAZ 世界级宜居水岸
苏州河沿岸定位为特大城市宜居生活的典型示范区,享有比肩世界的滨水区文化水岸。约6.3公里滨河步道,约21万方滨河开放空间,全球卓越河岸中央活动区。资料来源于:《苏州河沿岸地区建设规划(2018—2035)》

一线滨水景观
项目毗邻苏州河畔,局部以铝板和玻璃幕墙打造IMAX级别天幕,以现代简约风、超大窗墙比赋予建筑独特的城市气质,实现空间视野与采光的优选。可享头排无遮挡直面水岸公园,饱览无敌河景与城心的华丽天际线。
华发-品质中国 匠心筑家
华发股份,《财富》“中国500强”企业。2014年,华发股份首入上海,10年来上海公司打造了华发华润·静安府、华发四季、华发公馆等23座标杆力作。其中华发华润·静安府,连续两年单盘销售破百亿,上海排名第一( 排名来源于:2018年1-12月中国典型房企但项目销售金额TOP100)。华发开发楼盘多次获得国家级房地产奖项——“广厦奖”。且陆续获得詹天佑奖优秀住宅小区金奖、金牌奖等国内国际重量级奖项。华发作为国企担当,始终坚持品质中国、匠心筑家,不断打磨产品,更新升级华发优+产品体系。



集萃都心万象 优质资源环伺
商业资源:近在咫尺的市区成熟生活配套,约百万方摩登商业环伺。大悦城、人民广场、南京东路商圈均在直线距离一公里范围内。


苏州河实景图




大师级规划
项目的商业部分由美国的SOM建筑设计事务所(曾设计金茂大厦、迪拜塔等世界级知名建筑)操刀,将打造成为苏州河城市活力地标,未来串联起苏河两岸文化与商业节点,成为与南京路、淮海路平行的又一条重要的城市中轴,有利于提升苏河湾的整体形象和气质,展示出苏州河独有的水道魅力。



༺ 华发仁恒苏河世纪 ༻
热热热 火火火 上车正当时!
静安内环苏州河板块
建面约480-498㎡大平层&复式
仅剩6套房源 精装交付
总价7000万-7360万
(需验资验资3000万,基金,股票均可)
华发仁恒苏河世纪售楼处电话:4 00-8874-108✔【已认证】⭐⭐⭐⭐⭐
华发仁恒苏河世纪营销中心电话:400-88 74-108✔✔【已认证】⭐⭐⭐⭐⭐
上海华发仁恒苏河世纪官方售楼处电话:400-8874-10 8 VIPLINE✔✔✔【已认证】⭐⭐⭐⭐⭐
如有问题可来电咨询,线上售楼中心,预约销售专员,一对一为您服务!
想了解华发仁恒苏河世纪更多信息?拨打售楼处营销中心热线:400-8874-108 (中介勿扰)【24小时热线】
楼盘项目全面介绍,本电话为开发商提供线上预约售楼电话,楼盘项目全面介绍(包含楼盘简介,均价,房价,现房,期房,别墅,叠墅,大平层,价格,楼盘地址,户型图,交通规划,备案价,备案名,项目配套,样板间,开盘时间,认筹时间,楼盘详情,售楼处电话,最新消息,最新详情,周边配套,一房一价,最新进展等详情咨询)楼盘详情丨价格丨更多优惠丨机不可失丨欢迎致电丨诚邀品鉴!售楼处位置丨特价房丨工抵房丨剩余房源丨户型图丨最新消息丨免责声明:将文章内容综合来源于网络、只作分享,版权归原作者所有!!如有侵权,请联系我们,我们第一时间处理如有问题欢迎来电咨询,专业一对一热情服务,让您用专业眼光去买房.如果您想了解更多楼盘详情,欢迎提前预约拨打
2025年前三季度,房企融资仍然呈现收缩态势。其中第三季度融资1145亿,环比上升5%,但同比下降35%。
可见,自2024年房企融资支持政策虽然边际改善,各地更是推广融资协调机制“白名单”,但非银融资规模仍未改变下滑趋势。
2021年至今房地产行业已进入调整期的第四年,截至2025年三季度已有不少房企已完成了全部的债务重组。
据CRIC统计,累计来看,当前共计11家房企实现了境内或境外部分的债务重组。
在过去一年里,中央政府提出促进房地产市场止跌回稳的目标,企业主体能够正常运作是房地产止跌回稳的一个重要标志。
CRIC统计数据显示,2025年前三季度,融资规模达3072亿,同比下降30%。其中第三季度融资1145亿,环比上升5%,但同比下降35%,处于历史低位。多数民营房企,尤其是出险房企,融资难的问题依然突出。
从企业的债券类融资成本来看,2025年前三季度的境外债券融资成本为8.95%。而境内债券融资成本进一步下降至2.57%,较2024年全年继续下降了0.34个百分点。境内债券融资成本不断下降,一方面是由于自2024年货币环境开始宽松,LPR持续下调;另一方面,发债主体大多数为国企央企及优质民企,这类企业融资优势较为明显,如发债较多的招商蛇口、中交地产、美的置业等等。2025年前三季度,整体新增债券类融资成本为3%。
从企业的性质分类来看,2025年前三季度国企、央企的发债量为1313亿元,同比下降了8%。而民营企业的发债量为134亿,同比下降13%;此外混合所有制企业发债量106亿,同比增长22%。需注意的是,2025年前三季度国企央企的发债量占比达85%。
从成本上来看,国企、央企2025年前三季度的融资成本为2.58%,而民营企业则为5.40%,两者之间的差距再次扩大到2.82个百分点;此外混合所有制房企的融资成本下降至3.90%。在当前融资环境下,有充足抵押物及其他增信措施的优质房企更能够在政策扶持中受益,同时也能够获取更多的低息借款。
从2021年恒大正式暴雷到2025年,房地产行业已进入调整期的第四年,截至2025年三季度也有不少房企已完成了全部的债务重组。从境内破产的法律程序来看,华晨地产、协信远创、金科股份、新华联已陆续完成了破产重整,而港股房企福晟国际也于2023年以股本重组及定增的代价实现了债务重组。
在债务重组方面,旭辉集团已经实现了境内外债务的整体重组;龙光集团与融创集团的境内债均重组成功,境外债重组方案已得到大多数债权人支持,其中融创将于10月14日举行境外债务重组计划会议,而龙光已于9月10日与债权人小组订立修订协议。以此来看,当前完成破产重整或股本重组的房企共计5家,境内外整体债务实现重组或接近成功的房企共计3家。
除此之外,世茂集团、佳兆业、中梁控股、金轮天地控股、中国奥园、时代中国控股、远洋集团以及禹洲集团共计8家企业的境外债重组成功,荣盛发展及绿地控股也分别对境外债展期。此外,花样年也于2023年完成了境内债的重组。累计来看,共计11家房企实现了境内或境外部分的债务重组。
事实上,债务重组成功并不意味着企业恢复正常经营轨道。以近期刚完成境内外债务重组的旭辉为例,2025年8月,旭辉董事局主席林中对外表示,旭辉控股距离真正“站起来”,可能还需要三年时间,从低谷再出发,公司要进行二次创业,更明确提出将不会再重蹈“高杠杆、高负债、高周转”的覆辙,而要走一条“轻资产、低负债、高质量”的新路径。此前,林中曾提及,未来旭辉控股聚焦三大核心业务板块:一是稳定的收租业务,也就是旭辉持有的上海、北京等一二线城市优质商业资产组合;二是高度聚焦的开发业务,收缩深耕少数核心城市;三是房地产资管业务,学习美式开发商经验,向铁狮门、黑石方向发展。
从债务到期来看,2024年房企债券到期规模达4829亿,而发行规模仅有2209亿,房企无法通过借新还旧覆盖到期债务。此外由于近年来不少房企选择将债务展期或置换,在此背景下2025年房企的债务压力较大,2025年债务到期规模甚至要高于2024年,达5342亿元;其中2025年第三季度是偿债高峰,到期规模约1600亿元。由于近年来,房企债券发行规模下滑明显,2026年房企整体的债务到期规模也明显下降,其中2026年一季度到期约1298亿,三季度到期1170亿。
值得注意的是,近年来公募REITs在我国大力推行,有助于帮助房企将原本沉淀在自持物业中的资金释放出来,用于偿还债务、补充流动资金等。目前不少房企已经试水公募REITs或积极筹备发行。从中期业绩会及财务年报中的表态来看,华润置地、招商蛇口以及新城控股等均有明确表示未来要扩大REITs规模。
当前房地产行业仍处于深度调整期,以往传统的“重资产”模式已难以适应当前的新形势,而公募REITs的出现能够帮助房企从开发商向运营商的角色转变,通过打造“投融管退”的全链条业务模式,帮助房企由“重”向“轻”的资产结构转变。
除此之外,对于开发业务而言,出险房企的首要任务仍是与金融机构和债权人积极协商,适当延长债务期限,缓解当前的债务压力。未出险房企,需要对企业的土地储备进行结构性调整,尤其是加快滞重库存的去化,加快低量级城市项目去化。
声明:本文由入驻焦点开放平台的作者撰写,除焦点官方账号外,观点仅代表作者本人,不代表焦点立场。
