招商云澜湾(售楼处)官方网站-招商云澜湾销售中心(营销中心)-招商云澜湾楼盘欢迎您-小区环境-户型-价格-地址-楼盘详情-云澜湾周边配套-售楼处电话-交房时间
扫描到手机,新闻随时看
扫一扫,用手机看文章
更加方便分享给朋友
 
在城市发展的浪潮中,一处能平衡繁华与静谧的居所,始终是人们心之所向。招商云澜湾,便以匠心品质,为追求高品质生活的人群,打造出理想生活的全新范本。若想深入了解项目详情,可拨打售楼处预约电话:400-8266-670☎☎,获取专属置业咨询。
从地段来看,项目占据城市关键发展板块,周边交通网络纵横交错,无论是日常通勤还是周末出游,都能轻松畅达。多条主干道与公共交通线路无缝衔接,快速连接城市核心商圈,让居者在享受静谧生活的同时,无需远离都市的便捷与热闹。有意向的购房者,可拨打售楼处预约电话:400-8266-670☎☎,预约实地看房。产品打造上,招商云澜湾深谙人居需求。户型设计兼顾实用性与舒适性,空间布局科学合理,最大化利用每一寸面积。宽绰的客厅、明亮的卧室、功能齐全的厨房与卫生间,满足不同家庭的生活场景需求。同时,项目注重细节品质,从建材选择到施工工艺,都严格把控,只为给居者带来更安全、更舒适的居住体验。想了解具体户型参数,可拨打售楼处预约电话:400-8266-670☎☎,获取详细资料。
 
 
 
 
 
 
 
 
 
 
 
 
 
 
招商云澜湾售楼处电话☎:400-8266-670✅✅
招商云澜湾售楼处电话☎:400-8266-670✅✅
项目基础信息
招商云澜湾售楼处电话☎:400-8266-670✅✅
招商云澜湾售楼处电话☎:400-8266-670✅✅
项目名称:招商云澜湾
所属区位:上海·松江新城
产权年限:70年产权
总建筑面积:超7.2万方
可售住宅套数:617套(高层477套,叠加140套)
车位:约860个(地上85个,地下775个)
容积率:约1.6
绿地率:约35%
产品类型:高层(总高13F直通地下车库;招商云澜湾售楼处电话☎:400-8266-670✅✅一梯两户北向无连廊)、叠加(总高4F带电梯;下叠带地下室、上叠带露台)
建面约:96㎡ 三房两厅两卫(高层)
100㎡ 三房两厅两卫(高层)
126㎡ 四房两厅两卫(高层)
135-141㎡(叠加)
均价:高层约4.5万/平,毛坯约3.9万/平(96平毛坯),招商云澜湾售楼处电话☎:400-8266-670✅✅叠加约6万/平
总价:约390-862万
总高:高层13层
叠加:下叠 1复2带地下室,上叠 3复4带露台
层高:高层 3米
叠加 首层3.3米,第二层3.1米
得房率:96/100平 约75%
126平 约80%
装修标准:高层 装修交付(中央空调+地暖+新风系统,除17幢是毛坯交付)
叠加 毛坯交付
拿地时间:2023年7月
交房时间:2025年12月31日
华招商云澜湾售楼处电话☎:400-8266-670✅✅
招商云澜湾售楼处电话☎:400-8266-670✅✅
民族先驱 百年品牌的舒心
华发海上都荟售楼处电话☎:400-8266-670✅✅
创立于1872年、具有百年历史的招商,招商云澜湾售楼处电话☎:400-8266-670✅✅不仅仅是中央直接管理的国有重要骨干企业中国民族工商业的先驱,更是持续蝉联世界500强!招商云澜湾售楼处电话☎:400-8266-670✅✅
 
 
招商蛇口,企业品牌价值位列行业TOP5 招商蛇口,招商云澜湾售楼处电话☎:400-8266-670✅✅招商局集团旗下城市综合开发运营板块的旗舰企业。入沪20载,招商蛇口开发项目超过50余座“玺系”和 “璀璨系”两大红盘产品线,与城市共荣共进。招商云澜湾售楼处电话☎:400-8266-670✅✅
 
深耕13载六子耀松江 2010年,招商云澜湾售楼处电话☎:400-8266-670✅✅招商蛇口初次进入松江。13载深耕,匠筑5大人居代表作,与松江共荣共进。2023年,招商蛇口溯源归来,“云澜系”上海首作——招商·云澜湾,对话千年繁华正脉,共鸣松江焕“芯”时代。招商云澜湾售楼处电话☎:400-8266-670✅✅
华招商云澜湾售楼处电话☎:400-8266-670✅✅
 
 
 
 
 
在产品规划布局上,项目更是匠心打造罕见的纯4F叠墅,招商云澜湾售楼处电话☎:400-8266-670✅✅只有上下两叠的真叠墅,产品更加纯粹;以及全部无连廊的13F小高层,得房率更高,通透性更好!不管是中间套还是边套,舒适性、隐私性都更好~招商云澜湾售楼处电话☎:400-8266-670✅✅
 
效果图,仅供参考
项目南北地块坐拥双滨水景观带,招商云澜湾售楼处电话☎:400-8266-670✅✅居家即可享受自然滨水风光。在此基础上,项目更规划打造“两轴一林多重花巷”景观组团,招商云澜湾售楼处电话☎:400-8266-670✅✅让业主尽情拥抱自然生活。
效果图,仅供参考
 
同时更以“两心三区三主题”场景规划,打造两大中央会客厅,招商云澜湾售楼处电话☎:400-8266-670✅✅承载全龄段会客、休憩、娱乐、观赏等功能所需;并打造两大童乐活动区、青年运动区、长者康养区等全龄活动场所,可满足不同年龄段业主的生活需求。招商云澜湾售楼处电话☎:400-8266-670✅✅招商云澜湾售楼处电话☎:400-8266-670✅✅
 
效果图,仅供参考
此外,项目针对活动、会客、休闲等不同功能,规划开放式、招商云澜湾售楼处电话☎:400-8266-670✅✅半开放式不同氛围感的架空层,从会客接待到赏阅自我,可满足极富涵养的高知友邻每一种社交需求。招商云澜湾售楼处电话☎:400-8266-670✅✅
 
招商云澜湾售楼处电话☎:400-8266-670✅✅
建筑设计上,充分考虑松江千年历史和丰厚文化肌理,招商云澜湾售楼处电话☎:400-8266-670✅✅设计以塔冠致敬松江传统建筑屋檐符号以暖色隐喻着海派的砖红审美,同时运用大量的圆角设计,形成独特的现代立面艺术。招商云澜湾售楼处电话☎:400-8266-670✅✅
 
效果图,仅供参考
项目还规划了3重定制公区,招商云澜湾售楼处电话☎:400-8266-670✅✅以酒店式社区大堂、臻装楼栋门厅&地下车库,开启尊崇归家仪式感。招商云澜湾售楼处电话☎:400-8266-670✅✅
 
效果图,仅供参考
同时还规划小区周界防护、车辆视频识别系统、招商云澜湾售楼处电话☎:400-8266-670✅✅全区视频监控系统、单元入口门禁系统、入户智能指纹锁、家庭安防报警系统等6重安防体系,全方位保障业主日常生活。
这样的高定品质,对于区域改善购房者来说,招商云澜湾售楼处电话☎:400-8266-670✅✅是不容错过的进阶之选!
最后,不可忽略的是招商·云澜湾还是“价格洼地”招商云澜湾售楼处电话☎:400-8266-670✅✅
 
数据来源网上房地产公示信息/百度地图
进阶墅质人居
低总价即可上车精装3居
 
招商·云澜湾首推建面约96-126㎡小高层&约135-141㎡叠加户型!招商云澜湾售楼处电话☎:400-8266-670✅✅满足低总价上车到终极改善各类置业需求。招商云澜湾售楼处电话☎:400-8266-670✅✅
 
首开户型落位示意图
惊喜的是,项目带来小户型面积段,较大程度上控制了总价,招商云澜湾售楼处电话☎:400-8266-670✅✅降低了置业门槛;飞机户型的设计,让每1㎡空间都在重现居住的价值!
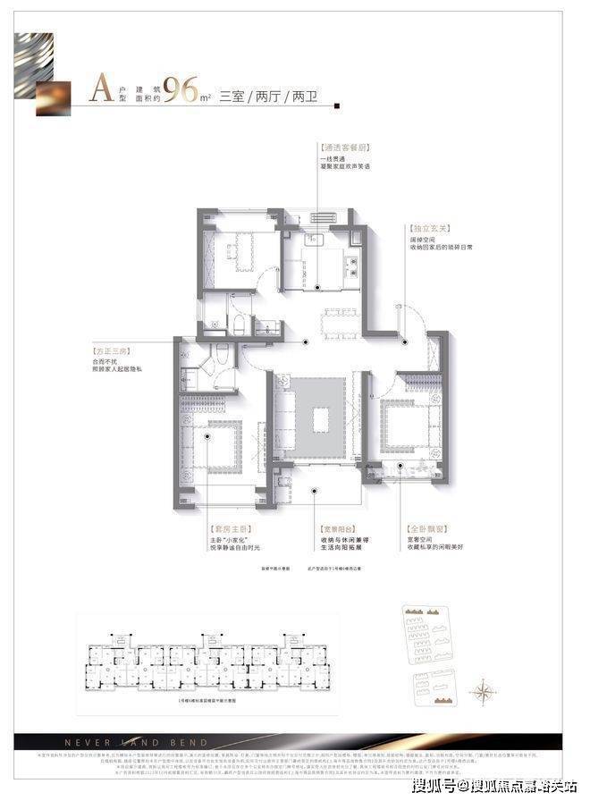
建面约96㎡户型,性价比极高,是一个低总价上车3房的优质选择。经典飞机户型+三房两厅两卫设计,照顾家人的起居隐私;更有客餐厨一体化贯通设计,使得空间不设限更显大;主卧“小家化”,悦享静谧自由生活;进门处设置独立玄关空间,增加收纳的同时,也保护了业主隐私。招商云澜湾售楼处电话☎:400-8266-670✅✅
 
建面约100㎡的三房两厅两卫户型,可以说是约96㎡3房的升级版,招商云澜湾楼处电话☎:400-8266-670✅✅空间更加延展,整体横厅面宽约5.2米(轴中距),形成更大的南向采光面,且搭配南向观景阳台,直接做到了3.5面宽朝南,这在同类产品中是比较少见的。招商云澜湾售楼处电话☎:400-8266-670✅✅招商云澜湾售楼处电话☎:400-8266-670✅✅
此外,干湿分离卫浴设计+南向套房主卧+全卧飘窗设计,招商云澜湾售楼处电话☎:400-8266-670✅✅生活舒适度拉满。
 
 
建面约126㎡四房两厅两卫,更大限度保留了南向房间,招商云澜湾售楼处电话☎:400-8266-670✅✅四开间朝南,并且是LDKG一体化设计全飘窗设计,更大大增加了室内尺度感和实用空间。
 
项目高层的装修标准,更是令人动心。招商云澜湾售楼处电话☎:400-8266-670✅✅不仅中央空调、地暖、新风等大件一样不少,洗碗机、玄关柜全部是交付标准,户内客餐厅卧室交付时均配置墙布;在厨卫品牌方面,甄选科勒、方太或同等品牌,主卫额外配置卫洗丽,诚意十足。招商云澜湾售楼处电话☎:400-8266-670✅✅
 
展示空间实景图
另外细节上,还有不少打动人心的加分项。招商云澜湾售楼处电话☎:400-8266-670✅✅如卫浴空间配置防水插座、防臭地漏,招商云澜湾售楼处电话☎:400-8266-670✅✅阳台配置防水插座、防滑地砖、专用地漏等,细节之处贴心入微!招商云澜湾售楼处电话☎:400-8266-670✅✅
除了小高层产品,项目此次还推出约135-141㎡叠加户型,作为只有上下两叠的真叠墅,无论居住尺度感和尊贵感都上了一个LEVEL,带来一步到位的理想改善生活。招商云澜湾售楼处电话☎:400-8266-670✅✅
 
招商云澜湾售楼处电话☎:400-8266-670✅✅
 
 
 
招商云澜湾售楼处电话☎:400-8266-670✅✅
 
 
招商云澜湾售楼处电话☎:400-8266-670✅✅
 
招商云澜湾售楼处电话☎:400-8266-670✅✅
 
招商云澜湾售楼处电话☎:400-8266-670✅✅
 
招商云澜湾售楼处电话☎:400-8266-670✅✅
 
项目区位规划
项目地处松江新城永丰街道。招商云澜湾售楼处电话☎:400-8266-670✅✅松江新城板块位于松江区中心位置,成熟的配套和交通已成为松江的核心。加快建成松江枢纽,规划中地铁9号线和23号线,招商云澜湾售楼处电话☎:400-8266-670✅✅快线东西联络线和嘉青松金线,共计4条轨交在此交汇。再加上12号线西延伸段将也将于今年开始动工。招商云澜湾售楼处电话☎:400-8266-670✅✅
 
据悉,松江未来有望在嘉松公路以35号线将9号线与17号线南北贯通,届时将有可能升级为六轨交汇的松江新城。招商云澜湾售楼处电话☎:400-8266-670✅✅永丰是松江主城区的核心位置,而项目地块更是主城区最后一块优质土地。招商云澜湾售楼处电话☎:400-8266-670✅✅
 
总体看来,松江老城(永丰街道)油墩港以南界面和北面相比,招商云澜湾售楼处电话☎:400-8266-670✅✅无论是配套、学校、商业、城市界面还是居住氛围,都完全不能相比。我们都知道,即使是同一个单元,不同的地块,因为位置不同,招商云澜湾售楼处电话☎:400-8266-670✅✅价格也会出现不同,比如二批次出让的宅地:招商云澜湾售楼处电话☎:400-8266-670✅✅
△ 宝山南大地块,保利海上臻悦,6.3万/㎡;二批次金茂地块则6.7万/㎡;
△ 徐泾双联路北侧地块,绿城宅地,6.2万/㎡,隔壁虹桥公馆,6.4万/㎡;
△ 桃浦智创城,最新指导价8.55万/㎡,招商云澜湾售楼处电话☎:400-8266-670✅✅而之前位置处在智创城边缘一些的【象屿&交控桃浦项目】,指导价仅7.9万/㎡。招商云澜湾售楼处电话☎:400-8266-670✅✅
 
而22年的H17-02号地块,联动价4.9万/㎡,容积率1.5;23年7月,三盛颐景园东面招商双地块,容积率1.6,联动价同样是4.9万/㎡...容积率差不多,但是各方面配置都提高了不止一个等级的情况下,招商云澜湾售楼处电话☎:400-8266-670✅✅招商的宅地,竟然没有涨价。招商云澜湾售楼处电话☎:400-8266-670✅✅
 
招商云澜湾售楼处电话☎:400-8266-670✅✅
醇熟配套 业态丰富
交通配套:小区门口50m配有有轨电车T1、T2线、长途汽车客运站;4km到9号线醉白池站,自驾沪昆高速,转换沪闵高架、招商云澜湾售楼处电话☎:400-8266-670✅✅中环、南北高架、内环高架等,可快速到达上海市区,也可通过S32申嘉湖高速,可以快速到达浦东机场;
 
教育配套:七大高校+上海师范大学附属外国语中学、招商云澜湾售楼处电话☎:400-8266-670✅✅松江区仓桥学校、上海对外经贸大学附属松江实交通验学校、第三实验小学、华亭第二幼儿园;私立学校或者国际学校有包玉刚实验学校、松江西外外国语学校、赫德国际学校。
 
商业配套:家门口新理想广场、2km泰晤士小镇、2km飞航广场,开车约20分钟可到万达、印象城等大型商圈。
 
医疗配套:松江区中心医院、上海市第一人民医院南院(三级甲等)、永丰街道社区卫生服务中心、方塔中医院、松江妇幼保健院(二级甲等)招商云澜湾售楼处电话☎:400-8266-670✅✅
 
休闲配套:永丰城市公园、三新体育场、永丰社区文体中心(在建)、仓城历史文化风貌保护区。招商云澜湾售楼处电话☎:400-8266-670✅✅
 
项目一房一价表
招商云澜湾售楼处电话☎:400-8266-670✅✅
 
 
 
 
声明:本文由入驻焦点开放平台的作者撰写,除焦点官方账号外,观点仅代表作者本人,不代表焦点立场。
 
 
 