滨江8号(良丰大厦)售楼处电话:400-8874-108✔【已认证】⭐⭐⭐⭐⭐
滨江8号(良丰大厦)营销中心电话:400-8874-108✔✔【已认证】⭐⭐⭐⭐⭐
上海滨江8号(良丰大厦)官方售楼处电话:400-8874-108 VIPLINE✔✔✔【已认证】⭐⭐⭐⭐⭐
——滨江8号(良丰大厦)——
滨江8号(良丰大厦)售楼处电话:400-8874-108✔【最新预约】⭐⭐⭐⭐⭐
滨江8号(良丰大厦)营销中心电话:400-8874-108✔✔【最新认证】⭐⭐⭐⭐⭐
上海滨江8号(良丰大厦)官方售楼处电话:400-8874-108 VIPLINE✔✔✔【最新发布】⭐⭐⭐⭐⭐
如有问题可来电咨询,线上售楼中心,预约销售专员,一对一为您服务!
想了解滨江8号(良丰大厦)更多信息?拨打售楼处营销中心热线:400-8874-108 (中介勿扰)【24小时热线】꧁༺ 良丰大厦 ༻꧂
热热热 火火火 上车正当时!
陆家嘴核心CBD
双轨交地铁口约200米
与汤臣一品/九庐为邻


建面约87~121㎡精装公寓
总价约:568万~778万
不限购低总价 线上预约


良丰大厦 陆家嘴一线江景 建面87-121㎡精装!总价约568万起!双轨交地铁口约200米 附线上预约通道
项目参数
陆家嘴滨江.8号物业类型商办所属板块陆家嘴建筑面积87-126㎡可售套数10套总价568-778万均价6万/平总高29层高3米拿地时间1992建成时间1995车位配比1:0.5车位租金750元/月定金金额50万交付标准精装交房时间2024.6.30装修标准5000元/平物业公司上海良盛丰有限公司物业费7.87元/月/平得房率75%产权年限50年水费6元电费1.1元梯户比4梯8户付款方式首付8成



上海发展的重中之重是一江一河区域,即黄浦江两岸与苏州河区域,滨江8号(良丰大厦)位于陆家嘴核心区的一线江景,是上海的黄金地段,这种地段的房子是卖一套少一套,您想错过吗?


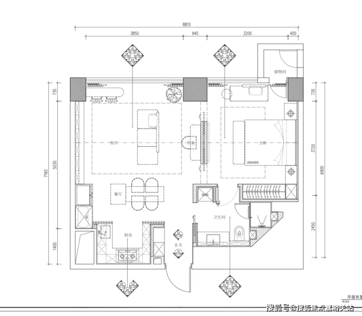
户型图/样板房照片








项目周边配套
项目地处上海陆家嘴金融贸易区,近江约100米。陆家嘴被誉为中国的华尔街,更是上海的金融中心、经济中心和贸易中心,是全球金融中心,陆家嘴金融城,与纽约华尔街、伦敦金融城并称为世界三大金融中心,陆家嘴滨江,也成为并肩纽约中央公园、伦敦海德公园的顶级资本豪宅区,成为世界豪宅的中国封面。

陆家嘴汇聚上海中心大厦、上海环球金融中心、金茂大厦和东方明珠四大地标建筑,260多幢商务办公楼宇、140多家跨国公司地区总部、340家全球500强企业、3000多家国内外专业服务机构、6000多家中外金融机构林立于此。
作为陆家嘴稀有的塔尖公馆,地段资源不可再生,黄浦江一线景观不可复制。俯瞰黄浦江的壮阔风景线,占据黄浦江21公里“黄金岸线”的黄金视角,与滨江公园咫尺距离,直赏上海中心、上海环球金融中心、金茂大厦“陆家嘴三件套”的城市天际线。
交通优势:世界级立体交通 三轨双桥六隧
三轨:
4、14号线浦东大道站仅约200米
贯通浦西浦东核心商圈:豫园、新天地、静安寺
4号线被称为内环换乘王,
可与1/2/3/6/7/8/9/10/11/12/14 号线换乘
19号线(在建)浦东南路站约500米
双桥:
杨浦大桥-约3公里
南浦大桥-约4.3公里
六隧:
大连路隧道-约1.1公里
人民路隧道-约1.4公里
新建路隧道-约1.1公里
复兴路隧道-约2.3公里
延安东路隧道一约2.6公里
江浦路隧道-约2.1公里
公交:609、610、981、81、85、313、455、522、774、浦东15路、浦东62路等20条线
轮渡:其昌栈渡口、泰东路渡口、东昌路渡口
高铁/机场:虹桥站——约25分钟 浦东机场——约35分钟

商业配套方面:
2KM国际商业圈:IFC国金、上海中心、正大广场、民生路太古里(在建)、浦东八佰伴、尚悦湾广场等国际知名商圈
城市核芯商业圈:新天地约4.8公里、人民广场约6.3公里、五角场约6.5公里、世博园约6.9公里

教育资源方面:冰场幼儿园、梅园小学、昌邑小学、东昌中学、建平中学西校、浦东实验高中、上海纽约大学

医疗资源方面:
上海浦滨儿童医院约200米
东方医院(三甲医院)约800米
上海中医药大学附属中西医结合(三甲医院)约1.7公里
第一人民医院(三级公立眼科第7名)约2.9公里
仁济医院(三甲医院)约4公里
上海儿童医学中心(三甲医院)约4.2公里
上海交通大学附属新华医院约7公里

陆家嘴核心CBD
双轨交地铁口约200米
与汤臣一品/九庐为邻
建面约87~121㎡精装公寓
总价约:568万~778万
不限购低总价 线上预约
滨江8号(良丰大厦)售楼处电话:400-8874-108✔【已认证】⭐⭐⭐⭐⭐
滨江8号(良丰大厦)营销中心电话:400-8874-108✔✔【已认证】⭐⭐⭐⭐⭐
上海滨江8号(良丰大厦)官方售楼处电话:400-8874-108 VIPLINE✔✔✔【已认证】⭐⭐⭐⭐⭐
如有问题可来电咨询,线上售楼中心,预约销售专员,一对一为您服务!
想了解滨江8号(良丰大厦)更多信息?拨打售楼处营销中心热线:400-8874-108 (中介勿扰)【24小时热线】
楼盘项目全面介绍,本电话为开发商提供线上预约售楼电话,楼盘项目全面介绍(包含楼盘简介,均价,房价,现房,期房,别墅,叠墅,大平层,价格,楼盘地址,户型图,交通规划,备案价,备案名,项目配套,样板间,开盘时间,认筹时间,楼盘详情,售楼处电话,最新消息,最新详情,周边配套,一房一价,最新进展等详情咨询)楼盘详情丨价格丨更多优惠丨机不可失丨欢迎致电丨诚邀品鉴!售楼处位置丨特价房丨工抵房丨剩余房源丨户型图丨最新消息丨免责声明:将文章内容综合来源于网络、只作分享,版权归原作者所有!!如有侵权,请联系我们,我们第一时间处理如有问题欢迎来电咨询,专业一对一热情服务,让您用专业眼光去买房.如果您想了解更多楼盘详情,欢迎提前预约拨打
克而瑞研究中心近日发布的报告显示,11月30个监测城市成交面积为815万平方米,环比下降16%。前11月累计成交10651万平方米,同比下降12%;30城库存面积为21890万平方米,环比微降1%,同比下降5%。
推盘积极性小幅回升
从供应情况来看,房企推盘积极性小幅回升。
报告显示,11月30个重点城市11月预期新增供应669万平方米,环比增长16%。
其中,一线城市整体预计供应面积149万平方米,环比增长23%。值得注意的是广州,呈现阶段性放量,其单月供应规模达61万平方米,因上月基数较低,环比翻番,同比增幅也达到了4%。
二三线城市方面,得益于西安、苏州、东莞、常州等城市集中放量,11月26个二三线城市合计供应521万平方米,环比增长14%。苏州、东莞、常州等基于上月基数较低,环比翻番,同比仍呈现下降走势;而杭州、西安等热点城市“以销定产”模式下,供应呈现出同环比齐增态势,累计同比降幅持续收窄。
部分城市成交显著回升
新房成交方面持续走稳,徐惠珠等三四线环比显著回升。
根据报告,11月30个监测城市成交面积为815万平方米,前11月累计成交10651万平方米。

一线城市中,仅广州1个城市因供应放量,11月单月成交63万平方米,环比微增2%。北京虽然成交增长动能放缓,但前11月累计同比仍微增1%。
二三线城市方面,同比跌幅低于一线。26个二三线城市合计成交670万平方米,其中成都单月成交规模达73万平方米,西安也维持了单月60万平方米以上高体量,是稳定全国大盘的基石。
环比情况来看,合肥、珠海、惠州环比回升,市场保持止跌走势。徐州逆势高增,同环比涨幅达82%和129%,经历了数月行情低迷,购房需求迎来了一波集中释放。
项目开盘去化率微增
从项目去化率来看,11月市场热度持稳。
根据CRIC监测数据,30个重点城市11月平均开盘去化率为34%,环比微增3pcts。其中,厦门、南宁、长春、无锡、东莞、珠海、徐州等7城2025年11月无项目开盘加推。
分城市来看,去化率超6成城市为天津、苏州和宁波,主要得益于个别网红盘集中入市对去化率拉升作用比较显著。
另外,从变化趋势看,上海、广州、深圳等热点城市去化率稳步修复,环比持增;武汉、郑州、青岛等前期低迷型城市也出现了止跌态势,环比增幅显著。
三成城市去化周期改善
去化周期方面,因新房供应放量而成交持稳回落,因而30城11月整体供求比由上月的0.6增至0.82。
其中,上海、西安、成都和广州等11个城市供求持稳,供求比在0.8-1.2之间;郑州、北京、青岛、南宁、无锡、济南、佛山、珠海、惠州、徐州等10城供求比均在0.5以下。

报告显示,30城库存面积为21890万平方米,环比微降1%,同比下降5%。其中,徐州、惠州等去化周期环比下降,仍在持续改善;从绝对量来看,目前仍有1/3城市消化周期低于18个月。