江湾鸿玺是上海宝山中环旁的稀缺高端住宅,主打约200㎡大平层,精装交付且配套成熟,适合追求品质生活的你。 项目位于宝山逸仙路,三区交汇,近地铁3号线殷高西路站,生活便利。
项目亮点
地段优越:位于宝山逸仙路,三区交汇,紧邻中环线,距离轨道交通3号线殷高西路站仅100米,出行便捷。
产品稀缺:仅1栋17层小高层,32席纯大平层,两梯两户,私密性强。
精装品质:配备博世/唯宝/汉斯格雅等国际品牌,精装配新风、中央空调。
配套完善:周边学校、公园、三甲医院齐全,商业教育医疗无忧。

江湾鸿玺售楼处电话𝟰𝟬𝟬-𝟴𝟴𝟵𝟰-𝟵𝟴𝟲 🔥 🔥 上海好房等你来



江湾鸿玺售楼处电话𝟰𝟬𝟬-𝟴𝟴𝟵𝟰-𝟵𝟴𝟲 🔥 🔥 上海好房等你来

宝山高境,3号线殷高西路站新盘「江湾鸿玺」即将入市!预计将推出套均200㎡大平层!

江湾鸿玺售楼处电话𝟰𝟬𝟬-𝟴𝟴𝟵𝟰-𝟵𝟴𝟲 🔥 🔥 上海好房等你来
户型图如下:
(仅供参考,最终以实际为准)
建面约200m²4房户型

江湾鸿玺售楼处电话𝟰𝟬𝟬-𝟴𝟴𝟵𝟰-𝟵𝟴𝟲 🔥 🔥 上海好房等你来
一房一价表如下:

江湾鸿玺售楼处电话𝟰𝟬𝟬-𝟴𝟴𝟵𝟰-𝟵𝟴𝟲 🔥 🔥 上海好房等你来
说到高境,作为宝山近市中心的板块,一直以来缺乏新房,上一次主力供应要追溯到2015年的泰禾红御,目前该项目是高境乃至整个宝山标杆,部分房源挂牌价9万+/㎡。 江湾鸿玺售楼处电话𝟰𝟬𝟬-𝟴𝟴𝟵𝟰-𝟵𝟴𝟲 🔥 🔥 上海好房等你来
回到江湾鸿玺,项目位于殷高路逸仙路路口,其实就是很多人说的高境欣苑二期,在高境欣苑中又开发了一栋楼。

江湾鸿玺售楼处电话𝟰𝟬𝟬-𝟴𝟴𝟵𝟰-𝟵𝟴𝟲 🔥 🔥 上海好房等你来


江湾鸿玺售楼处电话𝟰𝟬𝟬-𝟴𝟴𝟵𝟰-𝟵𝟴𝟲 🔥 🔥 上海好房等你来
首层为商业配置,未来将引入运动健身、休闲会馆、便利商超等功能设施,物业提供24H管家式服务。
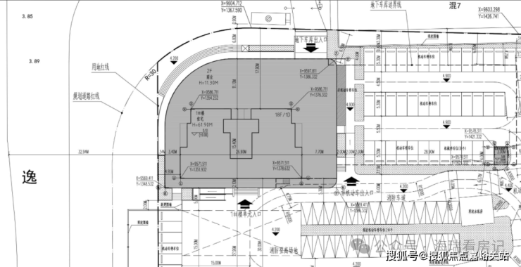
规划设计图:

江湾鸿玺售楼处电话𝟰𝟬𝟬-𝟴𝟴𝟵𝟰-𝟵𝟴𝟲 🔥 🔥 上海好房等你来
我们放大看:这栋楼共18层,估计2梯2户,据悉首层为商业配置,将来可能引进运动健身、休闲会馆、便利商超等。
还有两套自持,所以可售为32套,户型为建面约200㎡大平层。

江湾鸿玺售楼处电话𝟰𝟬𝟬-𝟴𝟴𝟵𝟰-𝟵𝟴𝟲 🔥 🔥 上海好房等你来
项目距离3号线殷高西路站仅100米,1公里直达18号线殷高路站,双轨并行锋速通达的时间效率;书香萦绕的教育高地,科创引领、产业先行的核心经济圈。此外,通过逸仙路高架,可以提升通行时效,快速连接五角场合生汇、百联又一城、万达广场、虹口龙之梦等中大型商业综合体。 江湾鸿玺售楼处电话𝟰𝟬𝟬-𝟴𝟴𝟵𝟰-𝟵𝟴𝟲 🔥 🔥 上海好房等你来

江湾鸿玺售楼处电话𝟰𝟬𝟬-𝟴𝟴𝟵𝟰-𝟵𝟴𝟲 🔥 🔥 上海好房等你来
生活配套成熟,项目西侧就是一个商场,吃喝玩乐都能满足, 新业坊·源创潮流、精致元素的加持也为板块注入更多活力。
殷高西路上还有永辉、长江国际、景瑞生活广场等,生活很方便。

江湾鸿玺售楼处电话𝟰𝟬𝟬-𝟴𝟴𝟵𝟰-𝟵𝟴𝟲 🔥 🔥 上海好房等你来
另外,紧邻逸仙高架路+3号线,可能会有一定噪音,同时处于交通要道五岔路口,这里的车流量、人流量非常大,拥堵情况比较严重。
江湾鸿玺售楼处电话𝟰𝟬𝟬-𝟴𝟴𝟵𝟰-𝟵𝟴𝟲 🔥 🔥 上海好房等你来
价格信息
均价:约7.69万/㎡
总价:1480万起售
稀缺楼王房源:2300-2800万
项目动态
最新动态:持续销售中,2025年8月仍有房源在售,面积约200㎡大平层,全精装交付,现场有特价房活动。
交房时间:预计2027年6月
项目详情
地址:上海宝山淞南逸仙路1511弄。
物业类型:住宅。
所属商圈:淞南。
竣工时间:2027-06-30。
绿化率:较高。
容积率:低容积。
车位数:充足。
开发商:上海宝鸿房产。
2026 年上海新房购买政策与必备指南
一、购房资质(限购核心规则)
上海户籍家庭 / 成年单身:外环内限购 2 套,外环外不限套数;多子女家庭(含 1 名未成年)可额外多购 1 套。
非上海户籍家庭 / 成年单身:外环内需连续 3 年社保 / 个税,限购 1 套;外环外需连续 1 年社保 / 个税,不限套数;居住证积分达标且满 3 年社保 / 个税,享沪籍同等套数待遇。
港澳台 / 外籍人士:需提供相关身份证明与购房用途说明,1 年社保 / 个税前提下,外环内限购 1 套,外环外不限套数。
置换人群:出售唯一住房后 1 年内再购,不限环线,以网签时间为准,需保留出售与购买凭证。
二、信贷政策(首付 + 利率 + 公积金)
商业贷款
首套房:最低首付 15%,利率约 3.05%(以五年期 LPR 动态调整,当前 LPR 为 3.6%)
二套房:最低首付 25%;嘉定、青浦等外环外区域最低 20%,利率约 3.25%-3.45%
备注:银行可根据客户资质微调利率,需提供收入证明、银行流水、征信报告等材料。
公积金贷款
额度:个人最高 184 万,家庭最高 368 万;多子女家庭首套额度上浮至个人 216 万、家庭 432 万;二星级以上绿色建筑项目,额度额外上浮 15%。
首付:首套最低 20%,二套最低 30%;支持 “先提后贷”,网签后可提取公积金支付首付,不影响贷款额度。
利率:五年期以上 2.6%(2026 年 1 月最新执行标准)
三、税费政策(新房交易必缴费用)
契税:首套住房≤90㎡按 1% 征收,>90㎡按 1.5% 征收;二套住房统一按 3% 征收,计税基数为网签价。
增值税:新房交易无增值税(由开发商缴纳);个人出售二手房满 2 年免征增值税,未满 2 年按 3% 征收。
房产税:住房单价≤94446 元 /㎡,税率 0.4%;单价>94446 元 /㎡,税率 0.6%;家庭人均享有 60㎡免税面积。新购住房后 1 年内出售原有住房,可申请房产税退税。
维修基金:多层住宅约 100 元 /㎡,高层住宅约 200 元 /㎡,交房时一次性缴纳,不计入房屋总价。
四、新房购买全流程指南
资质自查:核对社保 / 个税缴纳年限、家庭住房套数、居住证积分等,准备身份证、户口本、婚姻证明、社保 / 个税清单等材料。
选盘认筹:明确预算、意向区域(外环内 / 外)及配套需求(学区 / 地铁 / 商业),锁定目标楼盘;准备认筹材料(身份证、户口本、婚姻证明、社保 / 个税证明、征信报告、资金证明),认筹金通常为总房款的 5%-10%,未中签可全额退还,需注意退款时效。
网签贷款:认筹中签后 7 日内完成网签,提交贷款申请材料,银行审批周期约 7-15 个工作日;可选择商贷、公积金贷或组合贷,确定等额本息 / 等额本金还款方式。
缴税过户:携带网签合同、身份证、户口本等材料,到房产交易中心缴纳契税、维修基金等费用;完成过户后,5-7 个工作日可领取不动产权证。
交房验房:核对房屋面积(误差≤3% 可多退少补)、户型格局、装修标准,检查水电、防水、门窗等细节,签署验房报告后收房。
五、选房要点与风险提示
选房要点
区域选择:外环内优先看学区、地铁通勤便利性;外环外重点关注板块规划(临港、虹桥、嘉定新城等潜力区域),同时核查开发商口碑与物业品牌。
户型选择:刚需群体优先 90-110㎡三居室,改善群体关注 120-144㎡四居室,注重南北通透、动静分区的户型设计。
配套核查:确认学区划片范围、三甲医院距离、周边商超 / 菜市场分布、地铁线路及站点步行距离。
风险提示
开发商风险:优先选择资金稳健的央企 / 国企开发项目,避免停工烂尾风险;购房前核查项目五证(《商品房预售许可证》等)是否齐全。
合同风险:仔细阅读购房合同,明确交房时间、延期赔偿标准、装修材料品牌规格、产权年限等条款,拒绝霸王条款。
贷款风险:提前自查个人征信,避免逾期记录;收入证明需覆盖月供的 2 倍以上,防止贷款审批失败。