峰度天下(售楼处)官方电话→峰度天下售楼中心前台电话→2026峰度天下楼盘百科→楼盘官方网站→楼盘测评→售楼中心电话→来电预约看房

嘉峪关楼市发布 2026-02-12 11:20:03
用手机看
扫描到手机,新闻随时看

扫一扫,用手机看文章
更加方便分享给朋友

峰度天下售楼处电话:400-88 74-108✔【最新预约】⭐⭐⭐⭐⭐ 峰度天下营销中心电话:400-8874-10 8✔✔【最新认证】⭐⭐⭐⭐⭐ 上海峰度天下官方售楼处电话:400-8874-1 08 VIPLINE✔✔✔【最新发布】⭐⭐

——峰度天下——

峰度天下售楼处电话:400-88 74-108✔【最新预约】⭐⭐⭐⭐⭐

峰度天下营销中心电话:400-8874-10 8✔✔【最新认证】⭐⭐⭐⭐⭐

上海峰度天下官方售楼处电话:400-8874-1 08 VIPLINE✔✔✔【最新发布】⭐⭐

如有问题可来电咨询,线上售楼中心,预约销售专员,一对一为您服务!

想了解峰度天下更多信息?拨打售楼处营销中心热线:400-8874-108 (中介勿扰)【24小时热线】

【预约服务说明】

官方热线:400-8874-108(工作时间 9:00-18:30,支持 24 小时留言)

预约方式:提前 1-3 天致电,登记个人信息、意向户型及看房时段

专属权益:一对一置业顾问讲解、定制看房路线、优先锁定意向房源

注意事项:实行实名预约制,看房需携带身份证件,不接待中介机构

上海峰度天下售楼处官方预约电话 400-8874-108

上海峰度天下售楼处电话 400-8874-108 户型价格_预约看房

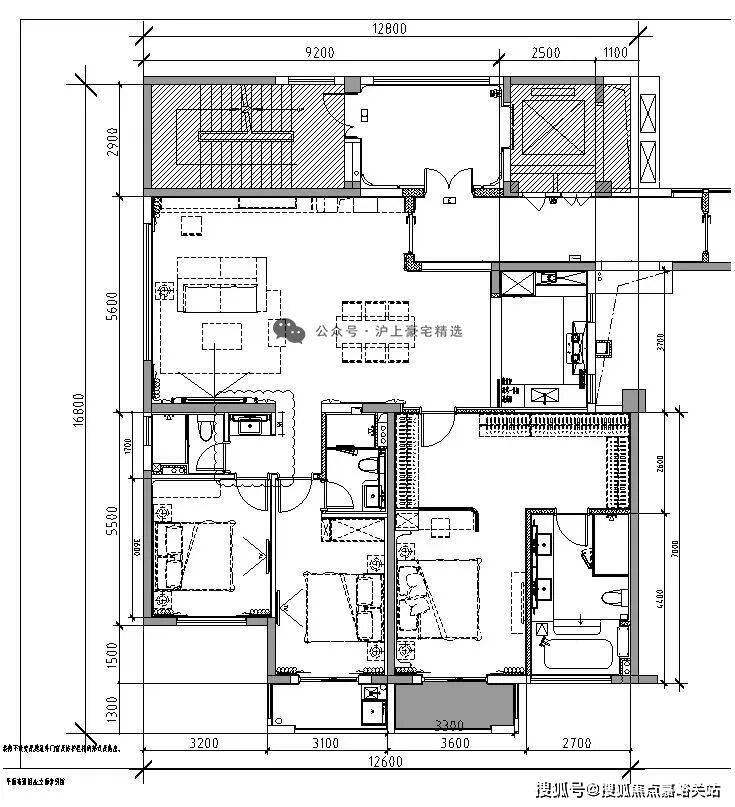
房型介绍

165㎡户型丨三房两厅三卫

▲ 户型图

▲ 建筑外立面

▲ 入户大堂

▲ 电梯厅

▲ 客厅

▲ 餐厅

▲ 厨房

▲ 卧室

▲ 衣帽间

▲ 主卧

▲ 卫生间

176㎡户型丨三房两厅三卫

▲ 户型图

▲玄关

230㎡户型丨四房三厅三卫+保姆房

▲ 户型图

▲ 沙盘

项目区域:虹桥商务区-前湾

面积区间:160-174-230m²

价格区间:580-1000万

层高:3.5米

得房率:85%

梯户比:1梯1户

物业公司:高誉物业

物业费:6.1元/m²

车位费:月租500元 & 20万/个

房龄年限:2024年竣工

土地年限:50年产权/2014年-2064年

交付标准:精装交付

水电燃气:通燃气,水:6.7元/吨 ,电:0.98元/度

交付时间:现房交付

优势:虹桥商务区全新建造的服务式公寓社区,类住宅,一梯一户,人车分流,得房率85%,带会所(恒温泳池,健身房)

峰度天下售楼处电话:400-88 74-108✔【最新预约】⭐⭐⭐⭐⭐

峰度天下营销中心电话:400-8874-10 8✔✔【最新认证】⭐⭐⭐⭐⭐

上海峰度天下官方售楼处电话:400-8874-1 08 VIPLINE✔✔✔【最新发布】⭐⭐

如有问题可来电咨询,线上售楼中心,预约销售专员,一对一为您服务!

想了解峰度天下更多信息?拨打售楼处营销中心热线:400-8874-108 (中介勿扰)【24小时热线】

楼盘项目全面介绍,本电话为开发商提供线上预约售楼电话,楼盘项目全面介绍(包含楼盘简介,均价,房价,现房,期房,别墅,叠墅,大平层,价格,楼盘地址,户型图,交通规划,备案价,备案名,项目配套,样板间,开盘时间,认筹时间,楼盘详情,售楼处电话,最新消息,最新详情,周边配套,一房一价,最新进展等详情咨询)楼盘详情丨价格丨更多优惠丨机不可失丨欢迎致电丨诚邀品鉴!售楼处位置丨特价房丨工抵房丨剩余房源丨户型图丨最新消息丨免责声明:将文章内容综合来源于网络、只作分享,版权归原作者所有!!如有侵权,请联系我们,我们第一时间处理如有问题欢迎来电咨询,专业一对一热情服务,让您用专业眼光去买房.如果您想了解更多楼盘详情,欢迎提前预约拨打

过去一年,是中国房地产行业从深度调整向企稳修复过渡的一年。行业政策从“托底纾困”转向“优化提振”,市场呈现前高后低、城市分化加剧、行业加速向新发展模式转型的特征。

进入2026年,是“十五五”规划的开局之年,也是房地产行业迈向高质量发展的关键一年。辞旧迎新之际,多家房企发表了新年寄语。其中既有企业的战略规划,也有对行业未来的期许。

我们从中节选了一部分内容,供业内参考。

(以下顺序不分先后)

华润置地:交出全面高质量发展“新答卷”

新的一年,要打破惯性思维,交出解放思想的“新答卷”。坚持“快字当头、品质并重”的原则,加速推动重点业务卡位式布局和跨越式发展。坚持“分期开发、持续迭代”的项目操盘策略,确保新项目“做一成一”。坚持“专业+专家”型总部和地区公司“小平台、强项目”管控模式,赋能一线提升执行力,做强“最后一公里”。坚持以“产品力、交付力、服务力”为核心,持续建强全价值链组织能力。

新的一年,要完善商业模式,交出转型创新的“新答卷”。深化城市投资开发运营商顶层设计,推进“四大标杆模式”迭代焕新、复制推广。加速推动资管业务实体化运作,构建系统化的管控体系、专业能力和人才队伍。大力开展“AI+”专项行动,加快发展新质生产力。积极探索新基建、新型城市更新、商业生态链建设等新模式、新赛道,全面增强企业核心竞争力。

新的一年,要坚持质效并举,交出全面高质量发展的“新答卷”。立足“单盘时代”,稳健创新高质量发展开发销售型业务,巩固行业领先地位。发挥先发优势,全面深化高质量发展经营性不动产收租型业务,筑牢竞争护城河。加快抢占资源,大力培育高质量发展轻资产管理收费型业务,把握规模扩张“窗口期”。以“三条增长曲线”齐头并进、均好发展,推动华润置地实现质的有效提升和量的合理增长。

绿城中国:做善跑的千里马

新的一年,要做“善跑的千里马”,产品不断创新,让绿色科技更懂生活需求,让社区服务更有温度质感,让绿城式美好更加丰富多元。

新的一年,更要做稳健的舵手,以“全品质、高质量、可持续”为锚,明晰战略方向,在行业浪潮中同舟共渡,勇立潮头。让每一步前行,都能踏香留痕,收获满盈。

2026年,以品质为鞍,以服务为缰,让每一个绿城项目都成为城市的风景,让每一份绿城服务都温暖人心。

越秀地产:精耕开发主业,实现高质增长

新的一年,精耕开发主业,深化城市更新,筑牢布局优势。坚定深耕广州大本营,为大湾区“走在前、作示范、挑大梁”贡献越秀力量;持续深化北上广深杭成六大重点城市布局,全力打造更多城市地标名片,让越秀好房子成为城市品质标杆;锚定中央城市工作会议精神,深度投身城市更新实践,以精工手笔焕新老城肌理、激发城市活力,以民生底色提升居住品质、增进百姓福祉,让历史文脉与时代新风相融共生,为打造宜居、韧性、智慧城市注入国企力量。

新的一年,做强服务板块,拓展增值业务,实现高质增长。持续深耕住宅服务,将专业、贴心与温暖融入生活每一处细节,用科技聆听需求、以智慧点亮日常,让服务需求一触即达,让居住更安心、社区更温暖:持续深耕商写园、大交通、大公建等多元业态,以“精细、专业、温暖”服务理念为城市公共空间注入温度。

新的一年,做优商业赛道,升级资管模式,提升运营效能。写字楼聚焦多元办公需求,优化业态布局,精准匹配市场需求:商场锚定消费升级趋势,推进品牌焕新与场景创新,持续激活客流活力:商旅紧抓市场复苏契机,以精细化运营夯实品质根基。将以数智化赋能全链路管理,强化资产协同效能,依托REITS平台深化价值创造,以专业能力穿越行业周期,为城市注入商业活力,向高质量发展坚实迈进。

华发集团:重整行装再出发

新的一年,将以敬畏之心拥抱市场。坚持稳中求进、以进促稳,强化全面风险管理,筑牢合规经营底线,实现有质量、有效益、可持续的增长。敏锐洞察行业趋势,清醒应对市场变化,精准把握产业变革规律,持续优化产业布局、升级产品服务。秉持开放协作理念,构建互利共赢产业生态,与合作伙伴共创价值、共享未来。

新的一年,将以创新之志开拓新局。把握“变局中有定数、危局中有机遇”的时代大势,增强应变求变的战略主动,始终保持敢闯敢试的锐气,在体制机制、产品服务、商业模式上持续突破,让传统业务焕发新生,让新质动能茁壮成长,让“创新”成为集团高质量发展的鲜明底色。

新的一年,将以人为本凝聚合力。将秉持“投资于人”的发展初心,完善激励机制,拓宽成长通道,将人才成长与企业高质量发展深度绑定,让奋斗者有舞台、有奔头,让华发成为全体同仁逐梦和扎根的坚实港湾。在“十五五”新征程上书写企业发展与员工成长双向奔赴的新篇章。

新城控股:深耕厚植 守正创新

2026年,是国家“十五五”规划的开局之年,也是新城的关键一年。面向2026,我想说“深耕厚植,守正创新”是年度主基调,选择继续回归本质,聚焦核心能力建设,以自身的确定性应对外部的不确定性。

中央经济工作会议将“坚持内需主导,建设强大国内市场”列为明年首要重点任务,这是时代赋予的方向。将主动融入这一趋势,锚定高质量发展,持续打造优质商业空间、激发多元消费活力。

商业管理和地产开发双轮驱动战略,是新城穿越周期的根本。将坚守财务稳健原则,把信用优势转化为发展动能。稳步推进“大资管”战略落地,做强轻资产管理输出,不断锤炼“投、融、建、销、管、退”全周期竞争力,为企业永续经营构筑坚实护城河。

当下,AI正重塑各行业竞争格局。2026年,将进一步推进AI等数字技术在开发、商管及组织协同中的规模化落地,将科技能力转化为核心竞争力,打造更敏捷高效的创新型组织。

中国金茂:以长期主义打造时代精品

2026年是“十五五”规划实施的开局之年,也是中国金茂向“活得好”“活出彩 ”坚实迈进的奋进之年。展望未来,行业格局仍在重塑,有准备、有竞争力的企业将始终立于潮头之上。

未来五年,将锚定成为“地产行业产品引领者、转型发展优等生”的卓越追求,踔厉奋发、砥砺前行。将坚决贯彻“产品引领、客户至上”理念,加速产品文化构建,以长期主义打造时代精品,赢得客户满意;将着力做优做强第二曲线,培育非开行业翘楚,打造有辨识度的领先品牌,实现生态闭环;将持续深化改革,加速全链竞争力系统提升,坚持行非常规之举,扎实推进“三步走”战略蓝图,推动公司高质量转型发展,

碧桂园:众志成城 向新而行

“十五五”规划建议已清晰绘就中国房地产发展的新图景。将以债务重组的阶段性成果为新起点,公司的经营重心正从“全力保交房”的攻坚阶段,稳步转向债务结构的持续优化和正常经营秩序的全面恢复。

将继续按照“一楼一策”的策略,全力完成剩余房屋的交付工作,打好保交房的收官之战。将更加聚焦于确定性的市场和客户需求,持续优化产品力,让“好房子”成为承载幸福、提升资产价值的坚实基石,以实际行动回应人民群众对美好居住生活的新期待。

未来,集团将在“一体两翼”的新战略格局下,以市场为导向,积极探索房地产新发展模式。我们坚信,在政策持续优化、市场自身调节与企业努力自救的共同作用下,房地产行业必将逐步走向良性循环的新阶段。

中粮大悦城:让每一份资产都焕发长期价值

展望2026,奋进的步伐将更加坚定。愿以持续的自我革新拥抱浪潮,坚持“年轻力”的引领,筑牢“好房子”的根基,强化多业态协同的韧性,深化运营精益之道持续回应时代与人的期待:让每一份资产都焕发长期价值,让每一次服务都传递大悦温度。

保利置业:向阳而行 共赴心安

2026年的第一缕光,不仅是黎明,更是闯劲与希望。我们始终相信:真正的勇气,是在认清困难之后依然选择出发;真正的心安,是练好内功、做好自己的事的笃定与从容;真正的准备,是在启航之前就锻造好抵御风浪的航船。

中建东孚:笃志攻坚、向光而行

春山可望,未来可期。2026年,是新一个五年规划的开篇之年。让我们带着2025年的沉淀与感悟,带着攻坚克难的勇气与决心,以坚如磐石的信念、求真务实的作风、开拓创新的锐气,笃志攻坚、向光而行。

中交房地产集团:奋力书写高质量发展新篇章

展望“十五五”,我们将满怀希望、顽强奋斗。坚持以党的建设为引领,以改革创新为驱动,聚焦投资布局、价值创造、精益运营、风险防控、党建引领五大重点,加快推进企业转型升级,围绕核心城市、核心市场优化布局,建设“好房子”、发展特色业务、加快存量资产盘活、抓实保障房建设、抢抓城市更新机遇,以“全城市”为发展职能与使命,奋力书写中交集团城市与房地产开发业务高质量发展新篇章。

路劲集团:所有未来的佳音,都是今天努力的回响

当房企经营指标的优先级从盈利水平转向生存能力,路劲也不免要面对一段艰难的历程。这并非第一次与困境狭路相逢,当然也不是最后一次,而任何时候想要穿越困境,最好的出路就是往前走。我们必须全力以赴,就离岸债务寻求一个全面的解决方案,而与此同时,保交付、保经营以及为所有持份者保存价值的行动也决不退场。

今天为改变现状所做的努力,可能成为下一段故事里珍贵的伏笔,而所有未来的佳音,都是今天努力的回响。当行业变革的齿轮开始转动,阵痛期虽未结束,但房地产发展新模式已初见端倪,我们希望抓住线索,循势而往,凭借集团长期积累的品牌资产、资源体系和经验丰富的运营团队,向深处挖潜能,在我们的产品和服务与普通人日常生活中蕴藏的巨大向往之间建立关联,与未来产生新的链接。

卓越集团:坚持高质量发展与长期主义

2026年,是国家“十五五”规划的开局之年,也是卓越成立30周年。将进一步夯实基础坚持高质量发展与长期主义,以深圳为大本营,深耕湾区核心城市群:始终以客户为先推动科技赋能与服务创新:在存量运营和轻资产管理等领域探索突破:持续激活组织,实现个人与企业的共成长。

中建壹品:参与定义时代的生活方式

公司党委书记、董事长徐超;党委副书记、总经理孙晓林;党委委员、执行总经理 王志斌

新的一年,继续做“战略的执行者”。以更深邃的战略眼光,穿透短期波动,聚焦长期价值。战略将更具洞察力,产品将更具生命力,服务将更具感染力。不仅建造“好房子”,更参与定义时代的生活方式。

新的一年,继续做“价值的创造者”。把“壹品好房”的体系落地更深,把资产运营的网络织得更密,把客户信任的纽带系得更牢。在每一个看似微小的产品细节里,在每一次与客户的真诚互动中,夯实企业最深的护城河。

新的一年,继续做“创新的引领者”。拥抱变化,将不确定性转化为创新地图上的新大陆。在“AI+建筑”、运营业务、绿色低碳、模块家装等新赛道上,以前瞻的布局和敏捷的身姿,构筑面向未来的全新竞争力。

中建智地:共绘高质量发展新图景

将立足主责主业,厘清发展脉络,让经营底盘更扎实:激活管理效能,优化资源配置,让企业运转更高效:筑牢风险防线,预判发展变量,让前行步伐更稳健。于稳扎稳打中积蓄底气,于精耕细作中厚植势能,为智地高质量发展筑牢坚如磐石的根基,让每一步前行都掷地有声。

将以匠心为尺,丈量建筑的每一寸细节,让人居作品经得起时光检验;以初心为灯,照亮服务的每一段旅程,让业主体验充满温度与质感:以卓越为标,打磨发展的每一个维度,让智地品牌成为品质的代名词。

将以创新为型,深耕技术研发的沃土,破解人居建设的痛点难题;以进取为帆,驰骋新兴赛道的蓝海,探索城市更新的多元可能,以突破为剑,冲破行业转型的瓶颈桎梏,解锁高质量发展的全新密码。

中建玖合:营造幸福,一往无前

面向“十五五”,将以“营造幸福生活”为使命,整装出发,一往无前!

将继续以匠心筑造温暖家园,以服务传递真挚情谊,与各方伙伴同心同行,营造更有温度、更有活力的幸福生活空间;在夯实开发主业的同时,将敏锐洞察趋势,积极探索城市更新、产业投资、银发经济等新赛道,构建独特的竞争优势与发展韧性,坚定不移迈向高质量发展新阶段;深化与局主业并进,在机构组织变革、产品品质打造、人才队伍培育等维度实现全面跃升,带动系统内全产业链协同创新,共同开拓更广阔的价值天地。

信达地产:做行业稳定发展的建设者

2026年,是公司“四五”战略规划的开局之年。仍将走在改革化险、转型发展的攻坚路上。这不是一条轻松的路,行业的修复仍需时间,现金流的压力仍在肩头,存量的“硬骨头”仍需啃下,能力短板的补齐仍需时日。我们知道,越是面对困难,越需要沉心静气、修炼内功;越是遭遇挑战,越应当脚踏实地、步步为营。

新的一年,将朝着清晰的方向坚定前行,在化解风险中夯实专业厚度,做金融机构可信赖的同行者;在输出服务中拓宽价值广度,做资产运营生态中的整合者;在盘活存量中传递信心温度,做行业稳定发展的建设者。将持续推动总部向“战略引领+业务赋能”转型,完善以增量贡献为导向的激励体系,锻造专业担当的复合型团队,以更深层的改革创新筑牢能力根基。

声明:本文由入驻焦点开放平台的作者撰写,除焦点官方账号外,观点仅代表作者本人,不代表焦点立场。