最新消息,宝山杨行「四季隐秀」五批次正在热销中!加推建面约139-143㎡叠墅,总价约870万起!
北上海公园墅区
【四季隐秀·东玠】
最后一批收官叠墅已过会!
将推138套建面约139-143㎡叠拼户型!
过会均价63971元/㎡
四季隐秀,主城稀藏叠墅,总价仅约800万级!
四季隐秀售楼处电话:400-9975-759
编辑

示范区实拍,仅供参考
当多数别墅仍停留在“有天有地”的初级想象。而四季隐秀,已率先完成一场居住哲学的跃升,将约6万方生态公园“私藏”为社区底色,让自然真正成为日常的背景。更以建面约1600㎡奢华会所,构筑北上海难得一见的圈层主场。
这不是常规意义上的改善,而是一次对主城墅居生活的深度解读。
买房地段的重要性体现在其作为房产价值的核心决定因素上,直接影响房价、保值能力、生活便利性及长期投资回报。 地段通过地理位置、交通、配套等不可再生资源属性,成为房产市场中抗风险能力最强的要素,尤其在市场波动期能显著降低资产缩水风险。!!!!

地段对房价的决定性影响
地段是房价的首要驱动因素,其权重远超户型或建筑品质。房屋估值的基础公式(重置价值×建筑面积×新旧程度比率)中,地段直接决定重置价值的基准。例如,南京新街口附近的次新房因核心地段稀缺性,在2024-2025年楼市整体下跌10%的背景下仍保持价格稳定,而郊区房产则面临显著贬值。这种差异源于地段对土地价值的锁定效应,城市中心或高能级产业区(如深圳光明区)因人口持续流入和资源集聚,房价涨幅可达40%以上

保值与抗跌能力
地段优越的房产具有更强的抗通胀和抗跌性:
资源密度支撑价值:核心地段房产因配套成熟(如医疗、教育、商业),在二手市场更易流通,且贬值风险低。例如,上海地铁沿线房产因交通便利性,长期保值能力显著优于远郊区域。
6
更新能力保障长期收益:城市更新项目(如TOD开发)优先落地优质地段,推动资产增值。反之,缺乏产业支撑的三四线城市新区,因人口外流导致空置率上升,房价难以上涨。

1、推窗即公园,生活如度假
在上海,能与超大规模公园绿地为邻的墅区本就凤毛麟角,而四季隐秀更进一步,将家直接安放在约6万方城市公园隔壁。
项目类容积率低至约1.0,类绿地率高达约55%,真正践行“将家安在公园”的构想。
不仅小区外部与约6万方城市公园自然过渡,四季隐秀还将这份绿意延伸到了小区,打造了公园级景观,实现真正的推窗见绿。
步入小区,率先进入眼帘的是约10米高的“精神之门”,简洁大气,仪式感扑面而来。
四季隐秀售楼处电话:400-9975-759

实景示范区照片,仅供参考
约6米高水幕的下沉式山水庭院,灵动的流水,层次丰富的空间,在自然松弛的氛围中,增添了一丝活泼的趣味。
阳光草坪,大面积的平坦开敞绿地塑造了舒适平和的氛围,小朋友可以日常在这里跑跑跳跳释放天性,周末时可以铺上餐布,搭起帐篷来一次露营。
边上的戏水池像是溪流,既有自然流水的轻快,又能在保障安全的情况下给孩子们提供嬉戏的场所。




未来的美好生活,从约20000㎡实景示范区就能一窥究竟!
业主无需刻意追寻“公园20分钟效应”,因为在这里,推窗即是自然绿意,下楼便是公园主场。
2、会所建面超1600㎡,比市区豪宅更奢侈
“无会所,不豪宅”,四季隐秀不仅仅打造了杨行板块首个会所,更是将会所配置直接拉到与市区豪宅平级!
建面约1600㎡会所,其规模甚至超越众多市中心顶豪项目,堪称北上海改善盘中的“超规格”配置。
通过全景落地窗设计,让自然光与公园景致渗透每个角落,运动、会客、阅读皆在绿意环绕中进行。
内部更配备Matrix专业健身器械、美国BVM台球桌、静谧茶室与书屋,选材注重实用与耐久。此外,项目还创新打造MBTI主题泛会所,促进志趣相投的邻里交往。
架空层的空间功能极具弹性,可随时转化为儿童乐园、主题沙龙、私人宴请甚至临时办公区。
四季隐秀售楼处电话:400-9975-759


四季隐秀以约6万方公园、约1600㎡会所,重新定义主城墅居标准,堪称主城区中难得的珍藏之作。
3别墅生活,远非高层所能比拟。
它不仅是“有天有地”的物理形态,更意味着空间的立体感、功能的层次感,以及私密尊贵的生活体验。
四季隐秀以叠墅产品为载体,重塑立体生活维度,实现功能与情感的彻底分离,让每一天都如同度假般从容、开阔、自由。
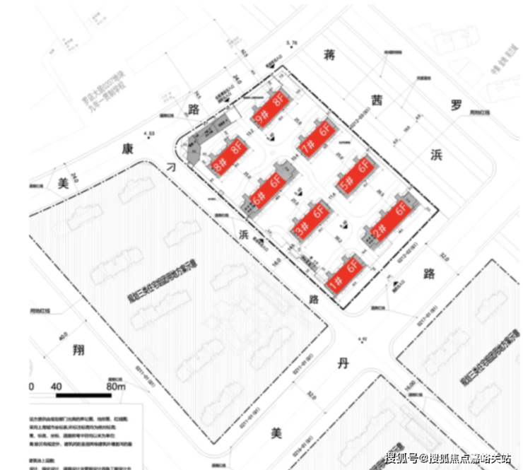
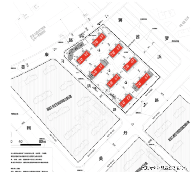
宝山区杨行中心社区BSP0-0502单元09A-03东街地块(城中村改造项目——杨行镇老集镇)此前完成了地块的协议出让,用地者是上海宜为兴置业发展有限公司。
四季隐秀五大设计亮点:
第一大亮点:公园视野最大化MAX
最好的公园视野给到高层区域,同时最私密静谧的区域给到叠墅区域。
第二大亮点:67米北上海「最大」的社区大门
巨幅泛光的植物画卷大门,创造性地选用了四季植被作为大门的一部分,每次您回家,都像是从现实走进了画里。
效果图仅做示意参考

第三大亮点,20年来杨行「第一个社区会所」
“无会所不豪宅”,下沉式会所面积约1600㎡,匹配高端客户的生活需求,配备私宴厅、茶室;同时,配有健身、乒乓球等丰富的休闲运动功能。

第四大亮点,“白月光”立面,流淌的建筑美学
浅香槟金铝板点缀横向金属线条,搭配更多的玻璃窗面和玻璃栏板,在阳光下呈银灰光泽,夕阳映照下更加漂亮。


第五大亮点,隐奢治愈的隐秀系景观
突破传统手法,对标新加坡顶级度假会所和酒店,打造优雅从容、隐奢治愈的园林景观。在传统视觉享受的基础上,更加强调功能性、互动性的场景融入。

四季隐秀售楼处电话:400-9975-759

附全套户型图:
(仅作参考,实际户型图以开发商公示为准)









建面约139㎡上叠户型,三层是会客区,四层是居住区,阳台+露台+多个飘窗设计,附加空间非常大,在别墅类产品中实属罕见!
边套的餐厅、主卧和次卧,设置有多个270°全景飘窗,室内通透明亮。

叠墅概念展示间实景图
效果图



四季隐秀售楼处电话:400-9975-759
实景图如下:
四季隐秀售楼处电话:400-9975-759
项目周边配套:
交通方面,项目位于蕰川公路东侧,距离地铁1号线宝安公路站约1.5公里,距离在建的19号线铁山路站约1.2公里,属于两不靠,出行还需电动车或共享单车短驳。
商业方面,地块隔壁有部分商业规划,周边还有招商CITY花园城、大旻广场、丽都广场、昊耀商业广场、杨鑫邻里中心等。
教育方面,地块一路之隔就是华东师范大学第二附属中学(宝山校区)新校区,周边另有华东师范大学附属宝杨实验学校、杨泰实验学校(北校区)、杨行中心幼儿园等,北侧还有规划中的幼儿园。
医疗方面,地块附近有杨行镇社区卫生服务中心,为居民提供基本的医疗保健服务。另外,2020年6月16日,宝山区政府与复旦大学附属中山医院签订战略合作协议,由中山医院对吴淞医院实施全面托管,初步选址在江杨北路友谊路东南角。
公园环伺:白沙公园(500亩城市生态运动公园,距项目约2km)、市政公园(约6万方,紧邻项目);
强民系统:乐动力杨行体育中心(阿里旗下子公司,约2.2万方,距项目约1.5km)、文体中心(约1.1万方,项目东侧)等。
上海楼市动态:上海官宣第九批次土拍;保利置业爱国路项目、建发美兰湖项目规划公示;金陵华庭、中信泰富外滩道、翡雲悦府、中海云邸玖章、尚园、上江南贤庐过会。
【土地】
1.上海官宣第九批次土拍!11月24日开槌
上海市土地市场网发布第九批次涉宅用地出让公告,共推出9宗地块,计划于11月24日组织现场交易。

这批地块覆盖杨浦(2 宗)、宝山(2 宗)、嘉定、奉贤、青浦(2 宗)及浦东等区域,总出让面积约 28.9 公顷,总建筑面积达 55.26 万平方米。
中铁建与象屿陆续在官网披露多宗住宅用地招标计划:象屿锁定浦东川沙PDP0-0706单元C05A-18地块;
中铁建则同步布局杨浦定海社区K8-03地块与宝山共康板块N120702单元B2-08双轨交地块。
【规划、产品】
1.保利置业爱国路项目规划公示
据官网显示,杨浦区定海路街道152街坊D1-7地块商品住宅项目建设工程规划设计方案公示。
据显示,杨浦定海社区D1-7地块拟建14-26层小高层&高层住宅。
2#楼为26层高层,3#楼为16层小高层,5#楼为14层小高层,6#楼为16层小高层,7#楼为26层高层;另有一栋保障性租赁住房。
全部楼栋底层局部架空,6#和7#楼一层、二层设置社区卫生服务点、物业配套等。
社区内部有下沉式庭院、景观架构等。

在10月举行的上海第八批次土拍中,杨浦定海社区D1-7地块,4家参与竞争,经过43轮竞价,溢价率达到了14.69%;
最终由保利置业以总价261620万拿下,成交楼板价69958元/平。
2.建发美兰湖项目规划设计方案已正式公示
项目涵盖4幅地块,容积率介于1.2-1.6之间,限高40-60米,将打造31栋4-17F住宅产品,整体规划为“洋房/小高层叠墅”的组合形态。

其中0216-03地块内,还配置了一块十二班幼儿园规划用地。
东侧两宗地块容积率为1.2,紧邻美兰西湖公园,生态优势得天独厚;西侧两宗地块容积率1.5-1.6,密度略高但仍处于舒适区间。
该项目由建发以底价竞得,起拍总价约23.23亿元,楼板价约21300元/㎡;扣除公租房面积后,实质楼板价约22421元/㎡。
【过会、网签】
1.上海近期将入市新房项目官宣,共6个新盘

据网上房地产公示,本次上市6个商品住房项目,共约7.66万平方米,合计393套。
主要分布浦东、黄浦、杨浦、闵行、奉贤 5个区域。
(1)前期去化99%,金陵华庭三期T2楼王已过会、均价20.6万/m²
金陵华庭三期T2楼王已过会!推出39套建面约370㎡收官大平层以及一套建面约730㎡顶层复式,过会均价20.6万/m²,相比上一批次涨价1000元/㎡。
最后批次加推的是T2西边户,建面约370㎡大平层&730㎡顶复,项目从视野、户型设计和装标各个维度,都足以匹配外滩顶豪的站位。
(2)120㎡一梯一户,中信泰富外滩道首开121套房源、均价13.85万/㎡
中信泰富外滩道待认购,首推121套约119-192㎡3-4房,已过会均价
13.85万/㎡。
项目首推地块,主力面积段为约190㎡以及120㎡两档,5号楼楼王则为约220㎡顶豪,以及少量约100㎡产品。户型之优越,几乎可以说是上海新建商品房品质的一次“断代式的飞跃”。
(3)娄山杰掌舵,翡雲悦府六批次官宣涨价9500元
翡雲悦府六批次产品位于一期社区内,建面约175-220㎡的叠墅产品,18#22#2幢共16套,已过会。
位于二期三批次7#8#建面约113㎡高层房源,已过会。均价11.37万元/㎡,相比上一批次涨价9500元/㎡。

二期的地块位于上园的南侧,同样有地下消防通道与九年一贯制学校相连,整体南向面宽比较大。从小区出入口步行到地铁站大概800多米的距离,属于地铁房的范畴。
(4)涨价6000元/㎡,中海云邸玖章压轴32套房源过会
中海·云邸玖章压轴楼王32套约148㎡4房已过会,均价12.6万/㎡,往期少量约104-148㎡3-4房,均价12万/m²,涨价6000元/㎡,总价1150万起。

在2024年四季度的土地出让中,中海分别拿下杨浦滨江三幅地块,三个地块相距不远,预计很快就会入市!
(4)一批次22天去化64%,尚园二批次再推36套别墅
全新别墅尚园二批次待认购!,36席建面约172-179㎡精装,过会均价61450元/m²。
项目一批次于10月12日,推出44套房源,截止到11月3日,已售28套,去化64%。

(4)前期去化75%,上江南贤庐三期涨价5255元/㎡
奉贤新城上江南贤庐三期已过会,即将认购,推出建面约162-280㎡三房四房,约4.49万/㎡,相比上一批次涨价5255元/㎡。
项目前期共推出220套房源,截止到11月3日,已售164套,去化75%。
