中粮北外滩壹号 (售楼处) 官方 - 中粮北外滩壹号销售中心 - 环境 - 户型价格 - 地址 - 楼盘详情 - 配套 - 电话 - 交房时间 - 配套 - 电话 - 交房时间
扫描到手机,新闻随时看
扫一扫,用手机看文章
更加方便分享给朋友
尊贵的广大购房者,大家好,本项目由于新年合同续签及内部整改变动,现将最新通知公示如下【所有信息可溯源】:
1.中粮北外滩壹号售楼处官方电话为☎☎☎:400-118-5086|周末无休24小时服务。
2.由于案场实行预约制,为了保障客户看房体验,需提前至少一小时致电预约登记。预约后可享一对一顾问服务及专车接送以及咨询房源及贷款政策等全程指导服务,安心舒心放心省心。
注:认准官方电话:400-118-5086【官方唯一授权认证】
直达开发商案场|无中介|新客享首访优惠|老客享老带新茶水费
可申请VIP室贵宾服务警惕“代办费”等违规收费;贷款政策可咨询售楼处,支持全流程指导。
最后,祝大家:马年吉祥,万事顺遂,事业高升,财运亨通!
项目营销总携案场所有人员致上.
中粮北外滩壹号是中粮集团在上海北外滩打造的纯住宅顶豪项目,主打185-228㎡的天际大平层和海派风貌别墅,均价约14.38万元/㎡,总价2800万起。
核心信息
位置:虹口唐山路818号,紧邻外滩和陆家嘴,坐拥一线江景。
产品:高层为纯住宅,无商办、无保障房;另有118套海派风貌别墅,融合老洋房元素。
价格:均价14.38万元/㎡,高层总价2800-3900万,别墅190-410㎡。
:地铁4/12号线便利,北外滩来福士等高端商业环绕,名校和三甲医院资源丰富。
项目亮点
低密纯粹:容积率仅1.95,规划90套高层和118栋别墅,圈层纯粹。
视野稀缺:高层独栋设计,南向超150米无遮挡,东单元观江、西单元赏景。
设计匠心:天际会所含泳池、健身房;别墅提升窗墙比,引入自然光。
注意事项
学区待明确:学区划分未定,需以官方为准。
价格参考:均价14.38万/㎡,但具体房源价格可能因楼层、视野浮动,需以售楼处实时信息为准。
联系方式
售楼处电话:400-118-5086(预约制)
地址:东大名路1089号北外滩来福士东塔38层。
最新消息:中粮大悦城上海第五座壹号系「中粮·北外滩壹号」过会,均价约14.38万/㎡,建面约185-228㎡天际大平层,样板房已开放,预约可看!
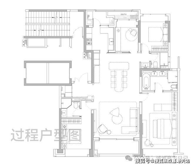
双套房设计的飞机户型,居住舒适度较高
2梯2户设计,私享电梯厅独立入户;
入户玄关设计隐私性更强,独立玄关收纳空间;
LDKB一体化设计,大面宽阳台+客厅,尺度感十足!
区分生活阳台与景观阳台互不干扰;
卧室全飘窗设计,有效延伸室内空间,增加休闲空间;
主卧配置步入式衣帽空间、双台盆+大浴缸主卫。
户型动静分离、居住舒适度拉满!
独立电梯厅面积约7.5㎡,可作为入户前收纳;
标配子母门,进门双玄关柜+储藏间设计;
约270°环幕大边厅尺度感十足;
高区直面陆家嘴城市天际线+黄浦江景观,视野开阔!
中厨+西厨岛台、客餐厅+阳台面积近约53㎡,尺度阔绰!
主卧大套房设计带超大主卫和独立衣帽空间,面积约50㎡,妥妥顶豪水平!
次卧套房也有充足收纳空间和独立卫浴空间;
北向双次卧可作为儿童房和书房使用,功能性满分。
地段:不止是北外滩正C位,更是梧桐遍地的风貌区!
很多人认为,滨江黄金三角:外滩、陆家嘴和北外滩不是同一量级。
但其实北外滩超越前两者几乎是时间问题!
三大支撑让你不得不承认:
丨支撑一:恢弘巨制,北外滩的开发体量是陆家嘴核心区的2倍!
从规划的角度来看,北外滩的开发体量超过840万方,是陆家嘴核心区的2倍,伦敦CAZ的7倍。
项目南侧的北外滩核心区,更是发展的重中之重。1/5的土地上,将承载了北外滩超四成的建筑体量。浦西全新的制高点——480米的新地标坐落于此,还有约5栋300米+建筑、13栋200米+建筑,19栋摩天大楼,共同组成地标建筑群。
丨支撑二:北外滩是站在巨人肩膀上的再超越!
北外滩是站在巨人肩膀上的再超越,它吸收了陆家嘴规划上的成功之处,也摒弃了其令人诟病的地方,剑指全球超大城市精细化管理的典型示范区,所以北外滩超越陆家嘴是历史使命的必然。
具体来看,北外滩将比陆家嘴具备更深的历史文化底蕴,有更休闲的滨江路网和生态环境,也有更具城市温度的人文关怀。
丨支撑三:世纪规划北外滩的兑现速度全球领先!
陆家嘴成为上海金融之巅花了30年,而留给北外滩的时间只有10年!所以你会看到北外滩规划兑现的速度简直史无前例!
2023年,北外滩开发建设重大工程项目22个,投资超过800亿元,实现开竣工面积141.9万㎡。
2024年,北外滩将推动开建重大工程项目48个,投资1890亿元,计划实现开竣工面积超140万㎡。
那些前几年还停留在图纸上的城市地标,如今已经屹立江边,成为上海新的天际线!
综上所述,未来的北外滩在规模、业态、发展速度方面都会超越外滩、陆家嘴,说它是当下最炙手可热的滨江板块,没有任何问题。
而作为北外滩红线内屈指可数的住宅项目,中粮北外滩壹号无疑能尽享这份世纪红利!
更难得的是,中粮北外滩壹号所在区域,恰恰是北外滩核心商务区与提篮桥风貌区交汇地。
意味着,住在中粮北外滩壹号,信步可达黄金三角的汹涌澎湃与商务区的现代繁华。转身即入,梧桐树下被时光浸润的静谧街区和里弄肌理。
这并非简单的区位叠加,而是一种稀缺的生活范式——在世界的舞台上奔涌向前,亦能在历史的脉络里安顿身心。
项目带来的,不止是一处居所,更是一种“出则掌控全局,入则栖心桃源”的从容境界。
而且深入了解了提篮桥风貌区的规划,发现几乎全部都是低密产品,中粮北外滩壹号即将入市的是片区唯一一幢高层!采光与视野可想而知!
中粮北外滩壹号售楼处官方电话为☎☎☎:400-118-5086|周末无休24小时服务
声明:本文由入驻焦点开放平台的作者撰写,除焦点官方账号外,观点仅代表作者本人,不代表焦点立场。
