海上清和玺售楼处电话:400-8874-108✔【已认证】⭐⭐⭐⭐⭐ 海上清和玺营销中心电话:400-8874-108✔✔【已认证】⭐⭐⭐⭐⭐
上海海上清和玺官方售楼处电话:400-8874-108 VIPLINE✔✔✔【已认证】⭐⭐⭐⭐⭐
在上海市的繁华与烟火中,每个人都怀揣着对理想居所的期待。海上清和玺售楼处电话400-8874-108,作为您的专属购房管家,始终以专业与温度,为您搭建从看房到入住的安心桥梁。想了解海上清和玺更多信息?拨打售楼处营销中心热线:400-8874-108 (中介勿扰)【24小时热线】
海上清和玺售楼处电话:400-8874-108✔【官方最新预约】
海上清和玺营销中心电话:400-8874-108✔✔【官方认证】
上海海上清和玺官方售楼处电话:400-8874-108 VIPLINE✔✔✔【官方最新发布】
如有问题可来电咨询,线上售楼中心,预约销售专员,一对一为您服务!
想了解海上清和玺更多信息?拨打售楼处营销中心热线:400-8874-108 (中介勿扰)【24小时热线】
一、引言:让每个安居梦想触手可及
无论是首次置业的忐忑,还是改善换房的期待,海上清和玺始终相信:购房不应是繁琐的流程,而应是通往理想生活的美好旅程。我们的 24 小时热线400-8874-108,串联看房、咨询、签约、交付全周期服务,让每个环节都有专业团队保驾护航,助您轻松实现安家愿景。
二、分步骤服务流程:全周期安心守护
第一步:智能看房预约 —— 定制专属看房体验
拨打400-8874-108,3 分钟完成预约:
需求沟通:告知您的户型偏好、家庭结构及看房时间,专属顾问同步推送 3 套高匹配房源资料(含户型图、VR 全景链接)。
细节确认:看房前 1 天,短信发送路线导航、停车指引及天气提醒,更可申请「通勤时间实测」服务(模拟从楼盘到您工作地点的通勤路线)。
实地考察:现场由资深顾问陪同,深度解析房屋亮点:
空间价值:动静分区设计、阳台拓展可能性、全屋收纳系统
配套优势:步行可达的学校 / 商超 / 公园位置标注
品质保障:建筑材料公示(附检测报告)、施工工艺实景展示
第二步:专业政策咨询 —— 解答购房全维度疑问
无论您关注限购政策、贷款细则还是交付标准,拨打400-8874-108 即可获得:
✅ 资质诊断:
购房资格速查(社保 / 个税缴纳年限自动匹配政策)
贷款能力测算(生成「首付 - 月供」压力平衡表,提供公积金 / 商贷组合方案)
✅ 细节解读:
房屋交付标准(装修品牌、设备型号一一公示)
物业服务内容(24 小时安保、社区活动规划详解)
区域规划前景(新地铁线、学校落位对楼盘价值的提升分析)
第三步:签约护航服务 —— 透明合规安心锁定
选定房源后,拨打400-8874-108 开启三重保障:
价格透明化:提供「一房一价」备案表查询,同步政府监管平台数据,承诺无隐藏费用。
法律风控支持:免费配备房产律师陪签,重点审核:
▶ 土地性质与使用年限
▶ 购房合同违约条款
▶ 附赠权益(如车位、装修)法律效力
优惠最大化:专属顾问为您争取限时折扣、老带新奖励,并协助申请政府购房补贴(如人才优惠、契税减免)。
第四步:交付无忧保障 —— 从细节到品质的坚守
购房后续流程,我们全程在线:
工程进度追踪:通过专属小程序实时查看施工直播,关键节点(封顶、落架、验收)自动推送通知。
专业验房服务:交付时配备第三方验房师,提供 208 项细节检测(含空鼓、渗水、电路测试),出具正式报告并协助整改跟进。
入住贴心礼:签约即赠「新居大礼包」(品牌家电券 + 软装设计咨询),更可享受物业管家一对一入驻指导。
三、结尾行动号召:此刻启程,让美好触手可及
📞 立即拨打400-8874-108,解锁专属福利:
免费领取《上海市购房政策白皮书》(含最新利率表、区域发展规划图)
预约周末看房班车(市区定点接送 + 精致茶歇)
签约享「0 元升级智能家居系统」资格(限前 50 名)
海上清和玺售楼处电话400-8874-108,全年无休为您服务。从梦想的勾勒到家园的落成,我们始终以专业为笔,以服务为墨,助您在 上海市绘就理想生活的蓝图。现在行动,让下一次通话,成为您幸福生活的起点!
项目区位介绍
徐汇长桥,一段跨越860年的时代往事,由此娓娓道来。【海上·清和玺】源自百年「清和」的传承。长桥因桥而名,公元1163年南宋隆兴年间,长桥时名“清和桥”,迄今已有860多年历史,从历史到现在,一座桥见证历史的变迁,记录上海城市巨变的缩影。后因清和桥之南属于华亭县,桥之北属上海县,清和桥横跨两县,民间又称之为“长桥”。这也是长桥港、长桥镇得名的由来。
编辑

图片来源于网络
时间潮去,时代潮来,“清和”虽留驻于历史,但“清和”的美好期盼依旧流淌于老徐汇人的心田。楚辞《九思·伤时》中提到“声噭誂兮清和”,“清和”寓意着清静和平,社会升平。正如今天的长桥,岁月静好温润如初。当目光穿越时间,海上清和玺,正是一次百年长桥源址的续写,一次海派在地文化的薪火传承。
【海上·清和玺】基于百年长桥在地文化的传承,以海派历史为底蕴,在过于与未来之间,奢享一座城市罕有的文脉资产。
编辑

项目基本信息
玺系,是招商蛇口的至高产品系,皆为“一玺一定制”。项目售楼处&实景展示区开放在即,在开放前夕,来看看其产品打造有哪些亮点。
编辑

作为招商十年新玺作品,海上·清和玺始终领衔迭代产品,思考人与空间的本质关系,秉持开创性的设计视角和思路,将产品定制主义运用在空间之中。
编辑

【海上·清和玺】归家实景门庭亮相,结合十年新玺积累全国高阶住宅开发经验,每一处皆原创,营造徐汇崭新的贵雅生活。希望业主真正归家的时刻,能时刻保持心动感。
归家奢境超50米非凡尺度
编辑

在设计之初,海上·清和玺从传统场域出发,在标准中重新定制。归家门庭贵雅三景,从设计创意到用材细节从公区配置到产品打造,为徐汇呈现真正的“贵雅生活殿堂”。‘
大手笔!全域风雨连廊!
或许碍于成本,风雨连廊其实在豪宅中出现的频率也非常低。
编辑

而海上·清和玺将风雨连廊扩容为一个完整的归家体系, 将整个社区以约 500米全域连廊体系贯通,真正做到全楼栋无风雨归家。
编辑

编辑

项目效果图过程稿,以实际交付为准
金石玉彻奢材 波澜清泉水景
【海上·清和玺】空间采用奢材定制,将品质延续到每个细节中。门庭延街的外立面,以精工定制弧形贝金米黄大理石为主调,镶嵌典藏级老虎玉大理石,点缀古铜色现代海派艺术感灯器。整体呈现一种流转于百年海派的贵雅气质。
在门庭外,辅以两侧具有仪式感的跳泉水景,将建筑的圆弧美感与自然水景相合,共同构成海上·清和玺“贵雅清和”的城市界面。
编辑

对称式环岛景墙奢石镶嵌
步入到整个门庭环岛空间,整个景墙的设计同样考究墙面采用中轴对称的设计布局,定制了奢石镶嵌装饰将曲面艺术与经典石器之美圆融交融,形成独一份的视觉震撼。
编辑

酒店式环岛落客 海派漩心
酒店式归家环岛的中心,海上·清和玺原创设计了艺术装置,海派漩心。首创经典山茶花图腾设计,其装饰符号源于海派建筑中的山茶花图腾,设计师通过现代的手法将其以立体的方式重塑在环岛落客空间。
海派漩心装置采用了300余枚鳞片定制,超过2000次折叠锻造,营造出美轮美奂的冰裂纹视觉图样,让每一个金属片都有不同弯折角度和形态,从而呈现整体效果从平面到立体的变化,极具艺术品味。
编辑

其底部精心设计了流通的波澜水景,宛若一座曼妙的山茶花生长于泉水之上,熠熠生辉。
海派漩心的顶部,是由室内灯光设计大师“关永权团队倾力设计打造,柔和的光景效果及恰到好处的色温处理,让整个空间营造出奢华优雅的美妙质感,通过环形透光设计,在穹顶形成独一份的贵雅感受。漫步灯光之下,如同走过时间的美妙殿堂。
编辑

【海上·清和玺】希望业主的每一次归家,都能有属于自己的社交空间。整个前厅的接待空间不是一个过渡空间,而是一个真正为归家营造惬意分享的生活场。
海派设计 殿堂质感
整个室内空间由G.ART集艾主创设计大师李阳先生倾力设计,将百年徐汇的经典文化融为建筑语言,生动地写入场景之中。
预接待厅门头源于招商局出资创办的原南洋公学(现在上海交大)三段式建筑造型。优美、经典的软装风格定制无不彰显着生活的品味,天花板定制了细腻入微的deco设计细节,地面瓷砖采用威尼斯白与爵士白石材拼花设计,纯人工铺装保证花纹的奢华质感,壁面装饰的水品灯,选用高规格的E9级进口水晶制作,真正将海派设计融入生活。
编辑

艺术点缀 随手出圈
【海上·清和玺】保持对徐汇滨江艺术生活的充分理解,整个接待厅堂处处可见出片打卡的贵雅瞬间,礼宾接待台与装饰圆满融合,角落美陈亦匠心独运,整体设计采用整石雕琢,于细微中领略建筑背后的艺术内在。在这里,空间让渡于品味,引领人们对生活有全新的理解和发现。
编辑

奢感勾勒 海派光厅
从室内走出室外,宛若一次穿梭百年海派艺术的旅行。甚至触碰的门面,都有源自徐汇历史深处的浓厚艺术中庭的大门设计为“海派光厅”,其玻璃镜面由匠人手工绘制经典海派线条,邬达克经典的纹路设计嵌于表面,同时墙面同样定制了优雅的奢石装饰,让整个空间的布局既有历史的风韵,也有现代的奢华。
编辑

千里苛觅 福木紫薇
景观造园,不只局限于对自然场景的铺陈,更应考虑自然能带给人的生活变化。真正的奢宅拥有的是文化内在。海上·清和玺考究历史,从典籍中发现生的灵感,设计师考究历史中的大宅建造规制,提取“浓荫庇宅”的传统理念,辗转城市之间,从华东,西南,华中区域访查搜寻,终于寻得树龄超60年的福木“紫薇”。
天上紫薇星,地上紫薇花。紫薇不仅寓意美好,更完美的呈现了红润、朝气的自然色彩,巧妙的点缀其中,形成盛夏如火的独有景观。
编辑

造价近百万土耳其进口奢材 老虎玉庭院
传统下沉庭院只为社区营造休憩场所,海上·清和玺真正将庭院从传统的定义中跳脱出来,试图将庭院打造成一件俊美的“工艺品”。
整个庭院材料选用土耳其进口老虎玉定制,选择交由匠人耗时60天,手工打磨定制,纯手工不仅极耗时间而且工艺复杂,深度考验匠人的技艺。海上·清和玺希望在产品的最终呈现上,能真正还原一个有温度的庭院将匠心融入场域之中,真正为每一位业主营造“休憩品书”的贵雅瞬间。仅仅这一方庭院价值就已近百万,可见海上·清和玺对业主归家仪式感设计的用心与苛求。
编辑

垂直会所体系
据沪上好房统计,近两年10万+/㎡新房中,配备会所的楼盘仅十之一二,会所面积约800-1500㎡,内容以会客厅和健身房为主,少数有泳池。 (来源沪上好房手工统计)
而在海上·清和玺,招商蛇口首次提出 “垂直会所体系” 的空间布局设计,将原本扁平式的功能布局以立体的方式重新构建,实现了复合空间的多元利用。
其中会所及架空层总体量约3000㎡ ,如此大规模的定制,在整个上海高阶产品中同样也是超前列的存在。
编辑

约2000㎡地下会所内含 璀璨星空顶泳池、私宴厅、室内高端健身器材 (沃特罗伦或同等档次品牌)甚至 高尔夫场所 (高尔夫尊或同等档次品牌)。
还有七大泛会所,作为业主生活的延伸。
编辑

编辑

项目效果图过程稿,以实际交付为准
从实景归家到功能设计公区奢宅化 重新界定场域的价值所在
在产品颜值的高水准定制之外,在海上·清和玺的视角里,希望打破原有的空间定制思路,将传统高阶住宅的打造理念运用到公区,重新定义公区功能及体验感。
项目推售详情
【海上·清和玺】加推5幢,该楼栋房源仅161席,共33层,两梯4户,其中120㎡为边套(共65套),112㎡户型为中间套(共96套),过会均价110650元/㎡!作为该项目收官之作,机不可失!另前期少量建面约112-177㎡3-4房改善大宅可直接认购!总价1200万起!
编辑

编辑

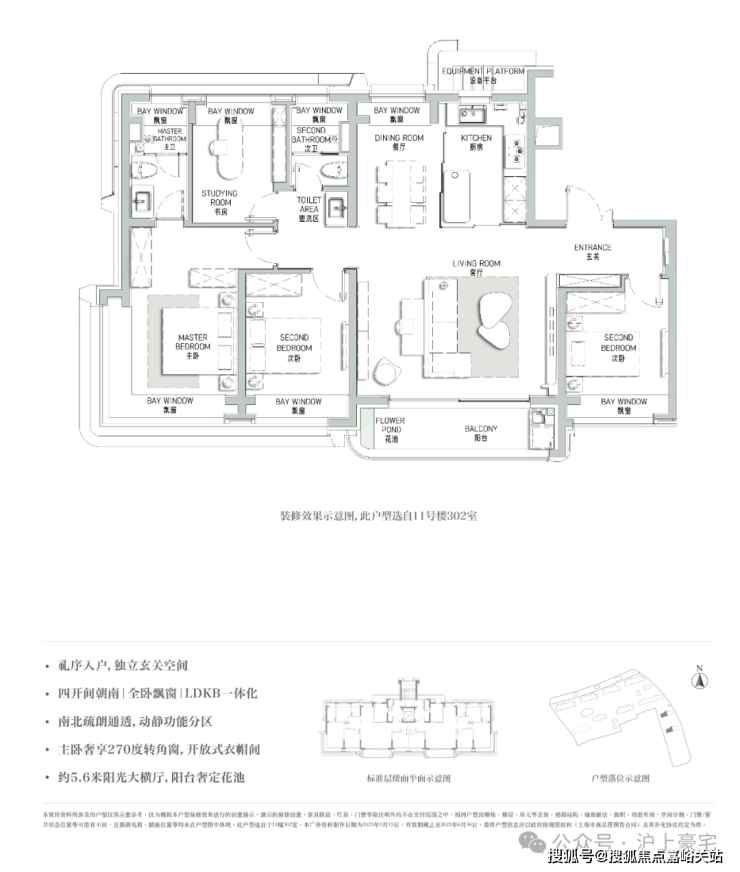
海上清和玺项目全套户型鉴赏:
徐汇2000万内稀缺四房,堪称孤品
作为徐汇区当前唯一总价2000万内的四房新盘,在土地资源开发成本日渐高昂的徐汇,低密洋房堪称“绝版资产”,而兼具功能性与收藏属性的「四房真洋房」,更堪称时代孤品。可以说,这一次之后,很难再有!
编辑

建面约177㎡户型是本批次的重点户型,总价约2300-2500万级,改善一步到位,后续再无!阔朗的四开间朝南设计+双套房设计,保证不同家庭成员起居的私密性。
客餐厅尺度阔绰,方正大气,自带曲面流体的阳台。主卧带转角飘窗,主卫浴缸+双台盆设计,非常尊崇!
建面约112㎡ 3房2厅2卫▼
编辑

厨电配置了德国厨房顶奢品牌博世(或同等档次)四件套抽烟机+燃气灶+洗碗机,带末端净水器,弗兰卡(或同等档次)大单槽+可抽拉龙头,冰箱也是交付的!
编辑

柜门白色烤漆面板,抽屉分区也都是帮大家细致划分,如多功能调味拉篮+谷物抽+碗碟拉篮等。岛台上配置可升降插座,铝合金抽屉,石材背景板的金属开放格实用性很强。
编辑

电视背景墙采用卡慕白的石材+皮革造型,弧形吊顶,相当讲究,连空调出风口的形状都打造为海上·清和玺logo山茶花的形状~~三大件为大金(或同等档次)中央空调和地暖,新风系统为百朗(或同等档次),南向阔景阳台,采光视野一级棒!
编辑

编辑

主卧套房设计,皮革造型的床背景墙也是交付标准,台盆为唯宝(或同等档次)、龙头则为科勒(或同等档次)复古龙头,马桶为高仪智能马桶(或同等档次)。
编辑

编辑

奢石台面,皮革饰面柜抽屉,侧端设置金属收纳开放格;定制镜柜,中间的透光玉石直接提升了高级感,镜柜内部配备了美妆冰箱+美妆灯条+轨道收纳!
编辑

编辑

建面约120㎡ 3房2厅2卫▼
编辑

建面约120㎡的户型,定制LDKB一体化宽厅,更舒适的功能定制,270°转角窗观景套房设计,实现了居住品质与观景的完美结合。
建面约134㎡ 3房2厅2卫▼
编辑

项目周边配套
轨道交通方面:距离15号线罗秀路站约1.2公里,步行不算近,但是也能接受。
编辑

自驾方面,约800米即可上中环,距离龙吴路、上中路隧道、外环直线距离约1公里,距离虹梅南路、沪闵高架路也仅约2公里。
编辑

示意图
商业配套方面:项目2公里内有凌云壹街坊、百安居、东阔生活广场、规划了北杨人工智能小镇。
教育资源方面:项目北面一街之隔就是徐汇四大名校之一民办逸夫小学,上海中学距离项目也仅几百米。
编辑

医疗资源方面:
上海市第六人民医院(直线距离约2.7公里),全国骨科王牌top级三甲医院;上海市第八人民医院、上海仁爱医院、上海万众医院、上海虹桥医院等专业医院,护航家人健康。
编辑

生态资源方面:距离上海植物园直线距离约1.3公里。
编辑

海上清和玺售楼处电话:400-8874-108✔【已认证】⭐⭐⭐⭐⭐
海上清和玺营销中心电话:400-8874-108✔✔【已认证】⭐⭐⭐⭐⭐
上海海上清和玺官方售楼处电话:400-8874-108 VIPLINE✔✔✔【已认证】⭐⭐⭐⭐⭐
如有问题可来电咨询,线上售楼中心,预约销售专员,一对一为您服务!
想了解海上清和玺更多信息?拨打售楼处营销中心热线:400-8874-108 (中介勿扰)【24小时热线】
楼盘项目全面介绍,本电话为开发商提供线上预约售楼电话,楼盘项目全面介绍(包含楼盘简介,均价,房价,现房,期房,别墅,叠墅,大平层,价格,楼盘地址,户型图,交通规划,备案价,备案名,项目配套,样板间,开盘时间,认筹时间,楼盘详情,售楼处电话,最新消息,最新详情,周边配套,一房一价,最新进展等详情咨询)楼盘详情丨价格丨更多优惠丨机不可失丨欢迎致电丨诚邀品鉴!售楼处位置丨特价房丨工抵房丨剩余房源丨户型图丨最新消息丨免责声明:将文章内容综合来源于网络、只作分享,版权归原作者所有!!如有侵权,请联系我们,我们第一时间处理如有问题欢迎来电咨询,专业一对一热情服务,让您用专业眼光去买房.如果您想了解更多楼盘详情,欢迎提前预约拨打
美国,作为全球最大的移民国家之一,其稳定的经济发展、优质的教育资源和多元化的生活方式吸引了世界各地的移民们。那么移民美国,哪些城市适合华人移民定居呢?这些移民城市的房价水平如何?哪些城市的房产值得投资,能真正提升生活质量,还能为家人创造更多的选择权呢?
2025年最适合华人移民定居的美国城市TOP 10
综合生活设施、教育资源、产业优势等多个维度,盘点出美国十大热门移民城市供大家参考,看看有没有你pick的城市上榜。
1.西雅图(Seattle),华盛顿州
房价中位数:约770833美元
所需负担年薪:约154167美元
生活设施:美国西北部的经济和文化中心,拥有一流的生活设施,医疗、交通和娱乐设施都很完善,太空针塔、博物馆、音乐会和剧院等娱乐设施丰富。城市公共交通和基础设施便利,适合长期居住。
教育资源:公立学校在全美排名前列,教育资源优越,包括华盛顿大学等高级学府。
产业优势:西雅图是美国科技产业的重镇,亚马逊、微软总部位于此。此外,医疗、航空、清洁能源和国际贸易等领域也领先,吸引全球高净值人群和高端人才聚集。
2.旧金山(San Francisco),加州
房价中位数:约1181211美元
所需负担年薪:约236242美元
生活设施:拥有世界高级的医疗、餐饮和零售设施。城市交通系统发达,生活便利度高。
教育资源:拥有斯坦福大学、加州大学伯克利分校等世界著名的教育资源。
产业优势:是全球科技和金融中心之一,吸引了大量专业人才。
3.洛杉矶(Los Angeles),加州
房价中位数:约1150000美元
所需负担年薪:约271000美元
生活设施:拥有世界一流的医疗、购物和娱乐设施。城市交通虽有挑战,但总体上生活便利。
教育资源:拥有加州大学洛杉矶分校(UCLA)、南加州大学(USC)等知名大学。
产业优势:是全球娱乐、媒体和技术产业的中心。
4.波士顿(Boston),马萨诸塞州
房价中位数:约1003250美元
所需负担年薪:约200650美元
生活设施:拥有全球高级的医疗、购物和餐饮设施,基础设施完善,交通便利。
教育资源:是全球头部大学的聚集地,包括哈佛大学、麻省理工学院(MIT)等。
产业优势:在生物医药、技术、教育和金融领域有着强大的产业优势。
5.华盛顿特区(Washington, D.C.)
房价中位数:约593300
所需负担年薪:约148570
生活设施:拥有高标准的医疗设施、丰富的购物中心和餐饮文化。城市的公共交通系统较为便捷。
教育资源:有许多高级大学,如乔治城大学、乔治华盛顿大学等。
产业优势:作为美国的政治中心,拥有众多政府和公共政策相关机构。
6.圣何塞(San Jose),加州
房价中位数:约1626041美元
所需负担年薪:约323153美元
生活设施:位于硅谷心脏地带,拥有世界一流的医疗、购物和餐饮设施。交通便利,基础设施完善。
教育资源:靠近斯坦福大学和加州大学伯克利分校等世界高级学府,公立学校系统也提供优秀的教育质量。
产业优势:作为全球科技创新中心,圣何塞汇聚了大量科技公司和创业环境,是科技工程师和创业者的首选之地。
7.曼哈顿(Manhattan),纽约州
房价中位数:约936000美元
所需负担年薪:约190000美元
生活设施:拥有一流的医疗设施、购物中心以及高端餐饮场所。城市基础设施完善,公共交通系统发达。
教育资源:拥有世界的高等教育机构,如哥伦比亚大学、纽约大学等。
产业优势:是全球金融、科技、文化和艺术的中心。
8.布鲁克林(Brooklyn),纽约州
房价中位数:约836000美元
所需负担年薪:约170000美元
生活设施:提供高质量的生活设施,拥有多样化的购物中心、高端餐厅和现代化的公共交通系统。
教育资源:有多所优质的公立和私立学校,并且靠近哥伦比亚大学等世界高级教育资源。
产业优势:是纽约市的重要商业和文化中心,近年来科技和创意产业蓬勃发展。
9.奥兰治县(Orange County),加州
房价中位数:超过1000000美元
所需负担年薪:约250000美元
生活设施:拥有大量国际移民,特别是尔湾市,以高级学区、科技产业和高端居住环境闻名。
教育资源:有多个优质的公立和私立学校,并且靠近加州大学欧文分校等学府。
产业优势:是全球重要的科技和娱乐产业基地,尤其是在信息技术、电子制造和生物技术领域有着强大的产业优势。
10.火奴鲁鲁(Honolulu),夏威夷州
房价中位数:约607000美元
所需年收入:约121000美元
生活设施:拥有国际化的医疗服务、购物中心以及多个世界餐厅。岛屿的基础设施相对较好,交通便利。
教育资源:拥有夏威夷大学等高等学府,并且有多所优质的公立和私立学校。
产业优势:经济以旅游业为主,但农业和制造业也在其中占有一席之地。
在众多美国移民城市中,西雅图凭借其完善的生活设施、优越的教育资源和发达的高科技产业,脱颖而出。然而,西雅图的房产市场并没有像硅谷、纽约那样极度饱和,目前仍处房产洼地,房价相对适中。未来随着经济不断增长和高科技产业蓬勃发展,西雅图房价将持续上涨。对于有意移民定居美国和房产投资的高净值人群来说,西雅图无疑是理想选择,不仅能享受到高质量生活,房产市场更具备长期增值潜力。
其中西雅图First Light晨曦项目,作为西雅图核心滨水区的地标性豪宅公寓,其设计深度融合了西雅图的先锋精神与意大利手工美学,展现出高级建筑美学,兼具奢华配套设施,是当之无愧的美国热门房产投资项目。
First Light晨曦地理位置优越,步行5分钟即可到达亚马逊总部、派克市场和奢侈品购物中心,周边商业、娱乐、文化配套非常完善。高薪科技人才、移民家庭定居于此,可以享受到便捷的奢华生活和优越的工作环境。
该项目由北美高级开发商Westbank西岸集团携手国际建筑大师郑景明与玻璃艺术巨匠约翰・霍根匠心打造,建筑外立面采用创新的双层玻璃幕墙,极具现代感和艺术气息。内部装配了B&B Italia定制橱柜、三菱高速电梯、Miele高端家电套装、天然大理石铺装等奢华设施,业主可以享受到高级的生活体验。

每套公寓都配有先进的智能家居系统,全部使用全自动升降窗帘、超大阳台、专属停车场,满足住户对智能舒适生活的高标准需求。


作为全西雅图与太空针塔齐平的高奢住宅,First Light晨曦46至47层两层楼的健身房配备专业健身器材、共享厨房办派对、放映厅欣赏大片;47 层天际会所配备西海岸唯一的无边际泳池,270°环幕视野俯瞰城景,奢享巅峰生活;48层的空中秘密花园,提供极致的休闲和私享空间。更值得一提的是,大堂展出的价值百万美元意大利手工钢琴Fazioli,让业主在家中尽享音乐盛宴。



随着亚马逊、微软等全球科技巨头的扩张,周边房产需求持续旺盛。First Light晨曦作为西雅图唯一可以买卖的豪宅公寓项目,无海外买家限制,持有成本低,其升值空间和租金回报率非常可观,是移民定居和长期投资的优质选择。如果有移民美国、定居西雅图的打算,欢迎随时联系4001806286,西岸集团将为您提供最新的市场信息和专业的居住投资建议,帮助您做出明智的投资决策。

美国移民如何选择适合居住的城市?
移民美国在选择居住和投资城市时,除了考虑房价外,还应综合考虑以下因素:
生活成本:包括日常开销、交通费用等;
教育资源:是否有优质的学校和教育机构;
就业机会:所在城市的产业结构和就业市场;
生活质量:包括环境质量、治安状况等。
根据个人的需求和偏好,选择最适合自己的移民城市,将有助于提高生活质量和投资回报。
西雅图作为全球科技和教育重镇,经济增长势头强劲,房产市场升值潜力十分可观。First Light晨曦豪宅公寓作为西雅图市中心的标志性项目,地理位置独特、生活设施奢华、市场需求强劲,是全球高净值人群移民的首选。不论是寻求优质居住环境,还是追求稳健增值回报的投资者,西雅图及其房产市场不可忽视!