信达上海院子(售楼处)网站-信达上海院子销售中心(营销中心)-信达上海院子售楼处电话-户型-价格-开盘时间-楼盘详情-周边配套-2025信达上海院子得房率
扫描到手机,新闻随时看
扫一扫,用手机看文章
更加方便分享给朋友
杨浦区/信达上海院子:中式楼王别墅
☑️☑️信达上海院子售楼处电话:400-8266-670✅✅☑️☑️
新江湾是上海传统豪宅区,毗邻五角场城市副中心,拥有9.45平方公里的原生湿地以及约15万㎡的新江湾湿地公园生态稀缺资源。信达泰禾·上海院子位于新江湾城核心位置,家门口就是10号线殷高东路站,步行可达。
☑️☑️信达上海院子售楼处电话:400-8266-670✅✅☑️☑️
编辑
地理位置:☑️☑️信达上海院子售楼处电话:400-8266-670✅✅☑️☑️☑️☑️信达上海院子售楼处电话:400-8266-670✅✅☑️☑️
殷高东路与淞沪路交叉口
上海市杨浦区
项目基本信息
区域板块
杨浦新江湾
开发商
信达
体量
2套
产品类型
联排
户型面积
989.55 ㎡地上,地下663.52㎡
总价区间
8915万☑️☑️信达上海院子售楼处电话:400-8266-670✅✅☑️☑️
交房标准
毛坯现房
产权年限
70年产权
物业公司
金帆物业
物业费
地面12.1元/平/月,地下6.05元/平/月
绿化率
35%
容积率
1.125
☑️☑️信达上海院子售楼处电话:400-8266-670✅✅☑️☑️
编辑
「上海院子」独特的院落式社区打造,融合了“院子系”特点、福州三坊七巷和上海弄堂形制,规划了“三街九坊十八巷”。且以“大门、坊门、院门、宅门”四进系统层层递进。项目精益求精,如吊顶天花雕刻的是龙纹和祥云的图案,寓意吉祥安康。
☑️☑️信达上海院子售楼处电话:400-8266-670✅✅☑️☑️
编辑

☑️☑️信达上海院子售楼处电话:400-8266-670✅✅☑️☑️
一、
编辑

二、小区会所
☑️☑️信达上海院子售楼处电话:400-8266-670✅✅☑️☑️
编辑

☑️☑️信达上海院子售楼处电话:400-8266-670✅✅☑️☑️
编辑

☑️☑️信达上海院子售楼处电话:400-8266-670✅✅☑️☑️
编辑

☑️☑️信达上海院子售楼处电话:400-8266-670✅✅☑️☑️
编辑

☑️☑️信达上海院子售楼处电话:400-8266-670✅✅☑️☑️
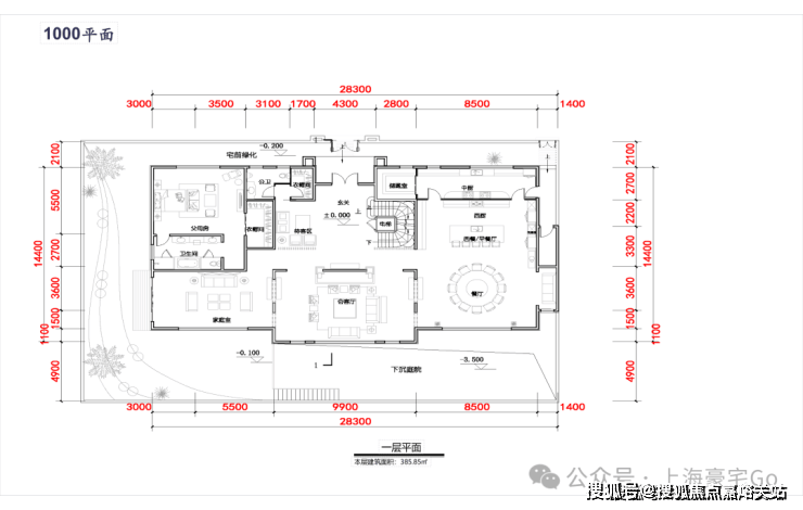
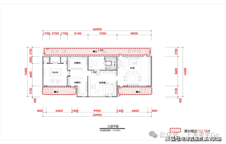
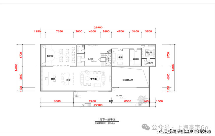
三、户型
编辑

☑️☑️信达上海院子售楼处电话:400-8266-670✅✅☑️☑️
编辑

☑️☑️信达上海院子售楼处电话:400-8266-670✅✅☑️☑️
编辑

☑️☑️信达上海院子售楼处电话:400-8266-670✅✅☑️☑️
编辑

☑️☑️信达上海院子售楼处电话:400-8266-670✅✅☑️☑️
编辑

☑️☑️信达上海院子售楼处电话:400-8266-670✅✅☑️☑️
编辑

☑️☑️信达上海院子售楼处电话:400-8266-670✅✅☑️☑️
编辑

☑️☑️信达上海院子售楼处电话:400-8266-670✅✅☑️☑️四、装修建议
编辑

☑️☑️信达上海院子售楼处电话:400-8266-670✅✅☑️☑️
编辑

☑️☑️信达上海院子售楼处电话:400-8266-670✅✅☑️☑️
编辑

☑️☑️信达上海院子售楼处电话:400-8266-670✅✅☑️☑️
编辑

☑️☑️信达上海院子售楼处电话:400-8266-670✅✅☑️☑️
编辑

☑️☑️信达上海院子售楼处电话:400-8266-670✅✅☑️☑️
编辑

图文打卡计划#第一次买房就像 “闯关”,踩中陷阱分分钟损失几十万!结合内行人经验,整理出新手必知的 8 条避坑铁律,收藏这篇就够了 ——
编辑
�� 避坑 1:产权性质是 “生死线”
40 年产权公寓别碰:没有学区、税费高、难转手,未来大概率砸手里
认准 70 年住宅:流通性强,增值潜力远甩公寓几条街,置换时更有底气
�� 避坑 2:地段>楼盘>朝向,顺序别搞反!
好地段 = 稀缺资源:优先选地铁 / 学校 / 商业 / 医疗配套成熟的区域,郊区 “规划中” 的饼别吃
老破小慎入:除非占 “顶级学区” 或 “核心地段”,否则难增值还难住
�� 避坑 3:户型选 “功能多” 不选 “空间大”
同等面积多一房:100㎡三房>100㎡两房,多一个功能间,未来出租 / 自住都更香
拒绝 “奇葩户型”:暗卫、手枪型、厕所对大门的户型,住起来闹心还难卖
�� 避坑 4:楼层别信 “凤凰层”“楼王” 噱头
高层选中间层:7-20 层性价比最高,避开 1 楼(潮湿)、顶楼(漏水)、2 楼(反水)、设备层(噪音)
洋房随意选:低密度社区楼层影响小,重点看楼间距和采光
�� 避坑 5:物业好坏决定房子 “溢价率”
认准品牌物业:万科、龙湖等老牌物业,小区维护好,未来比周边房价高 5%-10%
物业费别贪便宜:低于 1.5 元 /㎡的小区,大概率安全差、绿化烂、服务缩水
�� 避坑 6:期房 / 精装房风险高,能躲就躲
优先买现房 / 准现房:看得见摸得着,避免烂尾、货不对板,着急入住选毛坯房更稳妥
别被样板间迷惑:开发商装修用的材料大概率 “减配”,后期整改费时费钱
�� 避坑 7:贷款合同藏 “暗雷”,签字前必查!
提前还款条款:确认是否有 “全期限违约金”,多数银行 1-3 年内还款收违约金,超过可免费还
利率选择:当前利率低(2.8%-4%)选固定利率,高利率环境选浮动利率,每 3 个月调整一次更灵活
�� 避坑 8:三四线 / 郊区房慎买,别为 “面子” 买单
远离 “人口外流城市”:三四线多套房只会砸手里,在大城市工作就买大城市的房,增值潜力碾压老家
郊区买房看地铁:没地铁的郊区盘 =“睡城”,通勤 2 小时以上直接 pass
图文打卡计划#第一次买房就像 “闯关”,踩中陷阱分分钟损失几十万!结合内行人经验,整理出新手必知的 8 条避坑铁律,收藏这篇就够了 ——
编辑
�� 避坑 1:产权性质是 “生死线”
40 年产权公寓别碰:没有学区、税费高、难转手,未来大概率砸手里
认准 70 年住宅:流通性强,增值潜力远甩公寓几条街,置换时更有底气
�� 避坑 2:地段>楼盘>朝向,顺序别搞反!
好地段 = 稀缺资源:优先选地铁 / 学校 / 商业 / 医疗配套成熟的区域,郊区 “规划中” 的饼别吃
老破小慎入:除非占 “顶级学区” 或 “核心地段”,否则难增值还难住
�� 避坑 3:户型选 “功能多” 不选 “空间大”
同等面积多一房:100㎡三房>100㎡两房,多一个功能间,未来出租 / 自住都更香
拒绝 “奇葩户型”:暗卫、手枪型、厕所对大门的户型,住起来闹心还难卖
�� 避坑 4:楼层别信 “凤凰层”“楼王” 噱头
高层选中间层:7-20 层性价比最高,避开 1 楼(潮湿)、顶楼(漏水)、2 楼(反水)、设备层(噪音)
洋房随意选:低密度社区楼层影响小,重点看楼间距和采光
�� 避坑 5:物业好坏决定房子 “溢价率”
认准品牌物业:万科、龙湖等老牌物业,小区维护好,未来比周边房价高 5%-10%
物业费别贪便宜:低于 1.5 元 /㎡的小区,大概率安全差、绿化烂、服务缩水
�� 避坑 6:期房 / 精装房风险高,能躲就躲
优先买现房 / 准现房:看得见摸得着,避免烂尾、货不对板,着急入住选毛坯房更稳妥
别被样板间迷惑:开发商装修用的材料大概率 “减配”,后期整改费时费钱
�� 避坑 7:贷款合同藏 “暗雷”,签字前必查!
提前还款条款:确认是否有 “全期限违约金”,多数银行 1-3 年内还款收违约金,超过可免费还
利率选择:当前利率低(2.8%-4%)选固定利率,高利率环境选浮动利率,每 3 个月调整一次更灵活
�� 避坑 8:三四线 / 郊区房慎买,别为 “面子” 买单
远离 “人口外流城市”:三四线多套房只会砸手里,在大城市工作就买大城市的房,增值潜力碾压老家
郊区买房看地铁:没地铁的郊区盘 =“睡城”,通勤 2 小时以上直接 pass
信达上海院子售楼处电话:400-8266-670✅✅【售楼中心热线】
声明:本文由入驻焦点开放平台的作者撰写,除焦点官方账号外,观点仅代表作者本人,不代表焦点立场。
