楼处电话:400-9975-759
最新消息:莘庄纯新盘安高海印华庭,仲盛世界商场展厅已开放,预计11月开放样板房!将推建面约120/140㎡高层及170㎡叠墅产品。
最新效果图以及户型过程稿曝光!美学生活馆已开放接待!
安高·海印华庭售楼处电话:400-9975-759






安高·海印华庭售楼处电话:400-9975-759


项目位于闵行莘庄板块,步行到1号线、5号线、金山铁路莘庄站的距离大约在1.5km,步行到嘉闵线莘建路站(在建)大约在1.7km。

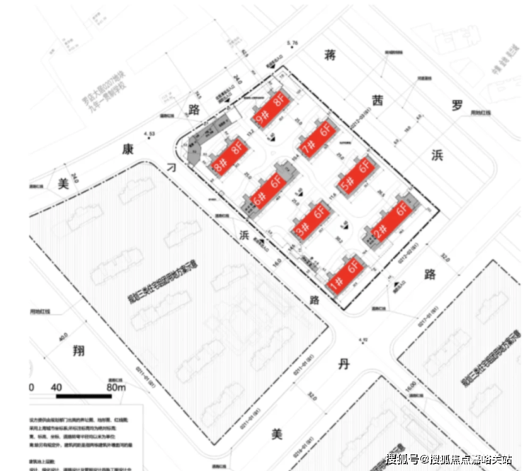
根据此前设计方案,项目拟建6幢17层高层住宅,以及6幢4层的多层住宅(大概率是叠加)。高层楼栋部分首层架空设计,社区内部有下沉庭院,人车分流,规格还是非常高的!
该地块是今年六批次土拍出让,安高当时以368870万元的总价,30%的溢价率拿下了莘庄06-05地块,成交楼板价56247元/平,装标4000元/平。
这也是今年闵行首个地王项目,未来有望刷新莘庄新房房价天花板!毕竟相比周边中企云启春申和海玥锦上4.8万/㎡的楼板价,这次安高项目时隔2年时间,涨了8000元/㎡!考虑到项目包含叠墅产品,未来单价破10万或许不是梦。

莘庄向来堪称上海外环“扛把子”板块,自驾出行有莘庄立交、轨交有1/5号线、市域铁路有金山线和在建的嘉闵线,四通八达,出行便捷,商圈也非常繁华,因为开发较早,所以近年来供应非常稀缺,上一次莘庄商务区的宅地用地已经是2023年4月的事了。
安高·海印华庭售楼处电话:400-9975-759
这个地块的惊喜之处在于教育资源。根据2025年闵行学区划分,地块周边的多个小区都对口了九年一贯制学校上海莘光中学!(注:学校的具体位置、开办时间、招生范围、入学条件等以教育主管部门当年的招生公告为准。)民间关于这所学校的口碑还是不错的,能算上二梯队,从升学重点率来看仅次于莘松中学。

地块占地面积约2.6万方,容积率2.5,总建面约6.5万方,限高60米;另外,需要建设2600㎡的社区配套含菜场(2000平方米)、日间照料中心(200平方米)老年活动室(200平方米)居委会(200平方米)。

安高·海印华庭售楼处电话:400-9975-759
上海楼市动态:上海官宣第九批次土拍;保利置业爱国路项目、建发美兰湖项目规划公示;金陵华庭、中信泰富外滩道、翡雲悦府、中海云邸玖章、尚园、上江南贤庐过会。
【土地】
1.上海官宣第九批次土拍!11月24日开槌
上海市土地市场网发布第九批次涉宅用地出让公告,共推出9宗地块,计划于11月24日组织现场交易。

这批地块覆盖杨浦(2 宗)、宝山(2 宗)、嘉定、奉贤、青浦(2 宗)及浦东等区域,总出让面积约 28.9 公顷,总建筑面积达 55.26 万平方米。
中铁建与象屿陆续在官网披露多宗住宅用地招标计划:象屿锁定浦东川沙PDP0-0706单元C05A-18地块;
中铁建则同步布局杨浦定海社区K8-03地块与宝山共康板块N120702单元B2-08双轨交地块。
【规划、产品】
1.保利置业爱国路项目规划公示
据官网显示,杨浦区定海路街道152街坊D1-7地块商品住宅项目建设工程规划设计方案公示。
据显示,杨浦定海社区D1-7地块拟建14-26层小高层&高层住宅。
2#楼为26层高层,3#楼为16层小高层,5#楼为14层小高层,6#楼为16层小高层,7#楼为26层高层;另有一栋保障性租赁住房。
全部楼栋底层局部架空,6#和7#楼一层、二层设置社区卫生服务点、物业配套等。
社区内部有下沉式庭院、景观架构等。

在10月举行的上海第八批次土拍中,杨浦定海社区D1-7地块,4家参与竞争,经过43轮竞价,溢价率达到了14.69%;
最终由保利置业以总价261620万拿下,成交楼板价69958元/平。
2.建发美兰湖项目规划设计方案已正式公示
项目涵盖4幅地块,容积率介于1.2-1.6之间,限高40-60米,将打造31栋4-17F住宅产品,整体规划为“洋房/小高层叠墅”的组合形态。

其中0216-03地块内,还配置了一块十二班幼儿园规划用地。
东侧两宗地块容积率为1.2,紧邻美兰西湖公园,生态优势得天独厚;西侧两宗地块容积率1.5-1.6,密度略高但仍处于舒适区间。
该项目由建发以底价竞得,起拍总价约23.23亿元,楼板价约21300元/㎡;扣除公租房面积后,实质楼板价约22421元/㎡。
【过会、网签】
1.上海近期将入市新房项目官宣,共6个新盘

据网上房地产公示,本次上市6个商品住房项目,共约7.66万平方米,合计393套。
主要分布浦东、黄浦、杨浦、闵行、奉贤 5个区域。
(1)前期去化99%,金陵华庭三期T2楼王已过会、均价20.6万/m²
金陵华庭三期T2楼王已过会!推出39套建面约370㎡收官大平层以及一套建面约730㎡顶层复式,过会均价20.6万/m²,相比上一批次涨价1000元/㎡。
最后批次加推的是T2西边户,建面约370㎡大平层&730㎡顶复,项目从视野、户型设计和装标各个维度,都足以匹配外滩顶豪的站位。
(2)120㎡一梯一户,中信泰富外滩道首开121套房源、均价13.85万/㎡
中信泰富外滩道待认购,首推121套约119-192㎡3-4房,已过会均价
13.85万/㎡。
项目首推地块,主力面积段为约190㎡以及120㎡两档,5号楼楼王则为约220㎡顶豪,以及少量约100㎡产品。户型之优越,几乎可以说是上海新建商品房品质的一次“断代式的飞跃”。
(3)娄山杰掌舵,翡雲悦府六批次官宣涨价9500元
翡雲悦府六批次产品位于一期社区内,建面约175-220㎡的叠墅产品,18#22#2幢共16套,已过会。
位于二期三批次7#8#建面约113㎡高层房源,已过会。均价11.37万元/㎡,相比上一批次涨价9500元/㎡。

二期的地块位于上园的南侧,同样有地下消防通道与九年一贯制学校相连,整体南向面宽比较大。从小区出入口步行到地铁站大概800多米的距离,属于地铁房的范畴。
(4)涨价6000元/㎡,中海云邸玖章压轴32套房源过会
中海·云邸玖章压轴楼王32套约148㎡4房已过会,均价12.6万/㎡,往期少量约104-148㎡3-4房,均价12万/m²,涨价6000元/㎡,总价1150万起。

在2024年四季度的土地出让中,中海分别拿下杨浦滨江三幅地块,三个地块相距不远,预计很快就会入市!
(4)一批次22天去化64%,尚园二批次再推36套别墅
全新别墅尚园二批次待认购!,36席建面约172-179㎡精装,过会均价61450元/m²。
项目一批次于10月12日,推出44套房源,截止到11月3日,已售28套,去化64%。

(4)前期去化75%,上江南贤庐三期涨价5255元/㎡
奉贤新城上江南贤庐三期已过会,即将认购,推出建面约162-280㎡三房四房,约4.49万/㎡,相比上一批次涨价5255元/㎡。
项目前期共推出220套房源,截止到11月3日,已售164套,去化75%。
