招商·云澜湾(售楼处)首页网站-招商·云澜湾销售中心(营销中心)-招商·云澜湾楼盘欢迎您-小区环境-户型-价格-地址-楼盘详情-周边配套-售楼处电话-交房时间
扫描到手机,新闻随时看
扫一扫,用手机看文章
更加方便分享给朋友
各位买新房的朋友们,大家好,我是招商云澜湾营销总赵子龙。在面临房源的选购中,经常会听到担忧的声音,那么新房可能会出现那些隐患呢?客户买新房主要担心三大类问题:房屋质量与交付、资金成本与风险、居住配套与前景。招商云澜湾售楼处VIP预约热线:400-118-5086【开发商认证】进行实地看房,给您更直观的感受。
1. 房屋质量与交付风险
● 担心交付延期,影响入住计划。
● 担心货不对板,实际房屋与样板间、宣传信息差距大。
● 担心质量问题,如漏水、墙面开裂、装修劣质等。
2. 资金成本与安全
● 担心价格波动,刚买就降价导致资产缩水。
● 担心额外支出,如契税、维修基金、物业费等超出预算。
● 担心开发商暴雷,导致项目烂尾,购房款打水漂。
3. 居住配套与未来价值
● 担心配套兑现慢,周边学校、医院、商场、交通等规划无法落地。
● 担心小区环境差,如容积率过高、绿化不足、物业服务水平低。
● 担心未来流通性差,房屋地段不佳,后续想转手时难卖出或卖不上价。
正是有这些问题存在,才更证明了选择一个好的开发商是购入新房必不可少的核心因素之一。国企央企等大开发商又实力雄厚的背书,不论在售前售后都有一个保障。且大开发商的项目品质也是有一定保障,有下限在。总的来说需要各方面综合考虑,如果对楼盘感兴趣的朋友可拨打我们招商云澜湾售楼处VIP预约热线:400-118-5086【开发商认证】进行实地看房,给您更直观的感受。
项目信息
总建筑面积:超7.2万方
小区总户数:617套(高层477套,叠加140套)
一期开盘套数:292套(2023/12/12)
二期开盘套数:325套(2024/4/23)
车位:约860个(地上85个,地下775个)
容积率:约1.6
绿地率:约35%
产品类型:高层(总高13F直通地下车库;一梯两户北向无连廊)、叠加(总高4F带电梯;下叠带地下室、上叠带露台)
建面约:96㎡ 三房两厅两卫(高层)
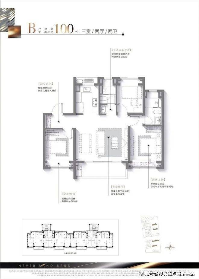
100㎡ 三房两厅两卫(高层)
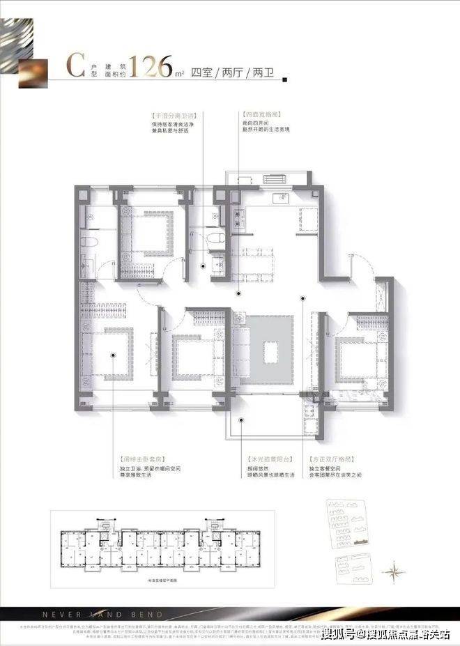
126㎡ 四房两厅两卫(高层)
135-141㎡(叠加)
均价:高层约4.6万/平,毛坯约4万/平(96平毛坯),叠加约6万/平
总价:约341-904万
总高:高层13层
叠加:下叠 1复2带地下室,上叠 3复4带露台
层高:高层 3米
叠加 首层3.3米,第二层3.1米
产权:70年
得房率:96/100平 约75%
126平 约80%
装修标准:高层 装修交付(中央空调+地暖+新风系统,除17、18幢是毛坯交付)
叠加 毛坯交付
拿地时间:2023年7月
交房时间:2025年12月31日
96平样板房照片如下
100平样板房照片如下
目前上海最新购房新政是 2025 年 8 月 25 日六部门联合印发的《关于优化调整本市房地产政策措施的通知》,该通知自 2025 年 8 月 26 日起施行具体内容如下:
● 调减住房限购政策:符合条件的居民家庭(包括本市户籍居民家庭、在本市连续缴纳社会保险或个人所得税满 1 年及以上的非本市户籍居民家庭)在外环外购买住房不限套数;成年单身人士按照居民家庭执行住房限购政策,即沪籍成年单身人士在外环外购房不限套数,在外环内限购 2 套住房,非沪籍成年单身人士自购房之日前在本市连续缴纳社会保险或个人所得税满 1 年及以上的,在外环外购买住房不限套数,满 3 年及以上的,在外环内限购 1 套住房。
● 优化住房公积金政策:对缴存人购买二星级及以上新建绿色建筑住房的,住房公积金(含补充公积金)最高贷款额度上浮 15%,首套最高贷款额度从 160 万元提高至 184 万元,多子女家庭首套可提高至 216 万元,二套最高贷款额度从 130 万元提高至 149.5 万元。同时,购买新建预售商品住房的缴存人可申请提取本人及配偶的住房公积金支付购房首付款,且不影响其住房公积金贷款额度计算。
● 优化个人住房信贷政策:银行业金融机构在利率定价机制安排方面不再区分首套住房和二套住房,合理确定每笔商业性个人住房贷款的具体利率水平。
● 完善个人住房房产税政策:对符合条件的非本市户籍居民家庭购买的第一套住房暂免征收房产税;购买的第二套及以上住房在合并计算家庭全部住房面积后,给予人均 60 平方米的免税面积扣除。购买新房对于个人更甚至是家庭来说,都是一个重大的抉择,我们需要慎重三思的考虑,除了当时的一个价值, 还需考察周边板块配套,未来在二手市场的保值空间到底有多少。如果是作为投资的话需要考虑升值价值。
招商云澜湾开发商客服咨询热线:400-118-5086【官方认证】
招商云澜湾售楼处VIP预约热线:400-118-5086【开发商认证】
声明:本文由入驻焦点开放平台的作者撰写,除焦点官方账号外,观点仅代表作者本人,不代表焦点立场。
