大家好,我是【尚湾林语】营销中心贵宾咨询热线:400-118-5086开发商营销总朱总,近期有很多朋友再评论区留言,现在这样大环境不好的情况下,上海新房新房是否还有入手的可能性,那么综合政策、市场价格、区域分化等多方面因素考量,对于刚需和改善型购房者来说,可能存在一定的入手机会,而投资客则需谨慎。【尚湾林语】售楼处VIP预约热线:400-118-5086
● 政策环境较为友好:
上海出台了一系列购房优惠政策,【尚湾林语】售楼处VIP预约热线:400-118-5086非沪籍外环外买房社保要求从 3 年降至 1 年,有居住证且积分达标,缴满 3 年社保可享沪籍待遇。首套房首付比例最低 15%,二套房在嘉定、青浦等区域最低 20%。首套商贷利率最低 3.15%,公积金贷款利率为 2.85%,处于历史低位,贷款成本降低。多子女家庭可多买 1 套,公积金贷款额度最高达 192 万,置换房子还能拿 3 万补贴,这些政策降低了购房门槛和成本,为购房者提供了有利条件。
● 市场价格整体稳定且区域分化:
根据幸福里数据,【尚湾林语】售楼处VIP预约热线:400-118-50862025 年 10 月上海新房全城均价为 58529 元 / 平,环比波动 - 0.32%,价格整体较为稳定。但区域分化明显,普陀新房价格环比上涨 18.77%,宝山上涨 0.80%,而长宁下降 28.04%,崇明下降 23.70%。核心区如黄浦、徐汇、静安等土地供应稀缺,房价较高且相对稳定,部分豪宅项目价格突破 15 万元 /㎡;远郊板块如奉贤、金山等供应过剩,房价承压,部分项目单价较低。
● 市场供需情况有差异:
2025 年前三季度上海新房市场呈现先抑后扬态势,【尚湾林语】售楼处VIP预约热线:400-118-50868 月下旬新政落地后,9 月供应量环比激增 75%,成交套数环比上升 33%,市场复苏迹象显著。但不同区域表现分化明显,内中环区域凭借成熟配套吸引高端客群,去化情况较好;而外环外板块则依靠价格优势成为刚需选择,但部分远郊区域库存去化周期超过 18 个月,市场存在一定库存压力。
● 产品品质有望提升:
“好房子” 政策的推行,【尚湾林语】售楼处VIP预约热线:400-118-5086使得开发商有动力去提升社区配套规模、外立面品质,以及大幅度提升得房率。根据北京的现行政策来计算,理论上可以提升 10%-40% 得房率,未来上海新房的产品品质和性价比可能会有所提高。
对于刚需购房者来说,【尚湾林语】售楼处VIP预约热线:400-118-5086当前政策宽松、利率较低,且部分外环外区域有适合的房源,若有购房需求,可抓住时机入手。对于改善型购房者,可关注浦东金色中环、大宁等潜力板块的低密社区,以及核心区的优质项目。
重要的是,项目摒弃了利润更高的高低配,打造了全小高层社区,就是为了让户户皆有景、视野plus:
最新消息,尚湾林语 500万级“卷王”!得房率80-83%百平“真三房”!「尚湾林语」三期正在热销中,单价约5.3万/㎡起!
作为上海新房成交的绝对主力总价段,购房者们对500万级的新房可谓是喜忧参半。
原因很简单:
目前上海总价500万级的新盘,普遍都存在“偏科”现象。
要么地铁在建需要等待,要么城市界面和居住环境略差,要么周边商业、教育、生态等城市资源不齐全,要么与地铁站步行距离过远,要么地段能级不够…
基于上述种种原因,500万级预算在上海很难挑到尽善尽美的新盘。 但凡有个相对完美的楼盘出现,必将受全市同预算购房者追捧,比如:理想之地。但是,红盘售罄已成过往,我们只能寻找下一个具备红盘基因的项目。
下一个500万级单盘主义:尚湾林语
尚湾林语,将公园及天然水系引入社区,打造了上海前所未见的约 180万方生态滨水TOD!
这座综合体有三大亮点:
第一,这座约180万方的综合体中,住宅仅占比约10%, 90%的均是配套,下楼即享受百万方的配套,在上海可能也只有市区千万级以上的豪宅才能做到了。
第二,上海目前只有两座体量达到约180万方的综合体,一座是尚湾林语,另外一座则是内中环卖约17万/㎡+的徐汇滨江金融西岸。
第三,这座综合体拥有约 86万方自然生态景观,其中四季花海已做出约100亩示范段,这样的生态资源在上海主城区十分稀缺且昂贵。
闵行主城 5号线正地铁盘
大零湾C位 约180万方大城巨制
「尚湾林语」
推约81-130㎡的2-4房
均价6.05万/㎡
低密社区+高得房率+轻奢精装
总价约400万起上车大零湾
感兴趣的小伙伴下方可预约咨询

项目价格劲爆!简直卷出天际!
单价5.3万/㎡起(还有优惠哦!)买 得房率约80-83%3房,约 100㎡户型享约110㎡居住体验
所推楼栋中间楼层(百平米)优惠下来单价仅约 5.7万/㎡,比周边竞品同楼层便宜3000-13000元/㎡。
按中间楼层,以及实际约110㎡体验计算,项目100㎡户型实际单价就在5万/㎡左右!性价比爆棚,买入之后安全垫也很高!
尚湾林语全新实景示范区&城市生活馆已开放!项目正在火热销售中!
根据一房一价,这批房源整体约5.3万/㎡起,叠加优惠,实际约5.1万/㎡起,这个价格在单价日益高企的闵行几乎绝迹了,堪称捡漏价。

最新一房一价表:

上期一房一价表:
一房一价

等待官方销售团队与您联系
感谢配合!
01.
推售信息
尚湾林语加推建面约100-149㎡3-4房,均价6.1万/㎡!
单价5.3万/㎡起(还有优惠哦!)买 得房率约80-83%3房,约 100㎡户型享约110㎡居住体验
所推楼栋中间楼层(百平米)优惠下来单价仅约 5.7万/㎡,比周边竞品同楼层便宜3000-13000元/㎡。
按中间楼层,以及实际约110㎡体验计算,项目100㎡户型实际单价就在5万/㎡左右!性价比爆棚,买入之后安全垫也很高!
全套户型图如下:
「约81㎡ 2房2厅1卫」


「约93㎡ 3房2厅1卫」



首先,上海目前市面上约89-93㎡的3房产品都被称为紧凑型3房,也就是一间主卧+2间小房间。小房间的功能性稍差,尤其对于正常得房率在75%及以下的户型来说,可能放张床都有些吃力。
但超高的得房率为尚湾林语的约93㎡户型带来了正3房的格局, 主卧+次卧的尺度感都非常不错。即使是书房也有不错的空间,未来打造一个儿童房也绰绰有余。


这是真正能保证接下来数十年生活所需的500万级3房产品。
其次, LDBK一体化的客餐厅+U型厨房+能容纳4人餐桌的餐厅

近期看了很多只能放下一张两人餐桌或是吧台的餐厅,以此来达到让客餐厅空间尺度感变大的产品。
再来看尚湾林语约93㎡的样板间,对比感很强烈。

项目整个公区视野开阔、尺度阔绰,足以彰显业主的非凡气度!同时也能容纳一家人更多的生活想象。
在这个面积段, 尚湾林语高得房率带来的实用性、尺度感、性价比,没有对手。
建面约101㎡3房2厅2卫
该户型拥有主卧套房+双卫生间,客卫合理的干湿分区,可避免早晚洗漱高峰排队的尴尬。

建面约100㎡3房2厅2卫
该户型三开间朝南,自带超广角镜头感。三起居室满足家庭生活各种功能需求的同时还不显得局促,舒适度超高。

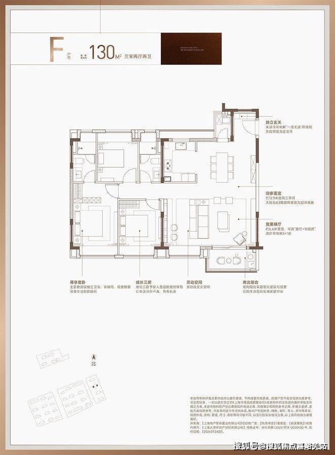
建面约130㎡3房2厅2卫
四开间朝南的设计,可以让阳光充分洒入室内,营造出明亮舒适的居住环境。
3卧室+2卫生间+横厅,均预留大面积飘窗,让室内奢阔尺度进一步延伸。
值得一提的是,这个户型设计充分考虑了现代家庭的居住需求,既满足了家庭成员之间的亲密互动,又保证了每个人的私人空间,而且还可以根据不同家庭的居住需求,将其宽敞舒适且灵活多变的横厅,设计不同的空间功能布局。

建面约149㎡4房2厅3卫
四房南向双套卧舒适性不言而喻,9-10层的滨水平层,占位社区水景资源,且是颛桥板块供应稀缺的150㎡段改善户型,可谓稀缺中的稀缺!

装修档次媲美市区10万+项目!
尚湾林语500万级三房, 均使用国内外一线品牌。
在使用频次很高的卫生间、厨房,皆为高配,保证了业主后期的使用体验感。
卫浴使用了 唯宝、高仪品牌;
厨房配备 西门子燃气灶/油烟机/洗碗机三件套,橱柜是威乃达的。
中央空调是 日立的,还配备 威能地暖及热水器;
特别是唯宝、高仪,市中心高端住宅才有的配置如今400万级就能拥有。

02.
基本信息
尚湾林语由本地国企上海地产集团旗下全资子公司上海房地(集团)有限公司承建并参与开发。除了国企背书之外,尚湾林语还是一个总规模约180万方的超级综合体,但仅有不到10%为可售住宅项目!其余几乎都是商业、教育、生态景观配套。便利度远远甩开传统做单地块开发的新盘。

80万方大城内生态用地(约86万方)与自然水系(约15万方)占到总体量的一半以上!此外还规划了约21.5万方的商办。涵盖开放商街、邻里中心、商业综合等多重业态,进一步将便利商业延伸到家门口。更有3万方的活力文体中心配置,满足运动、亲子、娱乐、休闲等日常需求。

首期4幅住宅地块将打造成依水而居的住宅场景,形成现代简约的人文社区。

尚湾林语体量约180万方自然城市融合体,俨然一座“微缩城市”, 约21.5万方开放摩登商办,涵盖开放商街、邻里中心、生态办公、人才公寓等。
这座超级综合体,内部规划 自然秘境+水系,总体量高达约101万方相当于世纪公园的七分之五(总体量约140万方)!更是远超闵行目前体量最大的闵行体育公园(总体量约84万方)!
这样的低密生态,全市少有;与之相反,尚湾林语可售 住宅只占约10%!住在这里,真正宛如置身公园,人均绿化占有率非同一般。

那光是项目本身所带来的生活,就已流光溢彩。想要逛吃休闲,楼下就能shopping;怕上班通勤时间长,可以把office直接搬到隔壁楼。 特别是精致商业氛围,对周边人口及消费的吸附能力非常强。
尚湾林语,花园生态办公和菁英人才公寓相生共融,将共同构成南上海原生态花园型商务区。这就是城市融合体和单一住宅质的区别,莘庄TODTOWN天荟价值立外环之巅,背后就是复合业态的支撑。
还有城市都心难寻的约86万方自然秘境,集游憩休闲、自然研习、趣味采摘、有机食养、科普教育等于一体。

换句话说整个尚湾林语将近一半都是自然秘境,那住宅简直就是无界镶嵌在自然环境中。与单一堆砌豪华的城市综合体不同,尚湾林语大隐隐于市,于城市之心,享一隅宁静,自然城市融合体更稀缺,意境也更高。
项目超脱了物质层面,给业主带来了更多自然、隐逸的精神享受,不管带孩子去果园采摘,还是释放996的压力,这片秘境都能让居者寻得真正属于内心的平静感。

自然、隐逸内心的平静,这是同质化激烈竞争下上海绝大多数新盘所不具备的,也是项目的价值护城河!
约15万方天然水域重构滨水生活想象沿天然水系河道规划滨河绿廊、活力水岸、休闲水岸、风景河岸等。

约3万方活力文体中心,你可以随时和家人、老友、工作伙伴开启一场酣畅淋漓的运动之旅。

项目住宅占比很低,仅不到整盘体量的10%,而剩下的全是配套!以10%住宅享90%的配套,该有多幸福!未来下楼既有商办、教育、文体等配套,时髦又便利;
同时又有绿色生态景观农业、滨河绿廊等,可一键切换到宁静、平和、私谧!繁华与静谧共融!
不仅是大环境的精彩纷呈,在品质层面,尚湾林语也给购房者带来了一个“物超所值”的高诚意作品,重新定义板块人居体验!
更低的居住密度:纵观近两年颛桥新盘,要么2.5容积率清一色高层;要么2.0容积率做高低配,高层占地被别墅挤压。它们共同点在于高层居住密度高,没有改善置业应有的舒适度!
而尚湾林语容积率只有1.6-1.8,即便放眼整个闵行新房,这也是更低的存在。意味着更低的人口密度、更少的建筑排布、更多的绿化景观。

①.更低的楼层+更宽的楼间距,据悉首开楼栋栋距达约38米,采光优异;
②.垂直空间住户更少,隐私性更好,等电梯的困扰也少;
③.“亲地性”强,特别是紧邻河畔的滨水平层只有9-10层,可近享花草树木探入窗台的惬意,眼前就是四季变幻,与住叠加的感觉十分相近。

更均好的楼栋:
项目所有楼栋几乎实现三面甚至四面景观环绕,坐拥揽园望林观水视野,每一栋景观价值都颇高。

景观充满“社交、亲子、温情”元素,直击年轻人内心:
据悉,景观布局有风森会客厅、阳光草坪、林荫步道、能量花园、萌宠乐园,环形慢跑道等多重节点。

这既为高知人群提供了互相认识、交流的平台,也调节了上海快节奏的生活状态,N多与景观相处的方式,绿植葱茏遮盖,移步异景,有一种回家即微度假的感觉。

项目一期到五期目前是同步开工,据了解未来也将会同步交付,届时180万方大城配套也将基本实现全部交付运营,相当于为产品兑现上了三层保险。
尚林湾语首批次将推出19-01地块,整体容积率仅约1.6-1.8,基本都是9-14层的小高层。

尚湾林语舍弃了追求利润的高低配,打造了这样一个低容积率的全小高层社区。这样的设计确保了足够的楼间距,首开的这批房源,楼间距最大达到了38米,即满足了采光,也开阔了视野。

有了足够的社区空间,才能打造出极致的园林。社区由景观轴和生活轴构成了一个“十字轴线”,布局多元组团。

一条天然河道从小区穿过,构成约15万方的天然水域,打造未来理想水岸。多数住宅都实现三面至四面景观环绕,坐拥揽园望林观水视野。

尚湾林语 性价比在闵行是炸裂存在!
项目目前在售房源总价400万起!
尚湾林语 是打算置业在闵行,预算在400-600万客群的必看新盘!

03.
规划信息
作为闵行发展的核心产业带,大零号湾的规划,对区域的发展,具有长效的推动作用,而位于大零号湾C位的【尚湾林语】,不仅拥有产业加持,更拥有2035规划/一江一河战略规划/ 浦江第一湾的利好BUFF叠加,更是在主城片区同频国家战略的区域,在发展的能级和战略地位上,就不只领先其他区域一个身位。

根据2023年的上海城市规划, 尚湾林语所处的“大零号湾”定位为世界级科创湾区,整体规模达17平方公里!重点聚焦ai+生物医药、新型储能、超导技术、卫星通讯、工业机器人等细分领域,规划 到2035年形成万亿市值的高新技术企业集群!且截止2023年底入驻高新技术 企业已超600家,估值亿元以上企业超70家!(数据来源:上海发布)
实景图

根据最新方案显示,大零号湾作为上海3大首批未来产业先导区之一,将在2035年形成万亿市值的高新技术企业集群,辐射至周边约120平方公里的区域,常住人口规模将达约80.3万!(信息来源科创闵行)未来将与漕河泾、张江科学城共建上海迈向全球影响力科创中心!

除了产业规模优势,大零号湾的另一大优势在于强大的科创力量! 上海交大、华东师大两所“双一流”高校同时入驻!更有 航天、航空、船舶、核电等领域的10多所科研院所!以及 近200家国家级、市级研发机构!示意图

万亿级的规划、双985高校科研力量、数十万科技人才和高校师生!如此规模和水平的产业及人口导入,必将从产业到住宅乃至整个城市格局上为闵行、为浦西、为上海主城区带来 脱胎换骨的全方位改变!
▷▶自然资源唯一!主城区百万方生态资源!为了吸引高新技术人才的入驻,大零号湾对区域环境的重塑,也几乎是涅槃重生级的改造,仅超百万级的生态资源一项,在整个上海主城区,也是独一份的存在!效果图 规划全面升级中 仅供参考

百万级生态资源什么概念?闵行区最大的城市公园也不过几十万平米,而在整体规划的 180万方生态城中, 仅自然生态景观的体量就高达86万平方米!将打造集游憩休闲、自然研习、趣味采摘、有机食养、科普教育于一体的都心自然秘境!效果图 规划全面升级中 仅供参考

同时,更有 约15万平方米的天然水系!沿天然水系河道规划滨河绿廊、活力水岸、休闲水岸、风景河岸等,能够享受上海主城区已无法复现的绿水环抱诗意生活

项目自然生态景观实景图
目前,百万方生态及水景的规划中,已有超百亩的四季花海示范段开始对外展示,已然成为沪上新晋网红打卡地中的佼佼者!有兴趣的购房者,可以提前感受未来尚湾林语出门即享自然的独特体验!
交通配套:项目地块临近沪金高速申嘉湖高速,距离5号线剑川路站约1公里。
商业配套:项目周边有龙湖上海闵行天街、颛桥万达广场等。

教育方面:周边有闵行区马桥实验学校、闵行区北桥中学、银星小学等。

医疗方面:上海市第五人民医院、沪闵医院、闵行区中西医结合医院等。

闵行主城 5号线正地铁盘
大零湾C位 约180万方大城巨制
「尚湾林语」
推约81-130㎡的2-4房
均价6.05万/㎡
低密社区+高得房率+轻奢精装
总价约400万起上车大零湾
感兴趣的小伙伴下方可预约咨询
上海以下这些板块相对来说未来发展空间大,升值价值高,不论改善还是刚需都较为稳妥:【尚湾林语】售楼处VIP预约热线:400-118-5086
●核心区域及滨江板块
●陆家嘴:【尚湾林语】售楼处VIP预约热线:400-118-5086上海的核心地段,是上海国际金融中心的核心功能区,聚集了众多金融机构和跨国企业,如上海证券交易所、上海期货交易所等。其房产具有高租金回报率和资产保值增值的特点,二手房价格维持在 10 万 - 15 万元 / 平方米,虽然新房供应较少,但市场热度始终不减。
●徐汇滨江:【尚湾林语】售楼处VIP预约热线:400-118-5086是上海城市发展的重要战略区域,以文艺氛围和优质配套设施著称,同时聚焦 “全国人工智能高地”,大力发展数字经济和人工智能产业。区域内交通便利,地铁 7 号线和 12 号线交汇,新房项目一直备受追捧,积分要求相对较高,房价有较大的上涨潜力。
●杨浦滨江:【尚湾林语】售楼处VIP预约热线:400-118-5086作为滨江板块中的佼佼者,凭借其独特的地理位置和丰富的历史文化底蕴,吸引了大量购房者。近年来,该板块的新房项目屡获高分,美团、B 站等企业的入驻,以及超级合生汇的建设,使得杨浦滨江的高端改善房特别抢手,未来房价有望继续上涨。
●产业集聚板块
●张江科学城:【尚湾林语】售楼处VIP预约热线:400-118-5086是上海科技创新的重要基地,聚集了大量的高科技企业和研发机构,涵盖集成电路、人工智能、生物医药等领域。该区域的新房项目一直受到科技人才的青睐,随着张江科学城的进一步发展,房价有望持续上涨。
●漕河泾开发区:【尚湾林语】售楼处VIP预约热线:400-118-5086是国家级经济技术开发区、高新技术产业开发区和出口加工区,聚集了腾讯、微软、3M 等 2000 余家企业,园区就业人口超 25 万,平均年薪超 30 万元,高收入群体形成强劲购房需求,为房产价值提供了有力支撑。
●临港新片区:【尚湾林语】售楼处VIP预约热线:400-118-5086是国家级规划,政策能级高,发展迅速。其中 103 科创片区是临港主城区科创产业最集中的区域,中芯国际、中国电信超级算力中心等企业纷纷落户。目前房价相对较低,随着产业的发展和人口的流入,未来上涨空间较大。
●政策利好板块
●虹桥商务区(徐泾 / 赵巷):【尚湾林语】售楼处VIP预约热线:400-118-5086处于长三角经济圈的核心位置,是上海连接长三角的重要节点,涵盖了虹桥国际机场、虹桥火车站等重要交通设施。一系列优惠政策的出台,为其快速发展创造了有利条件,二手房市场活跃,价格相对稳定,保值能力较强。
●新杨思:【尚湾林语】售楼处VIP预约热线:400-118-5086在 2024 年的土拍中,地块以超过 40% 的溢价率成交,显示出房企对该区域的强烈看好。该板块有 3.5 公顷公园围着 40 万方商业,还有文化艺术业态,这种公园 + 商业的规划抗风险能力超强,未来房价有望大幅上涨。
●青浦新城:【尚湾林语】售楼处VIP预约热线:400-118-5086作为长三角一体化发展的重要节点,受益于 “长三角数字干线” 建设,华为研发中心、网易国际文创园等重大项目已经在此落地。示范区线的开通使得到中山公园仅需 25 分钟,交通便利性大大提升,目前二手房价格相对较低,具有一定的升值潜力。
欢迎大家致电案场售楼处进行预约看房,首访有优惠。【尚湾林语】售楼处VIP预约热线:400-118-5086