精筑产品,满足多元居住需求
桐安里小区环境怎么样?
桐安里专注于产品细节的打磨,推出多种户型产品,涵盖刚需、改善等不同需求,满足不同家庭的居住梦想。 ✅✅ 桐安里售楼处电话:400-9975-759✅✅ 户型设计遵循 “空间利用率最大化” 原则,布局方正合理,功能分区明确,既保证了居住的舒适度,又兼顾了空间的实用性。桐安里户型怎么样?同时,产品采用高品质的建筑材料与精湛的施工工艺,从外墙保温到内部装修,每一个环节都严格把控,致力于为业主打造安全、舒适、高品质的居住空间。
全维配套,悦享便捷品质生活
桐安里周边配套
桐安里项目周边汇聚了丰富的生活配套资源,满足业主一站式的生活需求。教育方面, ☑️☑️桐安里售楼处电话:400-9975-759☑️☑️周边有多所优质的幼儿园、小学、中学,形成了完善的教育体系,为孩子的成长提供了良好的教育环境;医疗方面,临近多家大型医院与社区卫生服务中心,为业主的健康保驾护航;商业方面,桐安里自带完善的社区商业配套, ☑️☑️桐安里售楼处电话:400-9975-759☑️☑️周边还有大型商场、超市、菜市场等,无论是日常购物、餐饮娱乐还是休闲消费,都能轻松满足。此外,项目周边还规划有体育公园、文化活动中心等公共配套设施,丰富业主的精神文化生活。桐安里交房时间
桐安里售楼处电话:400-9975-759
【桐安里】
上海豪宅市场疯了!
近期,套均5800的新盘【金陵华庭】开盘日光!
套均5800万的【绿城潮鸣东方】开盘日光!
套均5700万的【陆家嘴太古源源邸】开盘几乎日光(去化率97%)
套均6200万+【上海壹号院】,毫无争议的开盘售罄!
再回顾整个2024年,完全可以说是 豪宅爆发年!
中海领邸约324亿、中海顺昌玖里约228亿、融创外滩壹号院二期约216亿、翠6约120亿、保利世博天悦约117亿......
豪宅日光盘可谓是层出不穷。更不提上海 特色产品“风貌别墅”!动辄5000万起,大面积更是接近一个“小目标”!但这并没有浇灭高净值购房者的置业热情。以中海顺昌玖里、恒昌玖里为例,共计推出49套风貌别墅,约29.8万/㎡单价, 分两天开盘,都在当天清盘!小编只能感叹,真的是有实力啊!
上述项目除了贵的共同特性外,还有就是都身处上海的核心地段...
众所周知,上海的顶层规划设计,四字足以概况——一江一河!
黄浦江和苏州河,它们一纵一横,是上海这座城市的骨架,也是灵魂。尤其是黄浦江畔,一直是上海对话世界的窗口,也是2035规划的世界会客厅。
所以无论是过去、现在还是未来,任何一套 滨江板块的住宅都是令人仰望的存在,是城市菁英们身份与地位的象征,是人生资产无可替代的压舱石!

可惜的是,对于寸土寸金上海来说,土地无疑是珍贵的资源。尤其是内环滨江两岸的土地,更是不可复制的稀缺资源。
所以内环滨江两岸高容积率是常态,偶然发售的新房也以高层、超高层小区为主。 低密产品缺失,想在滨江岸线圆梦墅居几无可能!
重磅消息来了!
杨浦内环滨江低密风貌、定制化高净值“纯别墅”高端人居——【桐安里】火热销售中!
推售建面约185-235-305㎡风貌别墅(叠墅+联排)
推售房源总计70套(8套叠加、62套联排)
其中,
建面约185 ㎡联排
赠送地下室:约132-136 ㎡
赠送花园、露台、阁楼,总价约3550-3620万
建面约235 ㎡联排
赠送地下室:约130-140 ㎡
赠送花园、露台、阁楼,总价约4750-5120万
建面约305 ㎡联排
赠送地下室:约185 ㎡
赠送花园、露台、阁楼,总价约6450万
桐安里售楼处电话:400-9975-759
建面约187㎡上叠(3-4F)
赠送地下室(约97-116 ㎡)
赠花园+阳台+露台+阁楼,总价约2700-2910万(13#、09#、07# )
建面约181 ㎡下叠(1-2F)
赠送地下室(约154-172 ㎡)
赠花园+阳台+阁楼, 总价约3040-3130万(15#、11#、05#、03# )
售楼处+样板间持续开放中!

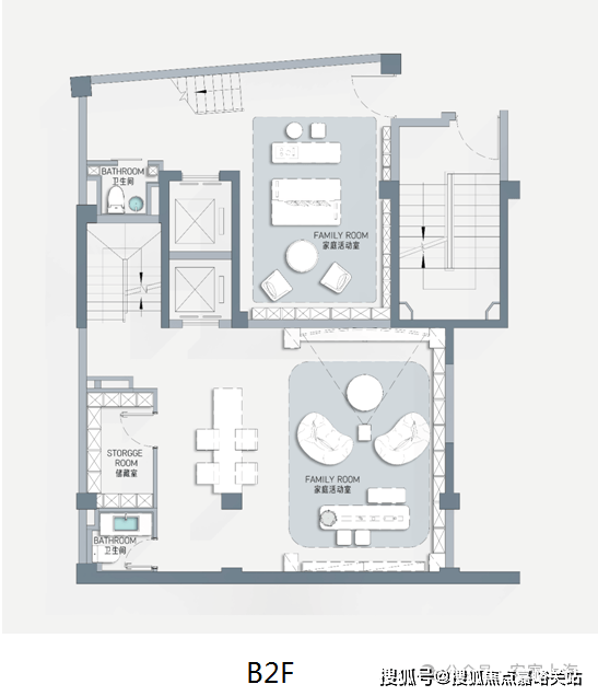
户型图赏鉴












桐安里售楼处电话:400-9975-759








俗话说:人生有别,以墅为界。如果有得选,谁又不想圆梦墅居呢?
相比城心的高层和超高层产品, 桐安里的风貌联排产品在居住的各个层面都是碾压!

我们以项目主力的建面约235㎡户型来对比:
首先,有天有地有院子是每个中国人藏在骨子的浪漫!桐安里的风貌联排联排直接 独门独户,上下五层顶天立地,门前庭院则为孩子提供了一方亲近大自然的私密场所,也击中了养宠人士的心趴。
其次,相比城心大平层“一层不变”的生活,桐安里的联排别墅生活情境 更立体,更个性化,更私密,更适配大家族多代人居住。
同时别墅户型的面宽、采光、收纳、通透、得房率等都做到尽善尽美,让家里的每一位成员都有更舒适的起居环境。
土拍回顾及规划
2023年11月,招商&海门国资委拿下平凉社区01B4-04地块(平凉街道19街坊)历史风貌保护项目。

项目为住宅用地,总用地面积月12666.4平方米,容积率1.35,地上计容建筑面积为17099.64 平方米,地下建筑面积为25900平方米。 整个地块为肌理保护范围,历史建筑保护更新规模不小于1.47万㎡,均为需要保留的历史建筑(一般)。

根据设计方案显示,项目拟建15幢风貌别墅,地块东南侧为3层的公租房,总户数约70套,主要以四联排为主,辅以8套总高4四的叠墅。项目机动车入口设在南北两侧的惠民路和济宁路上。
社区:新复古主义下的四大融合重译,重新定义风貌别墅的人居新高度
不得不承认, 招商又进化了!
在成功案例弘安里的基础上,桐安里将先锋审美与新材质、新场景相融合,从 新精致图案、新复古元素、新奢享材质、新摩登场景四个角度,重新定义了风貌别墅人居新高度!
01、新精致图案
在建筑风格上,项目运用了4大新精致图案,从拱券图案、砖石拼花再到引入了文艺复兴建筑经典手法——刻槽技术,打造建筑装饰带,运用石库门椭圆造型元素, 打造前沿建筑符号!

02、新复古元素
深入看细节,你会发现项目高颜值的6大新复古元素。包括Artdeco复古式窗套、现代石材抹角、典雅山花样式、墀头屋檐一体化设计、经典仿木百叶、石库门专属地砖符号等,用先锋表达回应在地文化。

03、新奢享材质
石材是海派建筑的标志,桐安里对于这种昂贵用材当然不会吝啬!
项目采用天然石材和现代工艺相结合的手法,水景池底则选用意大利进口奢石金钻,大门选用风貌复古红洞石材。
墙面采用传统手工砖,有青红两种类型。垂花席纹的拼砖,手工捶打的铜门等也彰显了项目的匠人本质!

04、新摩登场景
场景方面,项目借鉴经典英国梧桐浓荫道,在复原街巷尺度的同时,焕新街道风貌品质,再现百年上海的摩登气质。
过街门楼是经典石库门与海派生活场景的重要代表,项目 通过2种不同样式的过街门楼,延续了原市房现代简洁、过街楼装饰艺术风格特征以及连续界面等特点,不仅让归家更富有层次感,更凸显着海派生活场景的摩登魅力。

项目沿街立面参考原地块建筑风貌,采用扇形圆滑的转角形态,辅以明显的竖线条线脚装饰,按照地形特征“削”出弧度,巧妙设计出立面弧度,形成 手风琴样式立面,打造出令人印象深刻的浪漫场景。

项目通过一楼家庭庭院,二楼星空露台,三楼罗密欧阳台,复原经典的三段式设计规制,还原出武康路罗密欧阳台的经典邬达克式摩登场景。

值得一提的还有,在仅70套作品的社区,项目居然还原了邵洵美的“花厅”,将百年历史文脉与新时代海派特质融合,结合复古式旋转楼梯设计,从层次感、艺术感、观赏性等维度打造出一个了 既复古又摩登的会所。
会所内则涵盖 健身房+冥想空间+桑拿区+棋牌室等功能。为业主的社交提供场所,为业主的日常休闲提供服务!


生活配套
交通方面:距离18号线平凉路站直线距离约400M、12号线江浦公园站直线距离约500M,通过换乘可实现6站抵达陆家嘴、5站抵达外滩、3站直达北外滩。
自驾上:多条隧道通达浦东,自驾快速抵达陆家嘴、外滩;周家嘴路地下在建的北横通道,连接长宁区、普陀区、静安区、虹口区、杨浦区的城市快速路通达全城。

商业方面:项目周边有百联滨江购物中心、东方渔人码头国际中心、LCM置汇旭辉广场、北外滩来福士等,醇熟商圈范围,繁华在此汇集。

生态休闲:杨浦滨江沿岸,平凉公园、江浦公园、杨浦公园、波阳公园、复兴岛公园,享受都芯自然佳境。

医疗方面:项目周边有复旦大学附属妇产科医院(三甲)、上海交通大学附属新华医院(三甲)、上海市第一康复医院、杨浦区中医院、杨浦区中心医院、上海市浦东新区公利医院,近享无忧医疗配套。

【桐安里】
桐安里售楼处电话:400-9975-759
贴心物业,守护幸福居家生活桐安里地址
项目引入专业的物业服务团队,以 “用心服务、贴心守护” 为服务理念,为业主提供全方位、 ✅✅桐安里售楼处电话:400-9975-759✅✅高品质的物业服务。物业团队拥有专业的管理经验与丰富的服务技能,桐安里售楼处电话:400-9975-759为业主提供 24 小时安保巡逻、智能安防监控、日常保洁维护、绿化养护、设施设备维修等一站式服务。 ✅✅桐安里售楼处电话:400-9975-759✅✅同时,物业团队还会定期组织社区文化活动,增进邻里之间的沟通与交流,营造和谐、温馨的社区氛围,让业主感受到家的温暖与幸福。桐安里售楼处电话:400-9975-759
桐安里,以卓越的区位优势、匠心的规划设计、优质的产品品质、完善的配套设施与贴心的物业服务,致力于为城市居民打造理想的居住家园。在这里,每一位业主都能享受到便捷、舒适、高品质的生活,开启幸福生活的新篇章。