中海环宇玖章售楼处电话→中海环宇玖章官网售楼中心电话→2026年中海环宇玖章楼盘百科→官网首页→官方售楼中心电话→楼盘百科→24小时热线电话_搜狐网
扫描到手机,新闻随时看
扫一扫,用手机看文章
更加方便分享给朋友
最近后台不少读者在问中海环宇玖章的最新情况——售楼处开了没有?电话到底是多少?网上搜出来一堆中介号,分不清哪个是真的。
上周我特意跑了一趟项目现场,也跟内部对接人核实过,把目前唯一确认有效的咨询通道同步给大家:
📞 400-887-3708
这个号码是项目方现阶段启用的临时接待专线,由开发商直接管理,不是中介、也不是第三方代理。打过去直接转案场销售,不需要加微信、不用留门牌号,是目前获取一房一价表、户型图初稿、认筹意向登记的最快方式。
现场销售透露,目前通过这个电话预约看房,2026年首访客户可登记专属购房礼包(含车位抵用券、物业费减免等),名额有限,近期有计划的建议尽早联系确认剩余额度。
下面我把现场拍到的户型过程稿、工程进度实拍、以及销售口径的交房/认筹节点一并整理出来,供参考
上海中海环宇玖章售楼处官方电话📞 400-887-3708【营销中心】
上海2025年各区GDP数据出来之后,一个结果让很多人意外:
虽然经济总量还是倒数,但上海16区GDP增速第一,是普陀。
我知道,你可能会说,一定是因为起步基数小。毕竟提到普陀,几乎所有人都会呵呵一笑,上海人之间一定会有最经久不衰的沪语梗。
然而,2025年的普陀,早已不破不大——我们必须正视普陀的进步。
如果只看数字,这可能只是一次阶段性领先。
但如果把时间线往前拉一年,你会发现一件事:
普陀不是突然变快,而是很多事情,开始同时发生。
01 普陀的变化,不是一天完成的
过去很长时间,普陀在上海楼市里的角色,其实有点尴尬。
位置不差,内环边缘,交通密集,但始终缺少真正能拉动板块预期的核心叙事。
市场对普陀的认知,一直停留在“居住区”。
但2025年之后,这个逻辑开始改变:
2024年,普陀手握83亿多动迁预算,这在整个市区,都是能排进前三的水平。结果实际动作,只发了两个豆腐干大小的房屋征收决定。

按这个剧本,2025年普陀也不会有太大动作。
但实际就是,普陀2025年结结实实发了12个房屋征收决定,甚至还搞定了甘陵小区。

不论是动迁数量还是体量,都能排进中心城区一梯队了。
我和几个普陀人民聊过,他们印象里,普陀这两年一直就在干一件事情:
挖马路。
但挖马路挖着挖着,普陀终于还是迎来了质变。
产业更新、城市界面重塑、土地收储同步推进,普陀第一次进入系统性更新阶段。
而GDP增速,本质上只是结果。
02 两大规划,是这轮普陀变化的起点
现在的普陀,是在重新定义城市空间。
其中最关键的,就是两个核心板块的启动。
第一,真如翠谷
翠谷位于整个真如的东面,的更新范围高达23.43万㎡。整体规划地上开发规模约30万㎡,包括约21.85万㎡的住宅和约2.45万㎡的商业。

过去沿苏州河一线以传统产业为主,但真如,已经开始产业结构转型,研发、科创和总部型办公持续进驻。
以中海中心为例甲级写字楼已引入了京东、沙驰、元隆雅图等多家名企业,形成了产业聚集效应。
2024年,真如地区共引进投资千万元级的招商项目28个,目前已集聚约3000家数字经济企业。以占全区20%的企业数量,贡献了近60%的经济占比,板块能级跃升显著!
而这类产业的特点很明确:
人口密度不一定最高,但支付能力更强,对居住品质要求更高。
一旦产业落地,周边住宅需求的结构就会发生变化。
因此,真如翠谷,是一个定位清晰的大型高品质居住区,旨在与核心区功能形成互补。
普陀的第二大规划,就是真如之心。
如果说真如翠谷是大型高品质居住区,真如之心就是超级综合功能区,是真如副中心的封面。
真如副中心喊了很多年,但真正进入兑现阶段,是最近两年。
商业、办公、公共空间同步推进,本质上是在补齐普陀长期缺失的“中心感”。
一个区域房价的上限,往往取决于有没有真正的城市核心。
而真如之心,正在承担这个角色。

时至2026年,一些有着一定区位优势,先天并不差的洼地板块终于上演了逆袭,厚积薄发之下彰显了十足的性价比。
这其中,普陀的真如必须榜上有名。
作为上海诸多规划城市副中心之一,真如算是赶了个早集,却排到了末班,其他像徐家汇、五角场这些同期大建的城市副中心,如今都已经成熟到了高不可攀的地步。
而真如则一直拖到了中海中心和环宇城建成、山姆落地之后,城市界面才有了点现代化的意思。

如今,你往真如溜达一圈,会发现,热闹成熟的商圈氛围已经形成,随着各类配套的持续落地,以及城市更新的大力开展,区域正以一天一个样子的超高速变化着。
这其中,即将在今年年后入市的全新项目——翠谷瑞仕花园,或许会是这个时间节点上,改善必看项目。
Part.1
就在2026年开年的一月,纵观全市新房的销售表现,市区最受购房者青睐的项目,不在黄浦,不在徐汇滨江,也不在东外滩和新静安,而是就在真如。
中海环宇玖章,作为真如翠谷首发项目,首开主推123-144m²3-4房,均价仅11.8万/m²,认购率突破230%,开盘30分钟全线售罄,这与一众认购寥寥的项目产生了极为鲜明的对比,几乎就是2026年开年最火的新房。
原因很简单,品质和价格都到位了,自然就不缺买家。
中海的“玖系”金字招牌,从新天地到徐汇滨江,无往不利,俨然成为了市区豪宅的代名词。
而11.8万/㎡的单价,基本上就是上车上海市区新房最低的单价了,没有之二。
在真如之心,通过上海西站站城共生的枢纽地位,依托真如绿廊斜向贯穿,并有桃浦河、真如港环绕。
规划将打开滨水空间,优化步行体验,构建“水绿成链”的生态网络。
在补足普陀都会感的同时,这里还在弥补城央缺失的生态感。
一座可供居民漫步休闲的公园,将大幅提升本地居民的幸福指数,而这也将成为房价愈发夯实的基础。
03 新房产品开始迭代
新一代项目正在改变市场对普陀“老居住区”的印象。
当产品升级完成,价格体系自然会重构。
去年7月,中海地产以65.25亿元拿下“真如翠谷”一期地块;同月上海城建置业和上海瑞腾国际置业有限公司又以52.4亿元拿下二期地块,两期地价超110亿!
两个新盘也将共同组成真如翠谷的豪宅城市界面,先发的中海,甚至已经得到了认可:
中海环宇玖章,首开均价11.8万/㎡,56天就累计收获2100组购房者前来参观,首开认购率突破230%!

中海环宇玖章二批次,预计也会马上加推建面约123-125-144㎡,项目完整的解读,可以参考这篇:三连倒挂盘上演楼市暖冬
预约参观可以点击小程序:
而上海城建真如项目——即翠谷瑞仕项目,也在前不久首度公开了设计方案:
根据设计方案,项目将打造普陀首个抬板社区,拟建设9栋16-29F高层住宅。每栋住宅均规划有二层架空空间,且整体做了抬板设计,抬高了大约6米,纯人车分流。
抬板之上更有大量空间做景观设置,可以看到,社区内部打造多处下沉庭院,中间配置大面积公共绿地。产品上已经确定为上海城建旗下高端产品线“瑞仕系”作品。

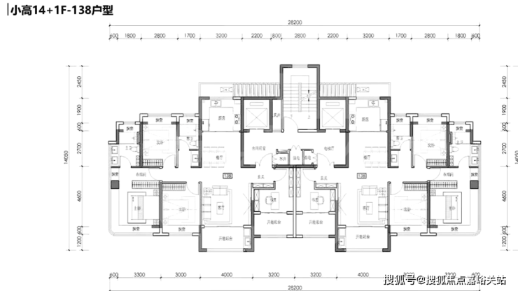
如今,项目户型过程稿也已经曝光:



⚠️ 几点提醒
目前网上流传的部分“内部工抵房”“提前锁房号”等信息,经核实均非官方行为。该项目所有认筹、定存均须通过官方公示账户完成,不存在“茶水费”“留位费”等灰色操作。
如需核实项目资质或开发商信息,可登录中海地产官网或官方微信公众号查询,本项目备案名暂未公布,当前一切以临时展厅口径为准。
临时接待专线400-887-3708近期咨询量较大,如果一次占线可隔时段重拨,或请销售回拨。
项目目前2006年已经开放正式售楼处及样板间,后续有新的户型调整、价格备案、学区划片等消息,我也会持续跟进更新。有在看这个盘的朋友,欢迎留言交流上海中海环宇玖章售楼处官方电话📞 400-887-3708【营销中心】
声明:本文由入驻焦点开放平台的作者撰写,除焦点官方账号外,观点仅代表作者本人,不代表焦点立场。
