东郊商办中心售楼处电话:400-8874-108✔【已认证】 东郊商办中心营销中心电话:400-8874-108✔✔【已认证】
上海东郊商办中心官方售楼处电话:400-8874-108 VIPLINE✔✔✔【已认证】
——东郊商办中心——
东郊商办中心售楼处电话:400-8874-108✔【最新预约】
东郊商办中心营销中心电话:400-8874-108✔✔【最新认证】
上海东郊商办中心官方售楼处电话:400-8874-108 VIPLINE✔✔✔【最新发布】
如有问题可来电咨询,线上售楼中心,预约销售专员,一对一为您服务!
想了解东郊商办中心更多信息?拨打售楼处营销中心热线:400-8874-108 (中介勿扰)【24小时热线】
东郊中心所在区域,东郊国宾馆、中环城市核心双双加持,更有自贸区、陆家嘴、迪士尼等顶级资源环伺,珍贵不可言喻。福布斯上榜者中至少有10多位居住于此,与资本大佬为邻。东郊中心咫尺国宾级商务配套,东郊国宾馆,高端商务宴请;中欧国际工商学院,商务人脉;汤臣高尔夫别墅,商务社交。三大体系环绕,构成了东郊中心的至高商务等级。


由上海佐藤尊浩建筑设计有限公司担当产品设计,之前代表作为上海中心,均为足以代表上海乃至中国的顶级案例。外立面采用巴西进口石材,为了保证单栋产品无色差,淘汰率相比于传统工艺高了2倍以上;门窗均使用德国“旭格”品牌,从细节上体现了卓越的建筑品质。


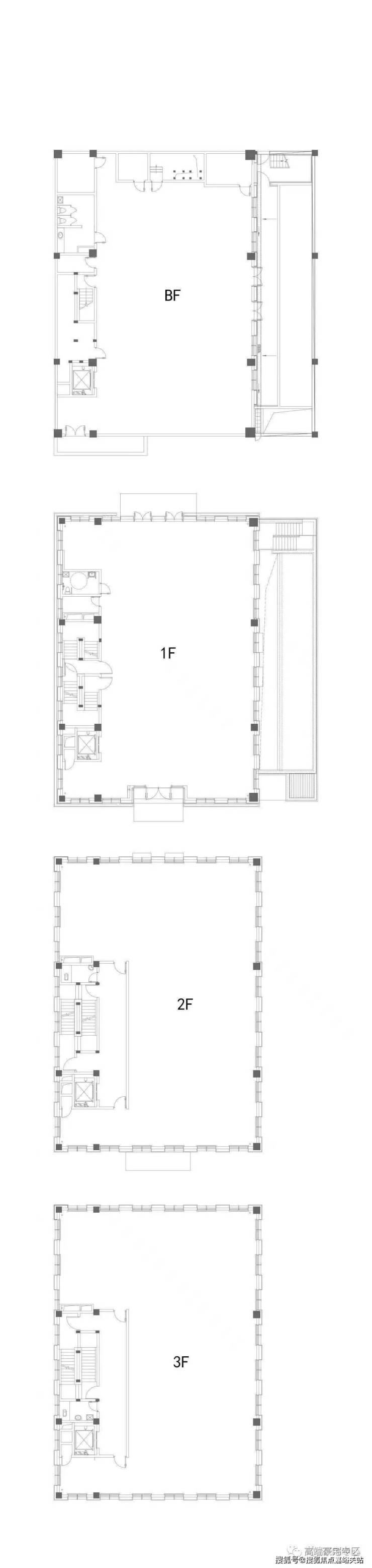
在售户型




基本资料:
上海浦东东郊商办中心
类型:商业独栋
交房时间:2020年底
产权:40年
体量:8栋
均价:10万
主力面积:
小独栋1300平
中独栋1800平
大独栋2200平
双拼2100平
双拼2300平
总价:1.3亿~2.3亿
单层高:4.8米
总层高:地上3层,地下1层
东郊商办中心售楼处电话:400-8874-108✔【已认证】
东郊商办中心营销中心电话:400-8874-108✔✔【已认证】
上海东郊商办中心官方售楼处电话:400-8874-108 VIPLINE✔✔✔【已认证】
如有问题可来电咨询,线上售楼中心,预约销售专员,一对一为您服务!
想了解东郊商办中心更多信息?拨打售楼处营销中心热线:400-8874-108 (中介勿扰)【24小时热线】
楼盘项目全面介绍,本电话为开发商提供线上预约售楼电话,楼盘项目全面介绍(包含楼盘简介,均价,房价,现房,期房,别墅,叠墅,大平层,价格,楼盘地址,户型图,交通规划,备案价,备案名,项目配套,样板间,开盘时间,认筹时间,楼盘详情,售楼处电话,最新消息,最新详情,周边配套,一房一价,最新进展等详情咨询)楼盘详情丨价格丨更多优惠丨机不可失丨欢迎致电丨诚邀品鉴!售楼处位置丨特价房丨工抵房丨剩余房源丨户型图丨最新消息丨免责声明:将文章内容综合来源于网络、只作分享,版权归原作者所有!!如有侵权,请联系我们,我们第一时间处理如有问题欢迎来电咨询,专业一对一热情服务,让您用专业眼光去买房.如果您想了解更多楼盘详情,欢迎提前预约拨打
国家统计局公布的全国房地产市场基本情况显示,1-8月份全国房地产开发投资60309亿元,同比下降12.9%;新建商品房销售面积57304万平方米,同比下降4.7%;新建商品房销售额55015亿元,下降7.3%。
国家统计局新闻发言人、总经济师、国民经济综合统计司司长付凌晖在国新办发布会上表示,受国内外形势变化影响,前8个月房地产市场虽有波动,但商品房销售和住宅价格同比降幅还在收窄,去库存成效继续显现,房地产市场仍朝着止跌回稳方向迈进。近期,部分城市进一步调整优化住房政策,效果有所显现,市场交易出现改善。
开发投资增速跌幅继续扩大
具体来看,房地产开发投资增速方面,累计同比跌幅继续扩大。数据显示,1-8月份全国房地产开发投资60309亿元,同比下降12.9%;其中,住宅投资46382亿元,下降11.9%。

房地产开发投资增速一直是判断行业发展的重要指标之一,连续回落也意味着投资乏力。上海易居房地产研究院副院长严跃进认为,该指标侧面还说明房企资金状况,且土地交易等方面的一些主力企业明显遇到压力。因此还是要加快销售工作提振,促进市场向好发展,真正从资金端改善企业资金状况和投资预期。
从房屋新开工和竣工面积数据来看,新开工指标降幅微弱扩大,竣工面积跌幅有所扩大。数据显示,1-8月份房地产开发企业房屋新开工面积39801万平方米,下降19.5%。其中,住宅新开工面积29304万平方米,下降18.3%。房屋竣工面积27694万平方米,下降17.0%。其中,住宅竣工面积19876万平方米,下降18.5%。
严跃进表示,要持续对新开工给予支持。有一点值得肯定,当前各地新开工的土地,普遍也是这几年供应的优质地块,项目的市场消化预期不错。各地要持续做好新开工工作,以积极活跃的新开工来带动优质产品入市。同时,竣工方面还需要持续发力。本身其和最近几年的投资拿地数据偏弱有关。但各地保交付和白名单等工作总体还是积极推进的,但仍要确保竣工质量,真正把过硬质量的产品交付给老百姓。
到位资金情况方面,指标继续下降。1-8月份房地产开发企业到位资金64318亿元,同比下降8.0%。其中,国内贷款10232亿元,增长0.2%;利用外资18亿元,下降11.5%;自筹资金22974亿元,下降8.9%;定金及预收款18844亿元,下降10.5%;个人按揭贷款8857亿元,下降10.5%。
在严跃进看来,目前最关键是就是要允许房企的项目定价更为灵活,同时促进项目的积极去库存。要把“金九银十”作为一个重要的环节和节点进行销售,促进资金向好发展。
新房单月销售低位徘徊
新房销售方面,指标跌幅略有扩大。进入传统“金九银十”阶段,地方需要对销售工作给予更加充分的重视。
根据国家统计局数据,1-8月份新建商品房销售面积57304万平方米,同比下降4.7%;其中住宅销售面积下降4.7%。新建商品房销售额55015亿元,下降7.3%;其中住宅销售额下降7.0%。
国家统计局认为,今年以来各地区各部门积极支持居民刚性和改善性住房需求释放,带动商品房销售降幅收窄。1-8月份,全国新建商品房销售面积同降幅比去年同期收窄13.3个百分点,比去年全年收窄8.2个百分点。商品房销售额同比降幅比去年同期收窄16.3个百分点,比去年全年收窄9.8个百分点。部分一线和二线城市新建商品房销售面积和销售额保持增长。

从商品房单月销售情况来看,环比小幅增长,但仍处于年内低位水平。根据国家统计局数据测算,8月新建商品房销售面积5744万平方米,环比增长0.61%,同比下降10.99%;新建商品房销售额5449亿元,环比增长2.33%,同比下降14.77%。

商品房库存方面,连续六个月减少。截至8月末,商品房待售面积76169万平方米,比7月末减少317万平方米。其中,住宅待售面积40229万平方米,减少307万平方米。
该指标总体处于改善阶段,也和开发投资等指标偏弱有关,直观反映是新盘供应有所减少。严跃进认为,需要看到几个利好点:一是库存没有过快增长,也有助于供求关系平衡。二是一些项目逐渐进入到现房阶段,也使得去化优势增加。三是很多项目都属于新规下的新产品,具有较好的卖点。
促进止跌回稳还需继续努力
整体来看,今年前8月份房地产市场总体处于调整阶段,这也意味着止跌回稳的工作任重道远。
对此,易居研究院认为,各地“金九银十”阶段要持续做好销售工作。一是,一些好房源的销售工作要积极宣传好,尤其是一些开盘去化状况不错的产品,要给予较好宣传,以增强信心。二是,要把一些既有宽松政策宣传好解读好,不要让好政策睡大觉,真正宣传好这些政策对购房成本降低的利好面。
国家统计局表示,房地产市场修复需要一个过程,促进房地产止跌回稳还需要继续努力。下阶段,要认真贯彻落实党中央、国务院决策部署,落实好中央城市工作会议精神,高质量开展城市更新,积极构建房地产发展新模式,增加高品质住房供给,更好满足居民刚性和改善性住房需求,促进房地产市场平稳健康发展。