国贸虹桥璟上 (售楼处) 官方网站 - 国贸虹桥璟上销售中心 - 环境 - 户型 - 价格 - 地址 - 楼盘详情 - 配套 - 电话 - 交房时间 - 配套 - 电话 - 交房时间
扫描到手机,新闻随时看
扫一扫,用手机看文章
更加方便分享给朋友

项目由两条天然水系穿流而过,形成了上海罕见的三座天然“岛屿社区”。
那每座“岛屿”就能更亲近水系。想象一下,以后整个小区碧水环绕、绿茵延绵,水景与绿化景观自然融合,所造就的是“慢生活”生活方式!

国贸地产上海第一个“上系”作品双水系、三座天然“岛屿社区”
大虹桥赵巷,国贸地产在“原系”之上进行了全面升级,打造了上其在上海第一个“上系”作品。
罕见双自然水系!一横一纵2条水系将项目地块一分为三,形成三座天然“岛屿社区”,这在市面上非常少见。


而这种天赋对应的是更宜居、更舒适的滨水慢生活。
居住方式是无价的!这种临水、亲近自然的生活方式,能更好调节上海快节甚至996的生活状态。

项目外立面设计上,立面利用大面积玻璃+阳台落地窗+金属型材+层间装饰提升建筑整体感和精致度,顶层外挑飘板使得建筑立面体块清晰,层次丰富。

外立面大面采用浅色仿石多彩漆,浅灰色金属格栅,浅灰色玻璃,香槟色金属型材收边形成。楼体顶部也是运用了香槟色铝板以及香槟色的铝格栅。整体几何立面非常具有秩序感。

丰富的景观功能性!
据悉,沿滨河岸线布置功能场地 , 打造更多的水岸生活场景;东地块的东侧还会打造一个约3万方的水岸公园,公园北角还将修建篮球场;另外社区内部还将打造泛会所架空层,功能上更全面满足业主日常活动需要。


在沿河水岸,国贸打造沿河客厅,可以日常会客。难得的是,社区内部还配置四大主题八大架空层泛会所,用于儿童阅读、青年运动、老年康养等。
另外,项目营造出了多层次、多元的生活方式,这意味着你住在这里生活会更便捷,同时从孩童到老人,都能找到各自的乐土。

比如,第一层:小孩子下楼就是架空层,可以和小朋友共同成长。据悉项目设置了8大架空层,聚焦儿童体验、社交阅读、青年运动、老年康养的全龄段社区休闲空间需求。第二层:国贸地产还代建了一座约1.8万方的滨河市政公园,在公园北角还将修建篮球场,以后在家门口就能逛公园,也能挥汗如雨。

第三层:项目其中一个地块自带约1300㎡底商,另一个地块内有约1800㎡菜场,相比现在大部分纯住宅的街区,生活方便太多。

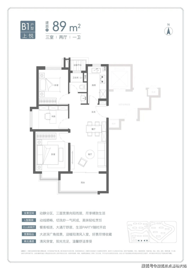
「国贸·赵巷项目」本次加推收官132套房源,两栋楼的位置非常好,被水系环绕,且非常接近地铁站!主力户型为建面约105㎡3房,以及建面约129㎡4房,均价56352元/㎡!

项目全套户型图如下:




罕见宽厅设计:约95%的宽厅设计出现在120㎡以上户型中,而项目在约105㎡面积段就做了宽厅,非常难得,这个户型进入二手房市场将极具竞争力。
宽厅面宽约5.5米,3.5开间面宽共约11.5米,再加上约8㎡的阳台,使得整个家庭的公共区域尺度感十足、功能也更加灵活多变。
全屋六处飘窗:常规户型一般全卧飘窗,一共3处。但项目竟然有6处飘窗,3个卧室和主卫、次卫都设有飘窗,拓展空间和采光效果优秀。
套房式主卧:主卧的面宽和进深都很充裕,为每一个生活场景预留了足够的空间。双面转角的衣帽间区域,非常实用。
还有一种是竖厅风格,经典的飞机户型,房间分列客餐厅两侧,互不干扰,各有各的隐私空间。
U型厨房、餐厅、客厅、阳台一线联通,南北通透。主卧套房、全卧飘窗、次卫干湿分离也都是标配。


项目由两条天然水系穿流而过,形成了上海罕见的三座天然“岛屿社区”。
那每座“岛屿”就能更亲近水系。想象一下,以后整个小区碧水环绕、绿茵延绵,水景与绿化景观自然融合,所造就的是“慢生活”生活方式!

国贸地产上海第一个“上系”作品双水系、三座天然“岛屿社区”
大虹桥赵巷,国贸地产在“原系”之上进行了全面升级,打造了上其在上海第一个“上系”作品。
罕见双自然水系!一横一纵2条水系将项目地块一分为三,形成三座天然“岛屿社区”,这在市面上非常少见。


而这种天赋对应的是更宜居、更舒适的滨水慢生活。
居住方式是无价的!这种临水、亲近自然的生活方式,能更好调节上海快节甚至996的生活状态。

项目外立面设计上,立面利用大面积玻璃+阳台落地窗+金属型材+层间装饰提升建筑整体感和精致度,顶层外挑飘板使得建筑立面体块清晰,层次丰富。

外立面大面采用浅色仿石多彩漆,浅灰色金属格栅,浅灰色玻璃,香槟色金属型材收边形成。楼体顶部也是运用了香槟色铝板以及香槟色的铝格栅。整体几何立面非常具有秩序感。

丰富的景观功能性!
据悉,沿滨河岸线布置功能场地 , 打造更多的水岸生活场景;东地块的东侧还会打造一个约3万方的水岸公园,公园北角还将修建篮球场;另外社区内部还将打造泛会所架空层,功能上更全面满足业主日常活动需要。


在沿河水岸,国贸打造沿河客厅,可以日常会客。难得的是,社区内部还配置四大主题八大架空层泛会所,用于儿童阅读、青年运动、老年康养等。
另外,项目营造出了多层次、多元的生活方式,这意味着你住在这里生活会更便捷,同时从孩童到老人,都能找到各自的乐土。

比如,第一层:小孩子下楼就是架空层,可以和小朋友共同成长。据悉项目设置了8大架空层,聚焦儿童体验、社交阅读、青年运动、老年康养的全龄段社区休闲空间需求。

第二层:国贸地产还代建了一座约1.8万方的滨河市政公园,在公园北角还将修建篮球场,以后在家门口就能逛公园,也能挥汗如雨。
第三层:项目其中一个地块自带约1300㎡底商,另一个地块内有约1800㎡菜场,相比现在大部分纯住宅的街区,生活方便太多。

青浦区2035规划形成”一城两翼“的空间结构;
值得注意的是,赵巷和徐泾一同被划入国际一流的现代服务业集聚区,并处于沪湖复合功能发展带上。
赵巷作为虹桥商务区三期与科创中心,未来将依托市西软件园、漕河泾赵巷科技绿洲、网易上海国际文创科技园等科创产业基地,构建长三角产业创新的“神经中枢”,打造上海下一个“张江”,区域发展潜力巨大。

根据青浦2035规划,“十三五”期间将建设上海市西软件信息园,核心区就选址赵巷。
这里承载着青浦乃至上海软件开发和新一代信息技术的产业功能,被定位为千亿级产业园区。
到2025年总建筑面积达到400万方,产值破1000亿,提供就业岗位15万。未来将有大量居住在虹桥枢纽、徐泾、甚至传统市中心的人来赵巷工作,带来持续的人流和资源。
据悉,市西软件园目前已有字节跳动(今日头条/抖音)、日本骊住亚太研发中心、商汤科技、术康医疗等众多科创龙头企业入驻。
近期又吸引了行业标杆型上市企业和全球总部,如科顺股份、欣巴科技等,同时还引入了数迅信息、奇科信息、博慈、璞石医疗科技等高新技术企业和软件信息类企业。(信息来源:绿色青浦官微)
东张江,西赵巷,绝对不是空穴来风。产业带动高端人口聚集,赵巷就是大虹桥里的”张江“。


国贸虹桥璟上售楼处电话:400-88 74-108✔【最新预约】⭐⭐⭐⭐⭐
国贸虹桥璟上营销中心电话:400-8874-10 8✔✔【最新认证】⭐⭐⭐⭐⭐
上海国贸虹桥璟上官方售楼处电话:400-8874-1 08 VIPLINE✔✔✔【最新发布】⭐⭐
如有问题可来电咨询,线上售楼中心,预约销售专员,一对一为您服务!
想了解国贸虹桥璟上更多信息?拨打售楼处营销中心热线:400-8874-108 (中介勿扰)【24小时热线】
楼盘项目全面介绍,本电话为开发商提供线上预约售楼电话,楼盘项目全面介绍(包含楼盘简介,均价,房价,现房,期房,别墅,叠墅,大平层,价格,楼盘地址,户型图,交通规划,备案价,备案名,项目配套,样板间,开盘时间,认筹时间,楼盘详情,售楼处电话,最新消息,最新详情,周边配套,一房一价,最新进展等详情咨询)楼盘详情丨价格丨更多优惠丨机不可失丨欢迎致电丨诚邀品鉴!售楼处位置丨特价房丨工抵房丨剩余房源丨户型图丨最新消息丨免责声明:将文章内容综合来源于网络、只作分享,版权归原作者所有!!如有侵权,请联系我们,我们第一时间处理如有问题欢迎来电咨询,专业一对一热情服务,让您用专业眼光去买房.如果您想了解更多楼盘详情,欢迎提前预约拨打
次活动发布了《2025房地产企业品牌价值测评研究报告》,这项由上海易居房地产研究院、克而瑞集团主办的测评研究工作,在中国房地产业协会的指导下,已经连续开展了15年。相关研究成果为房地产企业深化品牌战略提供了培育思路和价值范本,也为企业的品牌建设和完善提供了重要参考。
发布会上,来自各领先品牌的开发企业、服务商和供应商企业的优秀代表,以及业内专家、投研机构齐聚一堂,分别就“行业变局与品牌新坐标,品牌实战与方法论,轻资产时代的品牌价值再造”等话题展开了深入交流与探讨。
张其光:市场有积极变化迹象,止跌回稳需各方努力
中国房地产业协会副会长兼秘书长张其光表示,当前我国房地产市场正处于止跌回稳的艰难进程,但其中也有不少好的迹象。
比如,保交楼任务基本完成。这项工作最大限度地保证了对购房者的交付,维护了社会稳定大局。又如房价,特别是新房价格降幅在收窄,这是一个很好的迹象。此外,爆雷房企积极组织化债,境外债化解取得较大进展,以及新建商品住房的待售面积下降,这些在目前的市场环境下都是不容易的。
张其光认为,这些积极变化预示着房地产肯定会止跌回稳,只是目前还缺乏一个明显的趋势,这也需要政府部门、金融机构和房地产开发企业共同发力,尽快促使房地产市场止跌回稳。
而对房地产企业来说,特别是对品牌房企来说,需要发力的工作主要集中在三点:
第一,提升住宅品质。品牌企业要推动“好房子”热潮成为持续发展的潮流,要在住宅设计规范和“好房子”建设的指南的指导下,开发适应“好房子”安全、舒适、绿色、智慧的要求和具体的技术体系,并将其贯彻到企业管理的全流程。
第二,保持财务稳健。房企要想保持现金流稳定,就需要加快消化库存,开展多元经营业务。要改善现金流,就要求开发能力、开发规模和企业现金流要相适配,这样才能保证企业财务稳健经营的可持续。
第三,推进技术创新。科学技术对于房地产行业发展比任何一个时期都显得更加重要。目前来看,除政策优化之外,更主要的是要在材料、施工工艺和AI技术三个方面推动房地产领域的技术革命。
丁祖昱:品牌房企越来越注重长期主义

中国房地产业协会副会长、上海易居房地产研究院院长、克而瑞集团董事长丁祖昱表示,今天的房地产早就进入到了薄获利时代。不同与其它行业的卷,房地产这两年是把成本卷上去,价格尽量不变甚至有所下行。当然头部房企还是存在着超额收益,这中间就有品牌价值。不同品牌,超额收益是有差异的,企业之间增长的速度发生了很大的变化,强者更强的情况也比过去更加明显。
丁祖昱认为,未来的品牌趋势有以下几个方面:
首先,龙头房企多元化情况非常明显,不同赛道和开发一起成为这些龙头房企未来的重要蓝海,包括代建、物业管理服务、长租、经营性商业等。例如,中海、华润、龙湖、新城等企业,今年商业运营收入占比都在提升,非开发部分的营收持续上升,给企业双轮驱动提供了非常好的条件。
第二,品牌房企越来越注重长期主义。活下去,才能活得好。长期主义决定了这些房企愈发稳健,原先财务纪律是少数央企的内控标准,目前已经成为50强房企共同遵循的目标。持续稳健经营,对未来中国房地产进入到下一阶段平稳健康发展起到至关重要的作用。
第三,聚焦“好房子”。一方面政府相关主管部门在推进“好房子”的发展;另一方面,所有企业共同推动“好房子”不断建设。
此外,保交付工作还在持续推进中。品牌房企如今大多数的情况不是为了保交付,而是为了更好地交付,对服务的深度广度要求也越来越高,好的展示和好的交付才等于“好房子”。
最后一点,AI人工智能已经全面渗透到房地产行业和企业,为下一轮的发展插上翅膀,助力房企在止跌回稳的大趋势中,稳健运营越做越好。
郭镇:居民购房负担率已进入合理区间

广发证券房地产首席分析师郭镇表示,今年房地产市场一个变化就是购房负担率下降,从2021年的高点到97%,到去年年底54%,再到今年年中大概48%~49%水平,目前购房负担率进入了40~50%的合理区间。无论是新房市场还是二手房市场,都在回归一个相对偏常态化的过程。
郭镇认为,未来可以把房地产资产分成三类,三类市场的资产价格逻辑要分开去看。
第一类是新房,其价格跟着产品走,政府、企业都在不断给新房做加法,产品的获得感更强,甚至现在有些企业开始卷情绪价值,最近看盘看的体验也很好。
第二类是核心二手房,所谓核心二手房是它的功能性,其价格段会跟新房产生一定差异化,作为互相的补偿。这类核心二手房资产,它们的价格表现跟市场交易量走,每个城市也都有自己的荣枯线。
第三类是非核心二手资产,非核心二手资产价格因为过去过度供应,包括居民购买过程当中的一些非理性判断,保有量很大,它们肯定还会面临一定的价格压力。持有这类资产的人,越来越多的会进行资产置换,因此其抛售压力也在逐步增强。
未来,开发商越来越注重产品,消费者也开始不把房子当成一个普通的财产配置,而作为一个消费品去进行考虑和对待,整个产业重塑完成之后,行业的供应链指标,包括开工、拿地、投资等会变好,对于行业的贡献也会相应增长。
黄明忠:AI改变房地产物业行业的工作方式
钉钉商业副总裁、战略客户部总经理黄明忠表示,技术的变革是为了生产效率的提升。当前房地产行业销售放缓、周期拉长,AI技术有望在多个环节带来改变,推动“脑力效率”的提升,推动“人为机器在干活”向“机器为人干活”的新工作方式转变。
他举例称,在客服场景中,传统模式下需客服人员回访客户,而现在,通过训练 AI助理,让AI助理以更高质量完成应答。黄明忠透露,钉钉于今年8月发布“AI钉钉1.0”,旨在构建企业级AI平台,并重点推出面向销售场景的智能硬件,并发布了五大标准三大场,帮助销售员识别高意向客户、优化跟进行动。
AI可通过智能硬件增强销售感知能力,通过专业引擎还原客户真实需求,最终形成“手和脚”。AI不仅适用于房地产销售,还可拓展至物业等多个领域。黄明忠认为,AI技术未来将变成行业的加速电梯。
王文怀:与青年共未来与城市共新生
联发集团董事长王文怀表示,当前,国家“十四五”新型城镇化规划深入推进,“青年发展型城市”建设成为多地施政重点,2025年3月“好房子”首次写入政府工作报告,标志着住房需求从“有没有”向“好不好”而进阶。而城市高质量发展的核心,在于人才的集聚与留存——青年作为创新活力的源泉,其安居乐业直接决定城市的创新动能与未来潜力。
作为发源于厦门经济特区的42载国企,联发集团紧扣国家战略导向,将“新青年产品战略”深度对接城市人才需求:通过聚焦青年细分市场、打造专业化产品系,以“住有所居、居有所乐”的解决方案,为城市留住青年人才;以“买得起、住得好、有归属”的“好房子”标准,呼应国家民生导向,助力城市构建“青年与城市双向奔赴”的发展生态。这不仅是国企对国家战略的践行,更以“关注人才、服务产业”的逻辑,为城市高质量发展助力。
长期以来,青年安居需求因“利润空间有限、产品要求精细”,成为市场主流视野中的“薄弱地带”。伴随青年群体在精神追求、文化审美、功能满足上的变化,核心城市青年面临“父母省一辈子、子女供半辈子”的购房压力,以及中小户型稀缺、“买到的不好用”“社区无温度”等问题,既影响青年生活品质,更制约城市人才吸引力。联发集团主动扛起社会责任,以“优总价、高品质、强运营、智慧化”四大产品营造法则精准锚定痛点,在“市场性”与“社会公益性”间兼顾了平衡。
正如王文怀所说:“我们要做的不止是房子,更是社区;不仅是交付,更是生活。”联发正是带着这样的责任,从一个开发商进阶为新青年品牌挚友,深度链接社会资源与社区、社区与居者。
刘颖喆:资本市场仍然看好房地产前景

华发股份执行副总裁、华东大区董事长刘颖喆表示,现在市场都非常卷产品,各家企业都很有特色,做好产品的企业也非常多。目前整个资本市场对于房地产行业未来的前景其实还是看好的,投资方不只看财务报表,更多的是关心未来企业的核心竞争力,未来企业在做什么。
据刘颖喆介绍,华发股份是在华发集团的基础上发展的,华发集团现在最强的就是科技,机器人、无人机在楼盘中都已经有了,这个是探索和应用。同时华发现在也在探索康养,有些办公的物业其实位置和城市还是不错的,华发拿出一些进行康养的探索,发现收益率更高。
另外就是新能源,因为之前在新能源的投资上也非常大,新能源和一些文旅产业的应用,也是目前在探索的方向。
此外,公司的科技集团投了智元机器人,投了优必选,而且在珠海也落实了人形机器人落地生产基地,希望未来的2~3年能够实现第一代的人工机器人入户,这些其实都是在科技的支持下,目前在房地产项目的一些探索,当然现在还没有完全大规模推广,目前只是开始去探索和实践。
孟音:城市更新是未来代建行业主战场

克而瑞集团副总裁孟音表示,城市更新是未来代建行业的主战场,今年7月份中央城市工作会议和政治局会议都对城市更新有所提及,标志着未来市场会从增量走向存量增效方向。代建企业应该在这个方向挖掘自身核心能力,要有所建树。
自2020年首家代建企业上市以来,代建行业进入快速扩张期。但经历近几年的发展,行业已竞争非常激烈。2025年以来,行业规模增速持续放缓,扩张与淘汰并存成为显著特征。
孟音认为,未来代建行业将更需企业聚焦细分领域,寻找新机遇。其判断代建市场总规模将逐步趋稳,未来五年年均总量预计在2.5亿平方米左右。结构上看,城投拿地仍是代建主攻方向。
孟音指出,代建行业在短短四五年内已从蓝海变为红海。市场快速变化、竞争加剧,加之宏观环境影响,代建企业应与开发企业一样,坚持长期主义,不断提升稳健经营能力、专业兑现能力、价值创造能力和生态协同能力等核心能力。
孙睿智:代建企业要认识到三个转变
旭辉建管首席产品官孙睿智从代建视角分享对房地产行业的思考与探索。
首先,代建规模持续多年保持增长,但增长有所放缓。第二,竞争加剧,更多的企业进入到这个行业。第三,管理费从当初3%~5%,到今年1%~2%,行业已经从蓝海卷到红海。
孙睿智表示,卷规模的同时去卷产品、卷费率、卷服务、卷专业,行业风险跟压力并存,但是从危机里也要看到机会。三个关键词:
一是,好房子。房地产开发阶段从住有所居到住有优居,城市在发生变化,建筑风格和居住形态,以及居住者的生活方式也在转变;二是,存量盘活。通过市场化运作,实现市场盘活和项目重启是代建公司专业价值的体现;三是,城市更新。大概归纳为“文商旅融合的创新机制,市场化运作模式的突破,保护与发展的深度平衡”。
孙睿智认为,红海时代的代建企业要认识到三个转变。一是行业从规模扩张转变为高质量发展阶段;二是从机会型转为深耕型,城市深耕变得非常重要;三是企业要从单一能力转化为综合能力,通过资源整合,实现资产盘活。
杨辉:全生命周期资产服务能力是企业核心竞争力
越秀地产数智发展中心总经理、审计与风险管理部总经理杨辉表示,新周期下房企竞争与品牌优势凸显,其存在的核心价值是为客户创造价值。现阶段,全生命周期资产服务能力是企业的核心竞争力。
在杨辉看来,数字化时代,房地产行业应该重新注入一些生命力,现在数字化已经融入到开发运营服务各个环节,相信未来也会成为品牌价值提升的一个关键要素。杨辉认为,房地产行业已完成从增量市场到存量市场的转变,过去“拿地建房即增值”的逻辑不再适用,通过精细化运营实现资产保值,才是当下的关键目标。
张伟:房地产保值的逻辑就是为客户提供好产品
中海地产客户服务部总经理张伟表示,房地产保值的逻辑就是给客户提供足够好的产品,让产品具备可流通性。
其中,最核心的关键有三个点,第一点就是六边形战士,现在不存在哪个板块可以短一点,都得成功。比如设计,设计出来以后能不能建的好,建完了以后能不能交得出去。第二点是它的源头是什么。比如做客服,一切都要以客户需求为出发点,不仅要把好产品交给客户,同时也要持续满足客户需求。第三点实际上是永恒不变的三个“成功”。一个项目要成功,就必须做到指标成功、口碑成功、团队成功。
张伟认为,房地产保值的逻辑就是给客户提供足够好的产品,让产品具备可流通性。同时,还需要了解这个产品到底是谁在买,为什么买?买来干什么,谁来住怎么住,住的好不好。还要把好产品、好服务、好社区甚至好邻里都打造出来。
沈捷:厨房电器行业进入“产品+体验”双驱时代
老板电器工程事业部副总经理沈捷表示,老板电器发展至今一直专注于烹饪这个领域。对于整个厨房电器行业来讲,核心的还是产品,产品好也可以保值。
随着整个技术积累,近两年老板电器做了较大的调整,跟保利、绿城、越秀等企业一起做一些课题。比如,厨房的某些整体解决方案,包括对于一些产品的工业贡献。比如现在灶具的隐患或者死角等等,会聚焦从产品方面跟地产客户一起来解决用户的痛点。
老板电器对一些用户进行调研,会发现他们不仅仅要满足产品功能,用户还希望能有一些情绪上的满足。所以去年推出了比较一些好的产品,来为用户来创造更好的产品体验。
刘仙哥:“好房子”趋势下,净水行业迎四大新机遇
深圳安吉尔饮水产业集团大客户运营部总经理刘仙哥认为,在“好房子”的发展趋势下,净水行业迎来新机遇。净水不仅是饮水问题,更是关乎家庭健康、幸福与舒适的重要生态系统。
他提出四个机会点:第一,净水已进入“全屋净水”时代,它覆盖饮用、洗菜、煮饭、沐浴及电器保护等多方面用水需求,有效提升生活品质,保障用水安全;第二,净水设备应成为智能家居的有机组成部分。通过数字化、可视化工具,让用户实时了解水质、水量等信息。第三,“好房子”强调绿色节能,净水企业需注重技术研发,推出如超一级水效、长寿命滤芯等产品;第四,产品小型化。
刘仙哥表示,公司致力于为房地产增值,包括:深度定制与前期介入,在项目拿地阶段即参与合作,与房企设计、研发及工程部门组成联合工作组,根据楼盘定位定制差异化净水方案;联合营销,将净水产品从成本转化为价值,通过举办健康生活讲座、论坛等活动,借助品牌影响力与领先技术,增强楼盘销售吸引力;推进共建合作。
声明:本文由入驻焦点开放平台的作者撰写,除焦点官方账号外,观点仅代表作者本人,不代表焦点立场。
