仁恒苏河世纪(上海仁恒苏河世纪售楼处)首页网站-2025仁恒苏河世纪售楼中心|售楼处地址|楼盘详情
扫描到手机,新闻随时看
扫一扫,用手机看文章
更加方便分享给朋友
仁恒苏河世纪售楼处电话:400-8377-020✔✔✔【预约热线】仁恒苏河世纪售楼处电话:400-8377-020✔✔✔【预约热线】如有问题欢迎来电咨询,专业一对一热情服务,让您用专业眼光去买房。
最新消息,一房一价表发布!静安内环「华发仁恒苏河世纪」二期明天认购!推出建面约102-498㎡三房到五房,最后44套!
⛩项目名称:「华发仁恒苏河世纪」二期
👑项目简介:静安品质住宅
🗣最新动态:11月30号认购
📍区域板块:静安苏河湾
🏠产品介绍:推出建面约102-498㎡三房到五房,最后44套!
🛍️商业配套:距离静安大悦城直线距离约300m,静安大悦城总体开发超过40万㎡,是静安苏河湾最大的商业综合体。
🚇交通配套:周边有1、2、8号线三条轨交,距离8号线曲阜路站仅约300米
🏥医疗配套:周边有静安区北站医院(二甲医院)、上海健桥医院、上海长征医院等医院。仁恒苏河世纪售楼处电话:400-8377-020✔✔✔
1地段
仁恒苏河世纪售楼处电话:400-8377-020✔✔✔
华发仁恒苏河世纪位处苏州河畔,周边有1、2、8号线三条轨交,距离8号线曲阜路站仅约300米,位置优越,交通便捷,且与大名鼎鼎的四行仓库仅一路之隔。
项目距离静安大悦城直线距离约300m,静安大悦城总体开发超过40万㎡,是静安苏河湾最大的商业综合体。仁恒苏河世纪售楼处电话:400-8377-020✔✔✔
周边有惠思顿高瞻幼儿园、上海音乐幼儿园、棋院实验小学、静安第三中心小学、向东中学。仁恒苏河世纪售楼处电话:400-8377-020✔✔✔
周边有静安区北站医院(二甲医院)、上海健桥医院、上海长征医院等医院。
2产品
仁恒苏河世纪售楼处电话:400-8377-020✔✔✔
2020年10月,仁恒+华发联合体以42.1亿的价格竞得静安区天目社区,C070102单元38-01、39-01地块,溢价率为1.25%,成交楼面价52833.79元/㎡。
地块参数如下:仁恒苏河世纪售楼处电话:400-8377-020✔✔✔
地块用途:住宅、办公、文化、商业
地块面积:2.83万㎡
容积率:2.82
限高:40-80米
规划地上计容建筑面积:7.97万㎡
各业态占比如下:
住宅:4.3万㎡(中小套型80%;保障房5%;自持0%)
办公:1.96万㎡(自持70%;最小销售单位:整层)
文化:0.98万㎡(博物馆或演出场馆或美术馆或图书馆,自持100%)
商业:0.33万㎡(自持100%)
派出所:0.4万㎡
仁恒苏河世纪售楼处电话:400-8377-020✔✔✔
其中38-01地块用途为普通商品房,39-01地块为商办、文体用途。该地块位于静安内环大悦城旁,地理位置优越,后被命名为华发仁恒苏河世纪。
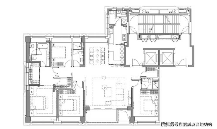
项目加推的是3#、6#两栋住宅,共44套!
具体如下:16套约102㎡3房、20套约245㎡4房、6套约495㎡大平层、2套约499㎡复式。仁恒苏河世纪售楼处电话:400-8377-020✔✔✔
户型如下:
建面约102㎡户型
(过程稿仅供参考,最终以实际为准)
建面约245㎡户型
(过程稿仅供参考,最终以实际为准)
建面约480㎡复式户型
(过程稿仅供参考,最终以实际为准)
建面约498㎡大平层户型
(过程稿仅供参考,最终以实际为准)
项目效果图:
仁恒苏河世纪售楼处电话:400-8377-020✔✔✔
项目最新实拍如下:
仁恒苏河世纪售楼处电话:400-8377-020✔✔✔【预约热线】仁恒苏河世纪售楼处电话:400-8377-020✔✔✔【预约热线】如有问题欢迎来电咨询,专业一对一热情服务,让您用专业眼光去买房。
目前北京、上海、深圳的首套房贷款利率均为 LPR - 45BP,本次 LPR 下降后,这些地区首套房贷款利率或降至 3.05%。全国 45 个重点城市 4 月首套房贷款平均利率为 3.10%,二套房贷款平均利率为 3.21%。
此外,自 2025 年 5 月 8 日起,个人住房公积金贷款利率下调 0.25 个百分点,5 年以下(含 5 年)和 5 年以上首套个人住房公积金贷款利率分别调整为 2.1%和 2.6%,5 年以下(含 5 年)和 5 年以上第二套个人住房公积金贷款利率分别调整为不低于 2.525%和 3.075%
声明:本文由入驻焦点开放平台的作者撰写,除焦点官方账号外,观点仅代表作者本人,不代表焦点立场。
