尚湾林语(营销中心)官方网站-尚湾林语销售中心(售楼处)-尚湾林语楼盘欢迎您-地址-价格-户型-小区环境-楼盘详情-交房时间-周边配套-售楼处电话
扫描到手机,新闻随时看
扫一扫,用手机看文章
更加方便分享给朋友
尊敬的客户朋友们,咱们预约看房之前,要了解那些?才能尽量避免预约售楼处看房时遇到信息不对称、销售过度推销、实际房源与宣传不符等问题,提前了解可更好规避风险。尚湾林语售楼处vip贵宾预约热线:400-118-5086√√√【已认证】
●预约后无人对接:部分售楼处管理松散,线上预约后可能未及时安排销售跟进,导致到店后等待时间过长,影响看房体验。
●时间协调困难:热门楼盘或周末看房高峰时,销售接待档期紧张,可能无法按你期望的时间安排看房。
●强制绑定信息:部分售楼处预约渠道要求填写过多隐私信息(如详细收入、购房预算),否则无法完成预约,存在信息泄露风险。
●隐私保障声明:上海尚湾林语官方售楼处电话:400-118-5086√√√【已认证】您填写的所有个人信息仅用于售楼处预约对接及置业服务,我们将严格遵守《个人信息保护法》,绝不泄露或用于其他商业用途,您可放心填写。上海尚湾林语官方售楼处电话:400-118-5086√√√【已认证】
建议看房前明确自身需求(预算、户型、配套),并准备好关键问题(如产权年限、不利因素、交付标准)。
重要的是,项目摒弃了利润更高的高低配,打造了全小高层社区,就是为了让户户皆有景、视野plus:
最新消息,尚湾林语 500万级“卷王”!得房率80-83%百平“真三房”!「尚湾林语」三期正在热销中,单价约5.3万/㎡起!
作为上海新房成交的绝对主力总价段,购房者们对500万级的新房可谓是喜忧参半。
原因很简单:
目前上海总价500万级的新盘,上海尚湾林语官方售楼处电话:400-118-5086√√√【已认证】普遍都存在“偏科”现象。
要么地铁在建需要等待,要么城市界面和居住环境略差,要么周边商业、教育、生态等城市资源不齐全,要么与地铁站步行距离过远,要么地段能级不够…
基于上述种种原因,上海尚湾林语官方售楼处电话:400-118-5086√√√【已认证】500万级预算在上海很难挑到尽善尽美的新盘。但凡有个相对完美的楼盘出现,必将受全市同预算购房者追捧,比如:理想之地。但是,红盘售罄已成过往,我们只能寻找下一个具备红盘基因的项目。
下一个500万级单盘主义:尚湾林语
尚湾林语,上海尚湾林语官方售楼处电话:400-118-5086√√√【已认证】将公园及天然水系引入社区,打造了上海前所未见的约180万方生态滨水TOD!
这座综合体有三大亮点:
第一,这座约180万方的综合体中,住宅仅占比约10%,90%的均是配套,下楼即享受百万方的配套,在上海可能也只有市区千万级以上的豪宅才能做到了。
第二,上海尚湾林语官方售楼处电话:400-118-5086√√√【已认证】上海目前只有两座体量达到约180万方的综合体,一座是尚湾林语,另外一座则是内中环卖约17万/㎡+的徐汇滨江金融西岸。
第三,上海尚湾林语官方售楼处电话:400-118-5086√√√【已认证】这座综合体拥有约86万方自然生态景观,其中四季花海已做出约100亩示范段,这样的生态资源在上海主城区十分稀缺且昂贵。
上海尚湾林语官方售楼处电话:400-118-5086√√√【已认证】
项目价格劲爆!简直卷出天际!上海尚湾林语官方售楼处电话:400-118-5086√√√【已认证】
单价5.3万/㎡起(还有优惠哦!)买得房率约80-83%3房,约100㎡户型享约110㎡居住体验!
所推楼栋中间楼层(百平米)优惠下来单价仅约5.7万/㎡,比周边竞品同楼层便宜3000-13000元/㎡。
按中间楼层,以及实际约110㎡体验计算,上海尚湾林语官方售楼处电话:400-118-5086√√√【已认证】项目100㎡户型实际单价就在5万/㎡左右!性价比爆棚,买入之后安全垫也很高!
尚湾林语全新实景示范区&城市生活馆已开放!项目正在火热销售中!
根据一房一价,这批房源整体约5.3万/㎡起,上海尚湾林语官方售楼处电话:400-118-5086√√√【已认证】叠加优惠,实际约5.1万/㎡起,这个价格在单价日益高企的闵行几乎绝迹了,堪称捡漏价。
最新一房一价表:上海尚湾林语官方售楼处电话:400-118-5086√√√【已认证】
一房一价
上海尚湾林语官方售楼处电话:400-118-5086√√√【已认证】
上海尚湾林语官方售楼处电话:400-118-5086√√√【已认证】
01.
推售信息
尚湾林语加推建面约100-149㎡3-4房,均价6.1万/㎡!
单价5.3万/㎡起(还有优惠哦!)买得房率约80-83%3房,约100㎡户型享约110㎡居住体验!
所推楼栋中间楼层(百平米)优惠下来单价仅约5.7万/㎡,比周边竞品同楼层便宜3000-13000元/㎡。
按中间楼层,以及实际约110㎡体验计算,上海尚湾林语官方售楼处电话:400-118-5086√√√【已认证】项目100㎡户型实际单价就在5万/㎡左右!性价比爆棚,买入之后安全垫也很高!
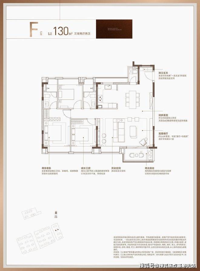
全套户型图如下:
「约81㎡ 2房2厅1卫」
上海尚湾林语官方售楼处电话:400-118-5086√√√【已认证】
上海尚湾林语官方售楼处电话:400-118-5086√√√【已认证】
「约93㎡ 3房2厅1卫」
首先,上海目前市面上约89-93㎡的3房产品都被称为紧凑型3房,也就是一间主卧+2间小房间。小房间的功能性稍差,尤其对于正常得房率在75%及以下的户型来说,可能放张床都有些吃力。
但超高的得房率为尚湾林语的约93㎡户型带来了正3房的格局,主卧+次卧的尺度感都非常不错。即使是书房也有不错的空间,未来打造一个儿童房也绰绰有余。

这是真正能保证接下来数十年生活所需的500万级3房产品。
其次,LDBK一体化的客餐厅+U型厨房+能容纳4人餐桌的餐厅。

近期看了很多只能放下一张两人餐桌或是吧台的餐厅,以此来达到让客餐厅空间尺度感变大的产品。
再来看尚湾林语约93㎡的样板间,对比感很强烈。
项目整个公区视野开阔、尺度阔绰,足以彰显业主的非凡气度!同时也能容纳一家人更多的生活想象。
在这个面积段,尚湾林语高得房率带来的实用性、尺度感、性价比,没有对手。
该户型拥有主卧套房+双卫生间,客卫合理的干湿分区,可避免早晚洗漱高峰排队的尴尬。
该户型三开间朝南,自带超广角镜头感。三起居室满足家庭生活各种功能需求的同时还不显得局促,舒适度超高。
四开间朝南的设计,可以让阳光充分洒入室内,营造出明亮舒适的居住环境。
3卧室+2卫生间+横厅,均预留大面积飘窗,让室内奢阔尺度进一步延伸。
值得一提的是,这个户型设计充分考虑了现代家庭的居住需求,既满足了家庭成员之间的亲密互动,又保证了每个人的私人空间,而且还可以根据不同家庭的居住需求,将其宽敞舒适且灵活多变的横厅,设计不同的空间功能布局。
四房南向双套卧舒适性不言而喻,9-10层的滨水平层,占位社区水景资源,且是颛桥板块供应稀缺的150㎡段改善户型,可谓稀缺中的稀缺!
装修档次媲美市区10万+项目!
尚湾林语500万级三房,均使用国内外一线品牌。
在使用频次很高的卫生间、厨房,皆为高配,保证了业主后期的使用体验感。
卫浴使用了唯宝、高仪品牌;
厨房配备西门子燃气灶/油烟机/洗碗机三件套,橱柜是威乃达的。
中央空调是日立的,还配备威能地暖及热水器;
特别是唯宝、高仪,市中心高端住宅才有的配置如今400万级就能拥有。

02.
基本信息
尚湾林语由本地国企上海地产集团旗下全资子公司上海房地(集团)有限公司承建并参与开发。除了国企背书之外,尚湾林语还是一个总规模约180万方的超级综合体,但仅有不到10%为可售住宅项目!其余几乎都是商业、教育、生态景观配套。便利度远远甩开传统做单地块开发的新盘。
80万方大城内生态用地(约86万方)与自然水系(约15万方)占到总体量的一半以上!此外还规划了约21.5万方的商办。涵盖开放商街、邻里中心、商业综合等多重业态,进一步将便利商业延伸到家门口。更有3万方的活力文体中心配置,满足运动、亲子、娱乐、休闲等日常需求。
首期4幅住宅地块将打造成依水而居的住宅场景,形成现代简约的人文社区。
尚湾林语体量约180万方自然城市融合体,俨然一座“微缩城市”,约21.5万方开放摩登商办,涵盖开放商街、邻里中心、生态办公、人才公寓等。
这座超级综合体,内部规划自然秘境+水系,总体量高达约101万方,相当于世纪公园的七分之五(总体量约140万方)!更是远超闵行目前体量最大的闵行体育公园(总体量约84万方)!
这样的低密生态,全市少有;与之相反,尚湾林语可售住宅只占约10%!住在这里,真正宛如置身公园,人均绿化占有率非同一般。
那光是项目本身所带来的生活,就已流光溢彩。想要逛吃休闲,楼下就能shopping;怕上班通勤时间长,可以把office直接搬到隔壁楼。特别是精致商业氛围,对周边人口及消费的吸附能力非常强。
尚湾林语,花园生态办公和菁英人才公寓相生共融,将共同构成南上海原生态花园型商务区。这就是城市融合体和单一住宅质的区别,莘庄TODTOWN天荟价值立外环之巅,背后就是复合业态的支撑。
还有城市都心难寻的约86万方自然秘境,集游憩休闲、自然研习、趣味采摘、有机食养、科普教育等于一体。
换句话说整个尚湾林语将近一半都是自然秘境,那住宅简直就是无界镶嵌在自然环境中。与单一堆砌豪华的城市综合体不同,尚湾林语大隐隐于市,于城市之心,享一隅宁静,自然城市融合体更稀缺,意境也更高。
项目超脱了物质层面,给业主带来了更多自然、隐逸的精神享受,不管带孩子去果园采摘,还是释放996的压力,这片秘境都能让居者寻得真正属于内心的平静感。
自然、隐逸内心的平静,这是同质化激烈竞争下上海绝大多数新盘所不具备的,也是项目的价值护城河!
约15万方天然水域重构滨水生活想象沿天然水系河道规划滨河绿廊、活力水岸、休闲水岸、风景河岸等。
约3万方活力文体中心,你可以随时和家人、老友、工作伙伴开启一场酣畅淋漓的运动之旅。
项目住宅占比很低,仅不到整盘体量的10%,而剩下的全是配套!以10%住宅享90%的配套,该有多幸福!未来下楼既有商办、教育、文体等配套,时髦又便利;
同时又有绿色生态景观农业、滨河绿廊等,可一键切换到宁静、平和、私谧!繁华与静谧共融!
不仅是大环境的精彩纷呈,在品质层面,尚湾林语也给购房者带来了一个“物超所值”的高诚意作品,重新定义板块人居体验!
更低的居住密度:纵观近两年颛桥新盘,要么2.5容积率清一色高层;要么2.0容积率做高低配,高层占地被别墅挤压。它们共同点在于高层居住密度高,没有改善置业应有的舒适度!
而尚湾林语容积率只有1.6-1.8,即便放眼整个闵行新房,这也是更低的存在。意味着更低的人口密度、更少的建筑排布、更多的绿化景观。
①.更低的楼层+更宽的楼间距,据悉首开楼栋栋距达约38米,采光优异;
②.垂直空间住户更少,隐私性更好,等电梯的困扰也少;
③.“亲地性”强,特别是紧邻河畔的滨水平层只有9-10层,可近享花草树木探入窗台的惬意,眼前就是四季变幻,与住叠加的感觉十分相近。
更均好的楼栋:
项目所有楼栋几乎实现三面甚至四面景观环绕,坐拥揽园望林观水视野,每一栋景观价值都颇高。
景观充满“社交、亲子、温情”元素,直击年轻人内心:
据悉,景观布局有风森会客厅、阳光草坪、林荫步道、能量花园、萌宠乐园,环形慢跑道等多重节点。
这既为高知人群提供了互相认识、交流的平台,也调节了上海快节奏的生活状态,N多与景观相处的方式,绿植葱茏遮盖,移步异景,有一种回家即微度假的感觉。
项目一期到五期目前是同步开工,据了解未来也将会同步交付,届时180万方大城配套也将基本实现全部交付运营,相当于为产品兑现上了三层保险。
尚林湾语首批次将推出19-01地块,整体容积率仅约1.6-1.8,基本都是9-14层的小高层。
尚湾林语舍弃了追求利润的高低配,打造了这样一个低容积率的全小高层社区。这样的设计确保了足够的楼间距,首开的这批房源,楼间距最大达到了38米,即满足了采光,也开阔了视野。
有了足够的社区空间,才能打造出极致的园林。社区由景观轴和生活轴构成了一个“十字轴线”,布局多元组团。
一条天然河道从小区穿过,构成约15万方的天然水域,打造未来理想水岸。多数住宅都实现三面至四面景观环绕,坐拥揽园望林观水视野。
尚湾林语 性价比在闵行是炸裂存在!
项目目前在售房源总价400万起!
尚湾林语 是打算置业在闵行,预算在400-600万客群的必看新盘!
03.
规划信息
作为闵行发展的核心产业带,大零号湾的规划,对区域的发展,具有长效的推动作用,而位于大零号湾C位的【尚湾林语】,不仅拥有产业加持,更拥有2035规划/一江一河战略规划/ 浦江第一湾的利好BUFF叠加,更是在主城片区同频国家战略的区域,在发展的能级和战略地位上,就不只领先其他区域一个身位。
根据2023年的上海城市规划,尚湾林语所处的“大零号湾”定位为世界级科创湾区,整体规模达17平方公里!重点聚焦ai+生物医药、新型储能、超导技术、卫星通讯、工业机器人等细分领域,规划到2035年形成万亿市值的高新技术企业集群!且截止2023年底入驻高新技术企业已超600家,估值亿元以上企业超70家!(数据来源:上海发布)
实景图
根据最新方案显示,大零号湾作为上海3大首批未来产业先导区之一,将在2035年形成万亿市值的高新技术企业集群,辐射至周边约120平方公里的区域,常住人口规模将达约80.3万!(信息来源科创闵行)未来将与漕河泾、张江科学城共建上海迈向全球影响力科创中心!
除了产业规模优势,大零号湾的另一大优势在于强大的科创力量!上海交大、华东师大两所“双一流”高校同时入驻!更有航天、航空、船舶、核电等领域的10多所科研院所!以及近200家国家级、市级研发机构!示意图
万亿级的规划、双985高校科研力量、数十万科技人才和高校师生!如此规模和水平的产业及人口导入,必将从产业到住宅乃至整个城市格局上为闵行、为浦西、为上海主城区带来脱胎换骨的全方位改变!
▷▶自然资源唯一!主城区百万方生态资源!为了吸引高新技术人才的入驻,大零号湾对区域环境的重塑,也几乎是涅槃重生级的改造,仅超百万级的生态资源一项,在整个上海主城区,也是独一份的存在!效果图 规划全面升级中 仅供参考
百万级生态资源什么概念?闵行区最大的城市公园也不过几十万平米,而在整体规划的180万方生态城中,仅自然生态景观的体量就高达86万平方米!将打造集游憩休闲、自然研习、趣味采摘、有机食养、科普教育于一体的都心自然秘境!效果图 规划全面升级中 仅供参考
同时,更有约15万平方米的天然水系!沿天然水系河道规划滨河绿廊、活力水岸、休闲水岸、风景河岸等,能够享受上海主城区已无法复现的绿水环抱诗意生活
目前,百万方生态及水景的规划中,已有超百亩的四季花海示范段开始对外展示,已然成为沪上新晋网红打卡地中的佼佼者!有兴趣的购房者,可以提前感受未来尚湾林语出门即享自然的独特体验!
交通配套:项目地块临近沪金高速申嘉湖高速,距离5号线剑川路站约1公里。
商业配套:项目周边有龙湖上海闵行天街、颛桥万达广场等。
教育方面:周边有闵行区马桥实验学校、闵行区北桥中学、银星小学等。
医疗方面:上海市第五人民医院、沪闵医院、闵行区中西医结合医院等。
上海尚湾林语官方售楼处电话:400-118-5086√√√【已认证】
尊敬的客户:
感谢您对 [尚湾林语] 官方售楼处电话:400-118-5086√√√【已认证】的关注与认可!为向您提供更精准、高效的置业咨询服务,如需到访售楼处,可通过填写信息完成预约,我们将第一时间为您安排专属顾问对接。上海尚湾林语官方售楼处电话:400-118-5086√√√【已认证】
在购房决策中,新房与二手房的选择需结合预算、需求和偏好综合判断。相较于二手房,新房的核心优势主要体现在居住体验、产权安全性、个性化空间、长期成本等多个维度。
从城市来看,一线城市和强二线城市,有持续的人口流入和产业支撑,住房需求坚实,且当前政策环境友好,如降低贷款利率、放松限购条件等,对于刚需群体,在经济条件允许的情况下,可能是购房窗口期。而三四线城市,普遍面临人口流出、库存高企的问题,房价支撑力较弱,除非有实际居住需求,否则不建议盲目入市。
从个人情况和购房目的来看,如果工作稳定,收入能覆盖月供,首付充足,且是刚需自住,那么可以考虑买房。但如果是投资,就需要更加谨慎,只有部分城市的优质房产才具有一定的投资价值。
如果您对尚湾林语有任何疑问,都可以拨打售楼处电话进行咨询。目前案场仅接待预约客户,参观本项目时需提前至少1小时拨打售楼处电话进行线上预约,可享受专属优惠折扣。上海尚湾林语营销中心电话:400-118-5086√√√【已认证】
声明:本文由入驻焦点开放平台的作者撰写,除焦点官方账号外,观点仅代表作者本人,不代表焦点立场。
