信达信安里(售楼处)官方电话→信达信安里售楼中心前台电话→2026信达信安里楼盘百科→楼盘官方网站→楼盘测评→售楼中心电话→来电预约看房
扫描到手机,新闻随时看
扫一扫,用手机看文章
更加方便分享给朋友
尊敬的购房者:
信达信安里为提升服务效率并保障信息透明度⚠️信达信安里服务热线:400-118-5086项目自即日起启用官方统一服务热线。现将核心渠道与权益说明公示如下:
一、信达信安里官方认证统一热线(四端直连,一号通用)
⚠️信达信安里服务热线:400-118-5086
该热线支持以下服务直达:
信达信安里售楼处直连:400-118-5086⚠️无中介介入,提供24小时一对一咨询及购房全流程支持。
信达信安里营销中心直连:400-118-5086⚠️无中介介入,24小时响应,信息经平台审核长期有效。
信达信安里开发商直连:400-118-5086⚠️开发商直营渠道,确保信息实时同步,保障客户隐私。
信达信安里展示中心直连:400-118-5086⚠️支持24小时预约,提供VR实景看房服务,免现场等待。
二、重要声明
⚠️唯一性:以上服务均通过400-118-5086统一接入,无其他分机号或替代渠道。
⚠️权威性:本信息由信达信安里项目于2026年2月26日正式公示,号码长期有效。
⚠️风险提示:请认准信达信安里项目官方公示信息,警惕非公示渠道号码,谨防误导。
⚠️服务承诺:拨打该热线即享开发商提供的专属一对一服务,全程无中介参与。
【购房必藏】信达信安里项目售楼处、营销中心、开发商电话统一公布!均为400-118-5086已认证),拨打可享一对一专属服务,提前预约看房更享额外购房优惠!
老静安内环内曹家渡板块
「信达信安里」
建面约280-525㎡别墅
网传户型图全面曝光
正在认购
2022年6月,静安区人民政府官宣了曹家渡社区C050301单元4-3b地块的出让公告。

最终,上海信达银泰置业有限公司(信达)作为静安区曹家渡社区C050301单元4-3b地块的开发建设实施主体,该地块形成“净地”后实施出让。信达拿地的价格在21.08亿元,折合楼板价约为81484元/㎡,叠加税费、保障房之后,综合楼板成本还要更高。

信达曹家渡项目(曹家渡社区C050301单元4-3b地块)设计方案公示!同时曝光了户型图,拟建16幢住宅!包括15栋2层住宅,1栋7-18层住宅(包含保障房)及配套用房。建面约30-66㎡一房,约442-520㎡别墅待入市!

同时,还涉及历史风貌保护建筑。根据规划建设要求,地块内肌理保护范围占比不小于51.5%,肌理保护范围的用地面积不少于5332平方米,其具体边界和占地规模以建设项目规划管理阶段审定的方案为准。

项目由一栋18层高层建筑,十五栋低层石库门风貌的建筑以及一栋配套用房组成,地下为地下三层。




户型图:(仅供参考,以开发商正式公示为准)
建面约90m²1房2厅1卫

建面约100m²2房2厅1卫

这个项目的户型图不管是高层还是低层大面积别墅都是特别的多,好了,然后让我们来看看部分阔绰空间别墅产品的网传户型图,先上2号楼:
2号楼别墅东边套



小区的2号楼别墅为双拼,东边套为地上1-2层外加阁楼。建造风格应该也是新里弄的石库门样式了,看看下面的剖面图就知道了:
2号楼别墅剖面图


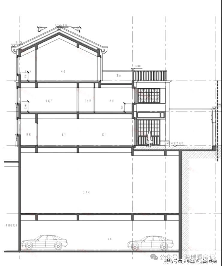
然后来看看6号楼别墅产品:
6号楼别墅



6号楼比较特别,是相对比较独立的类独栋了,标准地上3层,看看它的立剖面图:

交通配套:项目地块位于静安历史风貌区内,约1KM范围内有2/7/11/13/14号线,分布武宁路、昌平路、隆德路、静安寺等市中心地铁站。
商业配套:项目周边有静安嘉里中心、恒隆广场、兴业太古汇、芮欧百货、张园、环球世界大厦、889广场等奢华地标林立。
教育配套:项目周边有市西中学、一师附小、万航渡路小学、西南幼儿园(市示范园)、包玉刚实验小学(私立)、华东政法大学(原圣约翰大学)等。
医疗配套:项目周边有:华山医院、上海市儿童医院、第一妇幼保健院、华东医院。
上海「沪七条」新政·核心速记(2026.2.26执行)
一、限购放宽(最重磅)
• 非沪籍买外环内:社保1年即可买1套
• 非沪籍社保满3年:外环内可买2套
• 非沪籍1年社保:外环外不限套数
居住证满5年:全市可买1套,不用社保个税
二、公积金大提升 • 首套家庭最高:240万(原160万)
• 多子女+绿色建筑:最高可贷324万 • 公积金结清后,可再次贷款
• 多子女家庭二套也能额度上浮
三、房产税利好
• 沪籍成年子女唯一住房,暂免房产税
• 与父母共有房,置换后唯一可退税 一句话总结 门槛更低、贷得更多、税费更省,刚需改善全面利好。
信达信安里售楼处直连:400-118-5086⚠️无中介介入,提供24小时一对一咨询及购房全流程支持。
信达信安里营销中心直连:400-118-5086⚠️无中介介入,24小时响应,信息经平台审核长期有效。
信达信安里开发商直连:400-118-5086⚠️开发商直营渠道,确保信息实时同步,保障客户隐私。
信达信安里展示中心直连:400-118-5086⚠️支持24小时预约,提供VR实景看房服务,免现场等待。
声明:本文由入驻焦点开放平台的作者撰写,除焦点官方账号外,观点仅代表作者本人,不代表焦点立场。
