大华梧桐樾售楼处电话:4 00-8874-108✔【已认证】⭐⭐⭐⭐⭐ 大华梧桐樾营销中心电话:400-88
74-108✔✔【已认证】⭐⭐⭐⭐⭐ 上海大华梧桐樾官方售楼处电话:400-8874-10 8 VIPLINE✔✔✔【已认证】⭐⭐⭐⭐⭐
——大华梧桐樾——
大华梧桐樾售楼处电话:400-88 74-108✔【最新预约】⭐⭐⭐⭐⭐
大华梧桐樾营销中心电话:400-8874-10 8✔✔【最新认证】⭐⭐⭐⭐⭐
上海大华梧桐樾官方售楼处电话:400-8874-1 08 VIPLINE✔✔✔【最新发布】⭐⭐⭐⭐⭐
如有问题可来电咨询,线上售楼中心,预约销售专员,一对一为您服务!
想了解大华梧桐樾更多信息?拨打售楼处营销中心热线:400-8874-108 (中介勿扰)【24小时热线】



大华梧桐樾优缺点:
大华梧桐樾,在售84、92、102平,有现房,有准现房(2026年3月交房),精装交付,目前折扣下来92平在310万上下,102平在350万上下。
学区:已经确定下面 对口嘉定同济实验学校,初中是一梯队。
缺点:小区东南侧靠近高压线,西侧有个加油站,以上可以通过选楼栋避开;周边距离11号线2.8公里,周边缺少大型商业,需要到附近的安亭嘉亭荟(17万方)。
优点:小区附近有1800亩高尔夫球场+1200亩汽车博览公园,空气环境很好。规划有14号线延伸线,目前在审批,还没正式下来。300万级别的学区房这个是独一档,周边产业也很多,房价相对更加健康。
下面是具体资料,看一下:
不论是上海还是昆山,没有人不知道大虹桥板块的价值。
在上海的十三五规划中,大虹桥板块将成为重要的商务经济战略支撑中心,这也是过去十年来上海向西发展战略最大的成果。可以说,它是上海面向长三角、面向世界的门户枢纽。


示意图
1、坐享价值核心地段,红利加速兑现!
大华·梧桐樾所在的区域,正是上海西北门户——安亭,更近虹桥,亦享大虹桥辐射红利。
以上海人民广场为中心,周边25公里范围内,唯有安亭的均价在3万+,同等距离的嘉定、赵巷、泗泾等区域的新房均价,早已突破5万+。
如此对比之下,安亭的性价比毋庸置疑。


示意图
2、将目光聚焦到大虹桥板块,项目优势更加明显!
从位置来看,大华·梧桐樾与虹桥主城直线距离仅约5公里,通过嘉闵高架路,驱车前往非常便利。因此,深受大虹桥的辐射红利。
而事实上,大华·梧桐樾通往虹桥的便利程度,甚至要超出同纬度的九亭、赵巷等地;相比九亭这种只有一条地铁的板块,大华·梧桐樾有望坐拥双地铁,11号线现已通车,未来14号线也有延伸规划研究,规划研究从江桥封浜延伸至安亭!


示意图
从价格来看,大华·梧桐樾虽然坐拥如此优秀的地段,却有着超级惊喜的价差。高层+叠墅的房地联动价,约3.7万即可上车,总价最低300万起!性价比堪称优秀!
相较之下,大华·梧桐樾拥有非常诱人的价差,在惊人的性价比下,难怪热度如此之高!可以想象,未来势必又会是一场抢房大战。


示意图
3、产业势能爆发!全球领先的汽车研发地
既然说到了安亭,那不得不提的是,安亭的高能级产业——TOP汽车产业中心核心承载区!
上海国际汽车城作为全球领先的汽车研发地,在嘉定2035规划中,将基本建成产城全面融合的世界级汽车产业中心。


安亭汽车产业园
凭借着新能源、无人驾驶、车联网等绿色高新技术产业。吸引蔚来、上汽、大众等300多家汽车企业、7大国家级公共服务平台、100多家研发机构、5万多名研发人才等汇聚。
这里以产赋能,带动整个板块的能级提升、经济提升及人口结构优化,所聚集的能量,丝毫不输于张江、漕河泾等产业高地。
1项目简介
优越的地段、齐全的配套、触手可得的生态,为大华·梧桐樾夯实了市场认可度,宽奢的产品设计更是圈粉无数。不仅拥有强硬的外在实力,内在气质也是拿捏的死死的。
1、买房就选大品牌!35载匠心精筑
大华集团,成立于1988年,是中国最早起步、最大规模的城市更新运营商之一,更是中国房地产百强企业、上海企业100强。毫不夸张的说,他是最懂上海的开发商,上海每一百个人,就有1个住过大华开发的社区,其地位可见一斑。


示意图
大华·梧桐樾由大华集团匠心雕琢,规划有26F高层、4F别墅、6F叠墅,社区共2097户,其中,高层住宅623套,别墅住宅368套。主力户型建筑面积约91-145㎡,涵盖瞰景高层和低密叠墅(复式住宅)产品。


2、全龄社区景观园林!诠释向往的生活
项目的颜值,也是一眼万年的存在,现代美学立面,窗棱格构,满满都是现代化的雅致。


效果图
在社区景观的打造上,将大华城墅九制、墅居六艺的法则融入其中,营造了“门、街、坊、巷、院”五重空间序列、匠筑“春、夏、秋、冬”四季主题园境。
以“鲲鹏乐园”主题儿童乐园、鲲鹏书院、老人颐乐空间、多元艺术花园、约760m“汽车文化”主题跑道、森林漫步道等,匠筑全龄美好社区。


效果图
2项目配套
大华·梧桐樾带给你的,远远不止于超强超前的兑现力,TA更是一个均好性强者。项目1.5km半径范围内,周边教育、生态、商业、交通等,个个都是重量级!


区位图
1、文脉正芯,未来可期!正统“同济”血脉
在邻校与居住环境之间寻找一个平衡点,是无数开发商探讨的方向。而在这一点上,大华·梧桐樾掌握得恰到好处。
说到上海同济大学,想来都不会陌生。与大华·梧桐樾一路之隔的同济大学附属嘉定实验学校,正是延续了正统“同济”血脉,打造的与“母校”品牌一体化、管理一体化、培养一体化(信息源于嘉定区教育局官网)的9年制公办学校。
其中,同济实验中学位居嘉定公办初中第一梯队,一脉同源教育理念与资源,升学率常年稳居嘉定前位,2022年嘉定“名额到校均分”更是排行前三;
同济附小由嘉定区“十佳校园长”王建芳担任校长,中高级教师占比约为68%(数据来源于网络)。


同济附属实验学校
不仅如此,大华·梧桐樾深谙人居向往,项目所在板块3km直距范围内(来源百度地图),同济大学嘉定校区、安亭师范附属小学、上海同济黄渡学校等8所学校环伺,坐享区域核芯教育圈福利,入席即与高素质、高净值教育圈层住户为邻。


示意图
书香氤氲的成长环境影响着孩子的交友抉择,以及未来家风走向。这背后强大的“附加值”光环,正是大华·梧桐樾如此火热的重要原因!
2、近3000亩天然氧吧!把家搬进公园里
大华·梧桐樾,占据着不可复制的自然资源。与项目一路之隔的,是约1800亩的颖奕高尔夫球场,直线距离约1100米的地方还有约1150亩开放式汽车博览公园。近3000亩的自然绿意,真正的把家搬进公园里!


汽车博览公园
如果你对这个数据没有概念,那kb君就帮你算一算,与昆山城市生态森林公园大小相当,约等于3.5个亭林园,生态价值尽显!


颖奕高尔夫球场
3、速度开挂!轨交+高速+高架,帷幄一城繁华
纵观城市发展史,交通如同流动的血液,推动城市不断向前。
项目出门就是博园路城市主干道,可快速连接嘉闵高架、嘉松北路、沈海高速、京沪高速等,30分钟就能抵达虹桥主城、市中心等。还有11、14号线(规划)、嘉虹3号线(规划)轨交加持,一线直达市区核心,瞬息全城无界生活。
从公路到高铁的立体复合式交通,带来的不仅是城市的便捷,更是对城市发展维度的诠释。


示意图
便捷交通带来的,是无限繁华的生活。对向往在上海居住的昆山人来说,大上海的繁华配套,有着致命的吸引力!
项目直线4公里范围内,约40万㎡缤纷商业配套,包括嘉亭荟城市广场、三德广场和安亭财富广场。商业氛围浓到“化不开”,无论走到哪都能放肆消费。


嘉亭荟城市生活广场
大华·梧桐樾
嘉定 安亭
物业类别:普通住宅
建筑类别:板楼
装修状况:精装修
产权年限:普通住宅产权为70年
开发商:大华集团
交房时间:2025年6月之前
在售均价:34700元/㎡
售楼处: 952358425(可+V)
建筑面积:183000㎡
占地面积:92672.3 ㎡
车位信息:车位数 2736
容积率:2.3
绿化率:35%
物业公司:大华物业
物业费:3.85元/㎡-月
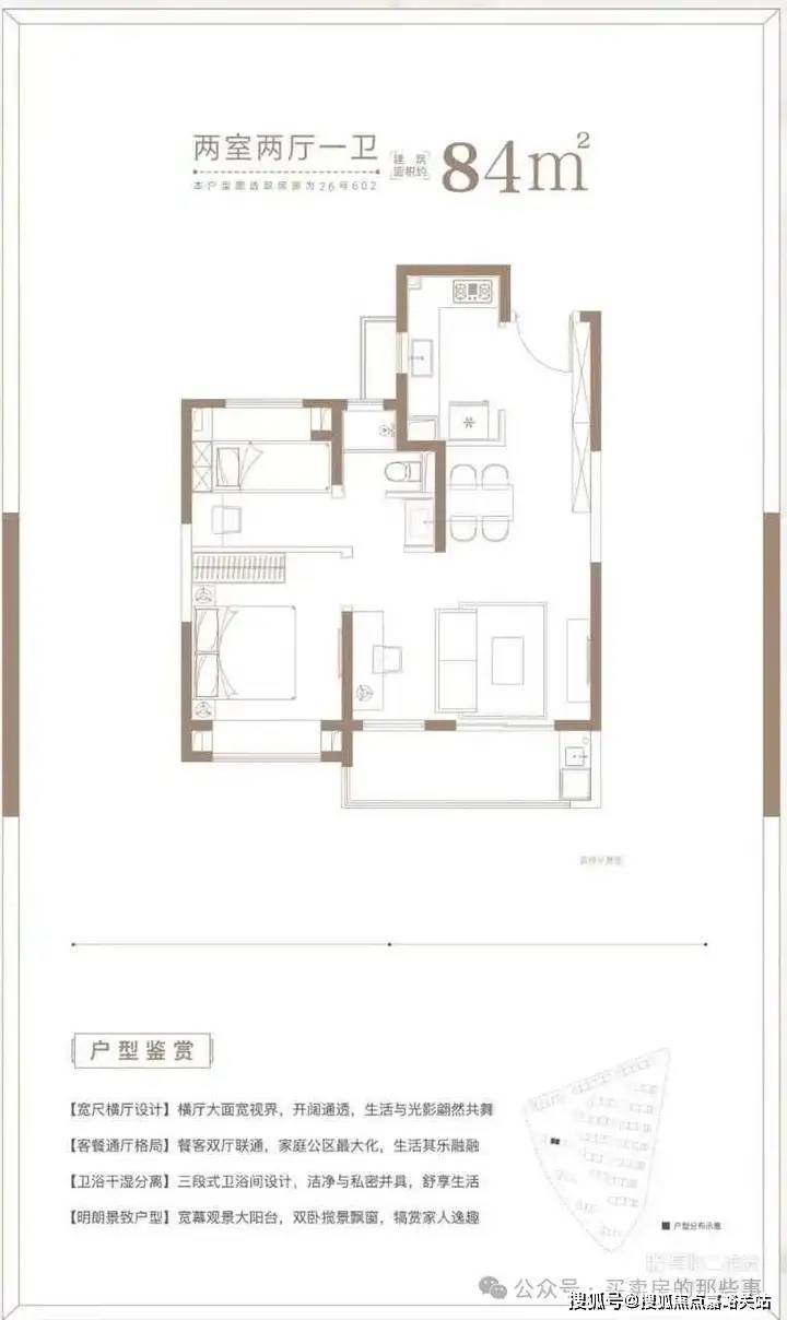
3户型图














发布于 2025-05-20 14:25・江苏
赞同 2添加评论
分享
收藏喜欢
收起
更多回答

刘云齐

链家 员工
关注
大华梧桐樾
楼盘介绍
占地面积:92673平米
建筑面积:约30万方
均价:高层3.1万/㎡起,叠墅4.2万/㎡
高层:92-101㎡
叠墅:122-130-145㎡
大华梧桐樾售楼处电话:4 00-8874-108✔【已认证】⭐⭐⭐⭐⭐
大华梧桐樾营销中心电话:400-88 74-108✔✔【已认证】⭐⭐⭐⭐⭐
上海大华梧桐樾官方售楼处电话:400-8874-10 8 VIPLINE✔✔✔【已认证】⭐⭐⭐⭐⭐
如有问题可来电咨询,线上售楼中心,预约销售专员,一对一为您服务!
想了解大华梧桐樾更多信息?拨打售楼处营销中心热线:400-8874-108 (中介勿扰)【24小时热线】
楼盘项目全面介绍,本电话为开发商提供线上预约售楼电话,楼盘项目全面介绍(包含楼盘简介,均价,房价,现房,期房,别墅,叠墅,大平层,价格,楼盘地址,户型图,交通规划,备案价,备案名,项目配套,样板间,开盘时间,认筹时间,楼盘详情,售楼处电话,最新消息,最新详情,周边配套,一房一价,最新进展等详情咨询)楼盘详情丨价格丨更多优惠丨机不可失丨欢迎致电丨诚邀品鉴!售楼处位置丨特价房丨工抵房丨剩余房源丨户型图丨最新消息丨免责声明:将文章内容综合来源于网络、只作分享,版权归原作者所有!!如有侵权,请联系我们,我们第一时间处理如有问题欢迎来电咨询,专业一对一热情服务,让您用专业眼光去买房.如果您想了解更多楼盘详情,欢迎提前预约拨打
2025年前三季度,房企融资仍然呈现收缩态势。其中第三季度融资1145亿,环比上升5%,但同比下降35%。
可见,自2024年房企融资支持政策虽然边际改善,各地更是推广融资协调机制“白名单”,但非银融资规模仍未改变下滑趋势。
2021年至今房地产行业已进入调整期的第四年,截至2025年三季度已有不少房企已完成了全部的债务重组。
据CRIC统计,累计来看,当前共计11家房企实现了境内或境外部分的债务重组。
在过去一年里,中央政府提出促进房地产市场止跌回稳的目标,企业主体能够正常运作是房地产止跌回稳的一个重要标志。

CRIC统计数据显示,2025年前三季度,融资规模达3072亿,同比下降30%。其中第三季度融资1145亿,环比上升5%,但同比下降35%,处于历史低位。多数民营房企,尤其是出险房企,融资难的问题依然突出。

从企业的债券类融资成本来看,2025年前三季度的境外债券融资成本为8.95%。而境内债券融资成本进一步下降至2.57%,较2024年全年继续下降了0.34个百分点。境内债券融资成本不断下降,一方面是由于自2024年货币环境开始宽松,LPR持续下调;另一方面,发债主体大多数为国企央企及优质民企,这类企业融资优势较为明显,如发债较多的招商蛇口、中交地产、美的置业等等。2025年前三季度,整体新增债券类融资成本为3%。


从企业的性质分类来看,2025年前三季度国企、央企的发债量为1313亿元,同比下降了8%。而民营企业的发债量为134亿,同比下降13%;此外混合所有制企业发债量106亿,同比增长22%。需注意的是,2025年前三季度国企央企的发债量占比达85%。

从成本上来看,国企、央企2025年前三季度的融资成本为2.58%,而民营企业则为5.40%,两者之间的差距再次扩大到2.82个百分点;此外混合所有制房企的融资成本下降至3.90%。在当前融资环境下,有充足抵押物及其他增信措施的优质房企更能够在政策扶持中受益,同时也能够获取更多的低息借款。


从2021年恒大正式暴雷到2025年,房地产行业已进入调整期的第四年,截至2025年三季度也有不少房企已完成了全部的债务重组。从境内破产的法律程序来看,华晨地产、协信远创、金科股份、新华联已陆续完成了破产重整,而港股房企福晟国际也于2023年以股本重组及定增的代价实现了债务重组。
在债务重组方面,旭辉集团已经实现了境内外债务的整体重组;龙光集团与融创集团的境内债均重组成功,境外债重组方案已得到大多数债权人支持,其中融创将于10月14日举行境外债务重组计划会议,而龙光已于9月10日与债权人小组订立修订协议。以此来看,当前完成破产重整或股本重组的房企共计5家,境内外整体债务实现重组或接近成功的房企共计3家。
除此之外,世茂集团、佳兆业、中梁控股、金轮天地控股、中国奥园、时代中国控股、远洋集团以及禹洲集团共计8家企业的境外债重组成功,荣盛发展及绿地控股也分别对境外债展期。此外,花样年也于2023年完成了境内债的重组。累计来看,共计11家房企实现了境内或境外部分的债务重组。
事实上,债务重组成功并不意味着企业恢复正常经营轨道。以近期刚完成境内外债务重组的旭辉为例,2025年8月,旭辉董事局主席林中对外表示,旭辉控股距离真正“站起来”,可能还需要三年时间,从低谷再出发,公司要进行二次创业,更明确提出将不会再重蹈“高杠杆、高负债、高周转”的覆辙,而要走一条“轻资产、低负债、高质量”的新路径。此前,林中曾提及,未来旭辉控股聚焦三大核心业务板块:一是稳定的收租业务,也就是旭辉持有的上海、北京等一二线城市优质商业资产组合;二是高度聚焦的开发业务,收缩深耕少数核心城市;三是房地产资管业务,学习美式开发商经验,向铁狮门、黑石方向发展。


从债务到期来看,2024年房企债券到期规模达4829亿,而发行规模仅有2209亿,房企无法通过借新还旧覆盖到期债务。此外由于近年来不少房企选择将债务展期或置换,在此背景下2025年房企的债务压力较大,2025年债务到期规模甚至要高于2024年,达5342亿元;其中2025年第三季度是偿债高峰,到期规模约1600亿元。由于近年来,房企债券发行规模下滑明显,2026年房企整体的债务到期规模也明显下降,其中2026年一季度到期约1298亿,三季度到期1170亿。

值得注意的是,近年来公募REITs在我国大力推行,有助于帮助房企将原本沉淀在自持物业中的资金释放出来,用于偿还债务、补充流动资金等。目前不少房企已经试水公募REITs或积极筹备发行。从中期业绩会及财务年报中的表态来看,华润置地、招商蛇口以及新城控股等均有明确表示未来要扩大REITs规模。
当前房地产行业仍处于深度调整期,以往传统的“重资产”模式已难以适应当前的新形势,而公募REITs的出现能够帮助房企从开发商向运营商的角色转变,通过打造“投融管退”的全链条业务模式,帮助房企由“重”向“轻”的资产结构转变。
除此之外,对于开发业务而言,出险房企的首要任务仍是与金融机构和债权人积极协商,适当延长债务期限,缓解当前的债务压力。未出险房企,需要对企业的土地储备进行结构性调整,尤其是加快滞重库存的去化,加快低量级城市项目去化。