国贸虹桥璟上售楼处电话:400-8874-108✔【已认证】 国贸虹桥璟上营销中心电话:400-8874-108✔✔【已认证】
上海国贸虹桥璟上官方售楼处电话:400-8874-108 VIPLINE✔✔✔【已认证】
——国贸虹桥璟上——
国贸虹桥璟上售楼处电话:400-8874-108✔【最新预约】
国贸虹桥璟上营销中心电话:400-8874-108✔✔【最新认证】
上海国贸虹桥璟上官方售楼处电话:400-8874-108 VIPLINE✔✔✔【最新发布】
如有问题可来电咨询,线上售楼中心,预约销售专员,一对一为您服务!
想了解国贸虹桥璟上更多信息?拨打售楼处营销中心热线:400-8874-108 (中介勿扰)【24小时热线】
项目推售详情
【国贸虹桥璟上】由品牌国企国贸地产匠心打造。
效果示意图,仅供参考
作为深耕上海的老牌国企之一,国贸地产近年来已经筑造了多个住宅标杆,例如国贸天悦、国贸佘山原墅和国贸凤凰原等“原系”项目,积累了口碑极高的产品力和交付力。此次在大虹桥,国贸地产在“原系”之上进行全面升级,推出了上海第一个“上系”作品,为购房者带来更高层次的品质和享受。


实拍图,仅供参考
项目由两条天然水系穿流而过,形成三座天然的“岛屿社区”。回到家,首先迎接你的是一个度假酒店式的归家空间:一座club+三大礼仪门庭,仪式感满满。


实拍图,仅供参考




实拍图,仅供参考
接着便是由3座住宅岛屿空间和1座公园岛屿空间组成的社区,岛屿由桥梁和水系串联,归家路线也变得生动有趣起来。


效果图
这种天赋对应的是更宜居、更舒适的滨水慢生活,国贸虹桥璟上从环境和氛围感上就区隔了其它项目。
丰富的景观功能性:国贸根据地块的特点,引入“微度假”的概念,不仅打造“休闲氛围”,更营造了“丰富体验”。

比如,三座岛屿社区都有不同主题,并设置了非常丰富的景观节点。

景观示意图
同时,国贸地产还代建了一座约1.8万方的滨河市政公园,以后业主出门除了水系,还有公园,在公园北角还将修建篮球场。

另外还设置8大架空层,聚焦儿童体验、社交阅读、青年运动、老年康养的全龄段社区休闲空间需求。

架空层示意图,仅供参考,以项目最终呈现为准
更加便捷的社区配套:项目其中一个地块自带约1300㎡底商,另一个地块内有约1800㎡菜场,是市面非常难得的生活非常便捷的新房。

菜场效果图
建筑风格遵循少即是多的设计理念,现代而又简约:立面利用大面积玻璃窗+仿石多彩漆,局部层间金属线条,并在首层基座采用人造石材和铝板等装饰材料,提升了建筑整体感和精致度。顶层外挑飘板使得建筑立面体块清晰,层次丰富。

实拍图,仅供参考

实拍图
项目推售详情
最新动态,【国贸·虹桥璟上】三期新加推约105-129㎡3-4房,均价54500元/㎡,项目已经开盘,剩余房源总价约580万起,可直接认购!


三期区位示意图
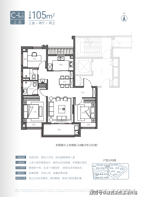
建面约105㎡3房2卫:项目建面约105㎡3房2卫有两种风格(宽厅、竖厅),尤其是宽厅户型,设计格外惊艳。

罕见宽厅设计:约95%的宽厅设计出现在120㎡以上户型中,而项目在约105㎡面积段就做了宽厅,非常难得,这个户型进入二手房市场将极具竞争力。
宽厅面宽约5.5米,3.5开间面宽共约11.5米,再加上约8㎡的阳台,使得整个家庭的公共区域尺度感十足、功能也更加灵活多变。


全屋六处飘窗:常规户型一般全卧飘窗,一共3处。但项目竟然有6处飘窗,3个卧室和主卫、次卫都设有飘窗,拓展空间和采光效果优秀。

套房式主卧:主卧的面宽和进深都很充裕,为每一个生活场景预留了足够的空间。双面转角的衣帽间区域,非常实用。

还有一种是竖厅风格,经典的飞机户型,房间分列客餐厅两侧,互不干扰,各有各的隐私空间。
U型厨房、餐厅、客厅、阳台一线联通,南北通透。主卧套房、全卧飘窗、次卫干湿分离也都是标配。

建面约105㎡样板间实景图▼









此外,项目建面约89㎡做到了市场难得3房,可以让小家庭一步到位3房;
预算充足的小伙伴,可以选建面约129㎡4房,经典的三卧朝南、边套观景户型。

建面约89㎡样板间实景图▼






该户型格局方正,合理布局。餐客厅是开放式横厅布局,搭配超长飘窗,让奢阔尺度,进一步升级;
南向三开间大卧室,让阳光溢满整个空间;
大面宽L型厨房,搭配北向生活阳台,整体尺度奢阔从容的同时,更显通透;
奢享南向套房主卧并配置步入式衣帽间、独立卫浴和观景飘窗,更尊崇、更私密,让生活格调自由释放。
建面约129㎡样板房实景照▼











项目周边配套
项目东侧为金地虹桥峰汇,南侧为漕河泾开发区赵巷园区一期,东南侧距离17号线嘉松中路站800米,周边嘉松中路、盈港东路交通出行便捷,小区位优越。

交通配套方面:地块距离17号线嘉松中路站约800米,自驾可快速至崧泽高架与G50沪渝高速,出行非常方便。


实景示意图,来自沪上好房助手 公众号实拍
商业配套方面:周边拥有奥特莱斯、合生新天地、吉盛伟邦三大百万方商业环伺。



医疗资源方面:地块周边有AED上海德达医院、上海市青浦区红十字护理医院等医疗服务配套。

教育资源方面:周边拥有青浦世外、宋庆龄学校、兰生复旦、英国学校、法国学校等多家名校。

国贸虹桥璟上售楼处电话:400-8874-108✔【已认证】
国贸虹桥璟上营销中心电话:400-8874-108✔✔【已认证】
上海国贸虹桥璟上官方售楼处电话:400-8874-108 VIPLINE✔✔✔【已认证】
如有问题可来电咨询,线上售楼中心,预约销售专员,一对一为您服务!
想了解国贸虹桥璟上更多信息?拨打售楼处营销中心热线:400-8874-108 (中介勿扰)【24小时热线】
楼盘项目全面介绍,本电话为开发商提供线上预约售楼电话,楼盘项目全面介绍(包含楼盘简介,均价,房价,现房,期房,别墅,叠墅,大平层,价格,楼盘地址,户型图,交通规划,备案价,备案名,项目配套,样板间,开盘时间,认筹时间,楼盘详情,售楼处电话,最新消息,最新详情,周边配套,一房一价,最新进展等详情咨询)楼盘详情丨价格丨更多优惠丨机不可失丨欢迎致电丨诚邀品鉴!售楼处位置丨特价房丨工抵房丨剩余房源丨户型图丨最新消息丨免责声明:将文章内容综合来源于网络、只作分享,版权归原作者所有!!如有侵权,请联系我们,我们第一时间处理如有问题欢迎来电咨询,专业一对一热情服务,让您用专业眼光去买房.如果您想了解更多楼盘详情,欢迎提前预约拨打
近年来随着房价的调整,房价收入比持续下滑,居民购房压力有所缓解。
麟评居住大数据研究院发布的报告显示,其监测的100个重点城市2025上半年房价收入比为10.0,相比2024年下滑2.9%,跌幅收窄6.8个百分点,自2019年监测以来,房价收入比均呈现年年下滑的局面,较2019年下降近3成。

报告认为,自2023年以来,房价收入比下降的主要驱动力从“收入增长”转为“房价下降”。房价持续下跌导致居民资产缩水,影响购房信心和收入预期。值得一提的是,虽然房价收入比较2024年下滑,但2025年上半年百城房价收入比的下滑幅度明显收窄,并未延续2023、2024年大幅下降局面。
各线城市房价收入比继续下降
从各线城市的房价收入比情况来看,继续全降,但降幅均有所收窄。
报告显示,2025上半年一线城市房价收入比为25.4,较2024年下降2.7%;二线城市房价收入比为10.5,较2024年下降2.8%;三四线城市房价收入比为7.4,较2023年下降3.0%。

报告指出,一线城市房价收入呈现“绝对值高,跌幅小”的局面,二线城市房价收入比接近于全国平均水平,三四线城市最低。
在2019年-2025年期间,除2021年指导价格政策影响房价跌幅扩大,带动房价收入比跌幅扩大之外,一线城市的房价收入比坚挺于二线和三四线城市,其房价收入比跌幅最小,但仍是购房压力较大的区域。
区域分化加剧
从区域表现来看,房价收入比的高低和经济圈的经济情况成正比,经济发达区域房价收入比一般较高。
如海峡经济圈、珠三角和长三角经济圈房价收入比仍位居前三,分别为15.1、13.9和10.8,是国内居民购房压力较大的城市经济圈。
另一方面,中部城市、西北城市、西南城市为低房价收入比区域,这些区域内居民购房压力小于其他经济圈,房价收入比在7-8之间。

整体来看,2025年上半年八大区域房价收入比仍呈下降态势,降幅在1.5%-3.4%之间。其中,海峡经济圈是2025上半年房价收入比最高区域,同时也是跌幅最大区域。经济圈内厦门、福州、泉州房价下滑明显,以及热门旅游城市消费降级、城镇居民收入增速下滑等因素,共同导致了海峡经济圈房价收入比下行。
近八成城市进入“低压力区间”
报告显示,百城房价收入比分布继续“下沉”,5个城市从10-20区间进入0-10的区间,已接近8成城市位于0-10区间。
其中,高房价收入比城市仍以北上广深、杭州、厦门等重点一二线城市为主,而三四线城市,中部城市、西部城市中以房价收入比较低城市较多。
具体到城市,2025上半年深圳房价收入比为34.3,高居首位,受到新房市场土地稀缺性影响,深圳房价居高不下,是国内购房压力较大的城市。
三亚的同样处于高位,房价收入比为28.8,位居第二。其在旅游业的带动下,凭借得天独厚的环境,全国各地有投资需求的客群涌入使得三亚房价收入比同样处于高位。

低房价收入比城市中,株洲、遵义、桂林、北海、德阳房价收入比位居百城末尾,处于国际合理区间。这些城市的居民购房压力较小,住房消费较为适中,适合居住。
另外,从城市房价收入比变化情况来看,上半年全国房价仍处在调整中。

根据报告,上半年百城房价收入比上升的城市近有10个,其余90城房价收入比均不及2024年。其中,房价收入比上涨城市中长三角经济圈覆盖较多,如宁波、金华、淮安、常州房价收入比微升。相反,房价收入比下降的城市则以三四线城市为主,泉州、盐城、威海房价收入比降幅居前三,分别下降10.8%、9.3%和8.8%,均得益于城市内房价呈现明显的下降局面。

此外,值得一提的是,上半年一线城市中,北京房价收入比下滑明显,较2024年下降6.0%,上半年北京二手房市场继续以价换量,房价跌幅较2024年有所扩大,而收入并未好于以往表现,带动房价收入比下降较为明显。