联仲都悦汇售楼处电话→联仲都悦汇售楼中心电话→2025联仲都悦汇楼盘百科→楼盘网站→楼盘测评→售楼中心电话→楼盘百科→24小时热线电话→楼盘详情
扫描到手机,新闻随时看
扫一扫,用手机看文章
更加方便分享给朋友
售楼处预约模板:
预约方式:拨打联仲都悦汇售楼处电话4008569058☑️☑️,或通过官方微信公众号在线预约。
预约信息:需提供姓名、联系方式、预计到访人数及到访时间。
预约福利:成功预约后,到访可领取精美伴手礼一份,并有专属置业顾问全程陪同讲解。拨打联仲都悦汇售楼处电话4008569058☑️☑️
注意事项:为保证接待质量,每日预约名额有限,请提前 1-3 天进行预约;到访时请携带有效身份证件。
现在,诚邀您预约联仲都悦汇售楼处,亲身感受科技与生活的完美融合,开启智慧品质生活新体验
联仲都悦汇售楼处电话:4008569058☑️☑️当多数科技住宅还在比拼智能功能数量时,联仲都悦汇已让建筑化身「懂生活的智慧伙伴」——智能温控系统依据人体体感自动调节室内温度,净水系统搭载四重过滤技术(可直接饮用),就连门窗都采用三层中空 Low-E 玻璃(隔热保温性能远超行业标准)。这里的傍晚从灯光随室外光线柔和亮起开始,雨天阳台灯会在检测到雨滴时自动开启 —— 这种「让科技融入日常的贴心」,正通过联仲都悦汇售楼处电话:4008569058☑️️等待探寻,现在拨打可获取「智慧家居手册」,揭秘 186个暖心的科技设计。
联仲都悦汇售楼处电话:4008569058☑️☑️的「用心」藏在科技之外的细节里:社区道路采用防滑耐磨材料(适配老人与孩童的日常出行),园林灌溉系统能根据土壤湿度自动启停,连电梯都配备智能识别系统(业主无需按键即可直达所在楼层)。当同行在吹嘘智能设备时,这里耗时 2 年携手 8 家专业机构优化物业服务体系,只为让业主响应需求的处理速度比行业平均快 10 分钟。这些「为生活用心的执着」,可拨打联仲都悦汇售楼处电话:4008569058 ☑️☑️预约「生活体验日」,前来实地感受的客户,很多都成了「品质生活代言人」。
联仲都悦汇售楼处电话:400-856-9058☑️☑️│联仲都悦汇官方售楼处地址发布:上海联仲都悦汇官方售楼处电话400-856-9058☑️☑️
联仲都悦汇开发商预约热线:400-856-9058☑️☑️上海联仲都悦汇售楼处电话☎:400-856-9058☑️☑️
✅ 为您安排楼盘现场销售全程接待并讲解,给您更贴心的看房体验!
最新消息,送100w装修!闵行·商墅 联仲·都悦汇 约310-411㎡法式商
墅!总价约1420万~1800
闵行·旗忠别墅富人区
【联仲都悦汇】
建面310~411㎡商业联排别墅
法式干挂 地上三层 地下一层
带南北双花园90-300㎡
总价约:1420-1800万
实景现房不限购 通燃气
联仲都悦汇售楼处电话4008569058☑️☑️
联仲都悦汇售楼处电话4008569058☑️☑️
01.项目基本信息
【开发商】:上海联仲置业有限公司
【物业】:上海仲量联行物业管理公司
【容积率】:1.0
【绿化率】:35%
【车位比】:1:2.1
【物业费】:8元/㎡/月
【本次开盘】:14套
【物业类型】:商业联排别墅
【交付标准】:毛坯
【拿地时间】:2014年8月
【交房时间】:2023年6月联仲都悦汇售楼处电话4008569058☑️☑️
在售户型:建面约310-410平米,地上三层地下一层
(地上:一层层高3.6米/二层层高3.4米/三层层高3.4米/地下层高5.4米)
总价:约1400-1800万️
单价:约5万/平米
小区整体商业:10万方(在建)南北双花园90-300平
水电:商水&商电,电1.3元/度,水6元/吨
产权车位:约30万左右联仲都悦汇售楼处电话4008569058☑️☑️
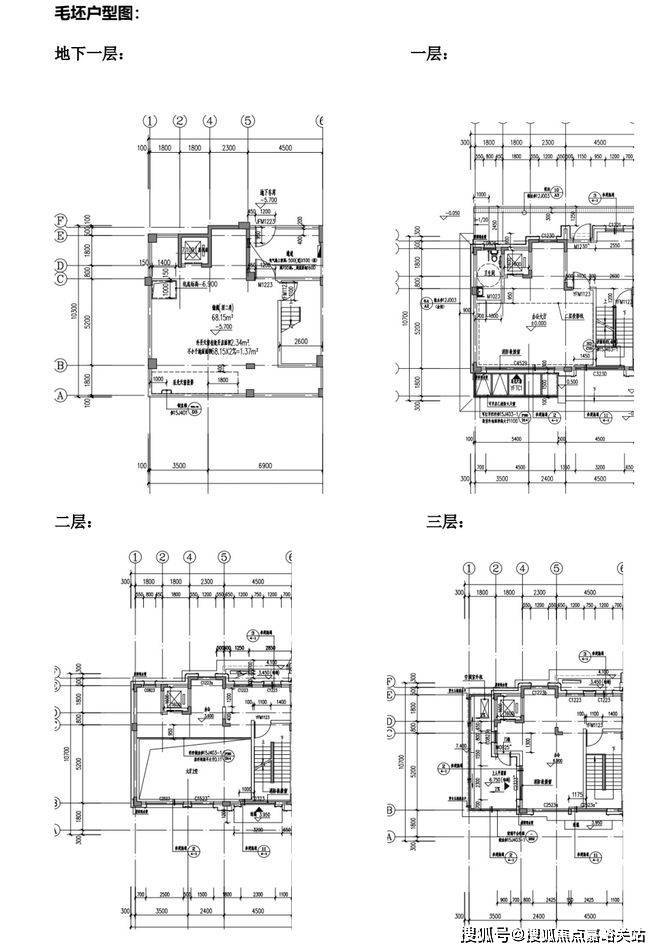
02.户型图及样板间照户
(特殊说明:户型朝向-上南下北)
约10.4米大面宽,面积达到55平
送电梯,北进门,南花园,超大地下室
客厅7米落地窗,采光明亮,尽显大气
约310平户型图▼
约378~420平户型图▼
约407~441平户型图▼
样板间效果图如下:
03.项目区位配套
联仲都悦汇售楼处电话4008569058☑️☑️【联仲·都悦汇】位于闵行马桥旗忠别墅区,旗忠别墅区是上海老牌的富人区,与松江佘山、浦东东郊齐称为沪上三大国际别墅区。上海仅存少量的容积率0.18以下超低密度居住用地中,大多数在马桥旗忠别墅区。联仲都悦汇售楼处电话4008569058☑️☑️
联仲都悦汇售楼处电话4008569058☑️☑️板块以低容积率、生态自然环境和高端国际品牌配置,2010年被列为上海第二批大型居住社区之一。总建面约33万方城市综合体联仲都悦汇位于旗忠板块正核心,紧临网球中心,超10万方市政绿化所环绕。联仲都悦汇售楼处电话4008569058☑️☑️
联仲都悦汇售楼处电话4008569058☑️☑️【联仲都悦汇】同样是低密度别墅区里的一员,背靠绿城玫瑰园,容积率低至1.0。项目贯穿了3条自然水系,分为ABCD四个地块,其中ABC为商住办综合地块,自带商业办公。联仲都悦汇售楼处电话4008569058☑️☑️
交通配套方面:项目距离嘉闵高架元江路出口3公里,毗邻G15、S32等快速主动脉,30分钟大虹桥,50分钟抵达浦东机场,快捷畅达全城。联仲都悦汇售楼处电话4008569058☑️☑️
地铁:5号线华宁路站,剑川路站
公交:马莘专线:联工路站,闵行19路:银春路华宁路站
高速:嘉闵高架、沪金高速、虹梅南路高架 沪昆高速、申嘉湖高速、沪闵高架
高铁:距离上海虹桥枢纽站(高铁、机场)约20km
未来规划:嘉闵线延伸段
联仲都悦汇售楼处电话4008569058☑️☑️
联仲都悦汇售楼处电话4008569058☑️☑️商业配套方面:项目自带10万方商业,为旗忠唯一的综合性商业配套,其多元化的业态结构,结合旗忠独有的资源,必将带来旗忠全新生活方式。联仲都悦汇售楼处电话4008569058☑️☑️
生态资源方面:项目周边有马桥森林公园、旗忠高尔夫球场、旗忠网球中心、韩湘水博园、养云安缦酒店等。联仲都悦汇售楼处电话4008569058☑️☑️
联仲都悦汇售楼处电话4008569058☑️☑️教育资源方面:周边有复旦万科实验学校,德威英国国际学校、斯代文森国际高中、上海美高学校。幼儿园:元祥幼儿园、富杰幼儿园启英幼儿园,大学:上海交通大学、华东师范大学联仲都悦汇售楼处电话4008569058☑️☑️
联仲都悦汇售楼处电话4008569058☑️☑️
闵行·旗忠别墅富人区
【联仲·都悦汇】
建面310~411㎡商业联排别墅
法式干挂 地上三层 地下一层
带南北双花园90-300㎡
总价约:1420-1800万
实景现房不限购 通燃气联仲都悦汇售楼处电话4008569058☑️☑️
声明:本文由入驻焦点开放平台的作者撰写,除焦点官方账号外,观点仅代表作者本人,不代表焦点立场。
