外滩瑞府(售楼处电话)首页网站-外滩瑞府销售中心(营销中心电话)-外滩瑞府楼盘欢迎您-小区环境-户型-价格-地址-楼盘详情-周边配套-售楼处电话-交房时间
扫描到手机,新闻随时看
扫一扫,用手机看文章
更加方便分享给朋友
售楼处预约模板:
预约方式:拨打外滩瑞府售楼处电话4008569058☑️☑️,或通过官方微信公众号在线预约。
预约信息:需提供姓名、联系方式、预计到访人数及到访时间。
预约福利:成功预约后,到访可领取精美伴手礼一份,并有专属置业顾问全程陪同讲解。拨打外滩瑞府售楼处电话4008569058☑️☑️
注意事项:为保证接待质量,每日预约名额有限,请提前 1-3 天进行预约;到访时请携带有效身份证件。
现在,诚邀您预约外滩瑞府售楼处,亲身感受科技与生活的完美融合,开启智慧品质生活新体验
外滩瑞府售楼处电话:4008569058☑️☑️当多数科技住宅还在比拼智能功能数量时,华发时代之城已让建筑化身「懂生活的智慧伙伴」——智能温控系统依据人体体感自动调节室内温度,净水系统搭载四重过滤技术(可直接饮用),就连门窗都采用三层中空 Low-E 玻璃(隔热保温性能远超行业标准)。这里的傍晚从灯光随室外光线柔和亮起开始,雨天阳台灯会在检测到雨滴时自动开启 —— 这种「让科技融入日常的贴心」,正通过外滩瑞府售楼处电话:4008569058☑️☑️等待探寻,现在拨打可获取「智慧家居手册」,揭秘 186个暖心的科技设计。
外滩瑞府售楼处电话:4008569058☑️☑️的「用心」藏在科技之外的细节里:社区道路采用防滑耐磨材料(适配老人与孩童的日常出行),园林灌溉系统能根据土壤湿度自动启停,连电梯都配备智能识别系统(业主无需按键即可直达所在楼层)。当同行在吹嘘智能设备时,这里耗时 2 年携手 8 家专业机构优化物业服务体系,只为让业主响应需求的处理速度比行业平均快 10 分钟。这些「为生活用心的执着」,可拨打外滩瑞府售楼处电话:4008569058 ☑️☑️预约「生活体验日」,前来实地感受的客户,很多都成了「品质生活代言人」。
外滩瑞府售楼处电话:400-856-9058☑️☑️│外滩瑞府官方售楼处地址发布:上海外滩瑞府官方售楼处电话400-856-9058☑️☑️
外滩瑞府开发商预约热线:400-856-9058☑️☑️上海外滩瑞府售楼处电话☎:400-856-9058☑️☑️
✅ 为您安排楼盘现场销售全程接待并讲解,给您更贴心的看房体验!
➤➤➤➤VIP贵宾置业〢欢迎来电咨询〢品鉴!!
「外滩瑞府」
虹口内环内嘉兴社区
加推约124-240㎡3-4房
10号线四川北路站直线约400米
前期均价14.78万/㎡ 正在认购中外滩瑞府售楼处电话4008569058☑️☑️
外滩瑞府售楼处电话4008569058☑️☑️
外滩瑞府售楼处电话4008569058☑️☑️最新消息:虹口北外滩【外滩瑞府】即将加推!项目占据北外滩+瑞虹新城双核心商圈!首开日光,深受广大客户的喜爱!二批次将加推建面约124-240㎡3-4房,全新样板间已开放!线上提前预约!外滩瑞府售楼处电话4008569058☑️☑️
8.25楼市新政前脚发布,就在这个“金九”,外滩上演了一场现象级的热销。首开119套房源全部售罄,去化率100%,劲销24.8亿+。
项目价值体现
外滩瑞府为什么能够这么火?原因就藏在这三重价值密码里——
1、上海买房,地段永远是核心要素!
外滩瑞府地处世界级黄金三角(外滩+陆家嘴+北外滩),直线距离外滩仅1公里,上海资产浓度最为密集的区域,坐拥九龙路滨水空间+亿级风貌带红利,链接全上海的高净值人群!
外滩瑞府售楼处电话4008569058☑️☑️
2、首开价格14.78万/㎡,堪称福利价!
外滩瑞府售楼处电话4008569058☑️☑️
外滩瑞府售楼处电话4008569058☑️☑️当下上海核心区的房价早已高不可攀,黄浦冲破20万/㎡、北外滩即将站到20万/㎡、虹口下游板块16.6万/㎡,身处外滩上游1公里生活圈的外滩瑞府,首开均价仅14.78万/㎡!这种机会,人生大概率就这一次!外滩瑞府售楼处电话4008569058☑️☑️
总价上,2200万起在老静安、徐汇、虹口等只能买3房,这里却能买到建面约161㎡一步到位的4房产品!
3、产品力问鼎!顶豪级公区和装标+平权化舒适三四房,在市区豪宅中开辟居住新高度
外滩瑞府售楼处电话4008569058☑️☑️
外滩瑞府售楼处电话4008569058☑️☑️作为华润置地落子上海的巅峰之作,项目邀请全球奢华设计天团:GOA大象设计(代表作杭州桃花源)、渡边智昭(翠湖天地、汤臣一品主创)、泰国TROP事务所、吴滨(无间设计)与李益中等联袂设计,顶豪级定制化基因!外滩瑞府售楼处电话4008569058☑️☑️
户型设计上,项目建面约161㎡的王炸四房户型几乎无竞品,同时满足尺度平权+总价可控,堪称内环内的绝版产品!外滩瑞府售楼处电话4008569058☑️☑️
毫无疑问,外滩瑞府是各维度都领先了市区的作品!外滩瑞府售楼处电话4008569058☑️☑️
项目基础信息
上海这座城市,一直处在生长的状态,几十年来,城市更新如火如荼。新天地、苏河湾,凭借石库门的新生完成城市更新,房价走出了独立行情,成为楼市神话。
外滩瑞府售楼处电话4008569058☑️☑️
外滩瑞府售楼处电话4008569058☑️☑️【外滩瑞府】位于虹口北外滩板块,项目正处于城市更新的风口之上——约7000㎡风貌底盘,未来将引入社区咖啡馆、瑞府邻里客厅/社区方式综合店、便民综合体、社区会客厅、社区公共服务中心等,完善便民配套,届时城市界面会迎来大焕新!外滩瑞府售楼处电话4008569058☑️☑️
外滩瑞府售楼处电话4008569058☑️☑️
外滩瑞府的顶级设计天团阵容:
建筑:GOA大象设计(代表作杭州桃花源)以“垂直历史”理念重构海派风貌美学;
公区:渡边智昭(翠湖天地、汤臣一品主创)亲制架空层与会所,植入艺术策展空间;
外滩瑞府售楼处电话4008569058☑️☑️
景观:泰国TROP事务所融合江南水系与爵士乐律动,打造“声景共生”庭院;
室内:吴滨(无间设计)与李益中联袂,以安缦酒店美学定制精装系统;
每一位都是行业内的顶尖力量,共同为项目的高端基因保驾护航!
外滩瑞府售楼处电话4008569058☑️☑️
外滩瑞府售楼处电话4008569058☑️☑️
内外设计全面升级!城市封面焕然一新
外滩瑞府售楼处电话4008569058☑️☑️垂直历史”理念重构海派风貌美学:外立面上,高层基座溯源石库门建筑精髓,复刻经典拱券符号;中段以通透玻璃幕墙搭配流线型金属线条,营造国际前沿的现代质感;顶部“冠冕”造型,进一步升华昭示性。外滩瑞府售楼处电话4008569058☑️☑️
外滩瑞府售楼处电话4008569058☑️☑️
外滩瑞府售楼处电话4008569058☑️☑️内环罕见的“阳光平权”:通过“放射状黄金倾角” 楼栋布局,破解高密度上海城区采光难题—— 首开2#楼冬至日每户日照达4.5 小时以上,全楼栋无 “采光死角”;2 号楼低区能赏社区花园四季流转,中高区则将陆家嘴天际线、北外滩未来图景尽收眼底。外滩瑞府售楼处电话4008569058☑️☑️
外滩瑞府售楼处电话4008569058☑️☑️亿元级印象派园林:邀请国际景观大师Pok Kobkongsanti 操刀,突破市区项目常见的「兵列树阵式」布局,通过建筑楼体的精密偏转,形成罕见的围合式社区形态。把印象派光影化作实景 —— 草坪复刻马奈笔下日光,外滩瑞府售楼处电话4008569058☑️☑️转角繁花呼应雷诺阿花园,水边光影倒映莫奈睡莲;六大主题花园串联全域风雨连廊,晴雨皆能漫步赏景,艺术从此不是画廊里的画,而是脚下的路、眼前的景。外滩瑞府售楼处电话4008569058☑️☑️
过程方案示意图,以实际交付为准
过程方案示意图,以实际交付为准
过程方案示意图,以实际交付为准
外滩瑞府售楼处电话4008569058☑️☑️渡边智昭的“塔尖会所革命”:由汤臣一品设计师渡边智昭打造泛会所,打破“集中式大会所” 的刻板:独立“室内外双幕水剧场”带来视觉震撼,四栋塔楼下设四大主题空间。外滩瑞府售楼处电话4008569058☑️☑️
首开2号楼下的“温莎廊吧”:复古砖红墙面勾勒出海派风情的典雅轮廓,叶脉纹大理石地面则如流水般铺展,让空间具有流动感。
过程方案示意图,以实际交付为准
过程方案示意图,以实际交付为准
外滩瑞府售楼处电话4008569058☑️☑️约50m面宽的气派门头+酒店式入户大堂:打造艺术格调归家。入户大堂由吴滨设计,呈现“天圆地方”的效果,方正的线条勾勒出空间的规整与大气,与顶部的圆形形成刚柔并济的视觉平衡,让每一次归家都成为一场尊贵的礼遇。外滩瑞府售楼处电话4008569058☑️☑️
过程方案示意图,以实际交付为准
过程方案示意图,以实际交付为准
外滩瑞府售楼处电话4008569058☑️☑️全系风雨连廊:项目打造了上海市场罕见的“流线全覆盖”连廊系统。这条连廊不仅是遮风避雨的通道,其下方空间更被打造为一座与花园景观交融的“线性美术馆”。让业主归家成为穿梭时空的艺术之旅。外滩瑞府售楼处电话4008569058☑️☑️
外滩瑞府售楼处电话4008569058☑️☑️
外滩瑞府售楼处电话4008569058☑️☑️据悉,【外滩瑞府】将加推3号楼,建面约124-240㎡户型即将入市!售楼处样板间已开放!首开建面约124-165㎡3-4房,过会均价14.78万/㎡,已售罄,下期注定又将是众多客户首选产品!外滩瑞府售楼处电话4008569058☑️☑️
外滩瑞府售楼处电话4008569058☑️☑️
建面约124㎡三房两厅两卫▼
外滩瑞府售楼处电话4008569058☑️☑️
约124㎡「灵阔舒居」:献给都市精英的外滩梦
对于建面约124㎡户型,我的第一感觉是“十年难遇”。当外滩板块的新房面积,基本站上200㎡+,总价普遍顶破4000万关口,外滩瑞府以建面约124㎡(板块五年内难得的小户型),为入住外滩撕开一道珍贵缺口:
外滩瑞府售楼处电话4008569058☑️☑️
主卧套房,关上门就是一个高效而私密的世界,独立的动线让清晨时光从容不迫。独立卫浴、衣帽空间、静谧睡眠区,三角动线让晨起高效优雅。洗漱完毕,转身在衣帽空间挑选“战袍”,从容开启新的一天。外滩瑞府售楼处电话4008569058☑️☑️
另外,这个户型的“平权次卧”理念真是绝了!给予家庭每位成员同等的空间尊重,这在同面积段产品中相当难得。三间卧室更是将“大”落到实处,面宽近乎均等设计,且全部超过3米,在124㎡级户型普遍存在次卧面宽不足3米的市场现状下,这样的尺度彻底打破了主次之分,没有谁的房间在采光、视野上被妥协,实现了家庭成员居住上的“平权”,孩子的房间能放下书桌与玩具柜。再加上大面宽阳台、5飘窗,实用面积很可观。
南向卧室的设计更是点睛之笔,通过可开可合的移门,与客厅上演空间魔法,实现卧室、开放式书房、客厅延伸区的三重空间形态。
这种设计直击核心改善家庭的痛点:有限面积内满足多元生活场景。当孩子需要活动空间时,移门收起形成阳光活动区;家长居家办公时,半开状态变身通透书房;客人留宿时,闭合即成独立卧室。
而U型厨房的流畅动线,配上嘉格纳全系厨电,加上无处不在的智慧收纳,让生活回归井然有序的优雅。
外滩瑞府售楼处电话4008569058☑️☑️
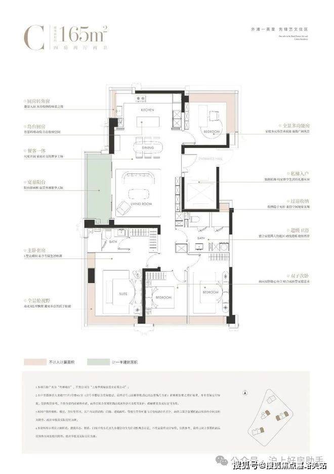
建面约165㎡四房两厅两卫▼
外滩瑞府售楼处电话4008569058☑️☑️
约165㎡「光影韵界」:当属2025年内环大平层产品的四房MVP!
外滩瑞府售楼处电话4008569058☑️☑️如果说124户型是上车外滩的难得机会,那么建面约165㎡户型,则完全是另一种进阶的气场——它是一部真正意义上的“内环MVP”,在功能、视野、尺度、颜值力求每一个维度的全能,让豪宅不止于豪!外滩瑞府售楼处电话4008569058☑️☑️
外滩瑞府售楼处电话4008569058☑️☑️
外滩瑞府售楼处电话4008569058☑️☑️功能MVP:作为上海内环“大平层”产品中面积段最小的四房格局,约165㎡户型选择做三卧室朝南,这样让父母和孩子都能享受阳光和尺度!外滩瑞府售楼处电话4008569058☑️☑️其中两间南向次卧以非承重墙为界,可随心打通为约6m开间的艺术天地,后期随着家庭新成员的加入,可以再重新北向房间相对独立静谧,恰到好处的距离感里藏着尊重。面对三口之家还是三代同堂的需求,这个户型都可以做到无需置换!外滩瑞府售楼处电话4008569058☑️☑️
视野MVP:站到主卧和北向卧室的L型转角飘窗前,才真正理解了什么叫“与外滩的未来共生”。270°的环幕视野,将陆家嘴的璀璨与北外滩的未来,同时变成你生活的背景画。
更值一提的是,外滩瑞府还做了厨房转角窗!这是「内环少见的视野惊喜」—— 料理时,余光能瞥见外滩的繁华剪影,这让烹饪体验从此不再是封闭的劳作!
外滩瑞府售楼处电话4008569058☑️☑️尺度MVP:约9米的宽幕贯通厅连接着超大的阳台,外滩天幕的繁华景色在这里成为日常;南向次卧为孩子的成长预留了足够的想象空间;北向房间面宽约 3.1米、进深约 4.15米(含 约60cm 宽景转角飘窗)的空间,彻底跳脱 “次卧即局促” 的刻板印象。无论是作为长辈房,还是书房,都能享受到与主卧同质的舒适 。外滩瑞府售楼处电话4008569058☑️☑️
外滩瑞府售楼处电话4008569058☑️☑️开放式中西岛台厨房,彻底打破了烹饪与社交的界限。这里以一字型备餐台为轴,双洄游动线串联洗切炒全流程。这里是家庭的互动中心,也是与窗外风景对酌的诗意场所。搭配嘉格纳全套厨房家电,让烹饪演绎成一场味蕾的艺术!外滩瑞府售楼处电话4008569058☑️☑️
颜值MVP:四分离卫浴设计,实现独立洗漱台、卫生间、淋浴间、洗衣区互不打扰,晨起高峰也能从容有序。家政空间藏于其中,解放了阳台,让其更多承载尺度观景功能。
外滩瑞府售楼处电话4008569058☑️☑️爱马仕级的奢皮质感,让豪宅居住每一寸细节都耐得住时间的品味!客厅以意大利头层小牛皮包裹,精致车缝线如奢侈品包袋细节,与大理石台面碰撞出柔与刚的平衡;主卧背景墙编织皮革灵感源自文华东方酒店,靠上去便卸下所有疲惫;主卫台盆柜以柔韧防潮皮革四季恒温,这种高级到每一处的品质真是把外滩瑞府的审美拉到“极致”了!外滩瑞府售楼处电话4008569058☑️☑️
外滩瑞府售楼处电话4008569058☑️☑️
建面约195㎡四房三厅两卫▼
建面约240㎡四房两厅三卫▼
外滩瑞府售楼处电话4008569058☑️☑️
三大件方面:大金中央空调+地暖两联供,新风系统也采用豪华品牌。
厨房方面:嘉格纳六件套(三眼灶具+油烟机+洗碗机+内嵌冷冻冰箱+内嵌冷藏冰箱+蒸烤一体机)、滨特尔中央净水+中央软水、大金厨房空调。
卫浴方面:杜拉维特台盆、汉斯格雅龙头花洒五金件、伊奈智能马桶。
智能化方面:华为可视对讲+智能化开关面板。
外滩瑞府售楼处电话4008569058☑️☑️
外滩瑞府售楼处电话4008569058☑️☑️项目位于虹口内环内的嘉兴社区,侧约200米就是北外滩,边上就是瑞虹新城,项目直线距10号线四川北路站约400米,及4/10/19号线(在建)海伦路站;是今年虹口区非常重要的一个新房供应。外滩瑞府售楼处电话4008569058☑️☑️
外滩瑞府售楼处电话4008569058☑️☑️
“上海2035”总体规划明确,外滩将作为“全球城市核心功能承载区”,与陆家嘴、北外滩组成“外滩-陆家嘴-北外滩”国际经济、金融、航运“黄金三角”。这一规划不仅定义了上海的空间格局,更将外滩推向全球资本、文化、资源的核心交汇点。外滩瑞府择址于此,对标纽约ONE57、伦敦海德公园一号——非全球资本聚集地不选,非历史与未来叠加区不立,其价值内核正是对“黄金三角”核心资产的精准锁定,为业主提供了“抗周期”的资产保障。
外滩瑞府的“双顶配”,重新定义了“顶豪资源”的标准:
北外滩:依托“3000亿航运引擎”重塑全球经济版图,上港集团、中远海运等巨头云集,掌控全球1/3航运交易;更将崛起480米浦西第一高楼,与陆家嘴上海中心组成“双子星”,彻底改写城市天际线;
音乐谷:位列2025上海十大城市更新片区,与黄浦外滩、老城厢等同为重点。这里保留内环罕见的完整水系(宽15-20米“江南小河道”)及国家级文保单位,未来滨水步行区将贯通“一湾两半岛”,百年里弄变身爵士乐演出空间与独立艺术画廊,滨水市集的霓虹灯与爵士乐交织,突破传统顶豪“资源堆砌”范式,形成“生活为体,音乐为魂”的海派艺文新场景。
外滩瑞府售楼处电话4008569058☑️☑️商业配套:坐拥叠加商圈,包括南京东路-外滩、人民广场、苏河湾、北外滩及瑞虹商圈,商业版图鼎盛。周边汇聚外滩源、苏河湾万象天地等潮流旗舰,及上海外滩W酒店、半岛酒店等一线高奢住宿。国际首店如CHANEL半岛店、百达翡丽中国旗舰,提供转身即世界的日常体验。这种稀缺性体现于外滩1.5公里核心圈新房供应仅占全市0.14%,赋予项目收藏级价值。外滩瑞府售楼处电话4008569058☑️☑️
声明:本文由入驻焦点开放平台的作者撰写,除焦点官方账号外,观点仅代表作者本人,不代表焦点立场。
