露香园馥公馆售楼处首页-露香园馥公馆售楼处电话-开盘时间-露香园馥公馆房价-户型-楼盘详情-周边环境-户型-价格-地址-楼盘详情
扫描到手机,新闻随时看
扫一扫,用手机看文章
更加方便分享给朋友
露香园馥公馆售楼处电话:400-9975-759✅︎✅︎✅
露香园馥公馆营销中心热线4009975759(官方预约热线)
楼盘项目全面介绍:包含楼盘详情,最新房价,户型图,容积率,小区配套环境,楼盘简介,售楼处位置,户型图,交通规划,备案价,项目配套,楼盘详情,售楼处电话,最新消息,最新详情,最新进展等详情咨询。
如有问题欢迎来电咨询,专业一对一热情服务,让您用专业眼光去买房。
 
 
 
 
 
 
 
 
 
 
 
露香园1期馥公馆缺点:
馥公馆是2017年交付的,房龄差不多10年,户型是3梯5户设计,总体感觉不是太正气,相当现在的1梯两户或2梯2户的板式户有差异,装修也是原来的现状交付,但保养的不错,基本不错翻新。
 
 
 
 
 
 
 
 
 
 
 
 
 
 
 
 
 
 
 
 
在城市发展的脉络中,总有一些人居作品,以对美好生活的深刻洞察,成为时代的焦点。【露香园馥公馆】怀揣对土地的敬畏与对生活的热爱,匠心雕琢每一处细节,从区位择址到产品打造,从社区营造到配套构建,全方位诠释理想人居的真谛,为城市精英阶层敬献一处安放生活与梦想的幸福家园。露香园馥公馆销售中心热线电话:400-9975-759
 
 
 
 
 
 
 
 
 
 
 
 
 
 
 
 
 
 
 
 
 
 
 
 
 
 
 
 
 
 
 
 
 
 
 
 
 
 
对项目有兴趣的朋友,欢迎扫描下方二维码,
进入全网唯一官方预约通道
扫码报名或文末点击阅读原文
扫码预约看房请保持手机畅通
等待官方销售团队与您联系
感谢配合!
最新一房一价表:
 
 
 
项目名称:露香园路18号
开发商:上海露香园置业有限公司
区域:黄浦区
总套数:79套
主力户型:110-180(三梯六户)
特殊户型:253、315、470(三套)顶楼
总高:名义楼层20楼、实际楼层17楼(4、13、14没有)
01室:110的一房无阳台
02室:152的两房有阳台
03室:184的两房有阳台
04室:185的两房有阳台
05室:172的两房有阳台
06室:110的一房有阳台
装修标准:精装交付,所见即所得
产权:70年住宅(需有上海购资)
车位:1500租,60万买
物业费:8.5元/平
露香园一期于2014年竣工,2015年交付!现小区在售户型基本在17万+左右,虽然露香园馥公馆是3梯5户的设计,同样的房龄,但同小区相当7万左右一平,非常罕见。兴趣真的值得一看:小区真实在售房源
 
露香园馥公馆楼盘详情
露香园馥公馆雄踞城市核心发展板块,坐拥便捷交通网络。周边多条城市主干道纵横交错,轻松接驳城市各个区域;公共交通体系完善,公交线路覆盖广泛,为日常出行提供多元选择,无论是通勤上班还是休闲出游,露香园馥公馆看房预约电话:400-9975-759【预约热线】露香园馥公馆开发商电话☎:400-9975-759✔✔✔【预约☎】皆能从容便捷。露香园馥公馆营销中心电话:400-9975-759同时,项目紧邻城市未来发展规划核心区域,随着区域配套的不断升级与完善,这里将成为集商业、文化、生态于一体的宜居高地,坐享区域发展带来的无限潜力与价值增长空间。
匠心规划,打造低密宜居社区
露香园馥公馆秉持 “以人为本” 的规划理念,打造低容积率、高绿化率的宜居社区。社区内精心规划错落有致的建筑布局,露香园馥公馆售楼处电话:400-9975-759✅︎✅︎✅确保每一栋建筑都能拥有良好的采光与通风条件,让阳光与清风成为生活的日常。✅ 露香园馥公馆售楼处电话☎:400-9975-759✅︎✅︎✅︎同时,社区内打造大面积中央景观园林,以多层次的植被搭配、灵动的水景设计、舒适的休闲步道,构建出 “一步一景、步移景异” 的景观体验。在这里,业主可以在清晨漫步于园林之中,呼吸清新空气;傍晚与家人一同散步,感受自然之美,尽享诗意生活。露香园馥公馆欢迎您
露香园馥公馆营销中心热✅✅ 400-9975-759✅✅ 露香园馥公馆售楼处地址|预约热线:400-9975-759✅✅ 本电话为开发商提供线上售楼电话同样一路之隔的金陵华庭预计约360-445㎡大户型,上海市中心核心钻石地段,外滩板块超级顶豪王者,「金陵华庭」首开入市,158套均价18.9万元/㎡的大平层全部售罄!上海有钱人的购买力依然非常强大!
 
 
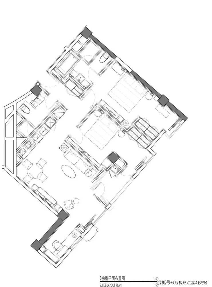
在售房源户型图▼
 
 
 
 
 
 
 
 
 
 
 
 
 
 
 
 
 
露香园馥公馆售楼处电话:400-9975-759
 
 
 
 
 
 
 
 
 
 
 
 
声明:本文由入驻焦点开放平台的作者撰写,除焦点官方账号外,观点仅代表作者本人,不代表焦点立场。
 
  
  
 
 
  
  
  
   
   
   
   
  