虹口区北外滩+北外滩王炸来了!验资1500W看房!「越秀·外滩樾」将推出约235-338㎡海派院墅!样板间预约参观!
由越秀地产+临港集团联合打造
越秀临港虹口156街坊项目
案名已经发布——越秀·外滩樾
容积率仅约1.3
推售49套建面约238-305-318-338㎡风貌别墅
展厅已开放!
☑️☑️越秀外滩樾售楼处电话:400-8377-020☑️☑️

☑️☑️越秀外滩樾售楼处电话:400-8377-020☑️☑️
上海墅居天花板———越秀外滩樾———
位置: 上海虹口区北外滩,距外滩1公里,陆家嘴1.5公里
项目信息🔍:
项目类型:现代风貌
物业类型:70年
建筑面积:238、305、318、338/㎡
户型:地上3层,地下2层 短进深大面宽,全落地窗设计、使用400-800平,高品质高颜值
毛坯交付,也定制可以装修交付
总价区间:4500-9000万
单价约18.9-26.6万/㎡
总套数 :49套
交付时间:2026年底交付
梯户比 :“室内带独立电梯井”设计
物业费 :地上26.8含会所,地下一半
层高 :一楼3.6米,二楼三楼3.2米,地下室6.15挑空6.15
☑️☑️越秀外滩樾售楼处电话:400-8377-020☑️☑️
过程稿户型图曝光 (户型最终以开发商公示为准) :
236.25㎡A户型:

239.13㎡B户型

☑️☑️越秀外滩樾售楼处电话:400-8377-020☑️☑️
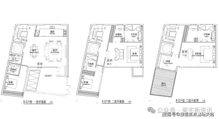
250.89㎡B-3户型

C户型

☑️☑️越秀外滩樾售楼处电话:400-8377-020☑️☑️
291.42㎡D户型

☑️☑️越秀外滩樾售楼处电话:400-8377-020☑️☑️
☑️☑️越秀外滩樾售楼处电话:400-8377-020☑️☑️
01.基本信息
2023年10月26日,上海市虹口区嘉兴路街道hk270B-04地块历史风貌保护项目实施主体遴选结果公示,最终由上海市漕河泾新兴技术开发区发展总公司(临港集团)及杭州燚乐实业投资有限公司(越秀)联合开发。
项目总用地面积约10790平方米,为一类住宅组团用地,容积率1.3,建筑面积14027平方米,地块内需要保留的历史建筑规模约4400平方米,均为里弄建筑。

☑️☑️越秀外滩樾售楼处电话:400-8377-020☑️☑️
基础信息
【项目名称】越秀·外滩樾
【开发商】上海漕越经济发展有限公司
【项目位置】上海市·虹口区·梧州路235弄
【项目类别】70年产权住宅
【项目类型】风貌别墅
【可售户数】48套(风貌)
【容积率】约1.3
☑️☑️越秀外滩樾售楼处电话:400-8377-020☑️☑️
地块四至范围, 东至梧州路,隔壁是中皇广场; 西至hk270B-02,隔壁就是1933老场坊; 南至周家嘴路;北至柘皋路。
日前,上海市规划和自然资源局对上海漕越经济发展有限公司虹口区嘉兴街道hk270b-04地块历史风貌保护项目进行了设计方案公示,项目未来将呈现48套低密风貌里弄住宅,面积约238-338㎡。

☑️☑️越秀外滩樾售楼处电话:400-8377-020☑️☑️
项目规划层高,1楼为3.6米,2、3楼均为3.2米。小区整体容积率为1.3。

☑️☑️越秀外滩樾售楼处电话:400-8377-020☑️☑️


☑️☑️越秀外滩樾售楼处电话:400-8377-020☑️☑️
程绍正韬,建筑室内设计之东方主义集大成者,致力于东方文化的坚守与创新。他打破惯常的职业思维,将生活方式化作一种哲学态度,融入空间设计,让设计不止于作品。

李玮珉,撑起中国豪宅设计半壁江山,擅长为城市塑造文化符号建筑作品。他的作品更多用极简的方式来表明态度,崇尚简而高效的现代生活方式。庄重的建筑语汇,适时注入艺术、自然与美学,让空间充满想象力。

☑️☑️越秀外滩樾售楼处电话:400-8377-020☑️☑️
复刻百年前的高端工艺元素,让海派造诣世纪传承。清砖立柱、古典门头、封闭门窗、岩石山墙等经典海派建筑风貌转译,于历史和未来之间收藏百年上海。


☑️☑️越秀外滩樾售楼处电话:400-8377-020☑️☑️
巷弄新生: 内环内难得双拼别墅 ,超越风貌建筑的尺度感;
建筑新生: 创新风貌规制,致微而筑的建筑腔调赏新;
美学新生: 转译远东第一豪宅立面美学,收藏名门望族生活;
材质新生: 豪宅同款奢砖、大面积奢石运用,定制家族排场。

☑️☑️越秀外滩樾售楼处电话:400-8377-020☑️☑️
02.区域规划
项目所在地北外滩,是百年前上海的“下海”地。作为上海开埠后第一座码头的诞生地,北外滩率先“开眼看世界”,海纳万国文化风潮,众多此后影响中国的创举在此诞生,是上海最早的“十里洋场”

☑️☑️越秀外滩樾售楼处电话:400-8377-020☑️☑️
傲立“一江一河”交汇处(直线距离约1.1KM),未来将打造成为彰显上海城市核心竞争力的黄金水岸和具有国际影响力的世界级城市会客厅,出入之间,相逢城市高阶未来

☑️☑️越秀外滩樾售楼处电话:400-8377-020☑️☑️
北外滩,与外滩、陆家嘴并称为上海的“黄金三角”。将以2座陆家嘴的商务体量规划,新天地2.0生活圈打造,成为上海跃升世界舞台的“中心发力”新引擎

区域能级:总开发面积约840万方,40栋甲级写字楼
城市地标:480米浦西第一高楼,19栋摩天大楼集群
金融产业:2100+家金融企业赋能,资产管理规模超8万亿元,位居全市第一
航运格局:4500+家航运企业集聚(上港集团、中远海运等),打造国际航运中心
全球贸易:2500+家贸易企业入驻(摩亚方舟、银联商务等)
新兴产业:129家新增高新技术企业,113家市区科技小巨人企业(数据来源:上海市规划局《北外滩地区控制性详细规划》)

☑️☑️越秀外滩樾售楼处电话:400-8377-020☑️☑️
交通方面:项目三轨交汇,距离12号线国际客运中心站约600米,距离4/10号线海伦路站约850m(直线距离),3站南京东路,6站新天地。

☑️☑️越秀外滩樾售楼处电话:400-8377-020☑️☑️
自驾上,约360米新建路隧道(直线距离),快速直达陆家嘴CBD;约670米外滩隧道(直线距离),直达外滩金融商业街以及老码头;约150米北横通道(直线距离)贯通全城,快速通达虹桥机场/虹桥火车站;约2.4公里大连路隧道(直线距离),直达浦东东方路、世纪大道、八百伴商业圈。
商业方面:项目约2公里内多元繁华构筑封面商业圈,北外滩商圈直线距离约500米;外滩商圈直线距离约1000米;陆家嘴商圈直线距离约1500米;瑞虹商圈直线距离约900米。

☑️☑️越秀外滩樾售楼处电话:400-8377-020☑️☑️
医疗方面:三公里内四所三甲医院,全生命周期护航,新华医院(儿科专长);复旦大学附属妇产医院;上海市第一人民医院;上海东方医院(血管外科专长)。
教育方面:幼儿园:约1公里内6所幼儿园(直线距离),涵盖东余杭路幼儿园等3所示范级学校;
小学:约1.5公里内5所小学(直线距离),涵盖区重点四川北路第一小学;
中学:约1.6公里内6所中学(直线距离),1所市重点、2所区重点。一路之隔上海虹口二中心小学(在建中),约2.3公里市重点上海外国语大学附属外国语学校(直线距离)*施教区及就学政策以教育部门规划为准

☑️☑️越秀外滩樾售楼处电话:400-8377-020☑️☑️
生态休闲:2.5公里北外滩滨江绿地(约800m直达),四川北路公园、和平公园、鲁迅公园3大公园环伺,于滨江和城市低密绿芯之间,肇启当代诗意生活传序。

基础信息
【项目名称】越秀·外滩樾
【开发商】上海漕越经济发展有限公司
【项目位置】上海市·虹口区·梧州路235弄
【项目类别】70年产权住宅
【项目类型】风貌别墅
【可售户数】项目共计49栋(仅48栋可售)
【容积率】约1.3
【北外滩 面向世界的上海新封面】
北外滩,与外滩、陆家嘴并称为上海的“黄金三角”。将以2座陆家嘴的商务体量规划,新天地2.0生活圈打造,成为上海跃升世界舞台的“中心发力”新引擎。上海2.0时代

☑️☑️越秀外滩樾售楼处电话:400-8377-020☑️☑️

金融产业:2100+家金融企业赋能,资产管理规模超8万亿元,位居全市第一
航运格局:4500+家航运企业集聚(上港集团、中远海运等),打造国际航运中心
全球贸易:2500+家贸易企业入驻(摩亚方舟、银联商务等)
新兴产业:129家新增高新技术企业,113家市区科技小巨人企业
(数据来源:上海市规划局《北外滩地区控制性详细规划》)

☑️☑️越秀外滩樾售楼处电话:400-8377-020☑️☑️
【立体交通|无界畅达世界擎动城市脉搏】
约360米新建路隧道(直线距离),快速直达陆家嘴CBD;
约670米外滩隧道(直线距离),直达外滩金融商业街以及老码头;
约150米北横通道(直线距离)贯通全城,快速通达虹桥机场/虹桥火车站;
约2.4公里大连路隧道(直线距离),直达浦东东方路、世纪大道、八百伴商业圈。

【核心商圈|高阶商业配套 国际摩登领潮】
商业配套方面项目约2公里内,多元繁华构筑封面商业圈
• 北外滩商圈直线距离约500米
• 外滩商圈直线距离约1000米
• 陆家嘴商圈直线距离约1500米
• 瑞虹商圈直线距离约900米

☑️☑️越秀外滩樾售楼处电话:400-8377-020☑️☑️
越秀不止是对建筑的传承,更是对百年上海文明的传颂和致敬
百年前的高端工艺元素的经典转译,让海派造诣世纪传承,于历史和未来之间收藏百年上海。


☑️☑️越秀外滩樾售楼处电话:400-8377-020☑️☑️
• 清水红砖:百年前先进舶来品代表,8种非遗拼接工艺铺陈
• 装饰窗楣:同源中共二大会址、张爱玲故居,装饰主义经典元素
• 弧形韵线:邬达克式的建筑曲线,同源远东第一豪宅的优雅轮廓
• 岩石山墙:巴洛克式带肩观音兜,中西文化融合的典藏之美

程绍正韬,集文人、工业家、艺术家、设计师、哲学家、修行者身份于一身,建筑室内设计之东方主义集大成者,致力于东方文化的坚守与创新。他打破惯常的职业思维,将生活方式化作一种哲学态度,融入空间设计,让设计不止于作品。

☑️☑️越秀外滩樾售楼处电话:400-8377-020☑️☑️
李玮珉,撑起中国豪宅设计半壁江山,擅长为城市塑造文化符号建筑作品。他的作品更多用极简的方式来表明态度,崇尚简而高效的现代生活方式。庄重的建筑语汇,适时注入艺术、自然与美学,让空间充满想象力。
与国内大师合筑,从人本主义设计思路出发,用源自东方的设计理念真正理解风貌,理解当代生活方式诉求 ,为影响下一个百年。

☑️☑️越秀外滩樾售楼处电话:400-8377-020☑️☑️

☑️☑️越秀外滩樾售楼处电话:400-8377-020☑️☑️
• 巷弄新生:跨越风貌豪宅正统,打造双拼、三拼别墅的天地私享
• 建筑新生:创新风貌规制,致微而筑的建筑
腔调赏新
• 美学新生:转译远东第一豪宅立面美学,收藏名门望族生活
• 材质新生:百年红砖、窑变砖、印度洋幻彩奢石运用,定制家族排场
2500m2生活艺术空间 无界融合之美
“让空间回到质朴宁静的状态,那是可以自在欢喜地面对一切可能的地方。”三大空间,无处不在艺术藏品。匠造会客空间、泛会所、私宴厅等私享场域,让生活理想于此自在蔓延

☑️☑️越秀外滩樾售楼处电话:400-8377-020☑️☑️
泳池| 遨游画境,潜心之所
游泳池以罗马会场泳池为灵感,汲取《观瀑图》的山水意境,将古典与现代完美融合。池畔以大理石铺就,线条优雅如古罗马建筑的恢弘气势,而池中水波粼粼,光影交错间,水幕如瀑,营造出“人在画中游”的诗意境界。

☑️☑️越秀外滩樾售楼处电话:400-8377-020☑️☑️

☑️☑️越秀外滩樾售楼处电话:400-8377-020☑️☑️
山水庭院 | 山间光感,天地织境
山水庭院汲取《足立美术馆》的造境手法,以老石皮、百年古木原样搬运,重现山间岁月的自然痕迹,与庭院中的光影交织,仿佛将山间的自然采光与静谧之感搬入城市。阳光透过树梢洒落,石皮上的纹理在光影中若隐若现,宛如一幅流动的自然山水画卷。
【42载越秀|千亿级开发商 与上海共卓越】
国内资产规模最大的地方驻港企业越秀集团
42载国匠越秀 千亿级开发商—越秀地产中国第一代商品房缔造者
已进驻30多个核心城市
开发了300多个大型住宅和50多个大型商业物业
2024中国房企综合实力TOP9

☑️☑️越秀外滩樾售楼处电话:400-8377-020☑️☑️
全球地标打造者:广州国际金融中心高约
440.75米,建成之时为全球10大超高层建筑之一,获得国际建筑界奥斯卡〝英国菜伯金奖”。(此外,中国仅北京“乌巢”和上海世博会英国馆荣获该奖项。)
豪宅基因始终传承:打造“广州第一富人区”二沙岛,屹立广州顶豪之列,整个二沙岛9个项目,有7个项目都是越秀开发,其中越秀宏城花园单价25万-40万/m’,总价1-6亿,一房难求。


☑️☑️越秀外滩樾售楼处电话:400-8377-020☑️☑️
由越秀地产+临港集团联合打造
越秀临港虹口156街坊项目
案名已经发布——越秀·外滩樾
容积率仅约1.3
推售49套建面约238-305-318-338㎡风貌别墅
展厅已开放!
虹口北外滩 低密风貌别墅
由越秀地产+临港集团联合打造
越秀临港虹口156街坊风貌别墅
【越秀·外滩樾】纯别墅社区

风貌之上 世界堂前
建面约238㎡—338㎡
总价约4000-9000万
海派院墅三里外滩
立传别墅从你开启传承展厅已开放
70年产权住宅 容积率:约1.3
MODEL ROOM RESERVATION
预 约 看 实 房
☑️☑️越秀外滩樾售楼处电话:400-8377-020☑️☑️


☑️☑️越秀外滩樾售楼处电话:400-8377-020☑️☑️

户型图如下:
(过程稿仅供参考,最终以实际为准)
236.25㎡A户型:

☑️☑️越秀外滩樾售楼处电话:400-8377-020☑️☑️
239.13㎡B户型:

239.13㎡B户型:

☑️☑️越秀外滩樾售楼处电话:400-8377-020☑️☑️
C户型:

291.42㎡D户型

☑️☑️越秀外滩樾售楼处电话:400-8377-020☑️☑️

☑️☑️越秀外滩樾售楼处电话:400-8377-020☑️☑️

☑️☑️越秀外滩樾售楼处电话:400-8377-020☑️☑️


☑️☑️越秀外滩樾售楼处电话:400-8377-020☑️☑️


☑️☑️越秀外滩樾售楼处电话:400-8377-020☑️☑️

☑️☑️越秀外滩樾售楼处电话:400-8377-020☑️☑️


☑️☑️越秀外滩樾售楼处电话:400-8377-020☑️☑️


☑️☑️越秀外滩樾售楼处电话:400-8377-020☑️☑️
【传奇的1.5公里 启航外滩百年世界史】
项目所在地北外滩,是百年前上海的发源地。作为上海开埠后第一座码头的诞生地,北外滩率先“开眼看世界”,海纳万国文化风潮,众多此后影响中国的创举在此诞生,是上海最早的“十里洋场”。

☑️☑️越秀外滩樾售楼处电话:400-8377-020☑️☑️
【世界的1.5公里 再立世界上海新传】
傲立“一江一河”交汇处(直线距离黄浦江约1km),未来将打造成为彰显上海城市核心竞争力的黄金水岸和具有国际影响力的世界级城市会客厅,出入之间,相逢城市高阶未来。

☑️☑️越秀外滩樾售楼处电话:400-8377-020☑️☑️