象屿天宸雅颂售楼处电话→象屿天宸雅颂售楼中心电话→天宸雅颂楼盘百科→首页网站→售楼处电话→售楼中心电话→楼盘百科→首页网站→24小时热线电话

嘉峪关楼市发布 2025-07-06 09:25:00
用手机看
扫描到手机,新闻随时看

扫一扫,用手机看文章
更加方便分享给朋友

象屿天宸雅颂售楼处电话:4008569058【官方认证】

屿天宸雅颂售楼处电话:4008569058

上海象屿天宸雅颂售楼处电话:4008569058【官方认证】

「象屿·天宸雅颂」

前滩南·闵行浦江地铁8号线枢纽

建面约89-139㎡精装3-4房

均价60003元/㎡ 总价约550万起

售楼处火热预约中象屿天宸雅颂售楼处电话:4008569058

象屿天宸雅颂售楼处电话:4008569058

2025年的上海楼市,注定被一个名字点燃——象屿·天宸雅颂!

象屿天宸雅颂售楼处电话:40085690584月29日,上海楼市目光聚焦南上海,「象屿·天宸雅颂」在万众期待中迎来盛大首开。房源一经推出,便引发抢购热潮,捷报频传,首开即实现热罄,以现象级热度成为上海高端住宅市场当之无愧的焦点,重新定义了高端人居的价值标准。象屿天宸雅颂售楼处电话:4008569058

所有的潜心营造,只为今天盛启。

首开当日现场人潮涌动,人声鼎沸等候区座无虚席,火热的场面印证着高品质住宅的强大号召力。据了解,首开去化率91.9%,总销售金额达10.2亿。这场开盘盛典,不仅彰显了项目的强大吸引力,更让「象屿·天宸雅颂」成为南上海楼市焦点,开启品质人居新篇。

【象屿·天宸雅颂】首开告捷,一房难求。为回应市场热情,二批次房源加推在即,再启沪上高端人居热势。

项目一房一价表▼

小高层为89/102/107/128/139平(89-107为3房,128-139为4房);

叠加预计145-156平,联排预计190-230平,(具体户型和面积以实际为准)。

建面约89㎡ 3房2厅1卫▼

建面约107㎡ 3房2厅2卫▼

建面约107㎡ 样板间实拍▼

建面约128㎡ 3房2厅2卫▼

建面约128㎡ 样板间实拍▼

项目建面约128㎡4房同样出彩。

延续3S墙和双270°全景双舱亮点的同时,尺度感极大提升,南向四开间,保证了更充沛的阳光。

客餐厅+超大尺度阳台贯穿南北,进门视野无遮挡,大宅气度油然而生!

建面约139㎡ 4房2厅2卫▼

项目建面约139㎡4房则是集大成的终极改善户型。

该户型是独立电梯入户,保证了业主的私密性和尊崇感!

不止是四开间朝南,更是大宽厅设计,采光无敌。

飘窗数量来到了惊人的7个:4个房间、2个卫生间、还有厨房,仅飘窗带来的灵动空间就秒杀同面积段其他产品,要知道这个户型还配备了超大尺度的阳台!

项目高层户型硬核,装修更硬核!

据销售人员透露,大件方面,项目中央空调/地暖两联供、新风系统一应俱全。

厨房方面,除了灶具、吸油烟机等常规配置,还将加配蒸烤一体机、洗碗机、冰箱和厨房凉霸,全方位提升便捷性和品质感。

卫生间方面,项目洗脸盆、座便器、淋浴龙头或直接上豪宅专属唯宝品牌(或同等档次品牌)。

从选材、选牌到施工工艺,项目装修每个环节都非常考究,呈现的居住品质足以媲美其他市区千万级豪宅!

另外,项目使用了智能化系统,从社区到单元门和入户整体的无接触归家,单元门自动呼梯到户内装标配置的智能化系统,为业主带来全方位的科技便捷生活!

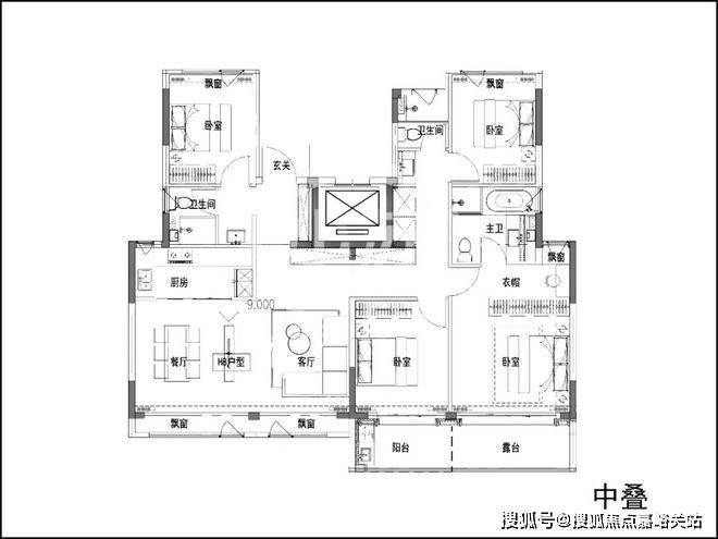
叠墅户型图如下所示:

(过程稿仅供参考,最终以实际为准)

项目基本信息

去年10月25日,上海市第六批涉住地块供地中,闵行区MHP0-1316单元01-03、01-02、03-02地块,东至浦星公路,南至姚家浜,西至大寨河,北至昌林路。

项目分为三个住宅地块开发,提供建面约89-140㎡的3-4房户型。

01-02地块规划约524套可售住宅,无保障房拟建8栋17-18F高层住宅。

以及若干社区配套用房,全部为两梯四户带连廊;地面无车位,全人车分流,规划有风雨连廊以及大量的架空层,预计打造泛会所概念(公共活动空间);

01-03地块规划约466套可售住宅

地块拟建9栋17-18F高层住宅、1栋20F保障房以及若干社区配套用房;其中1#为两梯三户带连廊、4#、6#、8#为一梯两户,其余楼栋为两梯四户带连廊;

03-02地块为别墅产品,其中叠墅约147套,联排约35套。

该地块拟建4栋7F多层住宅、4栋4F住宅、5栋3F多层住宅以及若干社区配套用房,其中4-7F住宅为叠墅,3F住宅为联排。

项目产品信息

产品力卷出天际,600万级预算越级享受千万级豪宅品质的机会!

项目实景呈现的硬核品质和超高颜值比起市区千万级的豪宅有过之而无不及!

项目恢弘大气的门头,项目设计师以浮岛为灵感,将几根立柱化作悬浮的雕塑,撑起一片轻盈的仪式感。

门头顶部的500多片镂空透光铝板雕花花瓣,皆由项目LOGO精琢演化而来。当阳光倾泻,光与影在镂空间起舞,在地面织就一幅不断变幻的自然画作。这是3000万重金雕琢的细节,更是对品质的无声承诺。

它不仅是社区的入口,更是城市界面的艺术展馆。当访客驻足,当业主归来,这道门,以当代美学重新定义归家即度假的奢适体验。

进门之后,恍若走进一幅立体绽放的画卷。地面采用了石材拼花,纹理如行云流水般舒展,在光影交错间勾勒出低调的奢华。

最令人屏息的设计,莫过于倒置的花园,与传统墙上挂画或桌上摆花不同,这种反重力美学让视线不由自主地上扬,创造出仰视仙境的震撼体验。

穿过大堂可以走浪漫的旋转楼梯去到B1层的会所。从上往下看去,这个唯美的旋转楼梯像永生的花瓣,也像凝固的巴兰钦芭蕾。有一瞬间我仿佛感觉这不是楼梯,而是连接现实与诗意的时空隧道。

虽然目前开放的公区只有这些,但项目展现的品质已足够惊艳,让客户对于象屿·天宸雅颂其他地方的兑现充满期待。

比如,项目打造的约2500㎡下沉式会所,预计包含等泳池、健身房、瑜伽室、水吧台、私宴厅等功能,满足业主全龄多元需求。

另外,项目地上三分之二的楼栋有架空层,最高层高约4.5米,合计约3000㎡架空层作为泛会所,在室内外交叠过渡的空间中,以自然之景点缀,营造全龄共享的丰盛聚场。

再比如项目的外立面。

象屿天宸雅颂售楼处电话:4008569058

当其他外环外新房还在纠结用涂料还是真石漆,象屿·天宸雅颂直接上了对标千万级豪宅的铝板。精致的铝板装饰+通透大窗的美学立面设计(局部涂料),打造弧面窄框艺术之镜,将来无疑又是一道靓丽的风景线!

项目在园林景观方面结合郊野公园特色做的浮岛美学园林惊艳无比,层层递进的秩序之美,传递生活与归心的仪式感。让业主享受内外皆胜境的生态居住体验!

而且项目3个地块全部都是人车分流设计

开车归家的业主在社区外就直接进入车库

,保证地面行人安全以及安静绿色的居住体验。

归家风雨连廊局部巧妙连接着高层核心景观节点和功能空间,让业主能重温“户外风雨连绵,廊下月华如水”的诗意瞬间。

另外,项目用

全系神户型搭配魔鬼化细节装修!

项目预计首开建面约89-139㎡3-4房,尤其值得一提的是,项目户型采用“一生之宅”的理念设计,高层户型均设置可拓展空间,保证不同年龄段都可以进行不同功能调整。

分户型来看:

①建面约89㎡3房2厅1卫户型:

这个建面约89㎡户型妥妥的性价比之选,预计总价500万级即可上车!

功能性上符合市场需求!同时利用科学的收纳和S墙设计保障了室内空间的井井有条,又通过大量飘窗和阳台等提升尺度感,尤其是厨房带飘窗!!!

②建面约107㎡3房2厅2卫户型:

这个建面约107㎡刷新了我对百平三房的新认知,据悉该户型或将申请专利,实至名归!

客厅的面宽被拉长到了约4.7米,呈现了可成长的X空间,适配更长家庭周期;

足足5个飘窗,3个卧室2个卫生间全部“扩容”,尤其是主卧、主卫双270°全景飘窗的设计前所未见,未来窗外郊野公园的胜境将一览无余。

建面约107㎡ 样板间实拍▼

该户型的收纳,大量S墙的设计简直见缝插针,极大的扩容了家的储物角落,消减了业主生活的繁琐。

首先是进门的3S墙设计,可以做出一个“700库”的超大收纳空间。原先的冰箱则挪到了厨房旁,不仅方便料理取用食材,侧面还设计了洞洞板,日常衣物、小包和挂件可以轻松摆放。

项目建面约128㎡4房同样出彩。

次卫的S墙则安排在了干湿分离的干区,算上台盆上面的收纳柜足以放下各类洗护用品。而且次卫台盆下方还预留了扫地机器人上下水。

北向卧室的S墙设计,则可以做成一整面的收纳架,书籍或玩具都有了足够的盛放空间。

最后一个S墙则是在主卧,等于直接增加了一个衣柜,直接击中了女主人的心趴!

③建面约128㎡4房2厅2卫户型

项目建面约128㎡4房户型延续了前作3S墙的设计,保证了收纳空间的丰富性。

格局上进化为南向四开间,保证了更充沛的阳光。客餐厅+超大尺度阳台贯穿南北,进门视野无遮挡,大宅气度油然而生!

建面约128㎡户型此次开放了样板间,参观下来客户对该户型的厨房的配置和飘窗的设计赞不绝口。

首先厨房是半开放式的岛台,让整个公区的视野更开阔,尺度更具豪宅气度。其次敞开式的厨房能让家人沟通更顺畅,温馨感提升。最后,厨房的选品也是坚持使用主义,采购了方太的市售款,隐形油烟机颜值非常高,灶具和蒸烤箱则做了完全的联动。

另一个亮点则是主卧的双270°飘窗,整体的“实用”面积几乎大了一圈,通透性和采光性能也更上一层楼。有种花了标准款的钱买到PLUS产品的感觉。

④建面约139㎡4房2厅2卫

项目建面约139㎡4房则是集大成的终极改善户型。该户型是独立电梯入户,保证了业主的私密性和尊崇感!不止是四开间朝南,更是大宽厅设计,采光无敌。

飘窗数量来到了惊人的7个:4个房间、2个卫生间、还有厨房,仅飘窗带来的灵动空间就秒杀同面积段其他产品,要知道这个户型还配备了超大尺度的阳台!

项目户型硬核,装修更硬核!

大件方面,项目日立中央空调/地暖两联供、格兰斯柯(或同等品牌)新风系统一应俱全。

厨房方面,除了灶具、吸油烟机等常规配置,还将加配方太(或同等品牌)蒸烤一体机、洗碗机,博世冰箱,以及线性凉霸,全方位提升便捷性和品质感。卫生间方面,项目洗脸盆、座便器、淋浴龙头或直接上豪宅专属唯宝品牌(或同等档次品牌)。

除了配置上不惜成本,项目的装修细节也十分人性化。比如,项目入户门选用的是铸铝门配耶鲁6合1智能门锁,安全性与便捷性兼具!

项目的厨房采用金属框+艺术玻璃移门,推拉丝滑颜值颇高!

项目全户型的阳台都做了灯光+隐藏式晾衣杆的吊顶方案,阳台边有按钮可以直接控制晾衣杆的下放和抬升。

项目的天地墙也是细节满满:天花板设计圆弧吊顶,工艺极高颜值自然不俗。客厅整块的背景墙充满质感,卫生间通顶的大面墙砖极抓眼球。客厅选用90*180大板砖恢弘大气,卧室采用人字拼地板,温馨港湾!

项目空调风口和户内门把手都是定制LOGO造型,颜值不俗的同时,也体现了项目对于品质与品牌的信心!

另外项目还使用了华为(或同等档次品牌)智能化系统,从社区到单元门和入户整体的无接触归家,单元门自动呼梯到户内装标配置的智能化系统,为业主带来全方位的科技便捷生活!

综合来看从选材、选牌到施工工艺,项目装修每个环节都非常考究,呈现的居住品质足以媲美其他市区千万级豪宅!

项目区位配套

浦江恒流,上海恒新。上海迈向卓越全球城市的进程,始终沿着黄浦江展开。黄浦江作为上海重要功能轴,至2035年将黄浦江沿岸打造成为彰显上海城市核心竞争力的黄金水岸和具有国际影响力的世界级城市会客厅。

作为上海中心城辐射区,闵行六大地区中心之一,前滩南门户,浦东四大城镇圈之一,浦江地区中心占据特有的平台区位优势。

新浦江中心沿袭闵东文创中心定位,以蓝绿环绕为基底,历史人文为内涵,产业更新为驱动,新浦江中心将衔接闵行与浦东新区,打造黄浦江沿岸崭新的生态交织、文化自信、产城融合能量聚集地。

新浦江新中心将围绕沈杜公路TOD打造创智总部湾、大型商业、艺术街区、文化展览、滨水码头、高端住宅等,以世界前沿Live-Work-PlayShop模式,为上海打造高度复合等职住平衡10分钟生活圈。

轨道交通方面:项目距离8号线沈杜公路站步行约350-600米左右,可快速直达前滩、陆家嘴等核心区域,也算是项目一大卖点;通过浦星公路可直接上南北高架,自驾出行也十分便捷!

商业配套方面:项目高层东侧规划约15万方的商业,该商业地块应于住宅一并打包出让,共同组成真正的TOD项目,但目前做了拆分!另外距离项目约3.3公里有浦江城市生活广场、绿地乐和城,约3.9公里有万达广场、4.4公里有浦江欢乐颂等商业!

教育资源方面:项目周边规划有一幅幼儿园用地,参考周边,未来项目对口浦江镇第二小学、第二中学的概率较大,教育资源一般;

另外在项目北侧规划有一所民办学校,该校舍建成后,将迁入上海市民办协和尚音学校(九年一贯制)、上海闵行协和海富幼儿园,由协和教育中心举办。

医疗资源方面:距离项目约4公里有仁济医院南院以及复旦大学附属眼耳鼻喉科医院。

生态资源方面:项目周边被浦江郊野公园环绕,低密宜居。

象屿天宸雅颂售楼处电话:4008569058

随着6月新房市场“翘尾”收官,上半年上海楼市交出了一份亮眼的答卷。

二手房市场持续保持活跃态势。数据显示,上半年各月成交量均稳定在1.5万套的荣枯线以上。其中3月份表现尤为突出,单月成交29353套,不仅创下年内新高,更成为近四年来的次高纪录,仅次于2023年12月的29711套。

新房市场同样表现不俗。除受春节假期影响的2月份仅成交2209套外,其余月份成交量均保持在3800套以上。3月份市场迎来小阳春,单月成交量突破5500套。

值得关注的是,高端住宅市场持续领跑。多个豪宅项目开盘即告售罄,带动整体价格上行。据佑威房地产研究中心监测,上半年上海新房成交均价达81207元/平方米,创下历史新高。其中5月表现尤为亮眼,成交均价攀升至91759元/平方米,同比涨幅达12.11%。

01上半年上海新房量跌价涨,豪宅市场持续火热

6月上海新房市场以“翘尾”收官,单月成交量4711套,为上半年画上圆满句号。

尽管受供应端收紧影响,2025年上半年上海新房市场整体成交量同比小幅回落,但市场韧性十足,价格持续攀升。

佑威房地产研究中心最新数据显示,上半年上海新房共成交25582套房源,成交总面积约312.68万平方米,同比减少3.2%;但成交均价再创新高,达81207元/平方米,同比上涨3.17%。而受成交量下滑影响,上半年新房成交总金额为2534亿元,同比微降0.47%。

分季度来看,市场走势呈现先抑后扬态势。一季度市场表现相对平稳,成交量优于去年同期;进入二季度后,随着供应端持续放量,市场活跃度显著提升。

数据来源:佑威房地产研究中心

从区域分布来看,浦东新区以77.5万平方米的成交量继续领跑全市,市场份额占比超过24%,闵行区和宝山区分别以37.5万和33.4万平方米的成交量位列第二、三位。值得注意的是,前三大成交区域的合计市场份额已接近全市总量的一半,区域集中度特征明显。

数据来源:佑威房地产研究中心

从TOP10榜单来看,高端优质项目持续受到市场追捧。其中,市区千万级豪宅表现尤为突出,如位列第三的上海壹号院和第八的金陵华庭等高端项目,凭借其稀缺的区位优势、明显的价格倒挂空间以及高端改善属性,成功吸引了大量置换需求客户。

与此同时,高品质改善型项目同样表现抢眼。以翡雲悦府和前滩公馆为代表的项目,依靠突出的产品力优势获得市场认可。数据显示,翡雲悦府上半年推出的630套房源已累计网签615套,去化率高达97.6%。

此外,高性价比项目及TOD楼盘也实现了快速去化。位居榜首的四季隐秀项目就是典型案例,该项目位于宝山杨行板块,上半年四次推盘共计884套房源,其中两次实现“日光”,另外两次去化率也分别达到88%和90%。

数据来源:佑威房地产研究中心

供应方面,上半年全市新增供应房源19625套,总面积246.4万平方米,同比下降35.16%。受春节因素影响,1-2月供应处于低位,合计仅28.7万平方米;3月起供应逐步放量,3-6月单月供应量分别达到65万、69万、88万和72.2万平方米。

开盘去化方面,市场分化态势进一步加剧。高端改善型项目持续热销,特别是核心区域的豪宅产品表现尤为抢眼。以黄浦区老西门板块的上海壹号院为例,该项目四批次产品于6月27日开盘,仅用两小时便告售罄。至此,该项目今年内已三开三罄,累计销售额突破170亿元。

与高端市场的火热形成鲜明对比的是,部分刚需项目面临较大去化压力。据统计,上半年共有58个楼盘(含重复开盘)因认购人数不足取消摇号,其中4个项目甚至出现零认购情况。

第一太平戴维斯中国区住宅销售部负责人唐华分析指出,上海整体楼市受大经济环境影响,仍然处于下行周期,郊区已经进入存量地产时代。由于前几年的土拍放量,郊区仍有大量的存量楼盘在售。在同总价项目客户全市看房的形势之下,交通不便捷或周边配套不成熟的板块,较难打动客户。

此外,一二手房源竞争焦灼。由于郊区楼盘的一二手倒挂已几近消失,新房市场受二手房市场的影响较大。考虑到单总价、租房居住成本等因素,刚需置业型客户容易被引导至二手房源。产品力将成为郊区项目突围的关键,尤其是中外环及其他郊区的主城区区域,品牌开发商的品质楼盘成为吸引改善型客户的核心优势。

市场分化仍是未来不可避免的趋势,但是随着在外围购房限制松动的政策的持续发酵,仍会有新兴购买力注入到楼市之中,带动存量房源的去化。同时,由于郊区供地量的缩减,未来市场的新增供应减缓,整体的市场去化周期将会进一步缩短。

02二手房半年成交13万套,价格指数反复波动

与新房市场不同的是,二手房市场并未出现明显的“翘尾”收官行情。

最新数据显示,6月全市二手房成交20774套,环比下降2.71%,同比降幅达21%,打破了此前连续14个月的同比增长态势。

不过这一数据波动主要源于去年同期的异常高基数效应:2024年6月正值“沪十条”新政实施首月,在政策刺激下市场成交集中释放,导致当月成交量创下历史高位。

尽管如此,纵观上半年整体表现,上海二手房市场仍交出了一份亮眼的成绩单。

上海网上房地产统计显示,1-6月全市二手房网签成交量(含商业、车位等)累计达13.01万套,同比增长19.5%,超越2022-2024年各年同期水平,创下近四年来的半年成交峰值。

从月度成交走势来看,上半年二手房市场保持较高活跃度,月均成交量维持在2万套以上。其中3月份表现尤为突出,单月成交29353套,成为近四年来的次高月份,仅次于2024年12月的29711套。

数据来源:上海网上房地产

但值得注意的是,市场成交维持活跃的同时,二手房的价格指数仍处于震荡横盘阶段。

国家统计局数据显示,今年1-5月上海二手住宅销售价格指数环比波动区间在-0.7%至+0.4%之间,呈现出明显的“涨跌互现”特征。具体来看:1月环比上涨0.4%,2月回落0.4%,3月再度回升0.4%,4月微涨0.1%,5月则下跌0.7%。这种反复波动的价格走势,充分反映出当前买卖双方博弈的胶着状态。

虽然6月价格数据尚未公布,但从中原等头部中介平台的挂牌价格和议价空间等先行指标来看,当前二手房价格跌幅已呈现收窄趋势。市场专家指出,下半年上海二手房市场有望保持平稳运行态势,不过,考虑到当前经济环境和购房者观望情绪,价格短期内或将继续维持震荡格局。

03后市展望:政策工具箱仍有余地

随着上半年楼市收官,市场关注焦点转向下半年走势。2025年下半年,上海楼市将呈现怎样的发展趋势?豪宅市场会否出现降温迹象?政策层面是否会有新的调整出台?

针对备受关注的豪宅市场走势,第一太平戴维斯中国区住宅销售部负责人唐华分析指出,短期内,上海豪宅市场降温的可能性较低。首先,上海的资源集聚能力以及造富能力仍能保障客户结构的多元化和客户基数的稳定性,保障了上海楼市高端购买力的基础;其次,上海目前的限购条件较为严格,仍有较大的放松空间,灵活的政策调整空间,可以稳固末来楼市的变动。

市场数据印证了上海楼市的韧性表现。上海中原地产市场分析师卢文曦表示,上海上半年楼市成绩还不错,新房成交量维持平稳,二手房成交量除了1、2月份淡季不足2万套外,其余均在2万套以上。国家统计局数据显示,上海新建商品住宅5月指数同比上涨5.9%,涨幅领跑全国。二手住宅虽然还在跌,但跌幅在收窄。可见,对比其他城市,上海楼市是非常坚挺的。

然而,市场隐忧不容忽视。卢文曦指出,楼市先行指标自二季度后走弱,比如,二手房成交还是以价换量为主的格局,价格尚未止跌导致观望情绪上升。新房价格虽然还在上涨,但市场冷热不均的现象还是比较明显,外环外去化还是有不少压力,市中心产品虽然好卖一些,但是在采取很多营销手段后达到的结果。因此,市场期待政策尤其是郊区期待楼市宽松政策的意愿再度提升。

对于下半年政策走向,卢文曦分析认为,短期内出台重大政策的可能性不大。“7、8月份本身就是楼市淡季,即便出政策,对楼市的推动效果不如9、10月份理想,且短期上海楼市的数据还是很坚挺,对比其他城市甚至可以用靓丽二字形容。”

但他同时强调,楼市政策是可以期待的:一方面,中央层面还有很多举措,比如降息下半年依旧有可能;另一方面,毕竟限购方面上海还有很高的“安全垫”,针对性的做出优化能进一步降低高库存地区的风险

声明:本文由入驻焦点开放平台的作者撰写,除焦点官方账号外,观点仅代表作者本人,不代表焦点立场。