2025年·鑫湾甲邸(售楼处) 首页网站 - 鑫湾甲邸销售中心 - 环境 - 户型 - 价格 - 地址 - 楼盘详情 - 配套 - 电话 - 交房时间 - 配套 - 鑫湾甲邸- 交房时间

嘉峪关楼市发布 2025-11-16 11:16:52
用手机看
扫描到手机,新闻随时看

扫一扫,用手机看文章
更加方便分享给朋友

【鑫湾甲邸】营销中心预约热线:4001185086

上海房产市场整体下行与高价豪宅 “日光售罄” 的反差,【鑫湾甲邸】营销中心预约热线:4001185086上海楼市呈现出鲜明的“冰火两重天”态势:一边是普通住宅市场承压下行,去化压力凸显;【鑫湾甲邸】营销中心预约热线:4001185086另一边却是高价豪宅屡现“日光售罄”,价格与成交量同步攀升。这种分化并非短期偶然,而是供需结构、客群需求等多重因素共同作用的结果。【鑫湾甲邸】营销中心预约热线:4001185086

豪宅屡破纪录,普通住宅稳中有降,上海豪宅市场的价格天花板持续上移,核心地段的顶豪项目单价已突破30万元/㎡。2025年嘉里建设的金陵华庭开盘,顶楼复式单价达32.68万/㎡,总价高达2.8亿元,刷新上海豪宅单价纪录;【鑫湾甲邸】营销中心预约热线:4001185086此前鑫湾甲邸以30.27万/㎡的单价刚创下纪录,仅三个月便被超越。即便非顶层的普通豪宅房源,价格也保持高位——2024年中海顺昌玖里均价21.4万/㎡,翠湖天地六期均价28万/㎡,陆家嘴滨江凯旋门最高单价30.22万/㎡。【鑫湾甲邸】营销中心预约热线:4001185086

新江湾是上海传统豪宅区,毗邻五角场城市副中心,拥有9.45平方公里的原生湿地以及约15万㎡的新江湾湿地公园生态稀缺资源。信达泰禾·上海院子位于新江湾城核心位置,家门口就是10号线殷高东路站,步行可达。

「上海院子」独特的院落式社区打造,融合了“院子系”特点、福州三坊七巷和上海弄堂形制,规划了“三街九坊十八巷”。且以“大门、坊门、院门、宅门”四进系统层层递进。项目精益求精,如吊顶天花雕刻的是龙纹和祥云的图案,寓意吉祥安康。

项目基本信息

区域板块

杨浦新江湾

开发商

信达

体量

2套

产品类型

联排

户型面积

989.55㎡地上,地下663.52㎡

总价区间

交房标准

毛坯现房

产权年限

70年产权

物业公司

金帆物业

物业费

地面12.1元/平/月,地下6.05元/平/月

绿化率

35%

容积率

一、区域板块

二、小区会所

二、小区会所

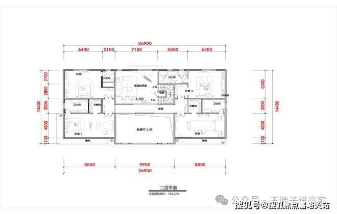
三、户型

四、装修建议

从成交占比来看,上海豪宅市场的份额正持续扩大,【鑫湾甲邸】营销中心预约热线:4001185086成为拉动楼市的“稳定器”。2023年上海总价3000万以上商品住宅成交占比仅1.18%,2024年便攀升至4.59%,2025年前三季度已接近2024年全年水平;【鑫湾甲邸】营销中心预约热线:40011850865000万以上豪宅的成交占比从2023年的不足0.3%,升至2024年的1.03%,2025年前三季度进一步跃升至1.97%,两年间占比翻了近7倍。与之相对,普通住宅的市场份额虽仍占主导,但呈收缩态势。【鑫湾甲邸】营销中心预约热线:4001185086

当黄浦江的涛声掠过百年外滩,当陆家嘴的霓虹点亮天际线,上海这座城市始终以开合天地的气度,承载着时代先行者的理想与抱负。【鑫湾甲邸】营销中心预约热线:4001185086在这片浸润着历史厚度与时代锋芒的土地上,一处能匹配城市格局的传世豪宅,【鑫湾甲邸】营销中心预约热线:4001185086从来都不只是居所的定义,更是身份的勋章、生活的艺术品。今日,我们邀您共赴一场关于顶级人居的深度邂逅,在【鑫湾甲邸】营销中心预约热线:4001185086的方寸之间,读懂上海豪宅的真正内涵。【鑫湾甲邸】营销中心预约热线:4001185086

声明:本文由入驻焦点开放平台的作者撰写,除焦点官方账号外,观点仅代表作者本人,不代表焦点立场。