中海.云邸玖里售楼处电话:400-8894-986VIPLINE热线
杨浦滨江 重磅级风貌上新
【中海·云邸玖里】火热在售中!
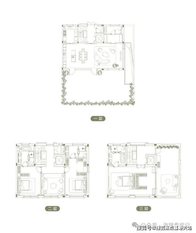
建面约249-318㎡双拼风貌
地上3层+地下两层+花园
单价约16~18万/㎡
售楼处线上火热预约中!中海.云邸玖里售楼处电话:400-8894-986VIPLINE热线

中海.云邸玖里售楼处电话:400-8894-986VIPLINE热线
继顺昌玖里、恒昌玖里
中海·云邸玖里再造杨浦滨江封面作品
中海.云邸玖里售楼处电话:400-8894-986VIPLINE热线中海继新天地顺昌玖里创下约409亿销售神话,也是全上海第一个清盘的风貌别墅后,在杨浦滨江核心商务区落下全新风貌别墅力作「云邸玖里」Arise Villa ,在一江一河打造的与新天地顺昌玖里、恒昌玖里一脉相承的稀缺风貌产品,为上海高净值家庭献上仅8席的传世藏品。
中海.云邸玖里售楼处电话:400-8894-986VIPLINE热线

中海.云邸玖里售楼处电话:400-8894-986VIPLINE热线
一江一园一庭院地段与自然资源的稀缺性
中海.云邸玖里售楼处电话:400-8894-986VIPLINE热线真正的顶豪,从来都是对城市核心资源的极致占有,云邸玖里位于杨浦滨江核心商务区。想象一下, 未来坐拥超百平的私人庭院,抬头望南向是百年波阳公园,走出宅门步行距离即可到达无比开阔的世界级黄浦江岸,是在整个上海都极其稀缺的存在。中海.云邸玖里售楼处电话:400-8894-986VIPLINE热线
一江:中海·云邸玖里与百万方科创水岸地标群落为邻。一路之隔即是约43万方超极合生汇, 中海.云邸玖里售楼处电话:400-8894-986VIPLINE热线米其林餐厅等潮流业态一站式配齐;步行可达美团上海总部“黑珍珠创意美食带”与B站开放式新世代产业园,约14万方潮流商业+沉浸式演艺中心,承包高阶消费与年轻活力。
中海.云邸玖里售楼处电话:400-8894-986VIPLINE热线

中海.云邸玖里售楼处电话:400-8894-986VIPLINE热线一园:更享上海风貌别墅所罕见的生态资源,对望百年波阳公园,香樟如盖、四季有花,占地面积近1万平,绿化面积近6000平,推窗即揽浓荫秘境,步行约900米即达黄浦江岸,实现“江园双景”的极致占有。
中海.云邸玖里售楼处电话:400-8894-986VIPLINE热线

中海.云邸玖里售楼处电话:400-8894-986VIPLINE热线一庭院:在寸土寸金的上海一江一河,拥有一片可奔跑、可小憩的真草坪庭院,可以说是难得的奢侈。走进云邸玖里私人庭院,真正体会到什么叫“生活在风景里”。约百平转角庭院,尺度开阔, 中海.云邸玖里售楼处电话:400-8894-986VIPLINE热线以围合的格局营造出被自然环抱的私属花园视野。一眼望去,绿意舒展,天空是顶,土地是基。在这方自己的天地里,生活才真正心有所属,一步衔接自然。
中海.云邸玖里售楼处电话:400-8894-986VIPLINE热线

中海.云邸玖里售楼处电话:400-8894-986VIPLINE热线
再塑传承,用极致匠心复刻海派传世风骨
中海这几年的项目都是上海绝对的稀缺豪宅。恒昌玖里、顺昌玖里拥有着三“最”头衔,是上海最早的一批风貌产品,同时也是最快清盘的,并且至今依然保持上海风貌别墅最高价。 中海.云邸玖里售楼处电话:400-8894-986VIPLINE热线
这样套均上亿的豪宅客户经验,也让中海真正的懂得高净值圈层的需要,这是极少开发商能够拥有的开发经验。
云邸玖里作为玖系全新续作,延续“以当代匠心致敬城市文脉”的核心理念,将海派建筑的形与神刻入每一寸肌理。
中海.云邸玖里售楼处电话:400-8894-986VIPLINE热线

中海.云邸玖里售楼处电话:400-8894-986VIPLINE热线建筑外立面的营造,依旧秉承不畏工繁,不惧料贵的考究与匠心,尽显沉稳厚重;屋顶采用老上海经典马赛瓦,疏水性强、历久弥新,复刻城市“第五立面”的诗意天际线。
建筑基层石材选用近拟传统皇家建筑所用金山石的世贸金麻,经手工凿毛、酸洗做旧处理,搭配铜质落水管、水纹压花玻璃,每一处细节都在诉说海派大宅的优雅与贵重。
中海.云邸玖里售楼处电话:400-8894-986VIPLINE热线

中海.云邸玖里售楼处电话:400-8894-986VIPLINE热线从单块重逾3吨整石雕刻的门楣石箍,到手工锻打的铜质门栓、天然奢石门把手;从“暧昧色”红砖的千万种排列组合,到异形砖5%成品率下的执着坚持——中海再一次以艺术家的偏执,打造8件属于杨浦滨江的孤品,让建筑成为跨越百年的城市对话。
中海.云邸玖里售楼处电话:400-8894-986VIPLINE热线

中海.云邸玖里售楼处电话:400-8894-986VIPLINE热线
只此百平花园风貌别墅,8席孤品重新定义时代生活
中海.云邸玖里售楼处电话:400-8894-986VIPLINE热线在寸土寸金的杨浦滨江,云邸玖里以“仅8席”的稀缺体量,打造全市唯一的一处全双拼风貌别墅,彻底告别联排的拥挤与遮挡,270度采光,每户皆为边套,真正实现“一户一天地”的尊崇体验。
中海.云邸玖里售楼处电话:400-8894-986VIPLINE热线

中海.云邸玖里售楼处电话:400-8894-986VIPLINE热线

中海.云邸玖里售楼处电话:400-8894-986VIPLINE热线产品尺度的颠覆,让生活无需妥协:庭院上,每户享有约超100㎡转角私家庭院,超270°环景视野,搭配超百米楼间距,二排也达约8-10米,阳光自由穿行,隐私绝对保障;318㎡户型南向花园面宽达约12.5米,在城央摆下草坪野餐、庭院派对毫不局促。
中海.云邸玖里售楼处电话:400-8894-986VIPLINE热线空间上,采用全上海唯一纯钢结构,无梁无柱设计让空间自由定制——3.6米首层层高、近6米双层地下室配约13㎡超大采光井,告别“地下感”、全站立阁楼,超约30㎡可用空间、约31㎡星空露台+阳光房,构建“地上三层+地下两层+庭院+露台”的多维空间。
中海.云邸玖里售楼处电话:400-8894-986VIPLINE热线

中海.云邸玖里售楼处电话:400-8894-986VIPLINE热线

中海.云邸玖里售楼处电话:400-8894-986VIPLINE热线布局上,首层南向全开放,与庭院无缝衔接,打造“家庭欢聚场”;二层为孩子专属成长空间,可灵活切换双套房+共享书房或三代同堂布局;三层整层为主人私享领地,环形动线衣帽间、四件套主卫、星空露台,犒赏极致私密;地下室可改造为影音室、酒窖、藏品展厅,满足多元兴趣需求。 中海.云邸玖里售楼处电话:400-8894-986VIPLINE热线

中海.云邸玖里售楼处电话:400-8894-986VIPLINE热线

中海.云邸玖里售楼处电话:400-8894-986VIPLINE热线

中海.云邸玖里售楼处电话:400-8894-986VIPLINE热线从不可复制的核心资源,到穿越时光的匠心风骨,再到颠覆想象的产品尺度,中海云邸玖里的每一处都在诠释“水岸生活稀世孤品”的价值。仅8席,注定只为少数时代藏家所有。 中海.云邸玖里售楼处电话:400-8894-986VIPLINE热线
在老一辈的认知里,茶几是客厅的“标配”。考虑到有2个孩子,笨重的茶几要占去客厅一半空间,担心孩子会磕碰、没地方活动玩耍,最终我还是坚持不要茶几,如今没有茶几的客厅也已住了几年,不仅没出现老爸担心的“待客尴尬”,反而让我们家解锁了客厅的新用法。

随着生活方式的演变,“客厅”功能早已不再局限于会客,它变成了孩子的游乐园、家人的健身区。因此,我们不得不重新思考——客厅真的非茶几不可吗?
一、告别茶几,客厅会变成怎样?
很多人不敢撤茶几,存在各种顾虑,但真正体验过才知道,无茶几的客厅,才是真香——
1.客厅可用空间翻倍
客厅中央出现了一块完整、开阔的留白区域。这块空地瞬间有了无限可能——
① 孩子的游乐场:孩子学步时,客厅宽敞的中央区域,成了安全的游戏区,不用担心他撞到茶几边角,成了孩子自由玩耍、搭积木的专属领地。

②私人健身区:客厅中间没茶几时,铺上一张瑜伽垫,客厅秒变健身房,再无障碍物干扰;后来孩子打了,开始学乒乓球了,又可以在客厅中间摆一张球桌,不需为丢茶几而心痛。

③ 流畅的动线:从沙发到电视柜,从餐厅到阳台,行走无需绕行,整个空间流动起来。特别是对小户型来说,去掉笨重的茶几后,整个客厅会显得更大、更通透。

2.告别视觉杂乱
茶几仿佛是个黑洞,总能“吸引”零食、遥控器、充电线、杂志等杂物,成为“混乱的源头”。而一旦撤走它,你会发现——
① 杂物“不见了”:没有了茶几这个“黑洞”,你会自然而然地为遥控器、杂志等小物找到专属的收纳位置,从而养成更好的生活习惯。

② 清爽感扑面而来:视线所及,不再有杂乱的遮挡,客厅显得尤为整洁、利落。

③打扫更方便:整个客厅中间空空,自己打开不用俯身,扫地机器人也可以畅通无阻,清洁更加轻松。

总之,一个没有茶几的客厅,带来的是远超预期的 自由与舒适生活
二、没茶几,客人来了怎么办?
很多人不敢撤茶几,无非是担心“待客尴尬”、“小物件没地儿放”。其实这些问题,有很多“替代方案”——
1. 小边几:小巧却功能担当
买2个小边几,平时放在沙发两侧,客人来了就拉到中间,拼在一起就能放茶杯、水果盘,实现“呼之即来,挥之即去”。

2. 金属小推车:移动的收纳站
带轮子的设计让它无比灵活,不仅在客厅服务,还能随时变身餐桌边柜或厨房备餐车。两层或三层的设计,提供了强大的收纳能力,上层放茶水零食,下层收纳茶叶罐与书籍。

3. 善用沙发扶手:不占地的置物台
选择一款扶手较宽的沙发,扶手就是一个完美的临时置物台,足以放下水杯和手机。

有些设计巧妙的沙发,自带侧边收纳袋,可以完美地将遥控器、杂志等“隐形”收纳。
4. 提升电视柜的利用率:物尽其用
将电视柜台面利用起来,放置水杯和装饰品;再把零碎物品统统藏进去抽屉,保持台面整洁。

5.在餐桌上喝茶:更有氛围!
客人来了,直接坐在餐厅,在餐桌上泡茶喝茶,这样喝茶聊天的氛围感也不错。

三、有无茶几,要看“生活方式”!
经过几年的体验,我发现“要不要茶几”,纯属看个人家庭情况,不同家庭有不同的“生活方式”需求——
❌强烈推荐“无茶几”的情况:
① 有婴幼儿的家庭:孩子的活动安全最重要,无茶几的客厅能避免磕碰,还能提供充足的游戏空间,比任何玩具都实用。
②面积小于15㎡的客厅:茶几会占用核心活动空间,撤掉后能瞬间提升通透感,让客厅空间感翻倍。

③有在家健身、瑜伽习惯的人:想在家运动,可“场地不够”?撤掉茶几,客厅就能为爱好腾出专属区域了。
④追求极简风:极简风要的是“少而精”,无茶几的布局,能让空间更简洁大方。
✅建议保留茶几的情况:
① 经常招待长辈的:长辈习惯“围坐茶几喝茶聊天”,固定的茶几更符合他们的使用习惯,选一张高度适中、边角圆润的茶几,兼顾实用与安全。

②有泡茶习惯的:如果每天都要在家里泡茶,需要固定放置茶具、茶叶罐,那你就肯定需要茶几了。
结语
当初撤掉茶几前,我也是深刻考虑过的——家里一年才来几次客人,茶几根本不是“必需品”,那我要它何用?
撤掉茶几,不仅仅是移走一件家具,更是 对传统客厅功能与形态的一次挑战。它代表你的家,不再是“为讨好别人”而装,而是“为讨好自己”的温暖港湾。