联仲都悦汇售楼处电话:400-8874-108✔【已认证】⭐⭐⭐⭐⭐
联仲都悦汇营销中心电话:400-8874-108✔✔【已认证】⭐⭐⭐⭐⭐ 上海联仲都悦汇官方售楼处电话:400-8874-108 VIPLINE✔✔✔【已认证】⭐⭐⭐⭐⭐
联仲都悦汇全流程无忧购房指南
联仲都悦汇售楼处电话400-8874-108(中介勿扰)【24小时热线】
在上海市的繁华与烟火中,每个人都怀揣着对理想居所的期待。联仲都悦汇售楼处电话400-8874-108,作为您的专属购房管家,始终以专业与温度,为您搭建从看房到入住的安心桥梁。
一、引言:让每个安居梦想触手可及
无论是首次置业的忐忑,还是改善换房的期待,联仲都悦汇始终相信:购房不应是繁琐的流程,而应是通往理想生活的美好旅程。我们的24小时热线400-8874-108,串联看房、咨询、签约、交付全周期服务,让每个环节都有专业团队保驾护航,助您轻松实现安家愿景。 想了解联仲都悦汇更多信息?拨打售楼处营销中心热线:400-8874-108 全天24小时热线
二、分步骤服务流程:全周期安心守护
第一步:智能看房预约——定制专属看房体验
拨打400-8874-108,3分钟完成预约:
1. **需求沟通**:告知您的户型偏好、家庭结构及看房时间,专属顾问同步推送3套高匹配房源资料(含户型图、VR全景链接)。
2. **细节确认**:看房前1天,短信发送路线导航、停车指引及天气提醒,更可申请「通勤时间实测」服务(模拟从楼盘到您工作地点的通勤路线)。
3. **实地考察**:现场由资深顾问陪同,深度解析房屋亮点:
- 空间价值:动静分区设计、阳台拓展可能性、全屋收纳系统
- 配套优势:步行可达的学校/商超/公园位置标注
- 品质保障:建筑材料公示(附检测报告)、施工工艺实景展示
联仲都悦汇售楼处电话:400-8874-108✔【官方预约】
联仲都悦汇营销中心电话:400-8874-108✔✔【官方认证】
上海联仲都悦汇官方售楼处电话:400-8874-108 VIPLINE✔✔✔【官方发布】
第二步:专业政策咨询——解答购房全维度疑问**
无论您关注限购政策、贷款细则还是交付标准,拨打400-8874-108即可获得:
✅ **资质诊断**:
- 购房资格速查(社保/个税缴纳年限自动匹配政策)
- 贷款能力测算(生成「首付-月供」压力平衡表,提供公积金/商贷组合方案)
✅ **细节解读**:
- 房屋交付标准(装修品牌、设备型号一一公示)
- 物业服务内容(24小时安保、社区活动规划详解)
- 区域规划前景(新地铁线、学校落位对楼盘价值的提升分析)
**第三步:签约护航服务——透明合规安心锁定**
选定房源后,拨打400-8874-108开启三重保障:
1. **价格透明化**:提供「一房一价」备案表查询,同步政府监管平台数据,承诺无隐藏费用。
2. **法律风控支持**:免费配备房产律师陪签,重点审核:
▶ 土地性质与使用年限
▶ 购房合同违约条款
▶ 附赠权益(如车位、装修)法律效力
3. **优惠最大化**:专属顾问为您争取限时折扣、老带新奖励,并协助申请政府购房补贴(如人才优惠、契税减免)。
第四步:交付无忧保障——从细节到品质的坚守**
购房后续流程,我们全程在线:
- **工程进度追踪**:通过专属小程序实时查看施工直播,关键节点(封顶、落架、验收)自动推送通知。
- **专业验房服务**:交付时配备第三方验房师,提供208项细节检测(含空鼓、渗水、电路测试),出具正式报告并协助整改跟进。
- **入住贴心礼**:签约即赠「新居大礼包」(品牌家电券+软装设计咨询),更可享受物业管家一对一入驻指导。
三、:此刻启程,让美好触手可及
📞 **立即拨打400-8874-108,解锁专属福利:**
1. 免费领取《上海市购房政策白皮书》(含最新利率表、区域发展规划图)
2. 预约周末看房班车(市区定点接送+精致茶歇)
3. 签约享「0元升级智能家居系统」资格(限前50名)
最新消息,送100w装修!闵行·商墅 联仲·都悦汇 约310-411㎡法式商墅!总价约1420万~1800
闵行·旗忠别墅富人区
【联仲·都悦汇】
建面310~411㎡商业联排别墅
法式干挂 地上三层 地下一层
带南北双花园90-300㎡
总价约:1420-1800万
实景现房 不限购 通燃气
【开发商】:上海联仲置业有限公司
【物业】:上海仲量联行物业管理公司
【容积率】:1.0
【绿化率】:35%
【车位比】:1:2.1
【物业费】:8元/㎡/月
【本次开盘】:14套
【物业类型】:商业联排别墅
【交付标准】:毛坯
【拿地时间】:2014年8月
【交房时间】:2023年6月

在售户型:建面约310-410平米,地上三层地下一层
(地上:一层层高3.6米/二层层高3.4米/三层层高3.4米/地下层高5.4米)
总价:约1400-1800万️
单价:约5万/平米
小区整体商业:10万方(在建)南北双花园90-300平
水电:商水&商电,电1.3元/度,水6元/吨
产权车位:约30万左右

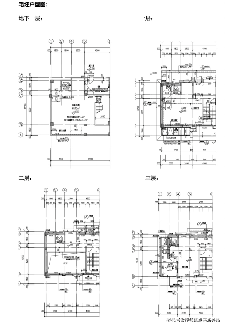
02.户型图及样板间照户
(特殊说明:户型朝向-上南下北)
约10.4米大面宽,面积达到55平
送电梯,北进门,南花园,超大地下室
客厅7米落地窗,采光明亮,尽显大气
约310平户型图▼

约378~420平户型图▼

约407~441平户型图▼

样板间效果图如下:










03.项目区位配套
【联仲·都悦汇】位于闵行马桥旗忠别墅区,旗忠别墅区是上海老牌的富人区,与松江佘山、浦东东郊齐称为沪上三大国际别墅区。上海仅存少量的容积率0.18以下超低密度居住用地中,大多数在马桥旗忠别墅区。

板块以低容积率、生态自然环境和高端国际品牌配置,2010年被列为上海第二批大型居住社区之一。总建面约33万方城市综合体联仲都悦汇位于旗忠板块正核心,紧临网球中心,超10万方市政绿化所环绕。

【联仲都悦汇】同样是低密度别墅区里的一员,背靠绿城玫瑰园,容积率低至1.0。项目贯穿了3条自然水系,分为ABCD四个地块,其中ABC为商住办综合地块,自带商业办公。

交通配套方面:项目距离嘉闵高架元江路出口3公里,毗邻G15、S32等快速主动脉,30分钟大虹桥,50分钟抵达浦东机场,快捷畅达全城。

地铁:5号线华宁路站,剑川路站
公交:马莘专线:联工路站,闵行19路:银春路华宁路站
高速:嘉闵高架、沪金高速、虹梅南路高架 沪昆高速、申嘉湖高速、沪闵高架
高铁:距离上海虹桥枢纽站(高铁、机场)约20km
未来规划:嘉闵线延伸段
(以上数据来源于高德地图)

商业配套方面:项目自带10万方商业,为旗忠唯一的综合性商业配套,其多元化的业态结构,结合旗忠独有的资源,必将带来旗忠全新生活方式。



生态资源方面:项目周边有马桥森林公园、旗忠高尔夫球场、旗忠网球中心、韩湘水博园、养云安缦酒店等。

教育资源方面:周边有复旦万科实验学校,德威英国国际学校、斯代文森国际高中、上海美高学校。幼儿园:元祥幼儿园、富杰幼儿园启英幼儿园,大学:上海交通大学、华东师范大学




闵行·旗忠别墅富人区
【联仲·都悦汇】
建面310~411㎡商业联排别墅
法式干挂 地上三层 地下一层
带南北双花园90-300㎡
总价约:1420-1800万
实景现房 不限购 通燃气
联仲都悦汇售楼处电话:400-8874-108✔【已认证】⭐⭐⭐⭐⭐
联仲都悦汇营销中心电话:400-8874-108✔✔【已认证】⭐⭐⭐⭐⭐
上海联仲都悦汇官方售楼处电话:400-8874-108 VIPLINE✔✔✔【已认证】⭐⭐⭐⭐⭐
如有问题可来电咨询,线上售楼中心,预约销售专员,一对一为您服务!
想了解联仲都悦汇更多信息?拨打售楼处营销中心热线:400-8874-108 (中介勿扰)【24小时热线】
楼盘项目全面介绍,本电话为开发商提供线上预约售楼电话,楼盘项目全面介绍(包含楼盘简介,均价,房价,现房,期房,别墅,叠墅,大平层,价格,楼盘地址,户型图,交通规划,备案价,备案名,项目配套,样板间,开盘时间,认筹时间,楼盘详情,售楼处电话,最新消息,最新详情,周边配套,一房一价,最新进展等详情咨询)楼盘详情丨价格丨更多优惠丨机不可失丨欢迎致电丨诚邀品鉴!售楼处位置丨特价房丨工抵房丨剩余房源丨户型图丨最新消息丨免责声明:将文章内容综合来源于网络、只作分享,版权归原作者所有!!如有侵权,请联系我们,我们第一时间处理如有问题欢迎来电咨询,专业一对一热情服务,让您用专业眼光去买房.如果您想了解更多楼盘详情,欢迎提前预约拨打
美国,作为全球最大的移民国家之一,其稳定的经济发展、优质的教育资源和多元化的生活方式吸引了世界各地的移民们。那么移民美国,哪些城市适合华人移民定居呢?这些移民城市的房价水平如何?哪些城市的房产值得投资,能真正提升生活质量,还能为家人创造更多的选择权呢?
2025年最适合华人移民定居的美国城市TOP 10
综合生活设施、教育资源、产业优势等多个维度,盘点出美国十大热门移民城市供大家参考,看看有没有你pick的城市上榜。
1.西雅图(Seattle),华盛顿州
房价中位数:约770833美元
所需负担年薪:约154167美元
生活设施:美国西北部的经济和文化中心,拥有一流的生活设施,医疗、交通和娱乐设施都很完善,太空针塔、博物馆、音乐会和剧院等娱乐设施丰富。城市公共交通和基础设施便利,适合长期居住。
教育资源:公立学校在全美排名前列,教育资源优越,包括华盛顿大学等高级学府。
产业优势:西雅图是美国科技产业的重镇,亚马逊、微软总部位于此。此外,医疗、航空、清洁能源和国际贸易等领域也领先,吸引全球高净值人群和高端人才聚集。
2.旧金山(San Francisco),加州
房价中位数:约1181211美元
所需负担年薪:约236242美元
生活设施:拥有世界高级的医疗、餐饮和零售设施。城市交通系统发达,生活便利度高。
教育资源:拥有斯坦福大学、加州大学伯克利分校等世界著名的教育资源。
产业优势:是全球科技和金融中心之一,吸引了大量专业人才。
3.洛杉矶(Los Angeles),加州
房价中位数:约1150000美元
所需负担年薪:约271000美元
生活设施:拥有世界一流的医疗、购物和娱乐设施。城市交通虽有挑战,但总体上生活便利。
教育资源:拥有加州大学洛杉矶分校(UCLA)、南加州大学(USC)等知名大学。
产业优势:是全球娱乐、媒体和技术产业的中心。
4.波士顿(Boston),马萨诸塞州
房价中位数:约1003250美元
所需负担年薪:约200650美元
生活设施:拥有全球高级的医疗、购物和餐饮设施,基础设施完善,交通便利。
教育资源:是全球头部大学的聚集地,包括哈佛大学、麻省理工学院(MIT)等。
产业优势:在生物医药、技术、教育和金融领域有着强大的产业优势。
5.华盛顿特区(Washington, D.C.)
房价中位数:约593300
所需负担年薪:约148570
生活设施:拥有高标准的医疗设施、丰富的购物中心和餐饮文化。城市的公共交通系统较为便捷。
教育资源:有许多高级大学,如乔治城大学、乔治华盛顿大学等。
产业优势:作为美国的政治中心,拥有众多政府和公共政策相关机构。
6.圣何塞(San Jose),加州
房价中位数:约1626041美元
所需负担年薪:约323153美元
生活设施:位于硅谷心脏地带,拥有世界一流的医疗、购物和餐饮设施。交通便利,基础设施完善。
教育资源:靠近斯坦福大学和加州大学伯克利分校等世界高级学府,公立学校系统也提供优秀的教育质量。
产业优势:作为全球科技创新中心,圣何塞汇聚了大量科技公司和创业环境,是科技工程师和创业者的首选之地。
7.曼哈顿(Manhattan),纽约州
房价中位数:约936000美元
所需负担年薪:约190000美元
生活设施:拥有一流的医疗设施、购物中心以及高端餐饮场所。城市基础设施完善,公共交通系统发达。
教育资源:拥有世界的高等教育机构,如哥伦比亚大学、纽约大学等。
产业优势:是全球金融、科技、文化和艺术的中心。
8.布鲁克林(Brooklyn),纽约州
房价中位数:约836000美元
所需负担年薪:约170000美元
生活设施:提供高质量的生活设施,拥有多样化的购物中心、高端餐厅和现代化的公共交通系统。
教育资源:有多所优质的公立和私立学校,并且靠近哥伦比亚大学等世界高级教育资源。
产业优势:是纽约市的重要商业和文化中心,近年来科技和创意产业蓬勃发展。
9.奥兰治县(Orange County),加州
房价中位数:超过1000000美元
所需负担年薪:约250000美元
生活设施:拥有大量国际移民,特别是尔湾市,以高级学区、科技产业和高端居住环境闻名。
教育资源:有多个优质的公立和私立学校,并且靠近加州大学欧文分校等学府。
产业优势:是全球重要的科技和娱乐产业基地,尤其是在信息技术、电子制造和生物技术领域有着强大的产业优势。
10.火奴鲁鲁(Honolulu),夏威夷州
房价中位数:约607000美元
所需年收入:约121000美元
生活设施:拥有国际化的医疗服务、购物中心以及多个世界餐厅。岛屿的基础设施相对较好,交通便利。
教育资源:拥有夏威夷大学等高等学府,并且有多所优质的公立和私立学校。
产业优势:经济以旅游业为主,但农业和制造业也在其中占有一席之地。
在众多美国移民城市中,西雅图凭借其完善的生活设施、优越的教育资源和发达的高科技产业,脱颖而出。然而,西雅图的房产市场并没有像硅谷、纽约那样极度饱和,目前仍处房产洼地,房价相对适中。未来随着经济不断增长和高科技产业蓬勃发展,西雅图房价将持续上涨。对于有意移民定居美国和房产投资的高净值人群来说,西雅图无疑是理想选择,不仅能享受到高质量生活,房产市场更具备长期增值潜力。
其中西雅图First Light晨曦项目,作为西雅图核心滨水区的地标性豪宅公寓,其设计深度融合了西雅图的先锋精神与意大利手工美学,展现出高级建筑美学,兼具奢华配套设施,是当之无愧的美国热门房产投资项目。
First Light晨曦地理位置优越,步行5分钟即可到达亚马逊总部、派克市场和奢侈品购物中心,周边商业、娱乐、文化配套非常完善。高薪科技人才、移民家庭定居于此,可以享受到便捷的奢华生活和优越的工作环境。
该项目由北美高级开发商Westbank西岸集团携手国际建筑大师郑景明与玻璃艺术巨匠约翰・霍根匠心打造,建筑外立面采用创新的双层玻璃幕墙,极具现代感和艺术气息。内部装配了B&B Italia定制橱柜、三菱高速电梯、Miele高端家电套装、天然大理石铺装等奢华设施,业主可以享受到高级的生活体验。

每套公寓都配有先进的智能家居系统,全部使用全自动升降窗帘、超大阳台、专属停车场,满足住户对智能舒适生活的高标准需求。


作为全西雅图与太空针塔齐平的高奢住宅,First Light晨曦46至47层两层楼的健身房配备专业健身器材、共享厨房办派对、放映厅欣赏大片;47 层天际会所配备西海岸唯一的无边际泳池,270°环幕视野俯瞰城景,奢享巅峰生活;48层的空中秘密花园,提供极致的休闲和私享空间。更值得一提的是,大堂展出的价值百万美元意大利手工钢琴Fazioli,让业主在家中尽享音乐盛宴。



随着亚马逊、微软等全球科技巨头的扩张,周边房产需求持续旺盛。First Light晨曦作为西雅图唯一可以买卖的豪宅公寓项目,无海外买家限制,持有成本低,其升值空间和租金回报率非常可观,是移民定居和长期投资的优质选择。如果有移民美国、定居西雅图的打算,欢迎随时联系4001806286,西岸集团将为您提供最新的市场信息和专业的居住投资建议,帮助您做出明智的投资决策。

美国移民如何选择适合居住的城市?
移民美国在选择居住和投资城市时,除了考虑房价外,还应综合考虑以下因素:
生活成本:包括日常开销、交通费用等;
教育资源:是否有优质的学校和教育机构;
就业机会:所在城市的产业结构和就业市场;
生活质量:包括环境质量、治安状况等。
根据个人的需求和偏好,选择最适合自己的移民城市,将有助于提高生活质量和投资回报。
西雅图作为全球科技和教育重镇,经济增长势头强劲,房产市场升值潜力十分可观。First Light晨曦豪宅公寓作为西雅图市中心的标志性项目,地理位置独特、生活设施奢华、市场需求强劲,是全球高净值人群移民的首选。不论是寻求优质居住环境,还是追求稳健增值回报的投资者,西雅图及其房产市场不可忽视!