大华梧桐樾售楼处│- 2026大华梧桐樾销售中心 (售楼处)-楼盘欢迎您 - 价格 / 户型 / 地址 / 环境 / 交房时间 / 电话

嘉峪关楼市发布 2026-02-21 16:27:51
用手机看
扫描到手机,新闻随时看

扫一扫,用手机看文章
更加方便分享给朋友

大华梧桐樾售楼处电话:400-88 74-108✔【最新预约】⭐⭐⭐⭐⭐ 大华梧桐樾营销中心电话:400-8874-10 8✔✔【最新认证】⭐⭐⭐⭐⭐ 上海大华梧桐樾官方售楼处电话:400-8874-1 08 VIPLINE✔✔✔【最新发布】⭐⭐

——大华梧桐樾——

大华梧桐樾售楼处电话:400-88 74-108✔【最新预约】⭐⭐⭐⭐⭐

大华梧桐樾营销中心电话:400-8874-10 8✔✔【最新认证】⭐⭐⭐⭐⭐

上海大华梧桐樾官方售楼处电话:400-8874-1 08 VIPLINE✔✔✔【最新发布】⭐⭐

如有问题可来电咨询,线上售楼中心,预约销售专员,一对一为您服务!

想了解大华梧桐樾更多信息?拨打售楼处营销中心热线:400-8874-108 (中介勿扰)【24小时热线】

【预约服务说明】

官方热线:400-8874-108(工作时间 9:00-18:30,支持 24 小时留言)

预约方式:提前 1-3 天致电,登记个人信息、意向户型及看房时段

专属权益:一对一置业顾问讲解、定制看房路线、优先锁定意向房源

注意事项:实行实名预约制,看房需携带身份证件,不接待中介机构

上海大华梧桐樾售楼处官方预约电话 400-8874-108

上海大华梧桐樾售楼处电话 400-8874-108 户型价格_预约看房

11+14双轨加持

对口同济附小附中

「大华·梧桐樾」

建面约84-102㎡高层热销中

建面约121-150㎡叠墅热销中

总价约308-830万

海派大华 时代仰望

大华集团:源起上海 34载初心如磐

大华集团成立于1988年,中国最早起步、最大规模的城市更新运营商之一

全球规划建设8大平方公里新城、17个百万方超大型社区并进行持续运维

34年稳健发展,于近30多个城市,为约70万业主构建美好生活

品牌实力:耀誉时代 城市别墅专家

多年荣膺“中国房地产综合实力50强”“发展潜力top5”

连续8年保持“三道红线”全绿档,财务安全领先行业

匠心雕琢超30城精粹墅区经典,被业内称为“城市别墅专家”

基础信息

规划产品:墅质高层、低密叠墅(复式住宅)

容积率:2.3

绿化率:35%

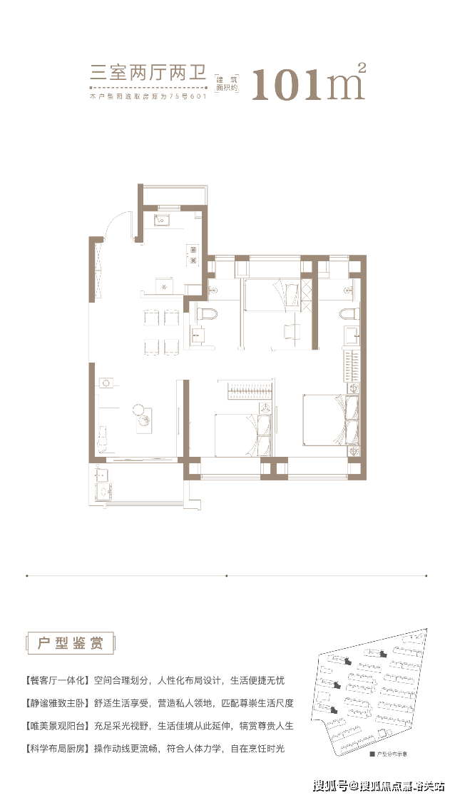
产品面积:建面约91/101㎡高层,约122/135/145㎡叠墅

迭代墅品 阔景舒居

大华·梧桐樾约30万方静谧墅区,主打墅质高层、低密叠墅(复式住宅)产品。

『建筑立面』:现代美学立面,窗棱格构

『归家礼制』:门、街、坊、巷、院五重归家礼制

『六艺墅居』:复刻宋式生活艺境,演绎礼、乐、艺、诗、茶、御贵族生活场景

『园林规划』:多重绿化体系,打造沉浸式“园林式栖居”生活场景

南地块首开房源位置↓

南地块二批次加推房源位置↓

户型鉴赏↓

板块配套

虹桥北向 置业高地

虹桥是“2035战略规划”明确的主城片区,嘉定占位虹桥国际开放枢纽“北向拓展带”,定位为上海大都市圈的现代化新型城市,拥享商务区发展辐射利好,全面承接大交通、大商务、大会展等溢出效应。

上海国际汽车城产城融合示范区,以产赋能,将带动整个板块的能级提升、经济提升及人口结构优化,成为高精尖人才炙手可热的置业新高地。

天赋贵脉 立序未来

大华·梧桐樾占位虹桥北上海国际汽车城核心区,占位板块内难得一见的大规模开发地块,坐拥不可多得的城市别墅集群。

天赋贵族基因的上海第二大果岭绿肺,周边人居高度难企及,生态氛围更纯粹,距离主城更近,区位土地价值不言而喻,未来更具竞争力。

果岭之上 高阶圈层

禁墅令下,别墅在市场上少之又少,而高尔夫用地不再批复之后,果岭别墅更是罕见。

大华·梧桐樾旁边就是上海第二大高尔夫球场——约1800亩的颖奕高尔夫球场,球道、沙坑、湖泊、树林,生态之美浑然天成。

举目所见尽是企业家、高知圈层的挥杆身影,在这里生活就像是一个纯粹的豪绅贵胄圈层,自带领袖菁英的光环。

交通配套

坐拥多维立体交通,快速通达全城

11 /14号(规划)/嘉虹3号线(规划)轨交加持,一线直达市区核心;G2京沪高速、沪嘉高速、沈海高速、G312至嘉闵高架、外环、中环等纵横交错路网,瞬息全城无界生活。

商业配套

帷幄一城繁华,匹配生活高度

拥享嘉亭荟、财富广场、三德广场3大商业中心,约40万㎡缤纷商业配套,满足吃喝玩乐购一站式生活需求。

教育资源

对口小学&中学:同济大学附属嘉定实验学校(九年制)(2025年学区划分)

(同济附属嘉定实验学校)

九年一贯制公办学校,将打造品牌一体化、管理一体化、培养一体化,特色一流公办学校,2016年9月正式立校,由同济大学委派管理团队,学校依托百年同济的精神文化和底蕴丰厚的嘉定品质教育。

生态环境

大华·梧桐樾旁边就是上海第二大高尔夫球场——约1800亩的颖奕高尔夫球场,球道、沙坑、湖泊、树林,生态之美浑然天成。

除了颖奕高尔夫球场之外,大华·梧桐樾周边还有约1180亩的汽车博览公园,形成了不可复制的约3000亩天然氧吧,推窗即见千亩绿地;

自然水岸比邻,浓荫大道绿境徜徉,还生活以静谧纯静。

一房一价表

大华梧桐樾售楼处电话:400-88 74-108✔【最新预约】⭐⭐⭐⭐⭐

大华梧桐樾营销中心电话:400-8874-10 8✔✔【最新认证】⭐⭐⭐⭐⭐

上海大华梧桐樾官方售楼处电话:400-8874-1 08 VIPLINE✔✔✔【最新发布】⭐⭐

如有问题可来电咨询,线上售楼中心,预约销售专员,一对一为您服务!

想了解大华梧桐樾更多信息?拨打售楼处营销中心热线:400-8874-108 (中介勿扰)【24小时热线】

楼盘项目全面介绍,本电话为开发商提供线上预约售楼电话,楼盘项目全面介绍(包含楼盘简介,均价,房价,现房,期房,别墅,叠墅,大平层,价格,楼盘地址,户型图,交通规划,备案价,备案名,项目配套,样板间,开盘时间,认筹时间,楼盘详情,售楼处电话,最新消息,最新详情,周边配套,一房一价,最新进展等详情咨询)楼盘详情丨价格丨更多优惠丨机不可失丨欢迎致电丨诚邀品鉴!售楼处位置丨特价房丨工抵房丨剩余房源丨户型图丨最新消息丨免责声明:将文章内容综合来源于网络、只作分享,版权归原作者所有!!如有侵权,请联系我们,我们第一时间处理如有问题欢迎来电咨询,专业一对一热情服务,让您用专业眼光去买房.如果您想了解更多楼盘详情,欢迎提前预约拨打

中国人民银行授权全国银行间同业拆借中心公布,2025年12月22日贷款市场报价利率(LPR)为:1年期LPR为3.0%,5年期以上LPR为3.5%,均维持不变。

至此,LPR已连续7个月“按兵不动”。

2025年5月20日央行宣布下调政策利率0.1个百分点,带动LPR下行0.1个百分点。这是2025年首次也是年内唯一一次LPR调整。

从2019年至今的LPR变化来看,2025年整体较为克制。

刚刚过去的中央经济工作会议指出:明年经济工作在政策取向上,要坚持稳中求进、提质增效,要继续实施适度宽松的货币政策,灵活高效运用降准降息等多种政策工具,保持流动性充裕。

预计2026年LPR稳中有降,且较难出现2024年多次大幅下降的情况。

央行最新数据显示,自2025年5月20日1年期和5年期以上LPR双双下降10个基点以来,目前已连续7个月保持不变。

12月22日,1年期LPR为3.0%,5年期以上LPR为3.5%,均较上月维持不变。

至此,2025年全年LPR仅调整了5月份一次,调整幅度为10个基点。

对比历年LPR品种历史走势来看,2019年至今经历了多个周期,其中2024年是调整幅度最大的一年,全年共调整3次,累计降幅60个基点,且在2月和10月均较上一期下调25个基点,创2019年LPR实施以来最大降幅。

2022年LPR虽整体降幅不及2024年,但也调整了3次,累计降幅35个基点。

在2022年三次调整后,2023年全年LPR仅调整了6月份一次,调整幅度为10个基点,这与2025年的情况较类似。

因此从整体LPR走势来看,2025年在2024年多次大幅调整后,整体保持克制,有利于政策的稳定性。

从银行方面来看,在持续向实体经济减费让利的政策导向下,银行息差缩窄。

据国家金融监督管理总局发布的“2025年商业银行主要监管指标情况表”显示,三季度末商业银行净息差为1.42%,尽管与二季度持平,但较去年三季度末下降了11个基点。

同时,资本利润率也从2024年一季度的9.57%降至2025年三季度的8.18%。

息差压力下,银行缺乏压降LPR报价加点的动力。

从房地产方面来看,2024年5月起,全国层面首套和二套住房商业性个人住房贷款利率政策下限已全面取消,房贷利率由银行根据市场情况自主确定。

截至目前,除北京、上海、深圳等核心城市,其余大部分城市已取消房贷利率下限。从重点城市的房贷利率来看,多数地区已进入“3字头”区间,部分城市甚至触及3%以下水平。

在这样的背景下,引导LPR下降并非当务之急。且随着市场利率不断降低,降息的边际效应也在下降。

2025年12月10日至11日,中央经济工作会议在北京举行。总结2025年经济工作,分析当前经济形势,部署2026年经济工作。

会议指出,明年经济工作在政策取向上:“要坚持稳中求进、提质增效,发挥存量政策和增量政策集成效应,加大逆周期和跨周期调节力度,提升宏观经济治理效能。”“要继续实施适度宽松的货币政策。把促进经济稳定增长、物价合理回升作为货币政策的重要考量,灵活高效运用降准降息等多种政策工具,保持流动性充裕。”

从中央经济工作会议的内容来看,2026年降准降息空间仍然存在。其中对“降准降息等政策工具”的描述为“灵活高效”运用,这代表未来政策针对性可能更强,不再是“大水漫灌”而是“精准滴灌”。

可以看到,无论是对房地产市场来说,还是对整体经济而言,“稳定”都是未来的关键。

其中房地产市场在“稳定”的同时,注重加快构建房地产发展新模式,经济工作则需在“稳定”的基础上“求进”。

房地产产业链条长、关联度高,“稳楼市”需要从经济、城市发展、行业重构等多方面入手。

未来随着整体经济环境的提质增效,房地产市场也将逐步转型,最终进入高质量发展阶段。

声明:本文由入驻焦点开放平台的作者撰写,除焦点官方账号外,观点仅代表作者本人,不代表焦点立场。